יפה בשחור
אדריכלות

יפה בשחור

 בדירת טריפלקס שעיצבה עבור דיירים ששחור הוא  הגון האהוב עליהם, הלכה אדריכלית הפנים דורית סלע עד הסוף עם אהבתם זו, ותרגמה אותה לכדי מרחב מהודק הכולל גם הפתעות- חדר יין וחלל לריקודים סלוניים

מבט מהכניסה אל חלל המגורים: חלל כהה, גבוה ועוצמתי, שבמרכזו ניצב גרם מדרגות מעוגל עשוי נירוסטה ומדרכי זכוכית. ריצוף באריחי שיש כהים עם משחקי גוונים וגידים, קירות ב"אנג'לינה" אפור, חיפוי הקיר הגבוה בטיח עשיר המשלב גווני אפור, ירוק וזהוב, ופסי תאורת לד שקועים בקירות.

מבט מהכניסה אל חלל המגורים: חלל כהה, גבוה ועוצמתי, שבמרכזו ניצב גרם מדרגות מעוגל עשוי נירוסטה ומדרכי זכוכית. ריצוף באריחי שיש כהים עם משחקי גוונים וגידים, קירות ב

מבט מהכניסה אל חלל המגורים: חלל כהה, גבוה ועוצמתי, שבמרכזו ניצב גרם מדרגות מעוגל עשוי נירוסטה ומדרכי זכוכית. ריצוף באריחי שיש כהים עם משחקי גוונים וגידים, קירות ב"אנג'לינה" אפור, חיפוי הקיר הגבוה בטיח עשיר המשלב גווני אפור, ירוק וזהוב, ופסי תאורת לד שקועים בקירות.

תהליך תכנונה ועיצובה של דירת הטריפלקס הממוקמת בפרויקט מגורים יוקרתי בתל אביב, היה עבור אדריכלית הפנים דורית סלע שונה מעט מתהליכי תכנון שרוקמים את שגרת יומה המקצועית, הן מבחינת הסגנון העיצובי הרצוי שהגדירו הלקוחות, והן מבחינת פונקציות ייחודיות שביקשו לשלב בדירתם. העדפת הדיירים לעיצוב שהוא אמנם מודרני אך לא מינימליסטי, נועז יותר בצבעיו ועשיר על גבול העמוס, הייתה רחוקה ממאפייני כתב ידה הנקי, כך שאת התכנון היא חוותה, לדבריה, כסוג של אתגר "ההגדרות האסתטיות היו שונות מאד מקווי הסגנון שלי, מבהירות גווני הלבן, מהשקט ומהצמצום התמציתי, והאתגר היה לספק את המענה הרצוי ובה בעת לא לחרוג לחלוטין או להרחיק יותר מידי מה”אני מאמין” שלי” היא מספרת. 

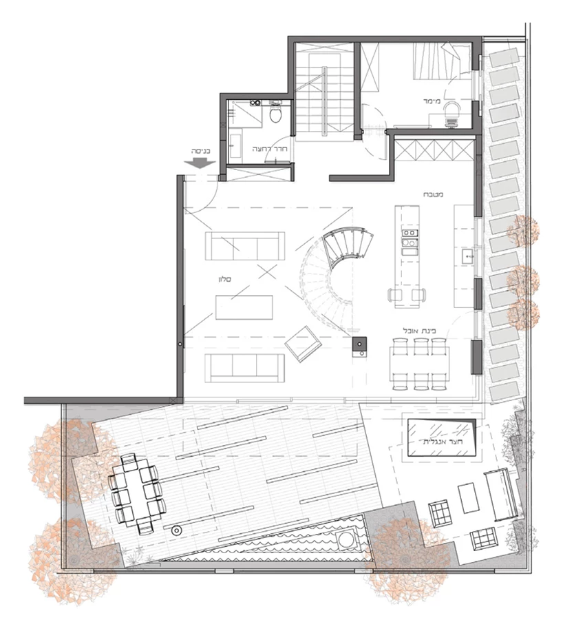
פרישת הפונקציות בחלל המרכז בשטחו את הפונקציות הציבוריות, וממנו ישנה יציאה לגינה קטנה.

פרישת הפונקציות בחלל המרכז בשטחו את הפונקציות הציבוריות, וממנו ישנה יציאה לגינה קטנה.

פרישת הפונקציות בחלל המרכז בשטחו את הפונקציות הציבוריות, וממנו ישנה יציאה לגינה קטנה.

פרישת הפונקציות בחלל המרכז בשטחו את הפונקציות הציבוריות, וממנו ישנה יציאה לגינה קטנה.

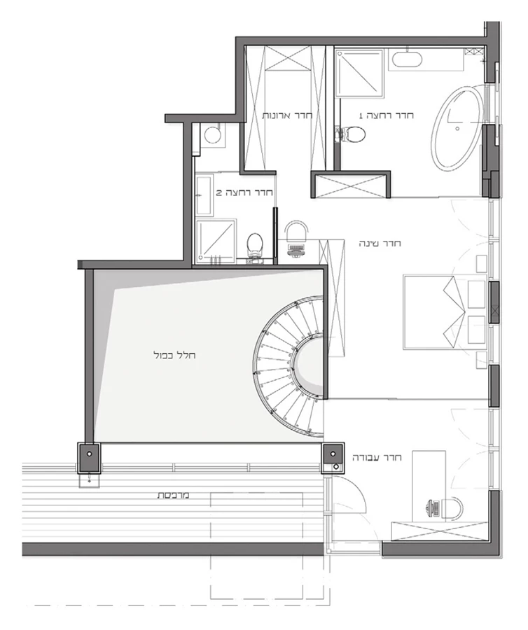
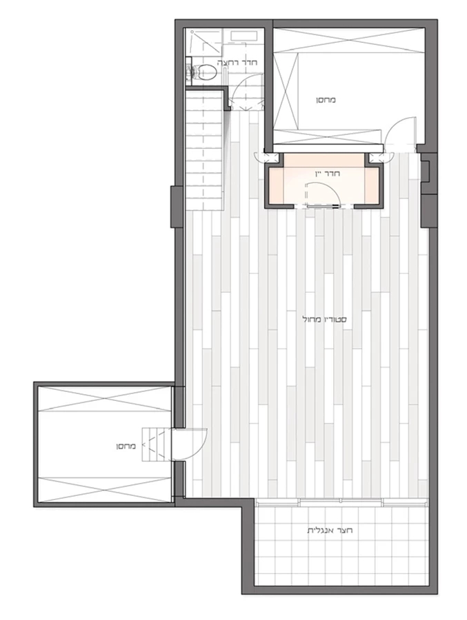
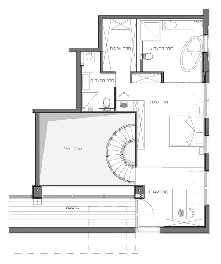
בני הזוג, המנהלים קריירות אקדמאיות והורים לבת בוגרת שכבר פרחה מהקן, רכשו את הדירה המרווחת "על הנייר”, וכניסתה של דורית לתמונה עוד בשלב השלד, אפשרה לה לבצע שינויים בחלל בהתאם לתכנית שטוותה: קומת הקרקע/כניסה (100 מ”ר+חלקת גינה) תוכננה כך שתכיל בשטחה את האזורים הציבוריים- סלון, מטבח, פינת אוכל, שירותי אורחים וממ”ד המשמש גם כחדר אירוח, הקומה הראשונה (60 מ”ר) תוכננה כטריטוריה פרטית מפנקת הכוללת חדר שינה רחב ידיים, חדר ארונות נוח ושני חדרי רחצה - "לו ולה”, ואת קומת המרתף (75מ”ר) ייעדה דורית לשמש כ”קומת התחביב”, המכילה בשטחה את שתי הפונקציות הייחודיות שהוגדרו בפרוגראמה, ואשר שילובן במרחב ביתי אינו שכיח, שלא לומר יוצא דופן. 

עמוד קונסטרוקטיבי מסמן סוג של חציצה בין הסלון ואזור המטבח ופינת האוכל, וגוף תאורה דקורטיבי וגדול שהותקן עליו הופך אותו לאלמנט עיצובי. תאורה:

עמוד קונסטרוקטיבי מסמן סוג של חציצה בין הסלון ואזור המטבח ופינת האוכל, וגוף תאורה דקורטיבי וגדול שהותקן עליו הופך אותו לאלמנט עיצובי. תאורה: "יאיר דורם", גרם מדרגות: יבוא "שבירו".

המטבח: מגלם בגונו האפור את פלטת הצבעים הכהה, בעל חזיתות באלומיניום מוברש ומצויד בכל האבזור הנדרש להשגת נוחות מיטבית. במרכזו ניצבת יחידת אי גדולה, ובסמוך לו ממוקמת פינת האוכל המתנאה כמו מרבית פריטי הריהוט בגון שחור. מטבח:

המטבח: מגלם בגונו האפור את פלטת הצבעים הכהה, בעל חזיתות באלומיניום מוברש ומצויד בכל האבזור הנדרש להשגת נוחות מיטבית. במרכזו ניצבת יחידת אי גדולה, ובסמוך לו ממוקמת פינת האוכל המתנאה כמו מרבית פריטי הריהוט בגון שחור. מטבח: "בולטהאופ".

דורית: "יין וריקודים סלוניים הם שני עולמות תוכן משמעותיים מאד בחיי הדיירים וחלק בלתי נפרד מהם ומאהבתם לארח, ובתוך כך הם רצו לשלבם גם כחלק בלתי נפרד מהמרחב הביתי שלהם- יצירת חדר יין תקני למהדרין וחלל ריקודים רחב ידיים, כעין אולם של ממש”. בין נאמנות לתפיסתה העיצובית,לבין האתגר להיענות לרצון הדיירים, שהביעו הסתייגות חד משמעית מגון לבן וממראה נקי מידי, הקונספט שטוותה דורית נשען במידה רבה על שימושי חומרים, טקסטורות ותאורה, המייצרים עניין ועושר ויזואלי אך בה בעת אינם מעמיסים על החלל, וכן על פלטת גוונים כהה בעיקרה, שהוגדרה כאהובה במיוחד, ואכן, הכניסה לדירה חושפת חלל גבוה ומרשים, שחזותו הכהה משווה לו נופך דרמטי ועוצמתי.

חדרי הרחצה של בעלי הבית, מעוצבים במסגרת זהה עם תקרת בריסול שחורה וריצוף באריחי גרניט שחורים, דקים ביותר וגדולים במיוחד. בזה של בעלת הבית חובבת הגון האדום משתלב הצבע ביחידת הכיור, ביחידת אחסון גבוהה ובמסגרתה של מראה גדולה, תוך יצירת חזות דרמטית, ולצד אמבט פרי סטנדינג משתלב מקלחון מפנק מאובזר בג

חדרי הרחצה של בעלי הבית, מעוצבים במסגרת זהה עם תקרת בריסול שחורה וריצוף באריחי גרניט שחורים, דקים ביותר וגדולים במיוחד. בזה של בעלת הבית חובבת הגון האדום משתלב הצבע ביחידת הכיור, ביחידת אחסון גבוהה ובמסגרתה של מראה גדולה, תוך יצירת חזות דרמטית, ולצד אמבט פרי סטנדינג משתלב מקלחון מפנק מאובזר בג'טים לעיסוי ופונקצית סאונה. בחדר הרחצה של בעל הבית משתלב גון תכלת המשמש כחיפוי קיר במקלחון. אביזרים סניטאריים: "חזי בנק", ארונות אמבט ומקלחון: "אלבניו" .

עמוד קונסטרוקטיבי מסמן סוג של חציצה בין הסלון ואזור המטבח ופינת האוכל, וגוף תאורה דקורטיבי וגדול שהותקן עליו הופך אותו לאלמנט עיצובי. תאורה:

עמוד קונסטרוקטיבי מסמן סוג של חציצה בין הסלון ואזור המטבח ופינת האוכל, וגוף תאורה דקורטיבי וגדול שהותקן עליו הופך אותו לאלמנט עיצובי. תאורה: "יאיר דורם", גרם מדרגות: יבוא "שבירו".

מסגרתו מושתתת על ריצוף באריחי שיש גדולים שמופעם מאופיין במשחקי גוונים )שחור ולבן( וגידים, על קירות שנצבעו ב”אנג’לינה” בגון אפור, ובחלק מהתקרות המונמכות נעשה שימוש ביריעות בריסול שבתוכן הותקנו גופי תאורה המייצרים השתקפויות המעשירות את המרחב בממד נוסף. למסגרת זו נוספו חיפוי טיח מיוחד בגוונים משתנים של זהוב-ירקרק-אפור שבוצע על הקיר הגבוה בסלון, וכן פסי תאורת לד ששוקעו בכל הקירות תוך הקפדה על יצירת ניתוקים אווריריים. במרכז מסגרת זו, כסוג של "הי לייט”, משתלב גרם מדרגות מרשים בעל נוכחות פיסולית, שעיצובו הגלי-מתעקל משלב קונסטרוקציית מתכת ומדרכי זכוכית.דורית: "חלל המדרגות המקורי היה ממוקם בפינת המרחב, אך על מנת ליצור חדר ארונות מרווח בקומה הראשונה, הפרטית, הוחלט לנצלו למטרה זו, ואת גרם המדרגות להעתיק למרכז החלל ולשוות לו נוכחות ייחודית”. גרם המדרגות יובא מאיטליה לאחר שנרכש כמוצר קיים שייצורו הותאם ייעודית לחלל, ואף על הרכבתו ניצחו אנשי מקצוע מיומנים של המפעל המייצר, שהגיעו לצורך זה לארץ.

פנטזיה בקומת המרתף: חלל הריקודים וחדר היין הממוקם על אחת מצלעותיו כשהכניסה אליו נעשית דרכו. אולם הריקודים מרוצף בפרקט ומחופה בקירות מראה, שבאחד מהם משתלב גוף תאורה מעניין בעיצוב המדמה איור.

פנטזיה בקומת המרתף: חלל הריקודים וחדר היין הממוקם על אחת מצלעותיו כשהכניסה אליו נעשית דרכו. אולם הריקודים מרוצף בפרקט ומחופה בקירות מראה, שבאחד מהם משתלב גוף תאורה מעניין בעיצוב המדמה איור.

חדרי הרחצה של בעלי הבית, מעוצבים במסגרת זהה עם תקרת בריסול שחורה וריצוף באריחי גרניט שחורים, דקים ביותר וגדולים במיוחד. בזה של בעלת הבית חובבת הגון האדום משתלב הצבע ביחידת הכיור, ביחידת אחסון גבוהה ובמסגרתה של מראה גדולה, תוך יצירת חזות דרמטית, ולצד אמבט פרי סטנדינג משתלב מקלחון מפנק מאובזר בג

חדרי הרחצה של בעלי הבית, מעוצבים במסגרת זהה עם תקרת בריסול שחורה וריצוף באריחי גרניט שחורים, דקים ביותר וגדולים במיוחד. בזה של בעלת הבית חובבת הגון האדום משתלב הצבע ביחידת הכיור, ביחידת אחסון גבוהה ובמסגרתה של מראה גדולה, תוך יצירת חזות דרמטית, ולצד אמבט פרי סטנדינג משתלב מקלחון מפנק מאובזר בג'טים לעיסוי ופונקצית סאונה. בחדר הרחצה של בעל הבית משתלב גון תכלת המשמש כחיפוי קיר במקלחון. אביזרים סניטאריים: "חזי בנק", ארונות אמבט ומקלחון: "אלבניו" .

למרות הנפח שהוא תופס בחלל, שקיפותם של מדרכי הזכוכית משמרת אווריריות ומונעת תחושת "חנק” ו/או הכבדה, ונוכחותו מתקבלת כמוקד ויזואלי רב עניין וכאלמנט פיסולי לכל דבר, כאשר גוף תאורה גדל מידות המשתלשל מרום התקרה משלים את התמונה המרשימה. גופי תאורה ייחודיים הותקנו גם על עמוד קונסטרוקטיבי שמנוצל ליצירת חציצה בין פינת האוכל לבין הסלון, וכן מעל פינת האוכל עצמה, ובשני המקרים נוכחותם הדקורטיבית היא הרבה מעבר לתפקידם כמקורות אור. 

חדר היין מעוצב על טהרת מראות המכפילות את המאוחסן בו ומייצרות נופך קסום. חדר יין:

חדר היין מעוצב על טהרת מראות המכפילות את המאוחסן בו ומייצרות נופך קסום. חדר יין: "כפיים".

שפת החלל מגלמת היטב את חיבת בני הזוג לגון השחור, שמיתרגמת בצבעוניות הריהוט שנבחר ואף מסך הטלוויזיה המותקן על הקיר הגבוה מחופה הטיח משתלב בתוך זיגוג שחור, כך שבעת שהיא כבויה נותר משטח זכוכית כהה ונקי למראה. המטבח, הפתוח אל החלל אך מופרד ממנו במידה ראויה, אינו חורג מפלטת צבעי המרחב כשהוא עוטה גון אפור שמעניקות לו חזיתות אלומיניום מוברש, ועיצובו המוקפד כולל את כל האבזור המתקדם שנדרש להשגת נוחות מיטבית. במרכז שטחו ניצבת יחידת אי גדולה, ופינת האוכל הסמוכה אליו משמשת את הדיירים בחיי היומיום ולצרכי אירוח כאחד. קומת המגורים הפרטית מאופיינת ברווחה מפנקת ובאותה שפת צבע כהה השלטת במרחב הציבורי. 

המטבח: מגלם בגונו האפור את פלטת הצבעים הכהה, בעל חזיתות באלומיניום מוברש ומצויד בכל האבזור הנדרש להשגת נוחות מיטבית. במרכזו ניצבת יחידת אי גדולה, ובסמוך לו ממוקמת פינת האוכל המתנאה כמו מרבית פריטי הריהוט בגון שחור. מטבח:

המטבח: מגלם בגונו האפור את פלטת הצבעים הכהה, בעל חזיתות באלומיניום מוברש ומצויד בכל האבזור הנדרש להשגת נוחות מיטבית. במרכזו ניצבת יחידת אי גדולה, ובסמוך לו ממוקמת פינת האוכל המתנאה כמו מרבית פריטי הריהוט בגון שחור. מטבח: "בולטהאופ".

פנטזיה בקומת המרתף: חלל הריקודים וחדר היין הממוקם על אחת מצלעותיו כשהכניסה אליו נעשית דרכו. אולם הריקודים מרוצף בפרקט ומחופה בקירות מראה, שבאחד מהם משתלב גוף תאורה מעניין בעיצוב המדמה איור.

פנטזיה בקומת המרתף: חלל הריקודים וחדר היין הממוקם על אחת מצלעותיו כשהכניסה אליו נעשית דרכו. אולם הריקודים מרוצף בפרקט ומחופה בקירות מראה, שבאחד מהם משתלב גוף תאורה מעניין בעיצוב המדמה איור.

בשם הנוחות תוכננו בה, כאמור, שני חדרי רחצה, שעוצבו עם תקרת בריסול שחורה וריצוף באריחי גרניט פורצלן שחורים גדולים מאד (1X3 מ’) ודקים מאד (4 מ”מ בלבד) בגימור חלק למשעי המטשטש את קווי החלוקה, כך שהמראה הנוצר הוא כשל משטח אחיד. העובדה שחדרי הרחצה עוצבו ייעודית "לו ולה”, אפשרה לדורית לממש לכל אחד מהם חלומות נוספים, וכך, למשל, בזה של בעלת הבית שולב ארון כיור אדום, שהינו אחד הגוונים החביבים עליה במיוחד. השילוב העז בין גווני השחור והאדום יצר חלל דרמטי, בו הותקן אמבט "פרי סטנדינג”, ובמקום ג’קוזי רצוי, שהתקנתו הייתה מורכבת טכנית, תוכנן בו מקלחון מפנק הכולל גם ג’טים מעסים וכן פונקציה של שימוש כסאונה. חדר הרחצה של בעל הבית, מאידך, משמר מראה רגוע יותר, עם גון תכלת ששולב בו לצד מסגרת הרקע השחורה. קומת המרתף, "הדובדבן” המממש את תחביביהם של בני הזוג, שוחרי תרבות היין ואוהבי ריקוד, היא ללא ספק קומה לא שגרתית. חדר היין, הממוקם,למעשה, על אחת מצלעותיו של חלל הריקודים והכניסה אליו נעשית דרכו, צויד בכל התשתיות הנדרשות לחלל מסוג זה ולאחסון הולם של בקבוקי המשקה, דוגמת בקרת אקלים שהותאמה בקפידה.

קומת קרקע

קומת קרקע

חדר היין מעוצב על טהרת מראות המכפילות את המאוחסן בו ומייצרות נופך קסום. חדר יין:

חדר היין מעוצב על טהרת מראות המכפילות את המאוחסן בו ומייצרות נופך קסום. חדר יין: "כפיים".

עיצובו נעשה על טהרת השימוש במראות, ובכלל זה בתקרה ובריצוף, וההשתקפויות שהן מייצרות כמו מכפילות פי כמה וכמה את המאוחסן בו ומייצרות נופך של פנטזיה ותעתוע. שימוש בחיפוי מראות נעשה גם בחלל הריקודים, אך הוא רוצף בפרקט ההולם את הפעילות המתבצעת בו, וגוף תאורה ייחודי, שעיצובו המיוחד מדמה איור של גוף תאורה, משתלב עם השתקפויות המראות של קירותיו תוך יצירת מראה קסום, שזור אף הוא בסוג של פנטזיה. עיצוב הדירה אולי הביא את דורית למחוזות אסתטיים אחרים מאלה הבונים את תפיסת עולמה המקצועית, ונקל להבין מדוע הוא נתפס לדידה כאתגר. אך כך או אחרת, הפרשנות המאזנת והמאוזנת שהשכילה להעניק להעדפות הדיירים הניבה חלל אשר גם בתוך ממד הדרמה, עזות הצבע והעושר החומרי משמר מינונים מוקפדים ומביא לידי ביטוי את חתימת ידה המהוקצעת והנקייה

קומת מגורים

קומת מגורים

קומת קרקע

קומת קרקע

קומת מרתף

קומת מרתף

קומת מגורים

קומת מגורים

קומת מרתף

קומת מרתף


כתבות נוספות

חללים מעוצבים מתוך הכנס הבינ"ל לעיצוב ותכנון בתי מלון
אדריכלות
חללים מעוצבים מתוך הכנס הבינ"ל לעיצוב ותכנון בתי מלון
חיבורים, גיאומטריה, קומפוזיציה ונקודות מפגש-בין אמנות לעיצוב פנים
אדריכלות
חיבורים, גיאומטריה, קומפוזיציה ונקודות מפגש-בין אמנות לעיצוב פנים
החומר שמשגע את האדריכלים- קוריאן גרסת 2016
תכנון
החומר שמשגע את האדריכלים- קוריאן גרסת 2016
דיור בר קיימא - תחנה מרכזית חדשה בת"א
תכנון
דיור בר קיימא - תחנה מרכזית חדשה בת"א
להרגיש בבית מהיום הראשון
אדריכלות
להרגיש בבית מהיום הראשון
עיצוב דירת גג בתל אביב
תכנון
עיצוב דירת גג בתל אביב
למון פריים - גלרייה אחרת לאומנות עכשוית
תכנון
למון פריים - גלרייה אחרת לאומנות עכשוית
עיצוב בית פרטי בקיסריה
אדריכלות
עיצוב בית פרטי בקיסריה
נסיך השלג - תכנון ועיצוב מלון
חומרים
נסיך השלג - תכנון ועיצוב מלון
סגנון חופשי
חומרים
סגנון חופשי
הפנים והחוץ: הרמוניה מושלמת
אדריכלות
הפנים והחוץ: הרמוניה מושלמת
החנות של ד"ר מאנזנה - עיצוב פנים ככלי לחיזוק מותג
אדריכלות
החנות של ד"ר מאנזנה - עיצוב פנים ככלי לחיזוק מותג
פתרונות אחסון בעיצוב הבית
אדריכלות
פתרונות אחסון בעיצוב הבית
עיצוב ספריות - מפגשים מהסוג הספרותי
חומרים
עיצוב ספריות - מפגשים מהסוג הספרותי
פתוח וסגור- בית פרטי בשרון
אדריכלות
פתוח וסגור- בית פרטי בשרון
וילה באוויר
תכנון
וילה באוויר
"יירוק" ראשון של בניין מגורים בישראל
תכנון
"יירוק" ראשון של בניין מגורים בישראל
מטבחי Häcker -מטבחים ומקיימים
תכנון
מטבחי Häcker -מטבחים ומקיימים
אדריכל יפתח הררי ישתתף בכנס INNO
תכנון
אדריכל יפתח הררי ישתתף בכנס INNO
אלמנטים חזקים יוצרים דירה שלא תוכלו לשכוח, ולא בטוח שבמובן החיובי של המילה
אדריכלות
אלמנטים חזקים יוצרים דירה שלא תוכלו לשכוח, ולא בטוח שבמובן החיובי של המילה
70 שנות עיצוב ואדריכלות
עיצוב
70 שנות עיצוב ואדריכלות
קירות מדברים
עיצוב
קירות מדברים
תכנון חלל המטבח
תכנון
תכנון חלל המטבח
לעצב מכל הלב- מעצבים למען הקהילה
אדריכלות
לעצב מכל הלב- מעצבים למען הקהילה
עם סוסים שמדברים אדריכלית
אדריכלות
עם סוסים שמדברים אדריכלית
פריט אחד שמשנה את כל הבית
עיצוב
פריט אחד שמשנה את כל הבית
במשרד כמו בבית
חומרים
במשרד כמו בבית
עיצוב משרד ירוק באופיו
תכנון
עיצוב משרד ירוק באופיו
בית רחב ידיים
תכנון
בית רחב ידיים
על גג העולם - קונספט עיצוב סוויטה במלון בוטיק. ורד גור
עיצוב
על גג העולם - קונספט עיצוב סוויטה במלון בוטיק. ורד גור
בצמיחה מתמדת
עיצוב
בצמיחה מתמדת
המלחמה על השטיח: למה מה שנראה מיותר הוא חובה עבור המעצב?
עיצוב
המלחמה על השטיח: למה מה שנראה מיותר הוא חובה עבור המעצב?
מרחב 2011 יוצא מן הכלל - תערוכה
אדריכלות
מרחב 2011 יוצא מן הכלל - תערוכה
חדשות וחידושים - 126
עיצוב
חדשות וחידושים - 126
עיצוב פינות אוכל, פינה לי חביבה
אדריכלות
עיצוב פינות אוכל, פינה לי חביבה
עיצוב סובב עולם - 122
אדריכלות
עיצוב סובב עולם - 122
קיסר – ריהוט משרדי ארגונומי
חומרים
קיסר – ריהוט משרדי ארגונומי
דווקא עכשיו – שיפוץ קל:
אדריכלות
דווקא עכשיו – שיפוץ קל:
שיפוץ ועיצוב מחודש לדירה
תכנון
שיפוץ ועיצוב מחודש לדירה
בית שמקרב לבבות: איך התכנון האדריכלי מחזק את הביחד המשפחתי?
אדריכלות
בית שמקרב לבבות: איך התכנון האדריכלי מחזק את הביחד המשפחתי?
הפנים הצבעוניות של החצר האחורית
אדריכלות
הפנים הצבעוניות של החצר האחורית
פשטות מנסחת  עוצמה
אדריכלות
פשטות מנסחת עוצמה
דיור בר השגה בקופנהגן, דנמרק
תכנון
דיור בר השגה בקופנהגן, דנמרק
נכנסים למטבח - 5 הדברים שיקפיצו את המטבח שלך לרמה אחרת
תכנון
נכנסים למטבח - 5 הדברים שיקפיצו את המטבח שלך לרמה אחרת
במעלה הזרם - ברזים איטלקיים בגימורים מרהיבים
אדריכלות
במעלה הזרם - ברזים איטלקיים בגימורים מרהיבים
עבודה במהירות האור
חומרים
עבודה במהירות האור
מפגשים בארגז התפוזים
חומרים
מפגשים בארגז התפוזים
YoGood יוגורטייה
חומרים
YoGood יוגורטייה
חומרים חדשים - 109
תכנון
חומרים חדשים - 109
אצל פלס-פיט הירוק נמצא גם בפרטים הקטנים
חומרים
אצל פלס-פיט הירוק נמצא גם בפרטים הקטנים
אדריכלים מביאים בשורות עיצוב
תכנון
אדריכלים מביאים בשורות עיצוב
שקט, אור וקלילות: המהפכה בעיצוב חללי מגורים בעידן המודרניות המואצת
תכנון
שקט, אור וקלילות: המהפכה בעיצוב חללי מגורים בעידן המודרניות המואצת
כן על הספה
תכנון
כן על הספה
עיצוב אלה וואבי סאבי
תכנון
עיצוב אלה וואבי סאבי
מלכי לוין: עושה בית ספר לגני ילדים
חומרים
מלכי לוין: עושה בית ספר לגני ילדים
עיצוב חדרי הרחצה
אדריכלות
עיצוב חדרי הרחצה
תנורי הוייקינגים הגיעו לתדיראן ויש בהחלט למה לצפות
חומרים
תנורי הוייקינגים הגיעו לתדיראן ויש בהחלט למה לצפות
ברוכים הבאים: הצצה ל-Man Shack מטריף באבו גוש  שעושה הרבה כבוד לגדולים ולקטנים
אדריכלות
ברוכים הבאים: הצצה ל-Man Shack מטריף באבו גוש שעושה הרבה כבוד לגדולים ולקטנים
5 מקומות מסביב לעולם, שנחשבים לפורצי דרך בדיור מוגן
עיצוב
5 מקומות מסביב לעולם, שנחשבים לפורצי דרך בדיור מוגן
"לייק" זה לא מספיק! כך המעצבים הפכו למשפיענים עם השפעה של מיליונים
עיצוב
"לייק" זה לא מספיק! כך המעצבים הפכו למשפיענים עם השפעה של מיליונים
נוסעת בעקבות האהבה
אדריכלות
נוסעת בעקבות האהבה
מלון ויפאסנה בתל אביב, הצעה לעיצוב חדרים בבתי מלון: אפרת מידן
עיצוב
מלון ויפאסנה בתל אביב, הצעה לעיצוב חדרים בבתי מלון: אפרת מידן
שיפוץ דירה בת 72 מ"ר בצפון הישן של תל אביב
תכנון
שיפוץ דירה בת 72 מ"ר בצפון הישן של תל אביב
מוטיב מרכזי זורם ואמורפי בעיצוב בנק בשוויץ
חומרים
מוטיב מרכזי זורם ואמורפי בעיצוב בנק בשוויץ
כל ההוצאות שאתם צריכים לקחת בחשבון כשאתם מעצבים מחדש את הבית
תכנון
כל ההוצאות שאתם צריכים לקחת בחשבון כשאתם מעצבים מחדש את הבית
קטנה גדולה
תכנון
קטנה גדולה
לעצב את גינת הבית בעלויות משתלמות
אדריכלות
לעצב את גינת הבית בעלויות משתלמות
עיצוב דלתות
תכנון
עיצוב דלתות
iconic תכנית ידע ושיווק לאדריכלים ומעצבים
אדריכלות
iconic תכנית ידע ושיווק לאדריכלים ומעצבים
הבית של ריי וצ'רלס אימס
אדריכלות
הבית של ריי וצ'רלס אימס
משרד אדריכלים Sanaa - ראיון
תכנון
משרד אדריכלים Sanaa - ראיון
חדש מקליל: כך תגשימו 'חלונות' גדולים
אדריכלות
חדש מקליל: כך תגשימו 'חלונות' גדולים
מחסן בנייה קלה
תכנון
מחסן בנייה קלה
גן פרחי בר
אדריכלות
גן פרחי בר
מהי יצירת אמנות טובה - שאלה למחשבה
אדריכלות
מהי יצירת אמנות טובה - שאלה למחשבה
אורבניות היא שם המשחק
תכנון
אורבניות היא שם המשחק
עיצוב דירה עם תקציב מצומצם בהר הדר
תכנון
עיצוב דירה עם תקציב מצומצם בהר הדר
עיצוב שעונים - חבל על הזמן
אדריכלות
עיצוב שעונים - חבל על הזמן
עם כל הכבוד,ויש כבוד
אדריכלות
עם כל הכבוד,ויש כבוד
הוט קוטור ממוחזר
חומרים
הוט קוטור ממוחזר
דירה ברמת אביב הירוקה
תכנון
דירה ברמת אביב הירוקה
יום מעונן
חומרים
יום מעונן
חדשות וחידושים - 122
עיצוב
חדשות וחידושים - 122
עיצוב זורם בכפות ידייך
תכנון
עיצוב זורם בכפות ידייך
נוחות רכה – מילאנו-ישראל
אדריכלות
נוחות רכה – מילאנו-ישראל
הבית שחושף את קסמו בהדרגה
אדריכלות
הבית שחושף את קסמו בהדרגה
עיצוב מתפרץ
עיצוב
עיצוב מתפרץ
בדלת אמותיו - שיפוץ ושימור מבנים ודלתות
תכנון
בדלת אמותיו - שיפוץ ושימור מבנים ודלתות
תכנון ועיצוב משרדי חברת NEXT INSURANCE  בפרויקט אושירה, כפר סבא
חומרים
תכנון ועיצוב משרדי חברת NEXT INSURANCE בפרויקט אושירה, כפר סבא
גינה פורחת- מחלום למציאות
אדריכלות
גינה פורחת- מחלום למציאות
מזנון שחור- מה חשוב לדעת?
תכנון
מזנון שחור- מה חשוב לדעת?
שיפוץ דירה - התחדשות
תכנון
שיפוץ דירה - התחדשות
אדריכלית: ליאת בעבור
אדריכלות
אדריכלית: ליאת בעבור
דרך היין - יקבים מעוצבים בפיימונטה
חומרים
דרך היין - יקבים מעוצבים בפיימונטה
כשטכנולוגיה ועיצוב נפגשים: הבית החכם דואג גם לאווירה ועיצוב בבית שלכם
תכנון
כשטכנולוגיה ועיצוב נפגשים: הבית החכם דואג גם לאווירה ועיצוב בבית שלכם
אין סופי..., הצעה לעיצוב חדרים בבתי מלון: ציפי לוי - צליל
עיצוב
אין סופי..., הצעה לעיצוב חדרים בבתי מלון: ציפי לוי - צליל
לגור‭ ‬בכפר‭, ‬ גם‭ ‬בלב‭ ‬העיר
תכנון
לגור‭ ‬בכפר‭, ‬ גם‭ ‬בלב‭ ‬העיר
רב הנסתר על הגלוי
אדריכלות
רב הנסתר על הגלוי
לעצב חללים, לעצב חיבורים
תכנון
לעצב חללים, לעצב חיבורים
ליהנות בבית, לבלות בגינה
אדריכלות
ליהנות בבית, לבלות בגינה