עיצוב בית פרטי, מינימליזם לבן
חזיתו של הבית השוכן בשכונת נחלת יהודה בראשל"צ, מתעתעת. למרות שמדובר במבנה דו משפחתי הכולל שתי יחידות דיור, המראה הנחשף לעין הוא של בית פרטי בודד: בין שתי קוביות מחופות סרגלי אלומיניום בגון עץ נמשכים פסי זכוכית אלכסוניים הקושרים אותן ומטשטשים את ההפרדה ביניהן.
חזית קדמית: מבנה דו משפחתי שנראה כבית פרטי. שתי קוביות מחופות סרגלי אלומיניום במראה דמוי עץ מקושרות ביניהן באמצעות פסי זכוכית אלכסוניים. חיפוי דמוי עץ: "אלום גלי"
"מעבר לעניין וויזואלי שונה, הרעיון של חיבור הקוביות באמצעות סרגלי הזכוכית נועד להבטיח פרטיות והצנעה שנדרשו מכיוון זה מחד, והחדרת אור יום טבעי מאידך" מסבירים המתכננים דורית סלע ואורן ויץ את השילוב יוצא הדופן, שאכן בא לידי ביטוי באופן בו משחק האור בחלל הפנים.

תהליך כניסה מרכך את המעבר מהמרחב הציבורי אל המרחב הפרטי: מדרגות בזלת מרחפות מעל בריכת נוי, ומובילות לרחבה תחומה במעקה שקוף ומשובצת בצמחייה. תכנון נוף: דדי גולן
שער הכניסה לחצר אמנם ממוקם בחזית, אך המעבר לבית אינו ממשיך ישר, אלא מוליך את הבאים בסוג של "מסלול טיול" הפונה ימינה כמדרגות זיזיות ניצבות למבנה, שמחופות בזלת ומרחפות מעל בריכת דגים עד הגיען לרחבת המבואה חיצונית. בתוך כך נחשפות זוויות שונות של המבנה והמעבר מהחוץ הציבורי אל החוץ הפרטי "מתרכך" לכדי מעבר הדרגתי חווייתי.

מבט מכיוון הכניסה אל עבר עומק החלל: ויטרינות מרצפה לתקרה מייצרות חזית שקופה, החושפת ומחדירה את נוף הגן פנימה. התאורה מורכבת מספוטים ותעלות שקועות בתקרה, למעט גוף תאורה דקורטיבי יחיד מעל פינת האוכל. ויטרינות: שמעון עבודות אלומיניום, יצירות אמנות: "Joy art gallery".
הדיירים, זוג צעיר שתהליך הבנייה נכרך אצלם עם הרחבת המשפחה (תינוקת שנולדה במהלכו, ותינוקת שנולדה סמוך לסיומו), הם חסידי מראה מודרני-מינימליסטי והיו מגובשים לחלוטין באשר לשפת העיצוב המועדפת עליהם: חלל פתוח ונקי ללא כל אלמנטים "בולטים" שיפרו את הזרימה הנקייה, ולבן כגון שולט.

מבט מעומק החלל לעבר הכניסה: גרם המדרגות ופינת האוכל ממוקמים בחלל גבוה תחום בקיר הפסים. ממול, בנגישות נוחה ממוקם המטבח הלבן עם חזיתות צבע בתנור. ריצוף באריחי שייגריי במיון מוקפד והתקנה ללא מרווחים שמשווה מראה אחיד של משטח צבע. מטבח: "אביבי מטבחים".
המענה שיצרו לכך סלע וויץ נפרש כחלל דו קומתי ונקי מאד, שנחלק לקומה ציבורית פתוחה המאכלסת בשטחה את הפונקציות המשותפות ואשר חלקה הוא חלל גבוה, ולקומה פרטית בה ממוקמים החדרים. פינת האוכל והמטבח ממוקמים זו מול זה בקדמת המרחב תוך שמירת נגישות נוחה ביניהן, והסלון ממוקם בעומקו, תחום בוויטרינות גדולות הקושרות אותו לחזית האחורית.

נוף הגן המואר יוצק קסם לילי לחלל הפנים.
הויטרינות הותקנו בהדבקה, ללא כל עמודים, כשהן מייצרות חזית שקופה למשעי שחושפת את נוף הגן והבריכה ומדגישה קשר בין מרחבי הפנים והחוץ. לריצוף כלל אזורי הבית נבחרו אריחי שייגריי גדולים במיון מוקפד להשגת אחידות מקסימאלית, והנחתם שבוצעה ללא כל מרווחים משווה מראה של משטחי צבע רציפים. הקירות נצבעו בלבן, המככב גם במרבית האלמנטים בבית, במטבח שעוצב עם חזיתות צבע בתנור, ובפריטי הריהוט המשתלבים בחלל, עם מינון מדוד של גון אפור.
באזור החלל הגבוה סמוך לקיר הפסים של החזית הקדמית: פינת האוכל וגרם המדרגות הסמוך אליה. גרם המדרגות משלב קונסטרוקציית פלדה, מדרגות עץ זיזיות ומעקה שקוף הנמשך ותוחם גם מעבר גלריה בקומה העליונה. מעקות: "זכוכית שפירא"ברוח הניקיון הרעיוני של העיצוב התאורה מבוססת על ספוטים וגופים מוצנעים בתעלות תקרה, להוציא גוף תאורה דקורטיבי יחיד ששולב בפינת האוכל, כשגונו, הלבן כמובן, "מתיישר" עם גונם של השולחן והכיסאות. קיר הפסים מהווה מרכיב משמעותי בחלל הפנים, ונוכחותו מתעצמת עוד יותר נוכח שפת עיצובו החפה מפריטי נוי או דקורציות למיניהן, למעט שתי עבודות אמנות מרשימות שמספקות נקודות צבע- של האמנית מריה זלוצין ושל האמן דן שמיר.

יחידת ההורים: חלל מרווח שאזור הרחצה מסתעף ממנו כהמשך ישיר. עיצוב נקי חף מאלמנטים "בולטים". שטיח: "צמר שטיחים"
גרם המדרגות ממוקם בחלקו הגבוה של החלל, לצד דלת הכניסה ובסמוך לפינת האוכל ולקיר הפסים שמחדיר לכיוונם משחקי אור. עיצובו משלב קונסטרוקציית פלדה, מדרכים זיזיים מרחפים מחופי עץ, ומעקה זכוכית שקוף המעצים את תחושת הריחוף, ותוחם גם מעבר גלריה שבקומה העליונה. שטח הקומה זורם בתצורת האות ר' וכל דלתות החדרים (3) הותקנו ללא משקוף, כשהן מתיישרות בקו אפס עם הקיר ובגונן הזהה לו כמו נטמעות בתוכו.
אזור הרחצה של יחידת ההורים: חיפוי באריחים שחורים, מקלחון מרווח ומפנק, ויחידת כיור ארוכה ומרחפת עשויה קוריאן שתחתיה משתלבת יחידת נגרות תואמת. יחידת ההורים שבה תוכננה כחלל מרווח ופתוח, כאשר אזור הרחצה מסתעף ישירות מאזור השינה. הרצון לייצר זרימה פתוחה ללא אלמנטים "מפריעים" מיתרגם גם בחללה, כמו, למשל, במסך הטלוויזיה שהוטמע בתוך אחת מחזיתות הזכוכית השחורות של הארונות.
קפידה מינימליסטית. באזור הרחצה נוסף לגון הלבן והשולט גון שחור של אריחי חיפוי שחורים וגדולים, ומשטח הכיור עשוי קוריאן עם שילוב נגרות תואמת: משטח אופקי ארוך למדי שתחתיו, תוך שמירת מרווח ניתוק, משתלבת יחידת נגרות לבנה מרחפת. החומר הלבן והנקי משמש גם באגנית וכיסא ששולבו בחלל המקלחון, וחזות החלל ככלל, כמו בבית כולו, משדרת קפידה מינימליסטית.
בית פרטי דו - משפחתי
חזית ברורה של מבנה דו משפחתילהבדיל מהתעתוע של החזית הקדמית, החזית האחורית היא חזית ברורה של מבנה דו משפחתי, ולמרות ששטחה אינו גדול, דבר לא חסר בה לשהייה מפנקת: רחבת ישיבה, בריכת גלישה וגינה קטנה.

החזית האחורית בשעות החשיכה: רחבת ישיבה, בריכת גלישה וחלקה מגוננת.
החזית הקדמית בשעות החשיכה.כשיורד הערב מוארת הצמחייה הירוקה ונוף הגן הלילי כמו נוכח בחלל הפנים, כאשר בחזית הקדמית הופכים פסי הזכוכית שהחדירו אור טבעי במהלך היום לתמונה מרשימה של מעין "מקרנים" המפיצים את אורם לסביבה.
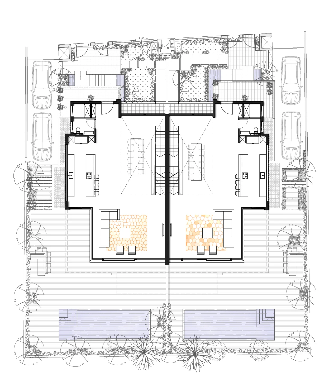
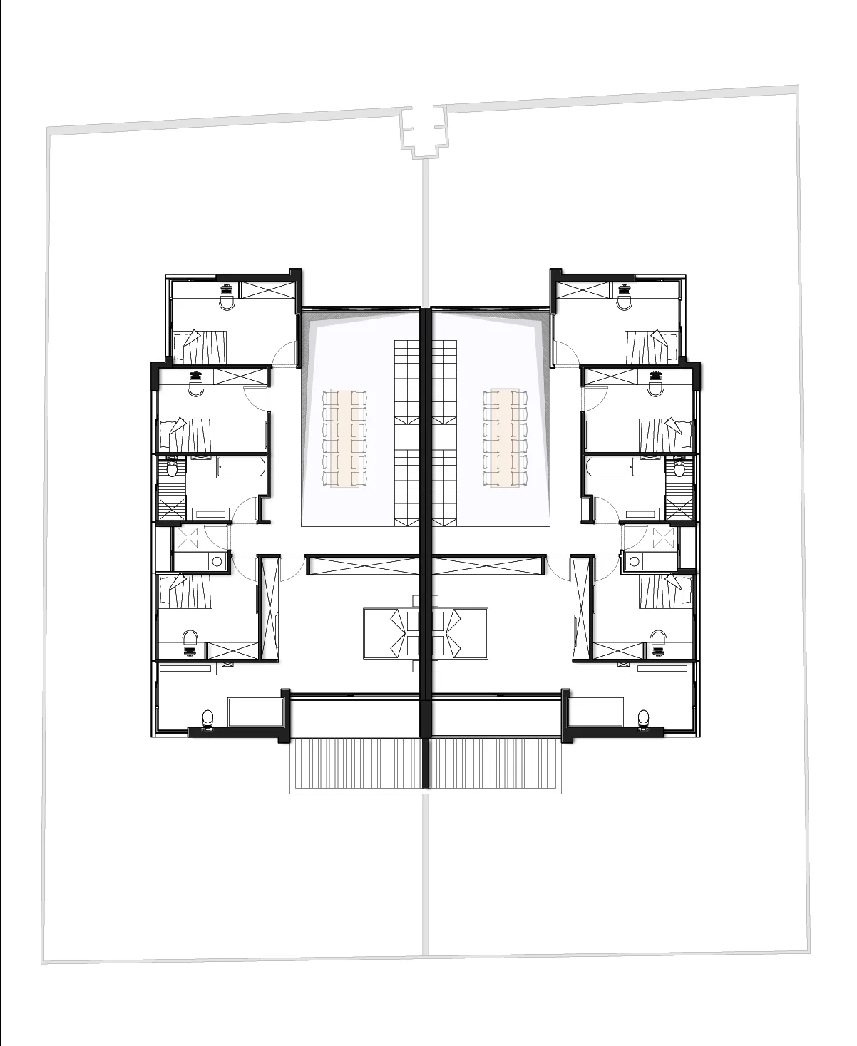
תוכניות הבית
קומת הכניסה הקומה העליונה
![]() |
![]() |
>> לצפייה במגזין דיגיטלי מלא
כתבות נוספות

