פשטות מנסחת  עוצמה
אדריכלות

פשטות מנסחת עוצמה

הבית שתכננה האדריכלית מיכל שפר במרכז הארץ, נשען על פשטות גיאומטרית השמה דגש על קווים נקיים ומייצרת עוצמה, ועל אור טבעי המשחק תפקיד מרכזי בחלל הפנים

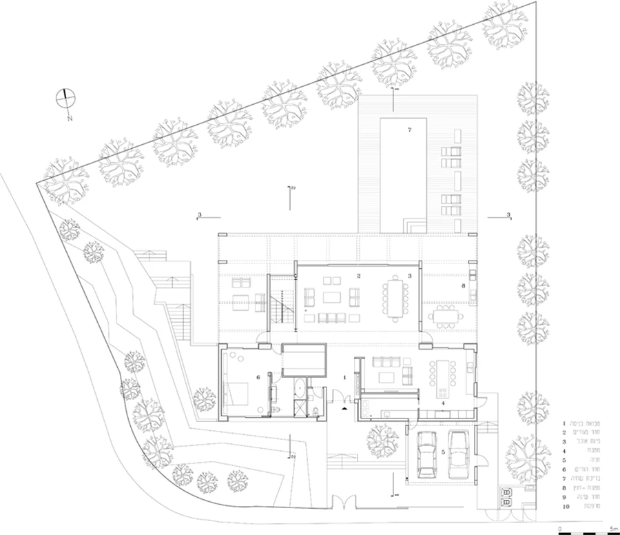
"רציתי 'לתפוס' את הממד הארכיטקטוני הבסיסי והתמציתי". מסבירה האדריכלית מיכל שפר את החלטתה, העומדת בניגוד למקובלות, לצלם את הבית שתכננה בסביון 'רגע לפני' ששולבו בו כלל הפריטים שנועדו להשלים את עיצובו. "הסיפור של הבית הוא עוצמה ופשטות וכך, כשהוא עדיין ריק יחסית , הוא מודגש יותר" היא מוסיפה. הבית, הממוקם בסמטה שקטה בסביון, נבנה על מגרש טרפזי ששטחו כ-1250 מ"ר, עליו ניצב קודם לכן בית ישן שנהרס לטובת בנייתו. שטחו, כ- 430 מ"ר, תוכנן בהתאם לפרוגראמה שהגדירו הדיירים וכולל שתי קומות ומרתף: קומת כניסה המכילה את פונקציות החלל הציבורי, פינת טלוויזיה ויחידת הורים; קומה ראשונה בה ממוקמים שני חדרי ילדים מרווחים וחדר אירוח; וקומת מרתף המאכלסת בשטחה מחסן וממ"ד המשמש גם כחידת שינה נוספת. 

החזית הקדמית: קווים נקיים, חיפוי ברצועות אבן אופקיות בחלקו התחתון של הבית, טיח לבן בחלקו העליון, וקורת פלדה לבנה המפרידה ביניהם.

החזית הקדמית: קווים נקיים, חיפוי ברצועות אבן אופקיות בחלקו התחתון של הבית, טיח לבן בחלקו העליון, וקורת פלדה לבנה המפרידה ביניהם.

החזית הקדמית: קווים נקיים, חיפוי ברצועות אבן אופקיות בחלקו התחתון של הבית, טיח לבן בחלקו העליון, וקורת פלדה לבנה המפרידה ביניהם.

 בבסיס התכנון עמד לדברי שפר "רצון לנצל את ממדי האורך והעומק הנדיבים של המגרש לטובת התכנון- בחלוקת החללים, בקביעת הנפחים הנכונים ובקביעת הפתיחות המקסימאלית אל החוץ, כאשר הפשטות המבנית עומדת, למעשה, בניגוד לחתכים המורכבים". ואמנם, הבית חושף סגנון מודרניסטי, מינימליסטי ומאופק, בעיצוב מכוון המדגיש מבטים ארוכים ופרספקטיבות עשירות, ואשר צמצום חומרי הוא אחד ממאפייניו. 

ביציאה מהחלל הציבורי: ויטרינות במסגרות אלומיניום שחורות ומעודנות וחלון סרט מעליהן פותחים את החלל אל הגינה האחורית ומדגישים את החשיבות שניתנה לאור.

ביציאה מהחלל הציבורי: ויטרינות במסגרות אלומיניום שחורות ומעודנות וחלון סרט מעליהן פותחים את החלל אל הגינה האחורית ומדגישים את החשיבות שניתנה לאור.

ביציאה מהחלל הציבורי: ויטרינות במסגרות אלומיניום שחורות ומעודנות וחלון סרט מעליהן פותחים את החלל אל הגינה האחורית ומדגישים את החשיבות שניתנה לאור.

ביציאה מהחלל הציבורי: ויטרינות במסגרות אלומיניום שחורות ומעודנות וחלון סרט מעליהן פותחים את החלל אל הגינה האחורית ומדגישים את החשיבות שניתנה לאור.

כלפי הרחוב השקט מציג הבית חזית אופקית ומאופקת הנחלקת  לשתי מסות: התחתונה  מחופה רצועות אופקיות של אבן צחורה  והעליונה בחיפוי טיח לבן. בין השתיים מפרידה קורת פלדה לבנה, אשר בחזית האחורית משתחררת/מתנתקת מהמסה הבנויה והופכת לפרגולה גדולה. חלונות הקומה העליונה מתוכננים ברצף הנקרא כפתח אחד גדול הממוסגר אלומיניום שחור, ופרגולה בנויה מטויחת לבן הנתמכת על זוג עמודים עגולים, מסיימת את הרצף לכוון הבית השכן.

קיר בטון  תוחם את חלל המדרגות המובילות לקומה העליונה.

קיר בטון תוחם את חלל המדרגות המובילות לקומה העליונה.

אחד משני פתחים אנכיים שתוחמים את צדדיו של המרחב הציבורי שבקומת הכניסה,  המטבח שלצדו והגלריה המשקיפה עליו ממעל.

אחד משני פתחים אנכיים שתוחמים את צדדיו של המרחב הציבורי שבקומת הכניסה, המטבח שלצדו והגלריה המשקיפה עליו ממעל.

בניגוד לפשטות הגיאומטרית של התכנית, המורכבת מחללים ריבועיים ומלבניים נקיים, חתכי הבית, כאמור, מורכבים מאד, והקומפוזיציה המרחבית מייצרת חללים מרשימים עם הדגשה יתרה על ממדי עומק וגובה. 

חלל המדרגות: קיר בטון המשמר את מופע הגס של החומר, גרם מדרגות ברזל שמנותק ממנו, מעקה כעין מחיצת מיתרים המדמה נבל ענק שתוחם אותו, וגופי תאורה עגולים בגון שחור החובר לגון המדרגות מפיצים הילת אור רכה.

חלל המדרגות: קיר בטון המשמר את מופע הגס של החומר, גרם מדרגות ברזל שמנותק ממנו, מעקה כעין מחיצת מיתרים המדמה נבל ענק שתוחם אותו, וגופי תאורה עגולים בגון שחור החובר לגון המדרגות מפיצים הילת אור רכה.

החלל הציבורי נקרא כמרחב אחד המתנשא לגובה כפול, ומופרד מיתר חלקי הבית באמצעות סקיילייט ושני חלונות צרים משני צידיו שמגדירים אותו כאלמנט גדול ועצמאי. קישורו לחלקיו האחרים של הבית הוא באמצעות גלריית מעבר המשקיפה אליו מהקומה העליונה. 

אחד משני פתחים אנכיים שתוחמים את צדדיו של המרחב הציבורי שבקומת הכניסה,  המטבח שלצדו והגלריה המשקיפה עליו ממעל.

אחד משני פתחים אנכיים שתוחמים את צדדיו של המרחב הציבורי שבקומת הכניסה, המטבח שלצדו והגלריה המשקיפה עליו ממעל.

קיר בטון  תוחם את חלל המדרגות המובילות לקומה העליונה.

קיר בטון תוחם את חלל המדרגות המובילות לקומה העליונה.

לצד קירותיו הלבנים והפתחים הגדולים המחדירים את החוץ פנימה, אלמנט מרכזי בחלל זה הוא גרם מדרגות מפלדה שחורה הניצב על רקע קיר בטון גלוי, אך בה בעת מנותק ממנו. קיר הבטון משמר את אופיו החומרי הגס של החומר, ואת צידו השני של הגרם תוחמת מחיצת מיתרים מכבלי פלדה המתוחים בין רצפה לתקרה, כעין נבל ענק. המרווחים בין המיתרים מאפשרים ליורדים בו לקיים קשרי מבט ישירים בינו לבין אזורי החלל האחרים, כאשר חלון התוחם-מלווה את חלל המדרגות לכל אורכו מאפשר להם ליצור קשרי עין ישירים גם עם הגינה האחורית. בקיר הבטון שולבו גופי תאורה מעוצבים כעין עיגולים שחורים התואמים את צבען של המדרגות, והילת האור המופצת סביבם משלימה את מופעו המרשים."הקיר נוצק בשטח, ושימושי הצבע והחמר הופכים את מהלך המדרגות כולו לאלמנט פיסולי, דומיננטי ורב נוכחות בחלל המגורים הגדול" מסבירה שפר. 

הגלריה שבקומה העליונה: ריצוף פרקט ומעקה בנוי נמוך משולב עם זכוכית שקופה המעניקה קשרי עין ישירים עם החלל הנפרש תחתיה.

הגלריה שבקומה העליונה: ריצוף פרקט ומעקה בנוי נמוך משולב עם זכוכית שקופה המעניקה קשרי עין ישירים עם החלל הנפרש תחתיה.

חלל המדרגות: קיר בטון המשמר את מופע הגס של החומר, גרם מדרגות ברזל שמנותק ממנו, מעקה כעין מחיצת מיתרים המדמה נבל ענק שתוחם אותו, וגופי תאורה עגולים בגון שחור החובר לגון המדרגות מפיצים הילת אור רכה.

חלל המדרגות: קיר בטון המשמר את מופע הגס של החומר, גרם מדרגות ברזל שמנותק ממנו, מעקה כעין מחיצת מיתרים המדמה נבל ענק שתוחם אותו, וגופי תאורה עגולים בגון שחור החובר לגון המדרגות מפיצים הילת אור רכה.

האור הים תיכוני משחק תפקיד חשוב במארג החלל, ומחשבה רבה הושקעה בהחדרתו למבנה באופן עקיף ובכוונים מחושבים היטב. כך, לדוגמה, מעל פתחי היציאה מהחלל הציבורי לגינה נמתח חלון סרט צר מזכוכית קבועה ללא מסגרת, והחלונות הצרים שמשני בצידיו, כמו גם הסקיילייט הנמתח לכל אורך המעבר מחדירים אור רך בצורה מדודה ומבוקרת. הפתחים כולם נתונים במסגרות אלומיניום שחורות ומעודנות המשמרות את הממד התמציתי של התכנון, וככלל, לדברי שפר "הטיפול באור משרת היטב את הכוונה האדריכלית ומעצים אותה".  

עיצוב תמציתי ומדויק גם בחדרי הרחצה בקומה העליונה: חיפוי באריחים במראה בטון, גווני לבן ונגרות עץ בהירה בקווים נקיים.

עיצוב תמציתי ומדויק גם בחדרי הרחצה בקומה העליונה: חיפוי באריחים במראה בטון, גווני לבן ונגרות עץ בהירה בקווים נקיים.

חללי הפנים מחופים פרקט המאזן בחמימותו את הצמצום החומרי-צבעוני, והתאורה המלאכותית מבוססת על פסי תאורה שקועים,, למעט גוף תאורה נדיב ממדים שמשתלשל במקום בו עתידה להשתלב פינת האוכל. המטבח וחדרי הרחצה מגלמים בחזותם הנקייה-מינימליסטית המשכיות ישירה של השפה האדריכלית, כמו, למשל, קיר מחופה אריחי בטון המשתלב בחדר הרחצה של יחידת ההורים, לצד גווני לבן ושילובים מדודים של נגרות  עץ בהירה.

ביציאה מחלל המגורים: בחזית האחורית מתנתקת קורת הפלדה ממסת המבנה והופכת לפרגולה המקרה רחבת מרוצפת.

ביציאה מחלל המגורים: בחזית האחורית מתנתקת קורת הפלדה ממסת המבנה והופכת לפרגולה המקרה רחבת מרוצפת.

הגינה הנשקפת מבעד הפתחים הגדולים של חלל המגורים תוכננה ועוצבה אף היא באותה רוח מזוקקת: חלוקת שטחי החוץ משלבת בין בריכת תעלות גלישה, דק עץ ורחבות הפרגולות מרוצפות אבן אפורה כרצף ישיר של פנים הבית, כאשר המראה בכללותו מזמין את המרחב החיצוני להוות חלק אינטגראלי ממנו, ואגב כך גםלחלק בלתי נפרד מהיצירה האדריכלית.      

בקצה הרחבה: יציאה נוספת מחלל המטבח

בקצה הרחבה: יציאה נוספת מחלל המטבח

הגלריה שבקומה העליונה: ריצוף פרקט ומעקה בנוי נמוך משולב עם זכוכית שקופה המעניקה קשרי עין ישירים עם החלל הנפרש תחתיה.

הגלריה שבקומה העליונה: ריצוף פרקט ומעקה בנוי נמוך משולב עם זכוכית שקופה המעניקה קשרי עין ישירים עם החלל הנפרש תחתיה.

הגן שביציאה מחלל המגורים: שילוב של בריכת תעלות גלישה, דק ורחבות מרוצפות מתחת לפרגולה. ריצופן הזהה לריצוף הפנים מייצר רצף ישיר בין שני המרחבים.

הגן שביציאה מחלל המגורים: שילוב של בריכת תעלות גלישה, דק ורחבות מרוצפות מתחת לפרגולה. ריצופן הזהה לריצוף הפנים מייצר רצף ישיר בין שני המרחבים.

עיצוב תמציתי ומדויק גם בחדרי הרחצה בקומה העליונה: חיפוי באריחים במראה בטון, גווני לבן ונגרות עץ בהירה בקווים נקיים.

עיצוב תמציתי ומדויק גם בחדרי הרחצה בקומה העליונה: חיפוי באריחים במראה בטון, גווני לבן ונגרות עץ בהירה בקווים נקיים.

ביציאה מחלל המגורים: בחזית האחורית מתנתקת קורת הפלדה ממסת המבנה והופכת לפרגולה המקרה רחבת מרוצפת.

ביציאה מחלל המגורים: בחזית האחורית מתנתקת קורת הפלדה ממסת המבנה והופכת לפרגולה המקרה רחבת מרוצפת.

בקצה הרחבה: יציאה נוספת מחלל המטבח

בקצה הרחבה: יציאה נוספת מחלל המטבח

הגן שביציאה מחלל המגורים: שילוב של בריכת תעלות גלישה, דק ורחבות מרוצפות מתחת לפרגולה. ריצופן הזהה לריצוף הפנים מייצר רצף ישיר בין שני המרחבים.

הגן שביציאה מחלל המגורים: שילוב של בריכת תעלות גלישה, דק ורחבות מרוצפות מתחת לפרגולה. ריצופן הזהה לריצוף הפנים מייצר רצף ישיר בין שני המרחבים.

כתבות נוספות

מקלחונים מעוצבים לחדר הרחצה
אדריכלות
מקלחונים מעוצבים לחדר הרחצה
תמי יערי: אמנות עיצוב הפנים
תכנון
תמי יערי: אמנות עיצוב הפנים
שילוב של מרתף יין תוך כדי שיפוץ דירות
תכנון
שילוב של מרתף יין תוך כדי שיפוץ דירות
מוצרי חשמל במטבח
תכנון
מוצרי חשמל במטבח
דבר אלי בפרחים  (זרעים, פקעות ובצלים)
אדריכלות
דבר אלי בפרחים (זרעים, פקעות ובצלים)
אדריכלית: טובה דויד ממשרד אדריכלים טובה דוד & צילה רייזר
אדריכלות
אדריכלית: טובה דויד ממשרד אדריכלים טובה דוד & צילה רייזר
הכנס הבינ"ל ה- 3 לעיצוב ותכנון בתי מלון 19.3.2014
תכנון
הכנס הבינ"ל ה- 3 לעיצוב ותכנון בתי מלון 19.3.2014
חדרי ארונות וארונות קיר - עיצובים וחומרים
תכנון
חדרי ארונות וארונות קיר - עיצובים וחומרים
אדריכלות ועיצוב מהעולם, הפסקה דיגיטלית
אדריכלות
אדריכלות ועיצוב מהעולם, הפסקה דיגיטלית
חללים מעוצבים מתוך הכנס הבינ"ל לעיצוב ותכנון בתי מלון
אדריכלות
חללים מעוצבים מתוך הכנס הבינ"ל לעיצוב ותכנון בתי מלון
ה"קונטיינר"
אדריכלות
ה"קונטיינר"
בית מרגש
תכנון
בית מרגש
יוצקים חלומות בברזל
חדשנות וטכנולוגיה
יוצקים חלומות בברזל
האם הקורונה החזירה את השפיות העיצובית למשרדים?
חדשנות וטכנולוגיה
האם הקורונה החזירה את השפיות העיצובית למשרדים?
תכנון בית על מגרש מאתגר
אדריכלות
תכנון בית על מגרש מאתגר
מתאבנים מתערוכת הריהוט במילאנו 2011
אדריכלות
מתאבנים מתערוכת הריהוט במילאנו 2011
שיפוץ דירה- מחלל מיושן למרחב מסוגנן
תכנון
שיפוץ דירה- מחלל מיושן למרחב מסוגנן
דיור בר קיימא - "דומיקס" פרויקט מגורים 2011
תכנון
דיור בר קיימא - "דומיקס" פרויקט מגורים 2011
סדר פתוח
אדריכלות
סדר פתוח
חברת PoloStone פורצת לשוק עם מהפכה בתחום משטחי הפורצלן למטבחים
תכנון
חברת PoloStone פורצת לשוק עם מהפכה בתחום משטחי הפורצלן למטבחים
מלאכות היד המסורתיות
עיצוב
מלאכות היד המסורתיות
מוצרים מחומרים חדשים
תכנון
מוצרים מחומרים חדשים
פנטהאוז מול הים: דירת נופש מינימליסטית בעיצוב
תכנון
פנטהאוז מול הים: דירת נופש מינימליסטית בעיצוב
יפה, ירוק, חכם ועובד
אדריכלות
יפה, ירוק, חכם ועובד
שטיחים כאלמנט משלים לעיצוב הבית
חדשנות וטכנולוגיה
שטיחים כאלמנט משלים לעיצוב הבית
חפש את האישה
חדשנות וטכנולוגיה
חפש את האישה
חומרים חדשים - 117
תכנון
חומרים חדשים - 117
הילדים הם הכוכבים שלנו
אדריכלות
הילדים הם הכוכבים שלנו
עיצוב סובב עולם - 124
אדריכלות
עיצוב סובב עולם - 124
עיצוב פנים – שימור מבנה היסטורי
תכנון
עיצוב פנים – שימור מבנה היסטורי
עיצוב ותכנון חאן ראש פינה
חדשנות וטכנולוגיה
עיצוב ותכנון חאן ראש פינה
דקים סינטטיים מעוצבים לגינה, למרפסת ולבריכה
אדריכלות
דקים סינטטיים מעוצבים לגינה, למרפסת ולבריכה
אדריכלית: ויקטוריה קרייס
אדריכלות
אדריכלית: ויקטוריה קרייס
תכנון יצירתי בבית פרטי ופסטורלי ביישוב מתן
אדריכלות
תכנון יצירתי בבית פרטי ופסטורלי ביישוב מתן
משפחה כקהילה
אדריכלות
משפחה כקהילה
הפרויקט בנגבה: שני מבנים, בית אחד
אדריכלות
הפרויקט בנגבה: שני מבנים, בית אחד
האלמנטים שיהפכו את המטבח שלכם ליצירת פאר
תכנון
האלמנטים שיהפכו את המטבח שלכם ליצירת פאר
עיצוב חדרים קטנים
עיצוב
עיצוב חדרים קטנים
הדירה שהיא ארץ לעולם לא
תכנון
הדירה שהיא ארץ לעולם לא
תנו לנשום בשקט
חדשנות וטכנולוגיה
תנו לנשום בשקט
אסתטיקה וקדמה טכנולוגית נפגשים בברזים
אדריכלות
אסתטיקה וקדמה טכנולוגית נפגשים בברזים
המדריך השלם לעיצוב הבית לקראת החורף
תכנון
המדריך השלם לעיצוב הבית לקראת החורף
דיור בר קיימא - שכונת קיימא צומחת
תכנון
דיור בר קיימא - שכונת קיימא צומחת
מי אמר דירת קבלן?!
תכנון
מי אמר דירת קבלן?!
האם בעתיד לא יזדקקו יותר לאדריכלים?
עיצוב
האם בעתיד לא יזדקקו יותר לאדריכלים?
עיצוב דירה צבעונית ומרגשת במרכז תל אביב
תכנון
עיצוב דירה צבעונית ומרגשת במרכז תל אביב
בחזרה לעתיד
חדשנות וטכנולוגיה
בחזרה לעתיד
קול קורא לתחרות ירוקה בכל קנה מידה
תכנון
קול קורא לתחרות ירוקה בכל קנה מידה
עיצוב מסעדת אוגסטין
חדשנות וטכנולוגיה
עיצוב מסעדת אוגסטין
אדריכלות של חוסן: כך הפכו מרכזי הספורט למוקד קהילתי חדש
אדריכלות
אדריכלות של חוסן: כך הפכו מרכזי הספורט למוקד קהילתי חדש
פריט אחד שמשנה את כל הבית
עיצוב
פריט אחד שמשנה את כל הבית
הכל בשביל האורחים - הבית שמארח בקביעות חברי כנסת וזמרים!
אדריכלות
הכל בשביל האורחים - הבית שמארח בקביעות חברי כנסת וזמרים!
חדר משלנו
תכנון
חדר משלנו
לגור ירוק בישראל
תכנון
לגור ירוק בישראל
ביבי סק, מעצב רב תחומי, שופט אורח בתערוכת "ריהוטים 2015"
תכנון
ביבי סק, מעצב רב תחומי, שופט אורח בתערוכת "ריהוטים 2015"
פרויקט שנתפר על פי מידות הלקוח
אדריכלות
פרויקט שנתפר על פי מידות הלקוח
פותחים דלת!
עיצוב
פותחים דלת!
ארוחת בוקר עם מונדריאן
תכנון
ארוחת בוקר עם מונדריאן
חדשות וחידושים - 125
עיצוב
חדשות וחידושים - 125
שילובי חומרים בעיצוב בית פרטי
אדריכלות
שילובי חומרים בעיצוב בית פרטי
עיר פרבר
תכנון
עיר פרבר
שבי ציון - מתנוסס באוויר
תכנון
שבי ציון - מתנוסס באוויר
מה חשוב לדעת לפני קניית תריסים חדשים לבית שעובר שיפוץ?
חדשנות וטכנולוגיה
מה חשוב לדעת לפני קניית תריסים חדשים לבית שעובר שיפוץ?
עיצוב בנייר
תכנון
עיצוב בנייר
מהפכה של ממש
אדריכלות
מהפכה של ממש
תכנון מא' עד ת'
אדריכלות
תכנון מא' עד ת'
במזל דגים
עיצוב
במזל דגים
עיצוב דירה בנגיעות של סגול
תכנון
עיצוב דירה בנגיעות של סגול
פואטיקה עם קוריאן
תכנון
פואטיקה עם קוריאן
שיק מחויך
תכנון
שיק מחויך
ברזים וכיורי מטבח
תכנון
ברזים וכיורי מטבח
האדריכל: שחר לויפר
אדריכלות
האדריכל: שחר לויפר
הפנטהאוז מדהים, וחדר הרחצה וואו
תכנון
הפנטהאוז מדהים, וחדר הרחצה וואו
מודרני, אמריקני, אורבני- דירה במגדלי W PRIME
תכנון
מודרני, אמריקני, אורבני- דירה במגדלי W PRIME
מיתוג וזהות תאגידית: עיצוב משרד עבור שטראוס
חדשנות וטכנולוגיה
מיתוג וזהות תאגידית: עיצוב משרד עבור שטראוס
ביה"ס לצילום מוסררה - שימור מבנה היסטורי
תכנון
ביה"ס לצילום מוסררה - שימור מבנה היסטורי
הום סטיילינג - 'אימג'בנק'
עיצוב
הום סטיילינג - 'אימג'בנק'
מרפסת מול מרפסת
תכנון
מרפסת מול מרפסת
חיבורים במרחב
תכנון
חיבורים במרחב
עיצוב פנים יצירתי- גם במבנים מהמאה ה-19
אדריכלות
עיצוב פנים יצירתי- גם במבנים מהמאה ה-19
פעם והיום
אדריכלות
פעם והיום
להאיר את הבית
אדריכלות
להאיר את הבית
מערכות שינה - חידושים ועיצובים
עיצוב
מערכות שינה - חידושים ועיצובים
טוסקנה זה כאן
תכנון
טוסקנה זה כאן
סובב עולם- תערוכות עיצוב ואדריכלות בעולם
אדריכלות
סובב עולם- תערוכות עיצוב ואדריכלות בעולם
במשרד כמו בבית
חדשנות וטכנולוגיה
במשרד כמו בבית
בעקבות הקיר...
אדריכלות
בעקבות הקיר...
האדריכלית: מרים גורן
אדריכלות
האדריכלית: מרים גורן
דירה קטנה - תכנון גדול: דירת 60 מ"ר בתל אביב
תכנון
דירה קטנה - תכנון גדול: דירת 60 מ"ר בתל אביב
רואה את הנולד: מעצבת הפנים שמשלבת ישן וחדש
אדריכלות
רואה את הנולד: מעצבת הפנים שמשלבת ישן וחדש
על הסיפון
עיצוב
על הסיפון
אורבונד – לוחות גבס משופרים בהתאמה מלאה לאופי החלל
חדשנות וטכנולוגיה
אורבונד – לוחות גבס משופרים בהתאמה מלאה לאופי החלל
5 מקומות מסביב לעולם, שנחשבים לפורצי דרך בדיור מוגן
עיצוב
5 מקומות מסביב לעולם, שנחשבים לפורצי דרך בדיור מוגן
בקו החזית
עיצוב
בקו החזית
איך בוחרים נכון ספה לסלון?
תכנון
איך בוחרים נכון ספה לסלון?
מרשם לאפיית הבית הנכון
אדריכלות
מרשם לאפיית הבית הנכון
עיצוב חללים של בית מלון על ידי הבינה המלאכותית בהשראת המעצב שיגרו באן
אדריכלות
עיצוב חללים של בית מלון על ידי הבינה המלאכותית בהשראת המעצב שיגרו באן
בית הסטודנט ע"ש האטר - אונ' חיפה
תכנון
בית הסטודנט ע"ש האטר - אונ' חיפה
נקודת זינוק מבוצרת: תפיסה אדריכלית חדשה לתכנון מוצבי צה"ל
אדריכלות
נקודת זינוק מבוצרת: תפיסה אדריכלית חדשה לתכנון מוצבי צה"ל
עיצוב בתים תוך שימוש נכון באנרגיה
תכנון
עיצוב בתים תוך שימוש נכון באנרגיה