פרטים בונים שלם
תכנון

פרטים בונים שלם

בתהליך שיפוץ שמרביתו התנהל ב"שלט רחוק", ללא ויתור על אף מילימטר ותוך שילוב אלמנטים ופרטים שנוצרו ייעודית, העניקה מעצבת הפנים איזבל עפרה לדירת דופלקס בתל אביב חזות חדשה ומהודקת, יוקרתית אך לא מנקרת עיניים

מבט מכיוון דלת הכניסה אל החלל הציבורי המשלב בשטחו פינת ישיבה מול מטבח פתוח וחובר אל מרפסת גג. חזות אלגנטית וחמימה כאחד נרקמת מריצוף פרקט אלון, תקרה מרחפת עם חריץ תאורה שמלווה את זרימת החלל, פריטי ריהוט אנינים ווילונות המשלימים את המראה. פרקט: "נגב" ספה ושולחן צד "טולמנ'ס", שטיח: ג'זפון, שולחן קפה: אסא לוונטל ננו פייבר, וילונות: שאנל מור.

מבט מכיוון דלת הכניסה אל החלל הציבורי המשלב בשטחו פינת ישיבה מול מטבח פתוח וחובר אל מרפסת גג. חזות אלגנטית וחמימה כאחד נרקמת מריצוף פרקט אלון, תקרה מרחפת עם חריץ תאורה שמלווה את זרימת החלל, פריטי ריהוט אנינים ווילונות המשלימים את המראה. פרקט:

מבט מכיוון דלת הכניסה אל החלל הציבורי המשלב בשטחו פינת ישיבה מול מטבח פתוח וחובר אל מרפסת גג. חזות אלגנטית וחמימה כאחד נרקמת מריצוף פרקט אלון, תקרה מרחפת עם חריץ תאורה שמלווה את זרימת החלל, פריטי ריהוט אנינים ווילונות המשלימים את המראה. פרקט: "נגב" ספה ושולחן צד "טולמנ'ס", שטיח: ג'זפון, שולחן קפה: אסא לוונטל ננו פייבר, וילונות: שאנל מור.

בניין בו שוכנת דירת הדופלקס בתל אביב הוא אמנם חדש יחסית, אך היות והדירה הייתה מושכרת ומעולם לא התגוררו בה דיירים של קבע תהליך העיצוב שבוצע בה עם רכישתה היה מקיף, ממסד לטפחות" אומרת איזבל עפרה ישי, מעצבת פנים והנדסאית אדריכלות שהייתה אמונה עליו.  הפרוגראמה שהוצגה לה הגדירה את הפונקציות המבוקשות- חלל ציבורי מתאים לאירוח, חדר לבן מתבגר, חדר לאירוח וחדר שינה מרווח, אך מעבר לכך היא התייחסה בעיקר לרובד האסתטי "בעל הבית הינו שוחר איכות בעל מודעות גבוהה לאסתטיקה, ומכיוון שבתוקף עבודתו הוא נדרש לנסיעות תכופות עיקר מבוקשו היה שבפרקי הזמן שהוא נמצא בארץ תקבל אותו תחושת הבית שהוא אוהב". בתוך כך, מה שהנחה את איזבל היה לייצר חלל שיעניק את התחושה המבוקשת, כשהיא מתבססת על "למידת" ההעדפות באמצעות הדמיות "כך, למשל, בניגוד לגוונים הבהירים הרווחים היום בארץ, בעל הבית הגדיר במפורש את העדפתו לגוונים כהים ושאינו אוהב ורוצה גון לבן" היא מוסיפה. בשל היעדרויותיו הרבות מרבית התהליך התנהל בסוג של שלט רחוק, כשלאיזבל ניתנה יד חופשית  לממש את שפת העיצוב שגיבשה על סמך זאת- ליצור כמה שיותר תחושת מרחב ולשוות לחלל הידור אנין, וארומה של יוקרה המתבססת על איכות משובחת אך אינה מנקרת עיניים. 

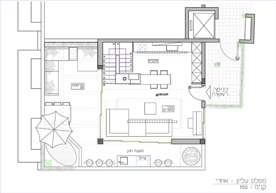
מפלס עליון - לפני השיפוץ

מפלס עליון - לפני השיפוץ

הכניסה לדירה היא מהקומה העליונה, קומת המרחב הציבורי, שממנה יורדים לקומת החדרים, ו"בגדול" נצמד העיצוב של איזבל לחלוקה המקורית תוך ביצוע מספר שינויים: כך, למשל, שינוי מיקומי הפונקציות בחלל הציבורי, הסרת קירות שחסמו את החלל ופגעו בתחושת המרחב והאווריריות אותה ביקשה לייצר, הרחבת פתחים להשגת יתר נוחות, או איחוד שני חדרים בקומת התחתונה לטובת סוויטת שינה מרווחת (ראה תוכניות לפני השיפוץ ואחריו). החלל שאחרי השיפוץ חושף בפני הבאים חזות מרשימה, מהודקת עד אחרון הפרטים שאת מרביתם טוותה איזבל ייעודית עבורו. פלטת צבעים המורכבת מגווני חום כהה מאד, מוקה, נגיעות של שחור וקרם ושילובי עץ אלון, קווי עיצוב "רציפים-ארוכים" וממד של ריחוף מצטרפים למרחב מהוקצע וחמים כאחד: ריצוף כל חללי הבית בוצע בפרקט אלון טבעי, הקירות נצבעו בגווני חום ומוקה-קרם, והתקרה תוכננה כתקרה צפה המשווה נופך קליל ומנצלת את המרווח שנוצר אגב כך להצנעת תאורה וכנקודת מוצא להתקנה נסתרת של וילונות. מוטיב משמעותי במארג העיצובי מהווה התאורה העוטפת את החלל ברכות חמימה- אם כתאורה היקפית סביב פתחים, אם כשהיא משתלבת מתחת לאלמנטים מרחפים, ואם כשהיא מגיעה מתוך מגרעת אורכית שנפרצה בתקרה, מלווה את החלל וכמו מסמנת את ציר זרימתו.

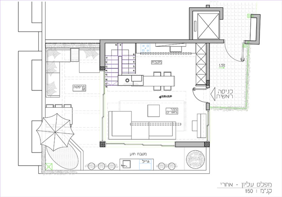
מפלס עליון - אחרי השיפוץ

מפלס עליון - אחרי השיפוץ

הקמין שביחידה הבנויה ממוקם כך שהוא נראה מכל נקודה בחלל, במרפסת, ואף מחלל בגרם המדרגות. משטח זכוכית לטלוויזיה:

הקמין שביחידה הבנויה ממוקם כך שהוא נראה מכל נקודה בחלל, במרפסת, ואף מחלל בגרם המדרגות. משטח זכוכית לטלוויזיה: "נילסן", מערכת מיזוג אוויר: ש.פ. מיזוג אוויר .

החלל הציבורי עוצב בהתאמה לאורחות חייו של בעל הבית, חובב אירוח שמרבה לעשות זאת בזמן שהוא נמצא בארץ. כך, למשל, מערכת הישיבה נדיבת המידות משלבת יחידות מסוגים שונים, ובכלל זה הדום מרופד לו הותאם מגש עץ  כך שהוא יכול לשמש כשולחן בעת הצורך, ושני שולחנות קטנים נוספים מעניקים אף הם גמישות לצורך זה: שולחן קפה קטן המשלב מעמד נירוסטה ומשטח ננו פייבר ייחודי, ושולחן צד בעיצוב קליל. המטבח הפתוח אל הסלון וממוקם מולו מוגדר באמצעות יחידה בנויה גבס ודלפק אכילה עשוי עץ שחובר אליה, כמו חודר אליה ולחלופין מגיח מתוכה. היחידה שנצבעה בחום כהה נבנתה במקום קיר חוצץ נמוך שהיה בדירה והוסר במסגרת השיפוץ, ותכנונה כדו צדדית משרת את שני האזורים: בצדה הפונה לסלון משתלבים בה זכוכית שחורה עם מסך טלוויזיה וקמין בחלקה התחתון, ובצדה הפונה למטבח היא משרתת צרכי אחסון. 

מרפסת הגג הנשקפת מהחלל הציבורי: פינת חמד בה משתלבים אזור זולה, פינת אוכל, ג

מרפסת הגג הנשקפת מהחלל הציבורי: פינת חמד בה משתלבים אזור זולה, פינת אוכל, ג'קוזי מפנק ומטבח חוץ מאובזר בכל הפונקציות הנדרשות. ריהוט חוץ: "פנטהאוז", כדים: "דקו כד", קמין נייד: "הרברט", צמחייה: Livingwall.

יחידה דו צדדית מרחפת משרתת את אזורי הסלון והמטבח ומכילה גם קמין, ודלפק אכילה ה

יחידה דו צדדית מרחפת משרתת את אזורי הסלון והמטבח ומכילה גם קמין, ודלפק אכילה ה"חודר" אליה מגדיר את שטח המטבח ואף מהווה גם חלופה לפינת אוכל "ממוסדת". חזיתות הארונות בגימור צבע בתנור בגון מוקה, ומשטח אבן קיסר בו מוטמעים פולי קפה מחפה גם חלק מהקיר שיתרת שטחו נצבע בגון חום כהה תואם. מכשירי החשמל משתלבים בתוך יחידת קיר. מטבח: "סמל".

 אזור המטבח מאופיין בתצורת האות ר' וכולל יחידת קיר המכילה אינטגראלית מכשירי החשמל ויחידות נמוכות, וחזיתות צבע בתנור בגון מוקה משתלבות בו עם משטח אבן קיסר חום עם פולי קפה המוטמעים בתוכו. המשטח "מטפס" מעלה ומחפה גם חלק מהקיר שמעליו, כאשר יתר שטחו נצבע בגון חום כהה ושני מדפי עץ אלון המותקנים עליו מתכתבים חומרית עם דלפק האכילה. בהיעדר פינת אוכל "מוצהרת" משמש הדלפק גם לצורך זה, כשממעל מלווים אותו 4 גופי תאורה שחורים בגדלים שונים מעוצבים כגלילים שחללם הפנימי נצבע בזהב ולבן. את הפתחים הגדולים הסובבים את החלל מעטרים וילונות עשירים המשלבים אריגים אטומים בגון חום כהה ואריגים שקופים במרקם רשת בגון קרם-שמפניה, ונוכחותם הרכה משלימה בו מראה מדויק ללא פשרות. כשהוילונות מוסטים, נחשפת המרפסת הצופה אל נוף הסביבה, אשר ברוח האירוח של החלל הציבורי עוצבה כפינת חמד הכוללת את כל הפונקציות שיש בידן להנעים את השהייה בה: פינת זולה עם קיר בזלת עליו משתרגת צמחייה בשילוב תאורה, ג'קוזי מפנק, כורסאות שיזוף, מטבח חיצוני מאובזר ואזור הסבה. 

יחידה דו צדדית מרחפת משרתת את אזורי הסלון והמטבח ומכילה גם קמין, ודלפק אכילה ה

יחידה דו צדדית מרחפת משרתת את אזורי הסלון והמטבח ומכילה גם קמין, ודלפק אכילה ה"חודר" אליה מגדיר את שטח המטבח ואף מהווה גם חלופה לפינת אוכל "ממוסדת". חזיתות הארונות בגימור צבע בתנור בגון מוקה, ומשטח אבן קיסר בו מוטמעים פולי קפה מחפה גם חלק מהקיר שיתרת שטחו נצבע בגון חום כהה תואם. מכשירי החשמל משתלבים בתוך יחידת קיר. מטבח: "סמל".

מבט מבעד מעקה הזכוכית השקוף של חלל המדרגות אל עבר המטבח: תאורה סמויה משתלבת מעל היחידה הבנויה ומתחתיה.

מבט מבעד מעקה הזכוכית השקוף של חלל המדרגות אל עבר המטבח: תאורה סמויה משתלבת מעל היחידה הבנויה ומתחתיה.

 גרם המדרגות המוביל לקומה התחתונה ממוקם כשהיה בנקודת המפגש בין "סוף" המטבח והיציאה למרפסת, אך תוכנן מחדש עם מדרגות עץ אלון, והקיר שתחם אותו הוסר והומר במעקה זכוכית שקוף ה"פותח" את החלל, מדגיש את הקשר בין שתי הקומות, ואף מאפשר לעולים/יורדים לחוות את מראה הקמין הנחשף מכל נקודה במרחב ואף מהמרפסת.  

הקמין שביחידה הבנויה ממוקם כך שהוא נראה מכל נקודה בחלל, במרפסת, ואף מחלל בגרם המדרגות. משטח זכוכית לטלוויזיה:

הקמין שביחידה הבנויה ממוקם כך שהוא נראה מכל נקודה בחלל, במרפסת, ואף מחלל בגרם המדרגות. משטח זכוכית לטלוויזיה: "נילסן", מערכת מיזוג אוויר: ש.פ. מיזוג אוויר .

גרם המדרגות שתוכנן מחדש ומבואת החדרים בקומה התחתונה: החלל שמתחת גרם המדרגות מנוצל לצרכי אחסון, שירות (מכונת כביסה ומייבש) ותקשורת. ארון חשמל המכיל את תשתיות החשמל החכם משודרג באמצעות דלתות מראה מרחפות שאף מקנות אשליית גודל. חשמל חכם:

גרם המדרגות שתוכנן מחדש ומבואת החדרים בקומה התחתונה: החלל שמתחת גרם המדרגות מנוצל לצרכי אחסון, שירות (מכונת כביסה ומייבש) ותקשורת. ארון חשמל המכיל את תשתיות החשמל החכם משודרג באמצעות דלתות מראה מרחפות שאף מקנות אשליית גודל. חשמל חכם: "טופ אודיו", גרם מדרגות: "שרון מעקות

העיצוב המוקפד של איזבל "שלא ויתר על אף מילימטר" בדרך למימוש שפה מדויקת הנשענת רבות על משחקי נפחים וגריעות ועבודות נגרות אומן שבוצעו ייעודית, מאפיין גם את קומת החדרים. כך, למשל, החלל המשתרע בפתחה כעין מבואה טופל באורח שהפך אותה מאזור מעבר גרידא לחלל מושקע ומנוצל היטב: הנפח המת תחת המדרגות נוצל לצרכי אחסון, שירות ותקשורת, ובארון החשמל הגדול שמכיל תשתיות של מערכת חשמל חכם הותקנו דלתות מראה מרחפות (מנותקות מהרצפה ומהתקרה) המייצרות תחושה נעימה של מרחב ואווריריות.   

חלל המגורים - לפני השיפוץ

חלל המגורים - לפני השיפוץ

חדרו של הבן  עוצב עם מיטה בנויה כבמת עץ רחבה דיה לשילוב כריות שאף הן נוצרו ייעודית, ווילון המשתלשל בפתחה מאפשר להפריד את אזור שינה מאזור האירוח. בחדר הרחצה המשמש אותו ואת החדר הנוסף בוצעו הריצוף והחיפוי בפלטות דקיקות וגדולות במיוחד בגווני חום כהה וקאמל כשמשחק הגוונים משמש גם להגדרת אזוריו; המקלחון שנתחם בזכוכית אקסטרה קליר מוקם במרכז החלל;  ועיבוי קיר שנדרש להתקנת הניאגרה מקבל הד בדמות עיבוי עליון שנועד להשלמה ויזואלית בלבד. 

מבט מבעד מעקה הזכוכית השקוף של חלל המדרגות אל עבר המטבח: תאורה סמויה משתלבת מעל היחידה הבנויה ומתחתיה.

מבט מבעד מעקה הזכוכית השקוף של חלל המדרגות אל עבר המטבח: תאורה סמויה משתלבת מעל היחידה הבנויה ומתחתיה.

חדרו של הבן: מיטה בנויה כבמת עץ רחבה, ווילונות ש

חדרו של הבן: מיטה בנויה כבמת עץ רחבה, ווילונות ש"סוגרים" עליה מייצרים הפרדה בין אזור השינה ליתר חלל החדר. שפת הצבע מגלמת את הפלטה השלטת בכל הדירה ומשלבת צבעי חום, מוקה, ונגיעות של קרם ושחור.

חללה המרווח של יחידת השינה הוא מרחב המכיל בשטחו אזורי שינה, אחסון, רחצה ועבודה, והכניסה אליו עוברת דרך פתח שהורחב בו הותקנו שתי דלתות גבוהות מהרגיל בקו אפס עם הקיר. אזור השינה מתהדר במיטת במה מרופדת שממדיה הנדיבים מהווים חלופה נוחה לשולחנות לילה ולגב מיטה, ואת החציצה בינו לבין האזורים האחרים מייצרת יחידת ספרייה שעיצובה המקורי משלב מדפים אלכסוניים. בצד הפונה לאזור השינה היא מכילה מסך טלוויזיה, ובצדה השני חובר אליה שולחן כתיבה שצבעו גוון בהתאמה מדויקת לצבעה. על אזור הארונות/הלבשה הסמוך סוגר וילון בלבד לשימור אווריריות, ומראות שהותקנו משני עבריו "מכפילות" את השטח ומעצימות את תחושת המרחב. באזור הרחצה של הסוויטה "הלכה" איזבל עם חיבתו של בעל הבית לבטון באמצעות ריצוף וחיפוי באריחי גרניט פורצלן אפורים במראה טיח, והחלל כולו עוצב בקו המשכי ו"מסודר" במסגרתו משתלבים פריטי נגרות מעץ טבעי עם אלמנטים מבניים, דוגמת עיבוי שנדרש להתקנת הניאגרה של האסלה אשר חובר למדף של יחידת הכיור תוך יצירת מראה שלם. ואמנם, אם לנסות להגדיר את סיפורה של הדירה, דומה כי "מראה שלם" החותר לשלמות ויזואלית הוא אכן המאפיין העולה מכל פינה בה, ומכל פרט קטן כגדול ששולב בחללה. 

גרם המדרגות שתוכנן מחדש ומבואת החדרים בקומה התחתונה: החלל שמתחת גרם המדרגות מנוצל לצרכי אחסון, שירות (מכונת כביסה ומייבש) ותקשורת. ארון חשמל המכיל את תשתיות החשמל החכם משודרג באמצעות דלתות מראה מרחפות שאף מקנות אשליית גודל. חשמל חכם:

גרם המדרגות שתוכנן מחדש ומבואת החדרים בקומה התחתונה: החלל שמתחת גרם המדרגות מנוצל לצרכי אחסון, שירות (מכונת כביסה ומייבש) ותקשורת. ארון חשמל המכיל את תשתיות החשמל החכם משודרג באמצעות דלתות מראה מרחפות שאף מקנות אשליית גודל. חשמל חכם: "טופ אודיו", גרם מדרגות: "שרון מעקות

חדר הרחצה: ריצוף וחיפוי בפלטות דקיקות וגדולות במיוחד בגווני חום כהה וקאמל במשחק גוונים שגם מגדיר את הפונקציות בחלל. המקלחון במרכז תחום בזכוכית אקסטרה קליר, ועיבוי קיר שנדרש להתקנת הניאגרה מושלם ויזואלית באמצעות עיבוי עליון. כלים סניטאריים:

חדר הרחצה: ריצוף וחיפוי בפלטות דקיקות וגדולות במיוחד בגווני חום כהה וקאמל במשחק גוונים שגם מגדיר את הפונקציות בחלל. המקלחון במרכז תחום בזכוכית אקסטרה קליר, ועיבוי קיר שנדרש להתקנת הניאגרה מושלם ויזואלית באמצעות עיבוי עליון. כלים סניטאריים: "חזי בנק" .

חדרו של הבן: מיטה בנויה כבמת עץ רחבה, ווילונות ש

חדרו של הבן: מיטה בנויה כבמת עץ רחבה, ווילונות ש"סוגרים" עליה מייצרים הפרדה בין אזור השינה ליתר חלל החדר. שפת הצבע מגלמת את הפלטה השלטת בכל הדירה ומשלבת צבעי חום, מוקה, ונגיעות של קרם ושחור.

סוויטת השינה המכילה אזורי שינה, אחסון, עבודה ורחצה. מיטת במה מרופדת שממדיה הנדיבים מהווים חלופה נוחה לשולחנות לילה ולגב מיטה, ויחידת ספרייה המכילה מסך טלוויזיה חוצצת בינה לבין אזורי האחסון והעבודה. בצדה השני חובר אליה שולחן כתיבה שצבעו גוון בהתאמה מדויקת לצבעה, על אזור הארונות/הלבשה הסמוך סוגר וילון בלבד, ומראות גדולות משני עבריו

סוויטת השינה המכילה אזורי שינה, אחסון, עבודה ורחצה. מיטת במה מרופדת שממדיה הנדיבים מהווים חלופה נוחה לשולחנות לילה ולגב מיטה, ויחידת ספרייה המכילה מסך טלוויזיה חוצצת בינה לבין אזורי האחסון והעבודה. בצדה השני חובר אליה שולחן כתיבה שצבעו גוון בהתאמה מדויקת לצבעה, על אזור הארונות/הלבשה הסמוך סוגר וילון בלבד, ומראות גדולות משני עבריו "מכפילות" את השטח ומעצימות את תחושת המרחב. ריהוט: נטורה"

חדר הרחצה: ריצוף וחיפוי בפלטות דקיקות וגדולות במיוחד בגווני חום כהה וקאמל במשחק גוונים שגם מגדיר את הפונקציות בחלל. המקלחון במרכז תחום בזכוכית אקסטרה קליר, ועיבוי קיר שנדרש להתקנת הניאגרה מושלם ויזואלית באמצעות עיבוי עליון. כלים סניטאריים:

חדר הרחצה: ריצוף וחיפוי בפלטות דקיקות וגדולות במיוחד בגווני חום כהה וקאמל במשחק גוונים שגם מגדיר את הפונקציות בחלל. המקלחון במרכז תחום בזכוכית אקסטרה קליר, ועיבוי קיר שנדרש להתקנת הניאגרה מושלם ויזואלית באמצעות עיבוי עליון. כלים סניטאריים: "חזי בנק" .

יחידת הספרייה שעוצבה ייעודית עם מדפים אלכסוניים המייצרים עניין שונה. נגרות ספרייה, דלתות פנים, חדרי ארונות ורחצה:

יחידת הספרייה שעוצבה ייעודית עם מדפים אלכסוניים המייצרים עניין שונה. נגרות ספרייה, דלתות פנים, חדרי ארונות ורחצה: "נגריית בונסאי".

סוויטת השינה המכילה אזורי שינה, אחסון, עבודה ורחצה. מיטת במה מרופדת שממדיה הנדיבים מהווים חלופה נוחה לשולחנות לילה ולגב מיטה, ויחידת ספרייה המכילה מסך טלוויזיה חוצצת בינה לבין אזורי האחסון והעבודה. בצדה השני חובר אליה שולחן כתיבה שצבעו גוון בהתאמה מדויקת לצבעה, על אזור הארונות/הלבשה הסמוך סוגר וילון בלבד, ומראות גדולות משני עבריו

סוויטת השינה המכילה אזורי שינה, אחסון, עבודה ורחצה. מיטת במה מרופדת שממדיה הנדיבים מהווים חלופה נוחה לשולחנות לילה ולגב מיטה, ויחידת ספרייה המכילה מסך טלוויזיה חוצצת בינה לבין אזורי האחסון והעבודה. בצדה השני חובר אליה שולחן כתיבה שצבעו גוון בהתאמה מדויקת לצבעה, על אזור הארונות/הלבשה הסמוך סוגר וילון בלבד, ומראות גדולות משני עבריו "מכפילות" את השטח ומעצימות את תחושת המרחב. ריהוט: נטורה"

חדר הרחצה:  ריצוף וחיפוי באריחי גרניט פורצלן אפורים במראה טיח, ופריטי נגרות מעץ טבעי משתלבים עם אלמנטים מבניים- עיבוי שנדרש להתקנת הניאגרה חובר למדף שמעל הכיור וממשיך וחודר למקלחון תוך יצירת מראה שלם. אף מתלה המגבות עוצב ייעודית בהתאמה. מקלחון:

חדר הרחצה: ריצוף וחיפוי באריחי גרניט פורצלן אפורים במראה טיח, ופריטי נגרות מעץ טבעי משתלבים עם אלמנטים מבניים- עיבוי שנדרש להתקנת הניאגרה חובר למדף שמעל הכיור וממשיך וחודר למקלחון תוך יצירת מראה שלם. אף מתלה המגבות עוצב ייעודית בהתאמה. מקלחון: "מקלחונט".

#fids434- 13#  

חדר הרחצה:  ריצוף וחיפוי באריחי גרניט פורצלן אפורים במראה טיח, ופריטי נגרות מעץ טבעי משתלבים עם אלמנטים מבניים- עיבוי שנדרש להתקנת הניאגרה חובר למדף שמעל הכיור וממשיך וחודר למקלחון תוך יצירת מראה שלם. אף מתלה המגבות עוצב ייעודית בהתאמה. מקלחון:

חדר הרחצה: ריצוף וחיפוי באריחי גרניט פורצלן אפורים במראה טיח, ופריטי נגרות מעץ טבעי משתלבים עם אלמנטים מבניים- עיבוי שנדרש להתקנת הניאגרה חובר למדף שמעל הכיור וממשיך וחודר למקלחון תוך יצירת מראה שלם. אף מתלה המגבות עוצב ייעודית בהתאמה. מקלחון: "מקלחונט".

חלל המגורים - לפני השיפוץ

חלל המגורים - לפני השיפוץ

מפלס תחתון - לפני השיפוץ

מפלס תחתון - לפני השיפוץ

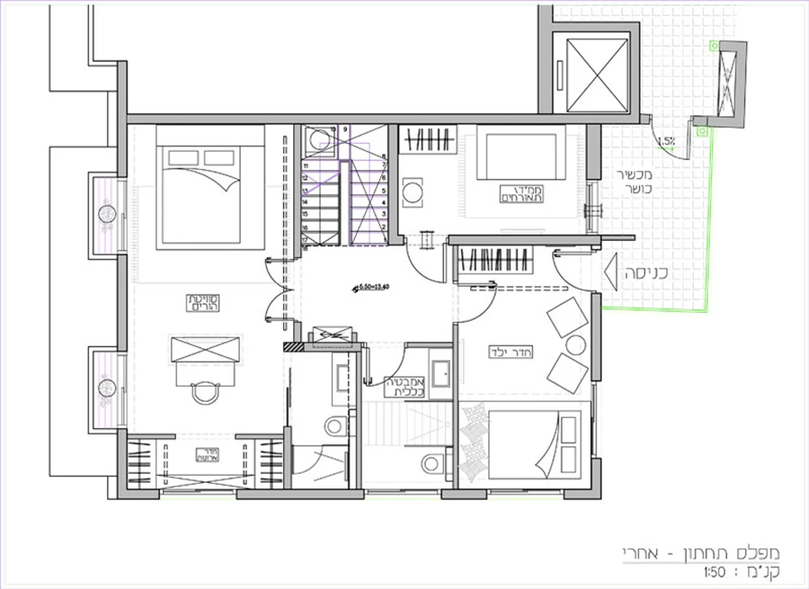
מפלס עליון - אחרי השיפוץ

מפלס עליון - אחרי השיפוץ

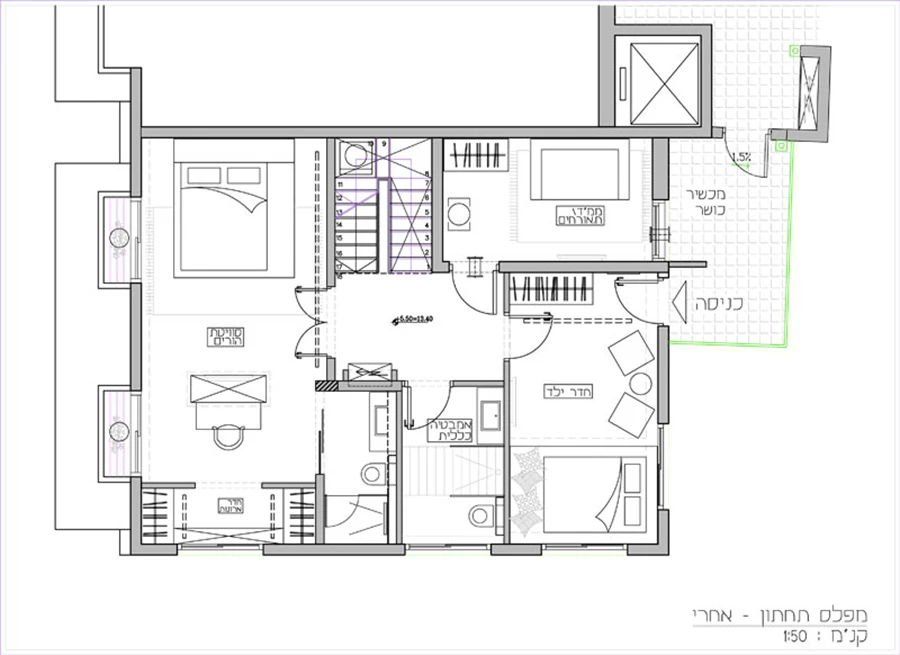
מפלס תחתון - אחרי השיפוץ

מפלס תחתון - אחרי השיפוץ

מפלס תחתון - לפני השיפוץ

מפלס תחתון - לפני השיפוץ

מפלס תחתון - אחרי השיפוץ

מפלס תחתון - אחרי השיפוץ

מרפסת הגג הנשקפת מהחלל הציבורי: פינת חמד בה משתלבים אזור זולה, פינת אוכל, ג

מרפסת הגג הנשקפת מהחלל הציבורי: פינת חמד בה משתלבים אזור זולה, פינת אוכל, ג'קוזי מפנק ומטבח חוץ מאובזר בכל הפונקציות הנדרשות. ריהוט חוץ: "פנטהאוז", כדים: "דקו כד", קמין נייד: "הרברט", צמחייה: Livingwall.


כתבות נוספות

קלאסיקה מודרנית - עיצוב ותכנון בית פרטי
אדריכלות
קלאסיקה מודרנית - עיצוב ותכנון בית פרטי
10 דרכים להתארגן למעבר דירה בקיץ
תכנון
10 דרכים להתארגן למעבר דירה בקיץ
INNOVATION
תכנון
INNOVATION
תערוכת Maison & Objet ינואר 2011
אדריכלות
תערוכת Maison & Objet ינואר 2011
הקופסא הפתוחה
אדריכלות
הקופסא הפתוחה
בין הספרים לחפצי הנוי: איך מוצאים את האיזון נכון בספרייה הביתית
עיצוב
בין הספרים לחפצי הנוי: איך מוצאים את האיזון נכון בספרייה הביתית
הגיאומטריה שמחברת בין הדיירים לטבע
אדריכלות
הגיאומטריה שמחברת בין הדיירים לטבע
שקט מתקדמים
תכנון
שקט מתקדמים
ביום בהיר אפשר לראות לנצח
חומרים
ביום בהיר אפשר לראות לנצח
לגור בעיר ולהרגיש בכפר
אדריכלות
לגור בעיר ולהרגיש בכפר
עיצוב פנים והסטייל החדש
אדריכלות
עיצוב פנים והסטייל החדש
החלפת מטבח – המדריך למשתדרג
תכנון
החלפת מטבח – המדריך למשתדרג
תערוכת Habitat Valencia
אדריכלות
תערוכת Habitat Valencia
נראה כמו אוהל מבחוץ, אך הוא בית מבפנים
תכנון
נראה כמו אוהל מבחוץ, אך הוא בית מבפנים
זמן להתרענן
תכנון
זמן להתרענן
עיצוב בית כהרמוניה בין ניגודים
אדריכלות
עיצוב בית כהרמוניה בין ניגודים
ליהנות בבית, לבלות בגינה
אדריכלות
ליהנות בבית, לבלות בגינה
איך לבחור גננים מומלצים לשדרוג הגינה הביתית?
אדריכלות
איך לבחור גננים מומלצים לשדרוג הגינה הביתית?
עיצוב גינה אורבאנית כבר אינו חלום
אדריכלות
עיצוב גינה אורבאנית כבר אינו חלום
חלל המגורים: רואים שקוף, רואים רחוק
אדריכלות
חלל המגורים: רואים שקוף, רואים רחוק
האם הבינה המלאכותית תחליף אתכם במטבח?
טכנולוגיה
האם הבינה המלאכותית תחליף אתכם במטבח?
השלם עולה על סך כל חלקיו
אדריכלות
השלם עולה על סך כל חלקיו
קבוצת אלומיניום קונסטרקשיין: העתיד כבר כאן
עיצוב
קבוצת אלומיניום קונסטרקשיין: העתיד כבר כאן
מסע בעקבות האדריכלות יוצאת הדופן בליסבון
אדריכלות
מסע בעקבות האדריכלות יוצאת הדופן בליסבון
במבט ראשון  חלק ב' מתוך מגזין 128
עיצוב
במבט ראשון חלק ב' מתוך מגזין 128
הצבעוניות נמצאת בפרטים הקטנים
תכנון
הצבעוניות נמצאת בפרטים הקטנים
קל וחומר - 124
תכנון
קל וחומר - 124
הבית אל צמרות העצים
תכנון
הבית אל צמרות העצים
קירות מרפאים: מה האדריכלות יודעת על טראומה קולקטיבית
אדריכלות
קירות מרפאים: מה האדריכלות יודעת על טראומה קולקטיבית
הגן כחוויית צבע
אדריכלות
הגן כחוויית צבע
האדריכל: צבי מוססקו
אדריכלות
האדריכל: צבי מוססקו
דירה לאחר שיפוץ בהרצליה
תכנון
דירה לאחר שיפוץ בהרצליה
אספרנסה
אדריכלות
אספרנסה
עיצוב ספריה באהבה
תכנון
עיצוב ספריה באהבה
לארח עם טום דיקסון, לחייך עם גו'נתן אדלר
עיצוב
לארח עם טום דיקסון, לחייך עם גו'נתן אדלר
וילה כפרית - בבניין משותף
תכנון
וילה כפרית - בבניין משותף
Lodz Plaza Center
חומרים
Lodz Plaza Center
עיצוב מלון בוטיק לאנשי עסקים, רמת גן. עודד אלוני
עיצוב
עיצוב מלון בוטיק לאנשי עסקים, רמת גן. עודד אלוני
עיצוב מחודש של מרפאה פסיכיאטרית לילד
חומרים
עיצוב מחודש של מרפאה פסיכיאטרית לילד
המהפך המנצנץ של פדני
חומרים
המהפך המנצנץ של פדני
נווה (עבודה ב) מדבר
חומרים
נווה (עבודה ב) מדבר
כשפרסום ועיצוב נפגשים
חומרים
כשפרסום ועיצוב נפגשים
סיקור תערוכת מטבחים במילאנו 2008
תכנון
סיקור תערוכת מטבחים במילאנו 2008
איך הופכים את הגינה לחלק מהבית?
אדריכלות
איך הופכים את הגינה לחלק מהבית?
כאן לא גרים! כאן נופשים
אדריכלות
כאן לא גרים! כאן נופשים
אורבונד – לוחות גבס משופרים בהתאמה מלאה לאופי החלל
חומרים
אורבונד – לוחות גבס משופרים בהתאמה מלאה לאופי החלל
בניין ירוק - ביה"ס ללימודי הסביבה, אונ' ת"א
תכנון
בניין ירוק - ביה"ס ללימודי הסביבה, אונ' ת"א
מה הקשר בין עיצוב בתי המלון בארץ למיתוג אמסטרדם?
עיצוב
מה הקשר בין עיצוב בתי המלון בארץ למיתוג אמסטרדם?
עיצוב פנים יצירתי- גם במבנים מהמאה ה-19
אדריכלות
עיצוב פנים יצירתי- גם במבנים מהמאה ה-19
טיקוזין יושיאוקה - זה בטבע שלו
תכנון
טיקוזין יושיאוקה - זה בטבע שלו
קטנים כגדולים: הדיטיילים בבית הנפלא הזה הם שעושים את כל ההבדל
אדריכלות
קטנים כגדולים: הדיטיילים בבית הנפלא הזה הם שעושים את כל ההבדל
מכלומ - עיצוב חידשוני בר קיימא
תכנון
מכלומ - עיצוב חידשוני בר קיימא
כחול בחוץ ובפנים
תכנון
כחול בחוץ ובפנים
בשם השיגעון
חומרים
בשם השיגעון
איך עיצוב פנים משפיע על תדמית המותג במשרדי פרסום?
אדריכלות
איך עיצוב פנים משפיע על תדמית המותג במשרדי פרסום?
על צפרדעי גורמה ושבעת הגמדים
אדריכלות
על צפרדעי גורמה ושבעת הגמדים
כיצד נבחר את הכיור הנכון?
עיצוב
כיצד נבחר את הכיור הנכון?
חידוש מראה הבית באמצעות צבע הקירות
חומרים
חידוש מראה הבית באמצעות צבע הקירות
המעצבת פטרישיה אורקיולה - ראיון
תכנון
המעצבת פטרישיה אורקיולה - ראיון
מרחב 2011 יוצא מן הכלל - תערוכה
אדריכלות
מרחב 2011 יוצא מן הכלל - תערוכה
סקירת כנס עיצוב בתי מלון ואתרי תיירות 2012
עיצוב
סקירת כנס עיצוב בתי מלון ואתרי תיירות 2012
אלוהים נמצא בפרטים הקטנים (גם בגדולים)
אדריכלות
אלוהים נמצא בפרטים הקטנים (גם בגדולים)
אסלות מעוצבות
תכנון
אסלות מעוצבות
ביבי סק, מעצב רב תחומי, שופט אורח בתערוכת "ריהוטים 2015"
תכנון
ביבי סק, מעצב רב תחומי, שופט אורח בתערוכת "ריהוטים 2015"
לגעת בנוף – מתחמי ספא המכניסים את הסביבה פנימה
אדריכלות
לגעת בנוף – מתחמי ספא המכניסים את הסביבה פנימה
חדשות וחידושים - 123
עיצוב
חדשות וחידושים - 123
צ'רצ'יל והפבורן התארחו בו במאה שעברה - עכשיו המלון בריביירה נפתח מחדש
תכנון
צ'רצ'יל והפבורן התארחו בו במאה שעברה - עכשיו המלון בריביירה נפתח מחדש
יותר ירושלמי מירושלמי
אדריכלות
יותר ירושלמי מירושלמי
טוסקנה זה כאן
תכנון
טוסקנה זה כאן
בית מלון משכנות רות דניאל, הצעה לעיצוב חדרים בבתי מלון: יוליה חנדז'י- Studio Jules, מיכל לייטנר
עיצוב
בית מלון משכנות רות דניאל, הצעה לעיצוב חדרים בבתי מלון: יוליה חנדז'י- Studio Jules, מיכל לייטנר
10 דרכים לתיקון מיתוסי הצבע השגויים בבית שלכם
אדריכלות
10 דרכים לתיקון מיתוסי הצבע השגויים בבית שלכם
נשב בחוץ, כמה יפה הליל...
אדריכלות
נשב בחוץ, כמה יפה הליל...
בית הקשתות - אדריכלות ועיצוב
אדריכלות
בית הקשתות - אדריכלות ועיצוב
מסגור לפתוח- שיפוץ בית פרטי
אדריכלות
מסגור לפתוח- שיפוץ בית פרטי
ECO360
עיצוב
ECO360
דווקא עכשיו, ויותר מתמיד
תכנון
דווקא עכשיו, ויותר מתמיד
חשיפה לצפון
אדריכלות
חשיפה לצפון
לעצב את חלל הבית בסטייל
תכנון
לעצב את חלל הבית בסטייל
תערוכת הפרוייקטים של כנס INNO 2017 - חלק א'
אדריכלות
תערוכת הפרוייקטים של כנס INNO 2017 - חלק א'
לופט כמו לופט
תכנון
לופט כמו לופט
חדשות וחידושים - 124
עיצוב
חדשות וחידושים - 124
עיצוב מלון עסקים הרצליה - קונספט. אדריכל אלכס מייטליס
עיצוב
עיצוב מלון עסקים הרצליה - קונספט. אדריכל אלכס מייטליס
האמן היפני מקוטו אזומה
תכנון
האמן היפני מקוטו אזומה
הדירה הסקנדינבית שנחשבת ליצירת מופת
תכנון
הדירה הסקנדינבית שנחשבת ליצירת מופת
בגליל, מול הנוף
אדריכלות
בגליל, מול הנוף
פסיפס של אהבה
עיצוב
פסיפס של אהבה
מלאכות היד המסורתיות
עיצוב
מלאכות היד המסורתיות
Hotel Plastimum - קונספט עיצוב מלון מפלסטיק ממוחזר. רן ומוריס
עיצוב
Hotel Plastimum - קונספט עיצוב מלון מפלסטיק ממוחזר. רן ומוריס
שיפוץ בית פרטי בשכונה בצפון תל אביב
אדריכלות
שיפוץ בית פרטי בשכונה בצפון תל אביב
מגמות עתידיות באדריכלות ועיצוב פנים
אדריכלות
מגמות עתידיות באדריכלות ועיצוב פנים
עיצוב דלתות בתחום של שיפוץ דירות ובכלל
תכנון
עיצוב דלתות בתחום של שיפוץ דירות ובכלל
6 השראות לעיצוב סלון הבית
תכנון
6 השראות לעיצוב סלון הבית
עיצוב סביבת למידה חינוכית  "בגובה העיניים"
חומרים
עיצוב סביבת למידה חינוכית "בגובה העיניים"
מחממים את מבערי השיווק - פוסט אורח מאת קרנית בן עמי
אדריכלות
מחממים את מבערי השיווק - פוסט אורח מאת קרנית בן עמי
לנשים יש היום יותר מקום בשטח – אבל הדרך עוד ארוכה
אדריכלות
לנשים יש היום יותר מקום בשטח – אבל הדרך עוד ארוכה
משטחי עבודה לבנים למטבח. משעמם? זה רק נדמה לכם
תכנון
משטחי עבודה לבנים למטבח. משעמם? זה רק נדמה לכם
לעצב את גינת הבית בעלויות משתלמות
אדריכלות
לעצב את גינת הבית בעלויות משתלמות
iconic תכנית ידע ושיווק לאדריכלים ומעצבים
אדריכלות
iconic תכנית ידע ושיווק לאדריכלים ומעצבים
קל וחומר - 125
תכנון
קל וחומר - 125
5 מקומות מסביב לעולם, שנחשבים לפורצי דרך בדיור מוגן
עיצוב
5 מקומות מסביב לעולם, שנחשבים לפורצי דרך בדיור מוגן