הדירה הסקנדינבית שנחשבת ליצירת מופת
תכנון

הדירה הסקנדינבית שנחשבת ליצירת מופת

בחסות ובאדיבות: www.freshome.com הדירה הסקנדינבית מתגאה בעיצוב מורכב שיוצר דירה בלתי נשכחת

רחבה מזמינה בכניסה לבית



הדירה ממוקמת ב:"Hvitfeldtsgatam" – רחוב במרכז גטבורג - הדירה הסקנדינבית מתגאה בעיצוב מורכב שיוצר דירה בלתי נשכחת. הדירה הזו שהתגלתה באתר:  Alvhem Brokerage Interior נחשבת ליצירת מופת במונחים של שימוש ופריסת החומר. 

חלל הסלון פתוח וגדול

חלל הסלון פתוח וגדול



מטבח פתוח

מטבח פתוח



למרות שהתמונות מתארות אזור מגורים מרשים עם שפע של מרחב, החלל בעצם מורכב משני חדרי שינה וסלון פתוח גדול שהמטבח משתלב בתוכו. 

הפינה המעניינת ביותר של הדירה היא פינת האוכל

הפינה המעניינת ביותר של הדירה היא פינת האוכל



אור טבעי נכנס לדירה מחלונות שונים שנמצאים בקירות המשופעים, אלמנט שהופך את הדירה למיוחדת ומזמינה.

הפינה המעניינת ביותר של הדירה היא פינת האוכל - פינה זו ממוקמת באזור שהיה בעבר מרפסת סגורה, גימור האבנים המקסים הופך את פינת האוכל לחלל אישי. והם אלו שמבליטים את המראה האלגנטי שלו.

פריטים מעניינים מאמצע המאה מתבלטים לאורך כל החללים הפנימיים של הבית

פריטים מעניינים מאמצע המאה מתבלטים לאורך כל החללים הפנימיים של הבית

 

המסדרון המוביל לחדר השינה

המסדרון המוביל לחדר השינה



קורות עץ יוצרות ניגוד גדול לקירות הלבנים והן גם מוסיפות חמימות לאזור המגורים ולחדרי השינה. 

חדר השינה

חדר השינה



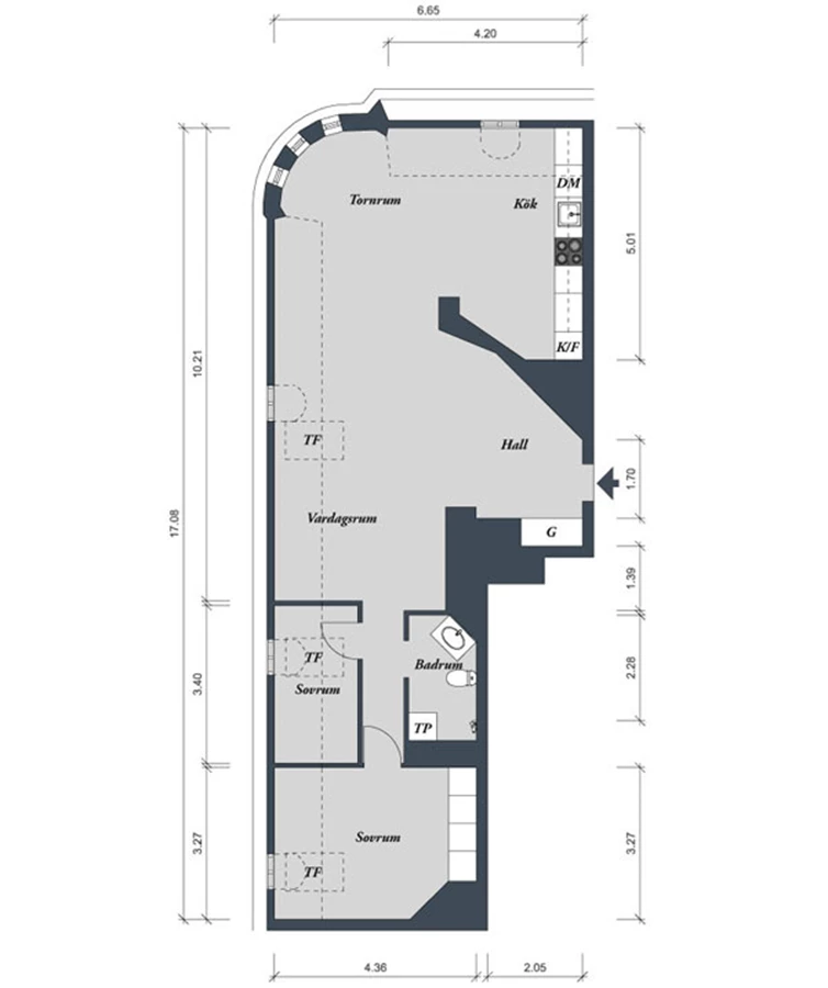
תוכנית הדירה

תוכנית הדירה

 

לכתבה המקורית לחצו כאן

אולי תאהבו גם:

יש הרבה פסטל לאהוב בדירת 45 מר

הבית בקיוטו שלקוח מציורי ילדים


ה:Rabbit Brush Residence בגקסון וויומינג


כתבות נוספות

עיצוב דירה ביבנה הירוקה
אדריכלות
עיצוב דירה ביבנה הירוקה
טאץ' ווד - דק ופרגולה
תכנון
טאץ' ווד - דק ופרגולה
עיצוב גינה לקראת הקיץ
אדריכלות
עיצוב גינה לקראת הקיץ
אלגנטיות מודרנית בניצוחה של מורן קיש
אדריכלות
אלגנטיות מודרנית בניצוחה של מורן קיש
חומרים חדשים - 115
תכנון
חומרים חדשים - 115
לילה צ'ולפא: מעצבת מתוך תחושת שליחות
אדריכלות
לילה צ'ולפא: מעצבת מתוך תחושת שליחות
דיור בר קיימא - מכולות ומגורים
תכנון
דיור בר קיימא - מכולות ומגורים
חומרי המטבח העתידני
תכנון
חומרי המטבח העתידני
עיצוב של שקיפויות ואור
תכנון
עיצוב של שקיפויות ואור
רוצים לדעת מה חדש?
חדשנות וטכנולוגיה
רוצים לדעת מה חדש?
זה לא האיך, זה האיפה: כך תייצרו חלל עבודה יעיל במשרד
חדשנות וטכנולוגיה
זה לא האיך, זה האיפה: כך תייצרו חלל עבודה יעיל במשרד
עיצוב חם - הסטייל של רגע הקפה שלך
תכנון
עיצוב חם - הסטייל של רגע הקפה שלך
Hotel Plastimum - קונספט עיצוב מלון מפלסטיק ממוחזר. רן ומוריס
עיצוב
Hotel Plastimum - קונספט עיצוב מלון מפלסטיק ממוחזר. רן ומוריס
מה עוד חדש?
חדשנות וטכנולוגיה
מה עוד חדש?
מיני ספא בבית
אדריכלות
מיני ספא בבית
שומרים על החום מבפנים
תכנון
שומרים על החום מבפנים
ניצוצות נוסח טוקיו
חדשנות וטכנולוגיה
ניצוצות נוסח טוקיו
עיצוב בירוק , חלל משרד ובית קפה
חדשנות וטכנולוגיה
עיצוב בירוק , חלל משרד ובית קפה
היכונו היכונו לחגיגה - תערוכת אמבינטה 2015 בפתח
אדריכלות
היכונו היכונו לחגיגה - תערוכת אמבינטה 2015 בפתח
חמימות, ניקיון והרמוניה: דירת חמישה חדרים בבאר יעקב
אדריכלות
חמימות, ניקיון והרמוניה: דירת חמישה חדרים בבאר יעקב
חוויה בתערוכת עיצוב בינלאומי בפריז
אדריכלות
חוויה בתערוכת עיצוב בינלאומי בפריז
בתוך החדר האינטימי שלי
אדריכלות
בתוך החדר האינטימי שלי
עיצוב תאורה, חללים, תכשיטים וריהוט- רפאל נבוט עושה הכל ומסביר מה מהות העיצוב
תכנון
עיצוב תאורה, חללים, תכשיטים וריהוט- רפאל נבוט עושה הכל ומסביר מה מהות העיצוב
רמז לבית
אדריכלות
רמז לבית
אירופאי שיק!
אדריכלות
אירופאי שיק!
טעימות מעוצבות
אדריכלות
טעימות מעוצבות
אולם תצוגה של חברת אינובייט
חדשנות וטכנולוגיה
אולם תצוגה של חברת אינובייט
המתנה לרכבת - הצעה לעיצוב תחנת רכבת הקלה של מטרפולין תל אביב: ניר קיסר
אדריכלות
המתנה לרכבת - הצעה לעיצוב תחנת רכבת הקלה של מטרפולין תל אביב: ניר קיסר
לגור בתוך ציור, בצפון הישן
תכנון
לגור בתוך ציור, בצפון הישן
מדפדפים קדימה
תכנון
מדפדפים קדימה
תכנון מחודש לדירת גג בתל אביב
תכנון
תכנון מחודש לדירת גג בתל אביב
לופט כמו לופט
תכנון
לופט כמו לופט
הפסיכולוגיה של הצבעים
חדשנות וטכנולוגיה
הפסיכולוגיה של הצבעים
על הגבול הדק שבין בית כפרי לבית מודרני
אדריכלות
על הגבול הדק שבין בית כפרי לבית מודרני
והבית הזה הוא אני
אדריכלות
והבית הזה הוא אני
חורף וקררררר..
תכנון
חורף וקררררר..
אדריכלות על בסיס עץ אלומיניום ובטון
אדריכלות
אדריכלות על בסיס עץ אלומיניום ובטון
דירה בניחוח ים, חול ותפוזים
אדריכלות
דירה בניחוח ים, חול ותפוזים
כשלא הכל שחור או לבן
אדריכלות
כשלא הכל שחור או לבן
שלל היתרונות הגלומים בגבס
תכנון
שלל היתרונות הגלומים בגבס
בדר אלומיניום: קווי יצור חדישים ומגוונים ומענה לכל פרויקט
עיצוב
בדר אלומיניום: קווי יצור חדישים ומגוונים ומענה לכל פרויקט
פנטהאוז של הצהרה: קלאסיקה עכשווית בגובה אחר
אדריכלות
פנטהאוז של הצהרה: קלאסיקה עכשווית בגובה אחר
גם מניחים תשתיות וגם דואגים למערכות האקולוגיות
אדריכלות
גם מניחים תשתיות וגם דואגים למערכות האקולוגיות
מהבית הזה לא תרצו לצאת!
אדריכלות
מהבית הזה לא תרצו לצאת!
הכנס הבינ"ל ה- 3 לעיצוב ותכנון בתי מלון 19.3.2014
תכנון
הכנס הבינ"ל ה- 3 לעיצוב ותכנון בתי מלון 19.3.2014
עיצוב דירה- מה שעיצוב פנים, גם אם חלקי, יכול לעשות
תכנון
עיצוב דירה- מה שעיצוב פנים, גם אם חלקי, יכול לעשות
דשא סינטטי - ירוק ואקולוגי
אדריכלות
דשא סינטטי - ירוק ואקולוגי
Fcity מיצב תקשורת במציאות מרושתת/ מקוונת
אדריכלות
Fcity מיצב תקשורת במציאות מרושתת/ מקוונת
וילת הוואטס-אפ
אדריכלות
וילת הוואטס-אפ
פביליון וגשר סרגוסה, ספרד
אדריכלות
פביליון וגשר סרגוסה, ספרד
תערוכת הרהיטים מילאנו 2010
אדריכלות
תערוכת הרהיטים מילאנו 2010
מקומפלקס קבלני לוילה משודרגת
אדריכלות
מקומפלקס קבלני לוילה משודרגת
מחושך לאור: יצירת אמנות בלב הבית
אדריכלות
מחושך לאור: יצירת אמנות בלב הבית
הרמוניה בתנועה, הצעה לעיצוב הרכבת הקלה של מטרופולין תל אביב. מתי חרותי
אדריכלות
הרמוניה בתנועה, הצעה לעיצוב הרכבת הקלה של מטרופולין תל אביב. מתי חרותי
בידוד חיצוני בטוח כקו הגנה ראשון למבנה
עיצוב
בידוד חיצוני בטוח כקו הגנה ראשון למבנה
בית הקשתות - אדריכלות ועיצוב
אדריכלות
בית הקשתות - אדריכלות ועיצוב
מסגננים חדרי רחצה
אדריכלות
מסגננים חדרי רחצה
מתחם הממגורות - חנות קונספט קנה קש
חדשנות וטכנולוגיה
מתחם הממגורות - חנות קונספט קנה קש
עיצוב ושיפוץ בית - בחוץ המאה ה-19, בפנים המאה ה-21
אדריכלות
עיצוב ושיפוץ בית - בחוץ המאה ה-19, בפנים המאה ה-21
המעבדה של המעטפת האמורפית / מעטפת שיוצרת בקרת אקלים משתנה
עיצוב
המעבדה של המעטפת האמורפית / מעטפת שיוצרת בקרת אקלים משתנה
חיבור בין עולמות: בית של אור, עץ ונוף
אדריכלות
חיבור בין עולמות: בית של אור, עץ ונוף
70 שנות עיצוב ואדריכלות
עיצוב
70 שנות עיצוב ואדריכלות
כמה זה 6X8?
עיצוב
כמה זה 6X8?
טרנדים וחדשנות בעולם הקרמיקה: מבט מקרוב
חדשנות וטכנולוגיה
טרנדים וחדשנות בעולם הקרמיקה: מבט מקרוב
רצף זהוב
תכנון
רצף זהוב
שקט מתקדמים
תכנון
שקט מתקדמים
אושרי גונן מעצבת את הנשימה: מרחבי WELLNESS כתגובה למציאות
חדשנות וטכנולוגיה
אושרי גונן מעצבת את הנשימה: מרחבי WELLNESS כתגובה למציאות
Si -51 - צורי גואטה, תערוכה
אדריכלות
Si -51 - צורי גואטה, תערוכה
"צעצוע" - תערוכה בנושא צעצועים
אדריכלות
"צעצוע" - תערוכה בנושא צעצועים
הזוכים בתחרות כנס בנייה ירוקה 2013
תכנון
הזוכים בתחרות כנס בנייה ירוקה 2013
שתיים ביחד  וכל אחת לחוד
תכנון
שתיים ביחד וכל אחת לחוד
ידידותי לכיס נעים למראה
תכנון
ידידותי לכיס נעים למראה
הסלון לאנין הטעם הישראלי
תכנון
הסלון לאנין הטעם הישראלי
עיצוב חללים של בית מלון על ידי הבינה המלאכותית בהשראת המעצב קארים ראשיד
אדריכלות
עיצוב חללים של בית מלון על ידי הבינה המלאכותית בהשראת המעצב קארים ראשיד
הדופלקס שלא תרצו לצאת ממנו.. והגג וואו
תכנון
הדופלקס שלא תרצו לצאת ממנו.. והגג וואו
טוויסטים מפתיעים בשחור ולבן
אדריכלות
טוויסטים מפתיעים בשחור ולבן
יצירתיות: 20 הנחיות מעשיות לאדריכלים
אדריכלות
יצירתיות: 20 הנחיות מעשיות לאדריכלים
מקרר מהסרטים
תכנון
מקרר מהסרטים
עיצוב זורם בכפות ידייך
תכנון
עיצוב זורם בכפות ידייך
דיור בר קיימא - טירת הכרמל
תכנון
דיור בר קיימא - טירת הכרמל
תכנון מבנה משרדי
חדשנות וטכנולוגיה
תכנון מבנה משרדי
במעלה הזרם - ברזים איטלקיים בגימורים מרהיבים
אדריכלות
במעלה הזרם - ברזים איטלקיים בגימורים מרהיבים
מכניסים חום לחלל הבית והמשרד
תכנון
מכניסים חום לחלל הבית והמשרד
הריזורט של הכנרת
חדשנות וטכנולוגיה
הריזורט של הכנרת
נציג חברת BIG - ממובילי זירת האדריכלות העכשוית מרצה אורח בכנס בנייה ירוקה 3
חדשנות וטכנולוגיה
נציג חברת BIG - ממובילי זירת האדריכלות העכשוית מרצה אורח בכנס בנייה ירוקה 3
סטודיו "אורבך הלוי" החדש - כאשר השלם גדול מסך חלקיו
חדשנות וטכנולוגיה
סטודיו "אורבך הלוי" החדש - כאשר השלם גדול מסך חלקיו
כל ההוצאות שאתם צריכים לקחת בחשבון כשאתם מעצבים מחדש את הבית
תכנון
כל ההוצאות שאתם צריכים לקחת בחשבון כשאתם מעצבים מחדש את הבית
בשם השיגעון
חדשנות וטכנולוגיה
בשם השיגעון
שקוף שזה זכוכית - מטבחים וארונות
תכנון
שקוף שזה זכוכית - מטבחים וארונות
תערוכת Maison & Objet ינואר 2010
אדריכלות
תערוכת Maison & Objet ינואר 2010
המסעדה המשוגעת
אדריכלות
המסעדה המשוגעת
שתיקת הכרישים
אדריכלות
שתיקת הכרישים
מה היה לנו לפני עידן מגזיני העיצוב המפתים?
חדשנות וטכנולוגיה
מה היה לנו לפני עידן מגזיני העיצוב המפתים?
המעצבת מיכל שלו - ראיון
תכנון
המעצבת מיכל שלו - ראיון
חדשנות בעידן הטכנולוגי, טיפוח יצירתיות אנושית מקוריות בעידן הדיגיטלי
אדריכלות
חדשנות בעידן הטכנולוגי, טיפוח יצירתיות אנושית מקוריות בעידן הדיגיטלי
עיצוב ישראלי במילאנו 2010
אדריכלות
עיצוב ישראלי במילאנו 2010
רשת חנויות יוניק
חדשנות וטכנולוגיה
רשת חנויות יוניק
הנסיכה שאהבה אתגרים
תכנון
הנסיכה שאהבה אתגרים
סוגי הפרקט הפופולריים ביותר לבית ב-2023
תכנון
סוגי הפרקט הפופולריים ביותר לבית ב-2023
בזכות הקורונה? עלייתם של החיפויים החכמים
חדשנות וטכנולוגיה
בזכות הקורונה? עלייתם של החיפויים החכמים