מקצב של שקט
אדריכלות

מקצב של שקט

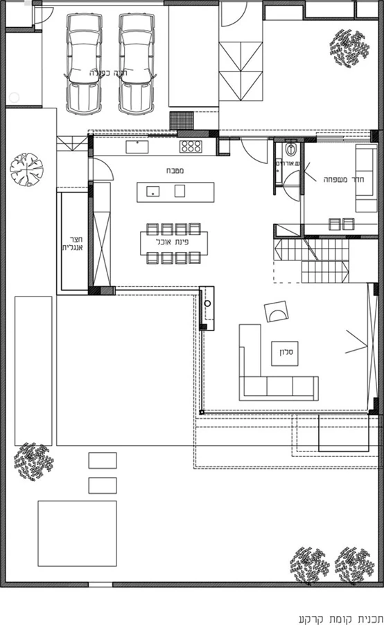
בכניסה לבית שתכננה האדריכלית ענת קרטיס ברמת השרון, "מתחלפת" חזית קדמית אטומה בפתיחות של מרחב פנים אוורירי המנהל קשרים הדוקים עם הגינה והאופק הנחשף מאחוריה, ומאופיין במקצב מסודר המייצר שקט ויזואלי  פרויקט: תכנון ועיצוב פנים של בית פרטי

חלון סרט המשתלב כפתח יחיד במסה קובייתית נקייה ומחופה זכוכית- כך נראית חזיתו הקדמית של הבית הדו קומתי שתכננה האדריכלית ענת קרטיס ברמת השרון. "הבית "יושב על קו האפס" של שטח הפונה לרחוב צפוף וסואן למדי, וכדי להבטיח פרטיות ראויה תוכננה חזיתו הקדמית כאטומה יחסית, כאשר חלון הסרט מספק הצצה כלשהי אל החוץ, לשמירת קשר עין עמו" מסבירה קרטיס את הרציונל שהנחה אותה בגיבוש התכנון.  הבית נבנה על מגרש ששטחו משתרע על 370 מ"ר, ועל מנת לנצלו מיטבית תוכנן מתארו המבני בתצורת L המעניקה תחושת מרחב וחושפת אותו אל האופק הפתוח בחזית האחורית. מעבר לכך, משרתת תצורת ה- L את הקונספט הרעיוני של קרטיס, שנועד, לדבריה "ליצור מרחב פנים הנשען על מינימום קווים ומייצר אגב כך מקצב מסודר ושקט ויזואלי".

2843-01

אזור המטבח ופינת האוכל | פינת אוכל: "הביטאט", מטבח: "סמל".

ואכן, זרימת הפנים מושתתת על צירי אורך ורוחב תלת ממדיים המייצרים עניין ומבטיחים גם זרימת אוויר טובה, והסיפור הנגלה לעין עם הכניסה הינו שונה בתכלית מזה שנראה מהרחוב: אטימות החזית הקדמית מומרת במרחב המאופיין בפתיחות אוורירית, שקיפות ואור, והממד הקובייתי של המבנה נשבר-מרוכך באמצעות קורות פלדה דקורטיביות שכמו מותחות את מעטפתו אל הגינה ומדגישות קו אופקי. הממד האופקי מקבל משנה נוכחות מתריסי רפפות חיצוניים, אשר בתוך הבית פנימה בא לידי ביטוי במשחקים שמייצר האור החודר דרכם ומעשיר את החלל בעניין משתנה בהתאם לשעות היממה.  

קומת הכניסה תחומה בויטרינות גדולות החושפות את נוף הגינה ומייצרות יחסי פנים-חוץ הדוקים, ושטחה מרכז את הפונקציות הציבוריות תוך שמירת נוחות פונקציונאלית, פתיחות והגדרה כאחד-  מחד, נשמרים ביניהן קשרי עין ישירים ומבטים ארוכים, ומאידך כל פונקציה מוגדרת בבירור, עם "ספייס" ראוי לאופייה ומהותה. בתוך כך, פרישת החלל קריאה ופתוחה, אך בה בעת אינה נחשפת באחת ומאופיינת בתחושה כלשהי של גילוי: היישר מול הכניסה ממוקם הסלון, מימינה המטבח ופינת האוכל, ומשמאלה ממוקמים חדר משפחה ושירותי אורחים. גרם מדרגות מוביל אל קומה עליונה המכילה את חדרי השינה והילדים, כמו גם אל קומת מרתף המכילה את חדרי העבודה של בני הזוג.

2843-02

2843-02

חדר העבודה של בעלת הבית בקומת הקרקע

מופעו של החלל נקי ומינימליסטי בעיקרו, אך רחוק מתחושה של קור או ניכור "מינימליזם לא חייב להיות קר. מידתיות בחומרים ובמשקלים היא שם המשחק" אומרת קרטיס על החלל בו האיזון הנשמר בין פתיחות והגדרה מגובה  ע"י איזון חומרי. ריצוף בבטון מוחלק, קירות לבנים ותאורה שמרביתה מושתתת על גופים שקועים, טווים מסגרת חלל סולידית ומאופקת, נוחה להכלה מדודה של אלמנטים מחממים, דוגמת שימוש בעץ, נגיעות טקסטיל צבעוניות, או גופי תאורה דקורטיביים המשתלבים במיקומים ממוקדים. 

הסלון מגלם עיצוב אנין ונינוח כאחד: לצד פריטי ריהוט מסוגננים שנבחרו בקפידה, דוגמת שזלונג שעל עיצובו חתום לה קורבזייה,  משתלב קיר ספרייה היוצק לחללו תוכן אישי חמים, וב"צומת" המפגיש בינו לבין אזור המטבח-פינת אוכל מותקן קמין אינטגראלי שנוכחותו מאצילה על המרחב כולו. 

2843-03

2843-03

יחידת ההורים בקומה העליונה | ריצוף פרקט: "סילבר ווד".

המטבח המרווח ופינת האוכל הממוקמת בנגישות נוחה אליו כמרחב ויזואלי אחד, מהווים אזור משמעותי בבית שבעליו הינם חובבי בישול ואירוח. המטבח הלבן זורם כעין שדרה הנתונה בין משטח כיור הנמשך לכל אורכו מתחת לחלון הסרט של החזית, לבין יחידת אי המשמשת גם כדלפק אכילה. השדרה "מסתיימת" בפתח יציאה לגינה בעדו נחשף נופו המלבב של עץ אשכוליות, ולצדו משתלבת יחידת ארונות גדולה שכמו נטמעת בפני שטחו של הקיר ומכילה שפע של חללי אחסון ומכשירי חשמל. פינת האוכל הסמוכה מאופיינת בעיצוב נקי המשלב שולחן וכיסאות אייקוניים של אימס עם רגלי מתכת דקות-מעודנות, והמרחב כולו פונה אל פתח יציאה רחב לגינה, היישר אל פינת אוכל חיצונית. 

חדר המשפחה, הממוקם מעברה השני של דלת הכניסה אך משמר מבטים ישירים אל אזורי החלל האחרים, נצמד לסמנטיקה שלו כאזור שנועד לשרת את בני הבית- ובעיקר את הילדים- לפעילות פנאי ולשעות של ו"ביחד". כך משתלבות בו עמדות מחשב, טלוויזיה,ספה נוחה להתרווח בתוכה, משחקים וספרים, וכמו כל אזורי הקומה אף הוא נהנה  מפתח יציאה החוצה אל רחבה נעימה.

2843-04

2843-04

אזור הרחצה הנהנה מנוף צמרות העצים | אביזרים סניטאריים: "חזי בנק" 

גרם המדרגות המוביל אל הקומה העליונה משלב מדרגות בחיפוי עץ ומעקה ברזל לבן שעוצב בקו אופקי-נקי, וצדו הגובל בסלון תחום במחיצת זכוכית המשמרת את שקיפות המרחב ואווריריותו. קומה זו מרוצפת בפרקט עץ ומאכלסת 3  חדרי ילדים ויחידת הורים, אותה "עטף" התכנון של קרטיס במרפסת דק עם מעקה זכוכית שקוף, אשר לצד הויטרינות הגדולות שתוחמות אותה מאפשרת ליהנות מנוף החוץ היישר מהמיטה. קיר נגרות שחובר לריצוף העץ תוך יצירת מראה אחיד חמים מחלק את חלל החדר לאזורי שינה ורחצה: צדו האחד משמש כגב למיטה שעיצובה משלב פלטה מרופדת ורגלי פרספקס, וצדו השני מכיל משטח כיור נוח. חללי הרחצה והשירותים נתחמו במחיצות זכוכית, ואף הימצאות בצד זה של החדר פותחת את המבט אל נוף צמרות עצים ירוקות.

2843-05

2843-05

  
    

חזיתו האחורית של הבית | פתחים: "פרפקט"

חדרי העבודה של בני הזוג ממוקמים בנוחות בקומת המרתף, כחללים המאפשרים פרטיות נדרשת ומגלמים את ההעדפות האישיות. כך, בעוד שפת העיצוב בחדר העבודה של בעל הבית משלבת עץ כהה ופריטים שעשו כברת דרך, משרדה של בעלת הבית "ממשיך" בשפתו הנקייה-מסוגננת את שפת הבית כולו. 

מרחב החוץ נגזר ממתאר ה-L של המבנה, שאכן מייצרת תחושת גודל ורווחה. חלקת דשא יפני, עצים, אזור משחקים לילדים, מטבח חיצוני מאובזר למשעי ורחבה מרוצפת דק מייצרים פינת חמד שמשלימה את סיפורו של מארג ביתי מסביר פנים-  מינימליסטי וחמים כאחד, נוח ונעים לדייריו, מוכן ומזומן לאפשר להם לארח בהנאה כמו שהם אוהבים.

2843-06

2843-06



קרדיטים:

פתחים: "פרפקט".

פינת ישיבה: "טולמנ'ס"

קמין: "אורטל".

תאורה: "קרני תכלת".

פינת אוכל: "הביטאט".

מטבח: "סמל".

ריצוף פרקט: "סילבר ווד".

אביזרים סניטאריים: "חזי בנק". 

כתבות נוספות

פתרונות אחסון חכמים לחדר השינה
עיצוב
פתרונות אחסון חכמים לחדר השינה
מגמות וחידושים בריצוף וחיפוי פנים הבית 2021-2022
חומרים
מגמות וחידושים בריצוף וחיפוי פנים הבית 2021-2022
מסודרים
תכנון
מסודרים
להרוויח כסף או להוציא החוצה הדמיה?
עיצוב
להרוויח כסף או להוציא החוצה הדמיה?
הגיאומטריה שמחברת בין הדיירים לטבע
אדריכלות
הגיאומטריה שמחברת בין הדיירים לטבע
איך להתכונן לשיפוץ דירה – 4 טיפים ישימים
תכנון
איך להתכונן לשיפוץ דירה – 4 טיפים ישימים
כך תעצבו את הבית מבלי לקרוע את הכיס
עיצוב
כך תעצבו את הבית מבלי לקרוע את הכיס
בלב היער
אדריכלות
בלב היער
עולם חיפויי הקיר - טרנדים לשנת 2017
עיצוב
עולם חיפויי הקיר - טרנדים לשנת 2017
עיצוב של שקיפויות ואור
תכנון
עיצוב של שקיפויות ואור
בנה ביתך
תכנון
בנה ביתך
פסטיבל העיצוב הבינלאומי בברלין 2010
אדריכלות
פסטיבל העיצוב הבינלאומי בברלין 2010
אדריכלות נוף, גינה בתנועה
אדריכלות
אדריכלות נוף, גינה בתנועה
עיצוב פנים – הפרטים הקטנים, ההבדל הגדול
אדריכלות
עיצוב פנים – הפרטים הקטנים, ההבדל הגדול
גישות חדשות לעיצוב השולחן
תכנון
גישות חדשות לעיצוב השולחן
קיץ שיק
עיצוב
קיץ שיק
לגור בדירת בוטיק
תכנון
לגור בדירת בוטיק
ההתפתחות של חוויית ההמתנה במרפאות ובתי חולים
עיצוב
ההתפתחות של חוויית ההמתנה במרפאות ובתי חולים
האלומיניום שמעצב את עתיד העיצוב התעשייתי
תכנון
האלומיניום שמעצב את עתיד העיצוב התעשייתי
האדריכל ההולנדי האנס ורמולן ישתתף בכנס INNO
תכנון
האדריכל ההולנדי האנס ורמולן ישתתף בכנס INNO
שולחנות כתיבה - שולחן מוכן ומזומן
עיצוב
שולחנות כתיבה - שולחן מוכן ומזומן
הכל בשביל האורחים - הבית שמארח בקביעות חברי כנסת וזמרים!
אדריכלות
הכל בשביל האורחים - הבית שמארח בקביעות חברי כנסת וזמרים!
שיפוץ דירה - עדנה חדשה לדירה ישנה
תכנון
שיפוץ דירה - עדנה חדשה לדירה ישנה
נוסיף עוד קיסם? כך נראית מדורת ל"ג בעומר המודרנית
חומרים
נוסיף עוד קיסם? כך נראית מדורת ל"ג בעומר המודרנית
קרוב רחוק – בית הטרסות בתפיסה של קיימות
תכנון
קרוב רחוק – בית הטרסות בתפיסה של קיימות
דירה מעוצבת לחופשה
תכנון
דירה מעוצבת לחופשה
צ'או מילאנו! מה מחכה לנו ביריד הריהוט הגדול בעולם?
עיצוב
צ'או מילאנו! מה מחכה לנו ביריד הריהוט הגדול בעולם?
חפש את האישה
חומרים
חפש את האישה
בית מלון משכנות רות דניאל, הצעה לעיצוב חדרים בבתי מלון: יוליה חנדז'י- Studio Jules, מיכל לייטנר
עיצוב
בית מלון משכנות רות דניאל, הצעה לעיצוב חדרים בבתי מלון: יוליה חנדז'י- Studio Jules, מיכל לייטנר
שתיים ביחד  וכל אחת לחוד
תכנון
שתיים ביחד וכל אחת לחוד
המעטפת שיודעת למצמץ מול השמש
עיצוב
המעטפת שיודעת למצמץ מול השמש
חלומות פז
עיצוב
חלומות פז
בית עם נוף למרכז סיאטל
אדריכלות
בית עם נוף למרכז סיאטל
סטיילינג בעיצוב חדרי הבית דוגמת עיצוב חדרי ילדים
תכנון
סטיילינג בעיצוב חדרי הבית דוגמת עיצוב חדרי ילדים
לגעת בנוף – מתחמי ספא המכניסים את הסביבה פנימה
אדריכלות
לגעת בנוף – מתחמי ספא המכניסים את הסביבה פנימה
דואט של מינימליזם וצבע
תכנון
דואט של מינימליזם וצבע
תמורות בחיפוי מבנים: זהות מקומית ועמידות לאורך שנים
חומרים
תמורות בחיפוי מבנים: זהות מקומית ועמידות לאורך שנים
תכנון מחודש לדירת גג בתל אביב
תכנון
תכנון מחודש לדירת גג בתל אביב
ארץ ישראל שלי !
תכנון
ארץ ישראל שלי !
פתרונות עיצוב - 110
תכנון
פתרונות עיצוב - 110
עיצוב חללים של בית מלון על ידי הבינה המלאכותית בהשראת המעצב מרסל וונדרס
אדריכלות
עיצוב חללים של בית מלון על ידי הבינה המלאכותית בהשראת המעצב מרסל וונדרס
אסתטיקה וקדמה טכנולוגית נפגשים בברזים
אדריכלות
אסתטיקה וקדמה טכנולוגית נפגשים בברזים
הטרנדים החמים בעיצוב חדרי ישיבות: מה חדש בתל אביב?
חומרים
הטרנדים החמים בעיצוב חדרי ישיבות: מה חדש בתל אביב?
שיפוץ ירוק במבנה משרדים בבאר שבע
תכנון
שיפוץ ירוק במבנה משרדים בבאר שבע
עיצוב מספרה בנס ציונה
חומרים
עיצוב מספרה בנס ציונה
חיפויי עץ אקולוגיים
תכנון
חיפויי עץ אקולוגיים
גאדג'טים והמטבח המודרני
תכנון
גאדג'טים והמטבח המודרני
מקום של כבוד
תכנון
מקום של כבוד
אמנות תחילה
אדריכלות
אמנות תחילה
להיכנס לתוך הארון
אדריכלות
להיכנס לתוך הארון
מהפכה של ממש
אדריכלות
מהפכה של ממש
עיצוב ממקום אחר - 104
חומרים
עיצוב ממקום אחר - 104
סדר על משטח הכיור
תכנון
סדר על משטח הכיור
אפור & פודרה, יופי & סטייל
תכנון
אפור & פודרה, יופי & סטייל
גינה פורחת- מחלום למציאות
אדריכלות
גינה פורחת- מחלום למציאות
תערוכת אמביינטה 2020 - יריד האקססוריז שבו העתיד הופך להווה
תכנון
תערוכת אמביינטה 2020 - יריד האקססוריז שבו העתיד הופך להווה
כשהאור הופך לעיצוב: 70 מעצבים בתערוכת SHINE בניו יורק
חומרים
כשהאור הופך לעיצוב: 70 מעצבים בתערוכת SHINE בניו יורק
עדיף מאוחר
אדריכלות
עדיף מאוחר
להלביש את הבית באופנתיות
אדריכלות
להלביש את הבית באופנתיות
כאן לומדים  אחרת
עיצוב
כאן לומדים אחרת
כך תשרו לביתכם אווירה כפרית רגועה –  המדריך השלם לעיצוב פנים כפרי
אדריכלות
כך תשרו לביתכם אווירה כפרית רגועה – המדריך השלם לעיצוב פנים כפרי
גני הילדים של המחר
תכנון
גני הילדים של המחר
הדילמה הנצחית: עיצוב פרקטי או עיצוב יפה?
עיצוב
הדילמה הנצחית: עיצוב פרקטי או עיצוב יפה?
בואו לדרוך על זה
תכנון
בואו לדרוך על זה
יש ג'ונגל בעבודה שלי
חומרים
יש ג'ונגל בעבודה שלי
עיצוב פנים שמתאים לחיים – ולא לקטלוג: כך מתחילים תהליך עיצוב עם החלטות נכונות
חומרים
עיצוב פנים שמתאים לחיים – ולא לקטלוג: כך מתחילים תהליך עיצוב עם החלטות נכונות
מתאקלמים
תכנון
מתאקלמים
פוליביד: רואים ירוק רואים רחוק
תכנון
פוליביד: רואים ירוק רואים רחוק
הכנס השנתי למנהלי פרוייקטים 2016
אדריכלות
הכנס השנתי למנהלי פרוייקטים 2016
"בית אמיתי" - שיפוץ מרכז שיקומי לנוער
עיצוב
"בית אמיתי" - שיפוץ מרכז שיקומי לנוער
הכוכבים הבלתי מעורערים בבית הישראלי: פתרונות האחסון
עיצוב
הכוכבים הבלתי מעורערים בבית הישראלי: פתרונות האחסון
פתרונות ישיבה לא שגרתיים ופרטיות בחלל הפתוח
חומרים
פתרונות ישיבה לא שגרתיים ופרטיות בחלל הפתוח
עיצוב חללים של בית מלון על ידי הבינה המלאכותית בהשראת המעצב והאדריכל רון ארד
אדריכלות
עיצוב חללים של בית מלון על ידי הבינה המלאכותית בהשראת המעצב והאדריכל רון ארד
איך עושים יבוא אישי של מוצרי גמר מסין
אדריכלות
איך עושים יבוא אישי של מוצרי גמר מסין
מחממים את מבערי השיווק - פוסט אורח מאת קרנית בן עמי
אדריכלות
מחממים את מבערי השיווק - פוסט אורח מאת קרנית בן עמי
מדעי האור
אדריכלות
מדעי האור
אין סופי..., הצעה לעיצוב חדרים בבתי מלון: ציפי לוי - צליל
עיצוב
אין סופי..., הצעה לעיצוב חדרים בבתי מלון: ציפי לוי - צליל
לכאן תרצו להזמין את החברים: גינה עוטפת עם האט־טאב מדליק
אדריכלות
לכאן תרצו להזמין את החברים: גינה עוטפת עם האט־טאב מדליק
הבית השרוף
אדריכלות
הבית השרוף
תכנון ירוק - בית פרטי במושב בשרון
תכנון
תכנון ירוק - בית פרטי במושב בשרון
בזכות המרפסת – קיבלו דירה חדשה
תכנון
בזכות המרפסת – קיבלו דירה חדשה
והבית הזה הוא אני
אדריכלות
והבית הזה הוא אני
בית שמקרב לבבות: איך התכנון האדריכלי מחזק את הביחד המשפחתי?
אדריכלות
בית שמקרב לבבות: איך התכנון האדריכלי מחזק את הביחד המשפחתי?
בית כפרי שווה לב במרכז פארק עירוני בוייטנאם
אדריכלות
בית כפרי שווה לב במרכז פארק עירוני בוייטנאם
הפנטהאוז המפתיע
אדריכלות
הפנטהאוז המפתיע
פרגולה מאלומיניום: יופי ופונקציונליות
תכנון
פרגולה מאלומיניום: יופי ופונקציונליות
5 טיפים לריהוט חכם של חדר השינה שלכם
עיצוב
5 טיפים לריהוט חכם של חדר השינה שלכם
יהודה גדליהו - פרוטרטים מחוטי ברזל
תכנון
יהודה גדליהו - פרוטרטים מחוטי ברזל
מט גאלה 2026: מי גנב למפורסמים את ההצגה?
עיצוב
מט גאלה 2026: מי גנב למפורסמים את ההצגה?
10 דרכים להתארגן למעבר דירה בקיץ
עיצוב
10 דרכים להתארגן למעבר דירה בקיץ
לצאת לאכול בבית. בילוי בעידן החדש
אדריכלות
לצאת לאכול בבית. בילוי בעידן החדש
רמז לבית
אדריכלות
רמז לבית
מפלט אירופאי בתל אביב: כך עוצבה דירתה של מעצבת הפנים ומשפחתה
אדריכלות
מפלט אירופאי בתל אביב: כך עוצבה דירתה של מעצבת הפנים ומשפחתה
טיפים עיצוביים חשובים בעת תכנון מעטפת הבית שלכם
עיצוב
טיפים עיצוביים חשובים בעת תכנון מעטפת הבית שלכם
ורנר פנטון חוזר הביתה: מאה שנה ליצירה שעיצבה את העתיד
חומרים
ורנר פנטון חוזר הביתה: מאה שנה ליצירה שעיצבה את העתיד
אנחנו מגיעים לישראל, תעזרו לנו לבחור בית.. ככה זה מתחיל
אדריכלות
אנחנו מגיעים לישראל, תעזרו לנו לבחור בית.. ככה זה מתחיל
בניה ירוקה - פורצת גבולות
תכנון
בניה ירוקה - פורצת גבולות
עיצוב מחודש לדירת גג
תכנון
עיצוב מחודש לדירת גג
תערוכת הפרוייקטים בכנס INNO 2017 - חלב ב'
חומרים
תערוכת הפרוייקטים בכנס INNO 2017 - חלב ב'
משרדי חברת "קריזמה"
חומרים
משרדי חברת "קריזמה"