אלוהים נמצא בפרטים הקטנים (גם בגדולים)
אדריכלות

אלוהים נמצא בפרטים הקטנים (גם בגדולים)

תכנון הפנים של הבית באזור המרכז נרקם ע"י אנג'לה לנצ'יאנו ושר סלע כמלאכת "הוט קוטור" המושתתת על פרטים ואלמנטים שעוצבו ייעודית עבורו. התוצאה: חלל בהיר ומוקפד המבוסס על זרימה פתוחה ומאופיין בקווים נקיים, בחומריות עשירה אך מעודנת ובפתרונות אסתטיים מקוריים בעיצוב פנים

כחלק מקונספט של פתיחות ועירוב פונקציות: חלל המאחד בשטחו את הסלון ופינת המשפחה/טלוויזיה, הממוקמות בצמוד זו לזו "גב אל גב". קיר גרם המדרגות מודגש באמצעות גונו השונה מיתר החלל )גרז'(, ועוביו מנוצל להתקנת תאורת לד אשר בשעות החשיכה שוטפת את חלל המדרגות באור כחול, תופרת את הקומות ונוסכת אווירה וממד קסום

כחלק מקונספט של פתיחות ועירוב פונקציות: חלל המאחד בשטחו את הסלון ופינת המשפחה/טלוויזיה, הממוקמות בצמוד זו לזו

כחלק מקונספט של פתיחות ועירוב פונקציות: חלל המאחד בשטחו את הסלון ופינת המשפחה/טלוויזיה, הממוקמות בצמוד זו לזו "גב אל גב". קיר גרם המדרגות מודגש באמצעות גונו השונה מיתר החלל )גרז'(, ועוביו מנוצל להתקנת תאורת לד אשר בשעות החשיכה שוטפת את חלל המדרגות באור כחול, תופרת את הקומות ונוסכת אווירה וממד קסום

סוף התכנון הוא, למעשה, בהתחלה”, כך גורסות אנג’לה לנצ’יאנו ושר סלע - אמא ובת, חברות הכי טובות, ושותפות במשרד ” LancianoDesign”. שם הן משלימות זו את זו כדבריהן. "ככל שמכלול הפרטים מחושב מראש ובמדויק, כך נמנעות הפתעות לא צפויות שמעכבות תהליכים או עוגמות נפש בשל אי התאמה כזו או אחרת”. תפיסת עולם זו, שהתגבשה במהלך השנים ולדבריהן מוכיחה את עצמה כל פעם מחדש, הובילה גם את פרויקט תכנון הפנים של הבית השוכן באזור המרכז "כל הפרטים והאלמנטים ששולבו בתכנון, מהגדולים ביותר ועד הקטנים ביותר, נבחרו או עוצבו לפי מידה כבר בתחילת התהליך, כך שגיבושו נסמך על אלמנטים "אמיתיים” ולא על רעיונות בלבד, ואפשר דיוק בביצוע הפרטים והתאמה מושלמת".

מימין: פתיחות וזרימה בחלל קומת הכניסה: גרם המדרגות חשוף במתכוון ומופרד מחלל הסלון באמצעות זכוכית שקופה דרכה נראית התנועה בו, ואף טפח משירותי האורחים נחשף במכוון. חללם תחום במחיצות זכוכית חלבית וכיור מאורך ומרחף )עשוי קוריאן בעיצוב מוזמן( פורץ את אחת המחיצות ומייצר אגב כך פינת נטילת ידיים נפרדת. חציו השני מצוי בחלל הסגור. ריצוף: אריחי שיש ורנה בגימור מלוטש.

מימין: פתיחות וזרימה בחלל קומת הכניסה: גרם המדרגות חשוף במתכוון ומופרד מחלל הסלון באמצעות זכוכית שקופה דרכה נראית התנועה בו, ואף טפח משירותי האורחים נחשף במכוון. חללם תחום במחיצות זכוכית חלבית וכיור מאורך ומרחף )עשוי קוריאן בעיצוב מוזמן( פורץ את אחת המחיצות ומייצר אגב כך פינת נטילת ידיים נפרדת. חציו השני מצוי בחלל הסגור. ריצוף: אריחי שיש ורנה בגימור מלוטש.

אם ציפו הדיירים לפרישת חלל קונבנציונאלית הנשענת על חללים תחומים ומוגדרים, הרי שלנצ’יאנו וסלע הפתיעו אותם עם רעיון שהתבסס דווקא על פתיחות - שמירת כמה שיותר קשר וזרימה בין הקומות, ויצירת קומה ציבורית פתוחה לחלוטין. "הפתיחות” הן אומרות "מייצרת חלל שהסלון בו אינו "פיל לבן” המנותק מחיי הבית, ופינת האוכל אינה בבחינת "פיל” נוסף שניצב זנוח אי שם. האזורים השונים חוברים זה לזה וניזונים זה מזה, והמרחב כולו עונה לסמנטיקה של קומת מגורים ובנוי ל”ביחד” ולפעילות משותפת שמתאימה מאד לאופייה החם והמלוכד של המשפחה”. הרעיון התקבל באהדה, והתכנון ככלל, התגלגל לכדי קשר אמיץ וחברי שחצה גבולות של תכנון ארכיטקטוני בלבד, וכלל מעורבות וליווי של לנצ’יאנו וסלע אף בבחירת חפצי אמנות, כלים ואפילו מערכות מצעים. 

חלל המטבח ופינת האוכל: חזות סלונית הכוללת אפילו וילונות רכים ומותאמת להיותו משמש גם כחלל אירוח. יחידת האי ארוכה במיוחד כשארבעה גופי תאורה שנתלו מעליה מדגישים את ממד האורך, וקצה אחד שלה מעוצב כשולחן אוכל לשימוש יומיומי. שולחן פינת האוכל עשוי פורניר עין ציפור בגימור מבריק ואף הוא מתהדר במידות נדיבות. מטבח:

חלל המטבח ופינת האוכל: חזות סלונית הכוללת אפילו וילונות רכים ומותאמת להיותו משמש גם כחלל אירוח. יחידת האי ארוכה במיוחד כשארבעה גופי תאורה שנתלו מעליה מדגישים את ממד האורך, וקצה אחד שלה מעוצב כשולחן אוכל לשימוש יומיומי. שולחן פינת האוכל עשוי פורניר עין ציפור בגימור מבריק ואף הוא מתהדר במידות נדיבות. מטבח: "סמל", פינת אוכל + כסאות: "ניסו", גופי תאורה: "קמחי תאורה".

צבעוניות מעודנת, פינות ישיבה בעיצוב נינוח, שולחנות קפה מרופדים כעין הדומים, ותאורה שקועה בפיזור ממוקד. גומחה אופקית שנפערה בקיר משמשת להצבת חפצי נוי ובשעות הערב נשטפת באור כחלחל ההופך אותה לתמונה בפני עצמה. ציור: מרלן פרר, ספות בסלון: אריק בן שמחון בורסיה מיוחדת עבור

צבעוניות מעודנת, פינות ישיבה בעיצוב נינוח, שולחנות קפה מרופדים כעין הדומים, ותאורה שקועה בפיזור ממוקד. גומחה אופקית שנפערה בקיר משמשת להצבת חפצי נוי ובשעות הערב נשטפת באור כחלחל ההופך אותה לתמונה בפני עצמה. ציור: מרלן פרר, ספות בסלון: אריק בן שמחון בורסיה מיוחדת עבור "לנציאנו דיזיין"

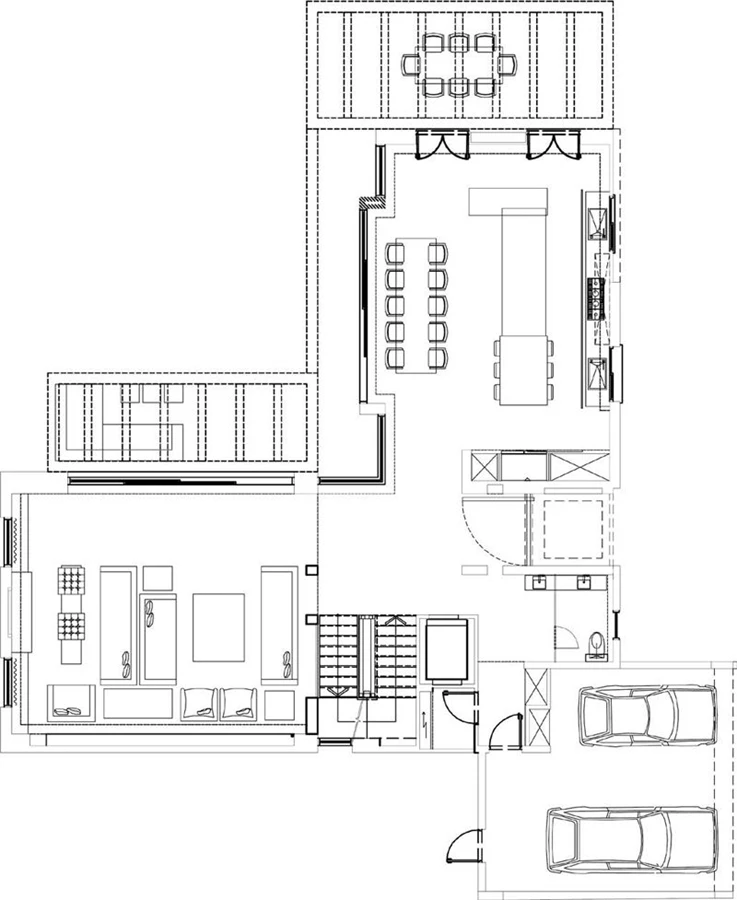
הבית, שמתארו הוא בתצורת האות ר’, מתנשא לשלוש קומות +קומת מרתף: קומת המרתף משמשת כ”קומת בידור” בה מצויים חדר קולנוע וחדר כושר, בקומת הכניסה הציבורית ממוקמות הפונקציות המשותפות, הקומה הראשונה מאכלסת בשטחה ארבעה חדרי ילדים, וקומת הגג העליונה היא קומת ההורים. קומת הכניסה עטופה בפתחים גדולים המקיימים דיאלוג עם החוץ, וזרימת חללה נגזרה ממתאר ה-ר’ של המעטפת, אשר באופן טבעי הגדיר בה שני אזורים החוברים זה לזה בקשרי עין ישירים: צלע אחת מכילה בשטחה את המטבח ופינת האוכל, והשנייה את הסלון ופינת המשפחה. כחלק מקונספט הפתיחות אף גרם המדרגות המוביל לקומות העליונות תוכנן במכוון כאלמנט חשוף שרק משטח זכוכית שקוף מפריד בינו לבין אזור הסלון, ואפילו טפח משירותי האורחים נחשף לעין באמצעות חציו של כיור מרחף המעוצב כעין בלוק מסיבי, שכמו פורץ מתוך מחיצת זכוכית אטומה התוחמת את חללם. בתוך כך מתקבלת פינת נטילת ידיים פתוחה ועצמאית )פונקציה שבעלי הבית ביקשו לשלב בקומה(, כאשר חציו השני של הכיור ממוקם כמתבקש בתוך חלל השירותים הסגור.

יחידת ההורים - רחבת ידיים ובעלת תקרה מעוגלת. חללה מרוצף פרקט והיא נחלקת לאזורי שינה והלבשה באמצעות יחידת נגרות הניצבת במרכזה ומנצלת את נקודת הגובה המקסימאלי. היחידה, בגון גרז

יחידת ההורים - רחבת ידיים ובעלת תקרה מעוגלת. חללה מרוצף פרקט והיא נחלקת לאזורי שינה והלבשה באמצעות יחידת נגרות הניצבת במרכזה ומנצלת את נקודת הגובה המקסימאלי. היחידה, בגון גרז' המתכתב עם גון קיר גרם המדרגות ועיצוב בתצורת פנלים אופקיים, מהווה קיר להצמדת המיטה באזור השינה, וחלק מחללי האחסון באזור ההלבשה - אזור משופע יחידות אחסון אינטגראליות, שבמרכזו ניצבת יחידת מגירות בה משולב גם ספסל מרופד ונוח. מיטה: "סיאם" עבודות נגרות: "בונסאי

את מסגרתו של החלל טווים גוונים בהירים המועדפים על בעלי הבית: ריצוף באריחי שיש ורנה בגימור מלוטש המעניק חזות אחידה ומדמה מראה של בטון אך ללא המגבלות שמייצר השימוש בחומר, וקירות שנצבעו בגון לבן שבור. חריג יחיד במערך הבהיר הוא הקיר המלווה את גרם המדרגות שנצבע בגון גרז’ כהה היוצק ממד שונה, ו”חריגותו” מעצימה עוד יותר נוכח הפתעה נוספת שהוא טומן בחובו: עוביו נוצל להתקנת פס תאורת לד, אשר בשעות הערב מפיץ הילה כחולה המטפסת לכל גובה הבית, "תופרת” את קומותיו באמצעות הצבע ונוסכת אווירה קסומה.

צבעוניות מעודנת, פינות ישיבה בעיצוב נינוח, שולחנות קפה מרופדים כעין הדומים, ותאורה שקועה בפיזור ממוקד. גומחה אופקית שנפערה בקיר משמשת להצבת חפצי נוי ובשעות הערב נשטפת באור כחלחל ההופך אותה לתמונה בפני עצמה. ציור: מרלן פרר, ספות בסלון: אריק בן שמחון בורסיה מיוחדת עבור

צבעוניות מעודנת, פינות ישיבה בעיצוב נינוח, שולחנות קפה מרופדים כעין הדומים, ותאורה שקועה בפיזור ממוקד. גומחה אופקית שנפערה בקיר משמשת להצבת חפצי נוי ובשעות הערב נשטפת באור כחלחל ההופך אותה לתמונה בפני עצמה. ציור: מרלן פרר, ספות בסלון: אריק בן שמחון בורסיה מיוחדת עבור "לנציאנו דיזיין"

מימין: פתיחות וזרימה בחלל קומת הכניסה: גרם המדרגות חשוף במתכוון ומופרד מחלל הסלון באמצעות זכוכית שקופה דרכה נראית התנועה בו, ואף טפח משירותי האורחים נחשף במכוון. חללם תחום במחיצות זכוכית חלבית וכיור מאורך ומרחף )עשוי קוריאן בעיצוב מוזמן( פורץ את אחת המחיצות ומייצר אגב כך פינת נטילת ידיים נפרדת. חציו השני מצוי בחלל הסגור. ריצוף: אריחי שיש ורנה בגימור מלוטש.

מימין: פתיחות וזרימה בחלל קומת הכניסה: גרם המדרגות חשוף במתכוון ומופרד מחלל הסלון באמצעות זכוכית שקופה דרכה נראית התנועה בו, ואף טפח משירותי האורחים נחשף במכוון. חללם תחום במחיצות זכוכית חלבית וכיור מאורך ומרחף )עשוי קוריאן בעיצוב מוזמן( פורץ את אחת המחיצות ומייצר אגב כך פינת נטילת ידיים נפרדת. חציו השני מצוי בחלל הסגור. ריצוף: אריחי שיש ורנה בגימור מלוטש.

את "עירוב” הפונקציות בחלל מדגיש גם האופן בו עוצבו ובו הוצבו פריטי הריהוט בשטחן. כך, לדוגמה, פינת הישיבה של הסלון ופינת הישיבה של אזור הטלוויזיה /משפחה מוקמו "גב אל גב”, כשהן חולקות את אותו מרחב ללא כל "שמירת מרחק” ביניהן, ובאזור המטבח ופינת האוכל הוצב שולחן האוכל במקביל ליחידת האי. באורח זה, מעבר לעקרונות הפתיחות והשיתוף שאכן מתממשים, מתקבלים ערכים מוספים פונקציונאליים, כאשר את שתי פינות הישיבה ניתן לאחד בעת הצורך - בנסיבות של אירוח רב משתתפים למשל, וסמיכות המטבח לפינת האוכל מעניקה נגישות נוחה שכל מארח/ת מודע/ת לחשיבותה. 

בתמונות: חדר הרחצה של יחידת ההורים: שידה אורכית נמוכה שבשני קצות משטחה העליון ניצבים כיורים מעוצבים כעין תיבות רבועות וברזים צדדיים ש

בתמונות: חדר הרחצה של יחידת ההורים: שידה אורכית נמוכה שבשני קצות משטחה העליון ניצבים כיורים מעוצבים כעין תיבות רבועות וברזים צדדיים ש"צומחים" מהרצפה רוכנים לעברם. האזורים הרטובים של החלל מופרדים באמצעות מחיצת זכוכית שעליה מותקנות שתי מראות גדולות ודו צדדיות. הכיורים העשויים קוריאן בוצעו ייעודית בתפירה אישית בהתאם לעיצוב של לנצ'יאנו וסלע. ברזים: "מודי".

חלל המטבח ופינת האוכל: חזות סלונית הכוללת אפילו וילונות רכים ומותאמת להיותו משמש גם כחלל אירוח. יחידת האי ארוכה במיוחד כשארבעה גופי תאורה שנתלו מעליה מדגישים את ממד האורך, וקצה אחד שלה מעוצב כשולחן אוכל לשימוש יומיומי. שולחן פינת האוכל עשוי פורניר עין ציפור בגימור מבריק ואף הוא מתהדר במידות נדיבות. מטבח:

חלל המטבח ופינת האוכל: חזות סלונית הכוללת אפילו וילונות רכים ומותאמת להיותו משמש גם כחלל אירוח. יחידת האי ארוכה במיוחד כשארבעה גופי תאורה שנתלו מעליה מדגישים את ממד האורך, וקצה אחד שלה מעוצב כשולחן אוכל לשימוש יומיומי. שולחן פינת האוכל עשוי פורניר עין ציפור בגימור מבריק ואף הוא מתהדר במידות נדיבות. מטבח: "סמל", פינת אוכל + כסאות: "ניסו", גופי תאורה: "קמחי תאורה".

האני מאמין של לנצ’יאנו וסלע, שדוגל בתכנון מחושב מראש עד אחרון פרטיו, אכן ניכר בכל פינה במרחב החלל שכל חזותו מגלמת קפידה ואסתטיקה: בגימורים מדויקים, בניתוקים שנשמרים במפגשי חומרים ואלמנטים, בכוריאוגרפיה של הקווים, בפיזור מוקפד של גופי תאורה שקועים המייצרים משחקי אור מותאמים למיקומים מוגדרים, בחומריות עשירה אך מעודנת, ובשילובי צבעים המייצרים הרמוניה נעימה לעין. פינות הישיבה מאופיינות בקו נמוך המשדר נינוחות, שולחנות הקפה מרופדים כעין הדומים שיכולים לשמש גם כמושבים בעת הצורך, והשימוש בטקסטילים עשירי מרקמים נוסך רכות ועניין ויזואלי. את המרחב אותו חולקות שתי הפינות מלווה גומחה מלבנית שנמשכת לכל רוחבו של הקיר כשהיא ממתנת את המסה של נוכחותו ומעשירה אותו בממד נוסף, משמשת להצבת חפצי נוי ואמנות, ובשעות החשיכה מפיצה אור כחלחל רך ההופך אותה לתמונה בפני עצמה. 

אזור המטבח ופינת האוכל הוא חלל מזמין ומרווח מאד, שעיצובו הנקי-מסוגנן, ובכלל זה וילונות המעטרים את פתחיו, משווים לו חזות סלונית משהו, מותאמת לייעודו גם כפינת אוכל רשמית. במרכזו ניצבת יחידת אי ארוכה במיוחד, כמעט אינסופית, שקצה אחד שלה עוצב כשולחן אוכל לכל דבר המשמש את בני הבית בחיי יומיום, ואף שולחן פינת האוכל, שעוצב מפורניר עץ ציפור בגימור אפוקסי מבריק, מתנאה במידות מרשימות המאפשרות ל10- איש להסב אליו בנוחות. החללים הפרטיים רוצפו בפרקט, ושפת הבית מתגלה כקוהרנטית ללא יוצא מן הכלל, מאפיינת אף את חדרי הילדים שאינם חורגים מהצבעוניות הבהירה, ואת חדרי הרחצה.

יחידת ההורים - רחבת ידיים ובעלת תקרה מעוגלת. חללה מרוצף פרקט והיא נחלקת לאזורי שינה והלבשה באמצעות יחידת נגרות הניצבת במרכזה ומנצלת את נקודת הגובה המקסימאלי. היחידה, בגון גרז

יחידת ההורים - רחבת ידיים ובעלת תקרה מעוגלת. חללה מרוצף פרקט והיא נחלקת לאזורי שינה והלבשה באמצעות יחידת נגרות הניצבת במרכזה ומנצלת את נקודת הגובה המקסימאלי. היחידה, בגון גרז' המתכתב עם גון קיר גרם המדרגות ועיצוב בתצורת פנלים אופקיים, מהווה קיר להצמדת המיטה באזור השינה, וחלק מחללי האחסון באזור ההלבשה - אזור משופע יחידות אחסון אינטגראליות, שבמרכזו ניצבת יחידת מגירות בה משולב גם ספסל מרופד ונוח. מיטה: "סיאם" עבודות נגרות: "בונסאי

הקומה העליונה, קומת גג שתקרתה מעוגלת, היא הטריטוריה של ההורים - חלל רחב ידיים, שעוצב בחלוקה לאזורים תוך שמירה על זרימה פתוחה ביניהם ללא מחיצות קשיחות. את ההפרדה בין אזורי השינה ואזור הארונות / הלבשה מייצרת יחידת נגרות בגון גרז’ )זהה לגונו של קיר המדרגות(, שעוצבה בתצורת פנלים אופקיים ומוקמה במרכז החלל מעוגל התקרה על מנת לנצל את נקודת הגובה המקסימאלית שלו. צדה האחד משמש "קיר” משענת לגב המיטה וכולל גם שולחנות לילה, וצדה השני הוא חלק מאזור הארונות שמעברים משני צדדיה מובילים אליו: אזור מוקף יחידות אחסון שתוכננו בהתאמה מדויקת לגובהם המשתנה של הקירות שנגזר משיפולי התקרה המעוגלת, ובמרכזו ניצבת יחידה עצמאית שעיצובה משלב מושב מרופד ותאורה שהותקנה תחתיה עוטפת אותה בהילת אור רכה בשעות הערב. 

כמו כל חדרי הרחצה שתוכננו "אחד אחד” תוך שילוב פתרונות יצירתיים ומקוריים וכיורים עשויים קוריאן שעוצבו ייעודית לכל חלל וחלל )דוגמת הכיור הפורץ את קיר הזכוכית בשירותי האורחים(, כך גם חדר הרחצה של יחידת ההורים הוא מרחב מסוגנן, מרשים בפרטיו הייחודיים, שנתפר בתפירה אישית. יחידת הכיור שעוצבה עבורו היא מעין שידה נמוכה וארוכה עשויה עץ שבשני קצות משטחה העליון ניצבים כיורים מעוצבים כקוביות גדולות, וברזי רצפה מסוגננים כמו רוכנים לעברם מהצד. האזורים הרטובים - האמבט והמקלחון, הופרדו מהיחידה באמצעות מחיצת זכוכית, ומראה דו צדדית גדולה שהותקנה תוך הותרת מרווח קטן ממנה משרתת את שני חלקי החלל - את יחידת הכיור ואת האזור הרטוב. 

ככלל, אם נהוג לומר שאלוהים נמצא בפרטים הקטנים, הרי שכל פינה במרחב הבית מאששת את האמרה. לנציאנו וסלע הן אכן "פריקיות” של פרטים ללא פשרות "כל הפרטים הללו, גם הקטנים שבהם, שנהגים כבר בהתחלה על בסיס הפרוגראמה הראשונית” הן אומרות "הם המייצרים את שפתו האסתטית של בית, תוך שהם מקפלים בתוכם גם תשובות פונקציונאליות לצרכים הספציפיים. כך הופך התכנון לסוג של "הוט קוטור” והתוצאה מקבלת גון אישי, איכותי וייחודי, כפי שתפירה טובה לפי מידה מעניקה”.

בתמונות: חדר הרחצה של יחידת ההורים: שידה אורכית נמוכה שבשני קצות משטחה העליון ניצבים כיורים מעוצבים כעין תיבות רבועות וברזים צדדיים ש

בתמונות: חדר הרחצה של יחידת ההורים: שידה אורכית נמוכה שבשני קצות משטחה העליון ניצבים כיורים מעוצבים כעין תיבות רבועות וברזים צדדיים ש"צומחים" מהרצפה רוכנים לעברם. האזורים הרטובים של החלל מופרדים באמצעות מחיצת זכוכית שעליה מותקנות שתי מראות גדולות ודו צדדיות. הכיורים העשויים קוריאן בוצעו ייעודית בתפירה אישית בהתאם לעיצוב של לנצ'יאנו וסלע. ברזים: "מודי".


כתבות נוספות

דרך היין - יקבים מעוצבים בפיימונטה
חומרים
דרך היין - יקבים מעוצבים בפיימונטה
הדבר הגדול הבא
אדריכלות
הדבר הגדול הבא
מתחמי דיור מוגן: השקעה, פינוק וחיבור לקהילה
עיצוב
מתחמי דיור מוגן: השקעה, פינוק וחיבור לקהילה
אצלנו בסלון
אדריכלות
אצלנו בסלון
ברק בעיניים- עיצוב דירה בפלורנטין
תכנון
ברק בעיניים- עיצוב דירה בפלורנטין
THE COLOR WAY
עיצוב
THE COLOR WAY
הבית בגדרה- אלוהי הפרטים הקטנים
אדריכלות
הבית בגדרה- אלוהי הפרטים הקטנים
בחוץ כמו בבית - ריהוט גינה ואביזרים
אדריכלות
בחוץ כמו בבית - ריהוט גינה ואביזרים
חלל המגורים: רואים שקוף, רואים רחוק
אדריכלות
חלל המגורים: רואים שקוף, רואים רחוק
גיליון ספטמבר אוקטובר
עיצוב
גיליון ספטמבר אוקטובר
לעצב זה לפתור בעיות
תכנון
לעצב זה לפתור בעיות
חברת PoloStone פורצת לשוק עם מהפכה בתחום משטחי הפורצלן למטבחים
תכנון
חברת PoloStone פורצת לשוק עם מהפכה בתחום משטחי הפורצלן למטבחים
לעצב חללים, לעצב חיבורים
תכנון
לעצב חללים, לעצב חיבורים
לך אל המדבר
אדריכלות
לך אל המדבר
ריהוט - הגרסה הציונית
חומרים
ריהוט - הגרסה הציונית
תערוכת Batimat 2009
אדריכלות
תערוכת Batimat 2009
איך הופכים דירת קבלן חדשה לפנטהאוז מרהיב על הים?
אדריכלות
איך הופכים דירת קבלן חדשה לפנטהאוז מרהיב על הים?
נגיעה קטנה של עיצוב, שינוי עצמתי בחלל
חומרים
נגיעה קטנה של עיצוב, שינוי עצמתי בחלל
ספרים חדשים באדריכלות ועיצוב - 124
תכנון
ספרים חדשים באדריכלות ועיצוב - 124
אלגנטיות מודרנית בניצוחה של מורן קיש
אדריכלות
אלגנטיות מודרנית בניצוחה של מורן קיש
החזית של גנסלר
תכנון
החזית של גנסלר
סיפורי קירות
תכנון
סיפורי קירות
רהיטים "שמחברים" בין אנשים
חומרים
רהיטים "שמחברים" בין אנשים
מיני ספא בבית
אדריכלות
מיני ספא בבית
חדשות וחידושים - 120
עיצוב
חדשות וחידושים - 120
פתרונות ישיבה מעוצבים לכל פינה בבית
חומרים
פתרונות ישיבה מעוצבים לכל פינה בבית
חומרים חדשים - 112
תכנון
חומרים חדשים - 112
אדריכלית: יעל מן מורג
אדריכלות
אדריכלית: יעל מן מורג
גרין פוינט: ClimateCoating הציפוי הדק עם יעילות אנרגטית "עבה" במיוחד
תכנון
גרין פוינט: ClimateCoating הציפוי הדק עם יעילות אנרגטית "עבה" במיוחד
טיקוזין יושיאוקה - זה בטבע שלו
תכנון
טיקוזין יושיאוקה - זה בטבע שלו
המפקדה שמגדירה את תרבות העבודה
חומרים
המפקדה שמגדירה את תרבות העבודה
החדר של הילדים צריך קצת צבע MBart ? ציורי קיר יעשו לכם את העבודה
חומרים
החדר של הילדים צריך קצת צבע MBart ? ציורי קיר יעשו לכם את העבודה
המנהרה האפלולית של גיא ווליקסון
עיצוב
המנהרה האפלולית של גיא ווליקסון
אולם תצוגה של חברת אינובייט
חומרים
אולם תצוגה של חברת אינובייט
כך השתנה הבית הישראלי ב-78 שנים
עיצוב
כך השתנה הבית הישראלי ב-78 שנים
מרכז מבקרים-עין קשתות (אום אל קנטיר)- אתר מורשת לאומית ברמת הגולן
אדריכלות
מרכז מבקרים-עין קשתות (אום אל קנטיר)- אתר מורשת לאומית ברמת הגולן
הו מה יפים הלילות הקסומים
עיצוב
הו מה יפים הלילות הקסומים
עיצוב מלון עסקים הרצליה - קונספט. אדריכל אלכס מייטליס
עיצוב
עיצוב מלון עסקים הרצליה - קונספט. אדריכל אלכס מייטליס
היום פה, מחר שם
אדריכלות
היום פה, מחר שם
שומרים על הצביון הכפרי של קרית טבעון
תכנון
שומרים על הצביון הכפרי של קרית טבעון
לגור במחסן
אדריכלות
לגור במחסן
עיצוב סביבת למידה חינוכית  "בגובה העיניים"
חומרים
עיצוב סביבת למידה חינוכית "בגובה העיניים"
הסלון כחלון ללב הבית: אריק בן שמחון חושף את סוד הקסם של תרבות האירוח הישראלית
תכנון
הסלון כחלון ללב הבית: אריק בן שמחון חושף את סוד הקסם של תרבות האירוח הישראלית
מלונדון ועד ניו-יורק התערוכות הכי נחשקות לתקופת החגים הבאה עלינו לטובה
אדריכלות
מלונדון ועד ניו-יורק התערוכות הכי נחשקות לתקופת החגים הבאה עלינו לטובה
תור האלומיניום
תכנון
תור האלומיניום
מה קורה כשמוותרים על כל המסדרונות בבית?
אדריכלות
מה קורה כשמוותרים על כל המסדרונות בבית?
מסמל סטטוס לאלמנט (כמעט) חובה
אדריכלות
מסמל סטטוס לאלמנט (כמעט) חובה
איך מתכננים עיצוב חדש למטבח?
תכנון
איך מתכננים עיצוב חדש למטבח?
מאבזרים את עולם המלונאות
עיצוב
מאבזרים את עולם המלונאות
בית גמיש
אדריכלות
בית גמיש
יחסי חוץ ופנים בתכנון בית פרטי
אדריכלות
יחסי חוץ ופנים בתכנון בית פרטי
פופים מטקסטיל ממוחזר
תכנון
פופים מטקסטיל ממוחזר
עיצוב דירה צבעונית ומרגשת במרכז תל אביב
תכנון
עיצוב דירה צבעונית ומרגשת במרכז תל אביב
סדר על משטח הכיור
תכנון
סדר על משטח הכיור
טאץ׳ אחרון לעיצוב: ארבעת כללי הזהב בבחירת וילונות לבית
עיצוב
טאץ׳ אחרון לעיצוב: ארבעת כללי הזהב בבחירת וילונות לבית
האלומיניום שמעצב את עתיד העיצוב התעשייתי
תכנון
האלומיניום שמעצב את עתיד העיצוב התעשייתי
תתארגנו על עצמכם
תכנון
תתארגנו על עצמכם
עיצוב דירות בשיטת "מעריסה לעריסה"
תכנון
עיצוב דירות בשיטת "מעריסה לעריסה"
מוזיאון העיצוב בחולון
חומרים
מוזיאון העיצוב בחולון
70 שנות עיצוב ואדריכלות
עיצוב
70 שנות עיצוב ואדריכלות
חדשות וחידושים - 123
עיצוב
חדשות וחידושים - 123
החיים בצבעים
אדריכלות
החיים בצבעים
Hotel Design Blog - Mondrian Hotel  - הרומן האנגלי שלי חלק 3
עיצוב
Hotel Design Blog - Mondrian Hotel - הרומן האנגלי שלי חלק 3
משרדי חב' "אנגל אינווסטמנט" ומשרדי עו"ד "חת שריד גרובר ספיר-חן לברון"
חומרים
משרדי חב' "אנגל אינווסטמנט" ומשרדי עו"ד "חת שריד גרובר ספיר-חן לברון"
יחיד ומיוחד מאוד
אדריכלות
יחיד ומיוחד מאוד
כשסבא וסבתא מחליטים לשבור את הקירות
תכנון
כשסבא וסבתא מחליטים לשבור את הקירות
שיפוץ דירה בת 72 מ"ר בצפון הישן של תל אביב
תכנון
שיפוץ דירה בת 72 מ"ר בצפון הישן של תל אביב
זמן להתרענן
תכנון
זמן להתרענן
תכנון מחודש לדירת גג בתל אביב
תכנון
תכנון מחודש לדירת גג בתל אביב
החיפויים האלה בונים חזית עיצובית
חומרים
החיפויים האלה בונים חזית עיצובית
בשורת משטחי השיש והאריחים המשושים
חומרים
בשורת משטחי השיש והאריחים המשושים
לעצב את חלל הבית בסטייל
תכנון
לעצב את חלל הבית בסטייל
נקודת אור
חומרים
נקודת אור
מי יזכה באות האדריכלות הישראלית?
אדריכלות
מי יזכה באות האדריכלות הישראלית?
לגור ירוק בישראל
תכנון
לגור ירוק בישראל
ניגודיות עיצובית
עיצוב
ניגודיות עיצובית
הבית של פיטרו הכט
תכנון
הבית של פיטרו הכט
Agro Housing תכנון בר קיימא
תכנון
Agro Housing תכנון בר קיימא
עיצוב מטבחים
חומרים
עיצוב מטבחים
מה יוצא מכביסה וכיסא? כביסא!
עיצוב
מה יוצא מכביסה וכיסא? כביסא!
פביליון וגשר סרגוסה, ספרד
אדריכלות
פביליון וגשר סרגוסה, ספרד
עיצוב פינות אוכל, פינה לי חביבה
אדריכלות
עיצוב פינות אוכל, פינה לי חביבה
כך צמד אדריכלים גורם למסעדה לטייל
חומרים
כך צמד אדריכלים גורם למסעדה לטייל
לב של אדריכלית
אדריכלות
לב של אדריכלית
חיים את החלום! בני זוג חלמו לחיות בבית שירגיש להם בית מלון והתוצאה בדיוק כזו.
אדריכלות
חיים את החלום! בני זוג חלמו לחיות בבית שירגיש להם בית מלון והתוצאה בדיוק כזו.
3 ב 1
אדריכלות
3 ב 1
בזכות הקורונה? עלייתם של החיפויים החכמים
חומרים
בזכות הקורונה? עלייתם של החיפויים החכמים
בית לגדולים שילדים אוהבים
אדריכלות
בית לגדולים שילדים אוהבים
מימד רגשי במרחב האישי
עיצוב
מימד רגשי במרחב האישי
Mama Shelter- Paris
עיצוב
Mama Shelter- Paris
עיצוב עם ערכים
חומרים
עיצוב עם ערכים
גינה לי (אמנם קטנה, אבל) חביבה
אדריכלות
גינה לי (אמנם קטנה, אבל) חביבה
חדשות וחידושים - 117
חומרים
חדשות וחידושים - 117
דירת החלומות הצעירה: בדיוק לפי מידותיהם
תכנון
דירת החלומות הצעירה: בדיוק לפי מידותיהם
"יצרנו מקום פיזי שמוקדש כולו לשיח אדריכלי, להצגת העשייה המקצועית ולמפגש"
אדריכלות
"יצרנו מקום פיזי שמוקדש כולו לשיח אדריכלי, להצגת העשייה המקצועית ולמפגש"
עיצוב חדרי ילדים ונוער
עיצוב
עיצוב חדרי ילדים ונוער
תערוכות בוגרים במחלקות לאדריכלות ועיצוב
תכנון
תערוכות בוגרים במחלקות לאדריכלות ועיצוב
עיצוב דירות ארכיטקטוני –סולרי
תכנון
עיצוב דירות ארכיטקטוני –סולרי
עיצוב דירה בתל אביב - מן הכבד אל הקל
תכנון
עיצוב דירה בתל אביב - מן הכבד אל הקל
שפת תכנון עכשווית באוניברסיטת קורנל, ניו יורק
אדריכלות
שפת תכנון עכשווית באוניברסיטת קורנל, ניו יורק