כל דירה  צריכה  מרפסת...
אדריכלות

כל דירה צריכה מרפסת...

    מעצבת הפנים מאיה האזרחי ביצעה בדירתה שיפוץ מקיף: הוסיפה לחללה הקיים חדר ומרפסת, והפכה אותו למרחב פתוח שבשפת עיצובו הנקייה והמוקפדת משתלבות קריצות היוצקות ממד צעיר וקליל

כשנכנסים לדירתה של מעצבת הפנים מאיה האזרחי ובעומק חלל המגורים רחב הידיים נגלית מרפסת מזמינה המשקיפה אל נופה האורבאני של תל אביב, אפשר בהחלט להבין למה היא מתכוונת כשהיא אומרת "בעצם, מה שרצינו זו מרפסת שלא הייתה לנו בדירתנו הקודמת, והיא זו שהיוותה, למעשה, את אחד השיקולים שהובילו לרכישת הדירה".

#fids434- 1#  

 האמת היא שהמרפסת הנעימה כפי שהיא נחשפת כאן לעין לא הייתה קיימת בדירה, שכללה רק מרפסת צרה מאד שזרמה לכל אורכה ולא הייתה בת שימוש. אך האזרחי זיהתה את הפוטנציאל לייצר ממנה "מרפסת כמו מרפסת", ועובדת קיומה כאן אכן מדברת בעד עצמה כמימושו המוצלח של אותו פוטנציאל, אשר אגב כך אף זיכה את החלל ביתר שקיפות והעצים את נוכחות נוף הסביבה. 

לפני

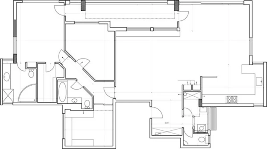
 הדירה, דירת פנטהאוס הממוקמת בבניין מגורים באחת משכונותיה הצפוניות של העיר, משתרעת על שטח של 160 מ"ר, ובעת רכישתה נחלקה לארבעה חדרים. "מצבה ככלל היה טוב והיא אפילו עברה שיפוץ לפני מספר שנים, אבל למרות השטח המרווח חלוקת החלל הייתה "בזבזנית" ולא נוחה".

אחרי

אחרי


 "מבנה הדירה היה גיאומטרי משהו והיא הייתה מרובת זוויות לא ברורות" מוסיפה האזרחי, שביצעה בה שיפוץ מקיף שנועד להתאימה לצרכי משפחתה הצעירה, כאשר המטרה הייתה, לדבריה "להפוך אותה למרחב מגורים נוח, פרקטי ומותאם לילדים, ואף  לנצל את שטחה המרווח באורח טוב יותר תוך שמירה על גמישות לביצוע שינויים עתידיים במידה ויידרשו". 

המטבח: חזיתות לבנות, משטחי העבודה ויחידת האי מקוריאן, וחיפוי קיר בטפט המדמה לוח שחור עליו ניתן לכתוב. יחידת האי הגדולה משמשת גם כשולחן אוכל: בעת הצורך ניתן להצמיד אליה שולחן ולחבר אותם למשטח ארוך דיו לאירוח נוח. גוף התאורה המסוגנן שמשתלשל מעל מעוצב מפורניר עץ.  כסאות מטבח:

המטבח: חזיתות לבנות, משטחי העבודה ויחידת האי מקוריאן, וחיפוי קיר בטפט המדמה לוח שחור עליו ניתן לכתוב. יחידת האי הגדולה משמשת גם כשולחן אוכל: בעת הצורך ניתן להצמיד אליה שולחן ולחבר אותם למשטח ארוך דיו לאירוח נוח. גוף התאורה המסוגנן שמשתלשל מעל מעוצב מפורניר עץ. כסאות מטבח: 'נטורה', נגרות: נגריית רפי. טפט בחיפוי הקיר: MEGA BOARD גוף תאורה מעל האי: 'פרמיטיב'.


במסגרת השיפוץ הוסרו מהדירה כל מחיצות הפנים, וכשחללה נותר בבחינת מעטפת בלבד, חולק שטחה מחדש לחמישה חדרים בפרישה לשני אגפים - ציבורי ופרטי.  בכניסה לדירה מקבלת את פני הבאים מבואה קטנה כפרק מעבר רך מהחוץ אל הפנים, כשבמיקומה היא "מנתבת" את זרימת החלל: האגף הציבורי נפרש מולה ומכיל בשטחו מטבח וסלון עם יציאה למרפסת המיוחלת, שהתקבלה כתוצאה מסגירת המרפסת הצרה כולה בויטרינות עם פרופילי אלומיניום בלגי, כמו  גם מ"נגיסה" של חלק משטח החלל הציבורי וצירופו לשטח המרפסת. האגף הפרטי התעשר בעקבות החלוקה החדשה בחדר נוסף, ובגלגולו הנוכחי הוא מכיל יחידת הורים, חדר ילדים, חדר רחצה, חדר עבודה וחדר נוסף, אשר נכון לעכשיו מהווה חדר משחקים/אירוח. 

  פינת האוכל: עמוד קונסטרוקטיבי ממתכת

פינת האוכל: עמוד קונסטרוקטיבי ממתכת "צומח" מתוך ערוגת חלוקי נחל. עיצוב השולחן משלב משטח במבוק ורגלי מתכת וכיסאות תואמים ומעליו שני גופי תאורה מעוצבים אף הם מקונסטרוקציית מתכת.

הנוף האורבאני  הנשקף מבעד הפתחים הגדולים הכתיב במידה רבה את שפת העיצוב של הדירה כולה: שפה נקייה בעיקרה המגלמת שיק עכשווי ומעודכן, מסוגננת בקפידה ובה בעת שזורה בקריצות היוצקות מימד צעיר וקליל - אם באמצעות אלמנטים שונים ששולבו בה, ואם באמצעות שילוב פריטי נוי ופריטים נוספים המגלמים ייחוד מובחן.

מבט מהמטבח אל עבר כלל החלל הציבורי ואל קיר המעבר לאגף החדרים שמגלם קריצה בגונו הצהוב.

מבט מהמטבח אל עבר כלל החלל הציבורי ואל קיר המעבר לאגף החדרים שמגלם קריצה בגונו הצהוב.

פלטת הצבעים מאופקת ונרקמת מגווני שחור, לבן ואפור, עם נגיעות של עץ הנוסך חמימות, ומינון מדוד "כמו במשורה" של גון צהוב. לריצוף החלל משמש פרקט עץ בגוון שחור "משופשף" המעניק לו רקע ועוצמה אך בגונו המרוכך אינו משתלט מידי, ובינות הקירות שנצבעו בלבן שבור משתלבים צבעים וחיפויים שונים, כמו, למשל, טפט במראה טיח בקיר המבואה, טפט טבעי עשוי רסיסי אבנים במרקם מחוספס המחפה את הקיר עליו מותקן מסך הטלוויזיה, או קיר צבוע בצהוב באזור המעבר של אגף החדרים.

על קיר הטלוויזיה בסלון: טפט עשוי רסיסי זכוכית במרקם עשיר המייצר עניין. טפט: אורנה & מינה.

על קיר הטלוויזיה בסלון: טפט עשוי רסיסי זכוכית במרקם עשיר המייצר עניין. טפט: אורנה מינה.

תאורת החלל תוכננה ברוח שפת העיצוב הנקייה ובהתחשב בעובדה שתקרת הדירה נמוכה יחסית, תוך שילוב נורות הלוגן ולד להשגת תמסורת אור טובה ומתן דגש לתרחישי אור מגוונים. חלקה הארי נשען על ספוטים חיצוניים, כאשר במיקומים מסוימים מוטמעים בתקרה/קירות פסי תאורה הנוסכים עניין צורני, והגופים הדקורטיביים המעטים שכן משמשים בחלל, הותאמו בקפידה כחלק בלתי נפרד מהמארג העיצובי. 

מוקד ויזואלי מעניין: גופי לד שקועים למחצה מותקנים על קיר תוך יצירת תמונת אור המאפשרת

מוקד ויזואלי מעניין: גופי לד שקועים למחצה מותקנים על קיר תוך יצירת תמונת אור המאפשרת "לשחק" עם כיווני האלומות שהם מפיצים. בעומק נראה הקיר הצהוב של מעבר החדרים.

כך, לדוגמה, גוף תאורה עשוי פורניר המשתלשל מעל יחידת האי של המטבח כאלמנט מסוגנן המתכתב עם שילובי העץ, או גופי לד שקועים למחצה המותקנים על קיר תוך יצירת תמונת אור מלבבת המאפשרת "לשחק" עם כיווני האלומות שהם מפיצים. לפינת הישיבה בחרה האזרחי גוף בעל ממדים נדיבים, שעיצובו המרובע משלב מסגרת אלומיניום ובד מתוח, ולמרות היותו צמוד תקרה הוא מייצר מופע בעל נוכחות מרשימה.

עניין מוקפד בכל פינה:  קיר צהוב, עבודות אמנות ופסי תאורה מעשירים את חלל המעבר.

עניין מוקפד בכל פינה: קיר צהוב, עבודות אמנות ופסי תאורה מעשירים את חלל המעבר.

פריטי הריהוט והנגרות מאופיינים בקווים המשמרים את הניקיון והאווריריות , ומרביתם עוצבו ע"י האזרחי ובוצעו בהזמנה, דוגמת מערכת הישיבה בסלון, הכוללת שתי ספות ושולחן רבוע שעוצב כעין הדום גדול מרופד בבד זהה. הבד, מבהירה האזרחי, "הוא בד קל לטיפול, ולצורך הנחת פריטים שדורשים יתר זהירות, שילבתי מגש עץ ה"מתלבש" על המשטח העליון". 

שירותי האורחים כנקודת חן: יחידה עשויה עץ אלון, כיור עשוי בזלת במופעה הטבעי וקומפוזיציה של מראות עגולות על הקיר.

שירותי האורחים כנקודת חן: יחידה עשויה עץ אלון, כיור עשוי בזלת במופעה הטבעי וקומפוזיציה של מראות עגולות על הקיר.

המטבח הממוקם בקדמת החלל מעוצב בתצורת ר' שמייצרות יחידת קיר ויחידת כיור, ובמרכזו ניצבת יחידת אי גדולה, ארוכה ורחבה במיוחד עם משטח קוריאן. את גונן הלבן של היחידות "שוברים" מקרר גדול בעל חזיתות זכוכית שחורה וחיפוי קיר כהה שאינו אלא טפט המדמה לוח שחור ומוסיף קריצה קלילה לחזות המוקפדת: על ה"לוח" ניתן לכתוב הודעות ומסרים, למחוק את הכתוב כבכל לוח רגיל, והיותו רחיץ הופך אותו פרקטי לשימוש וקל לטיפול. יחידת האי הגדולה משמשת גם כשולחן אוכל שהינו היחיד, למעשה, שמשתלב בחלל, שכן בשלב זה בחרה האזרחי שלא להציב בו פינת אוכל מוגדרת "אמנם יש שפע של מקום לכך, אך כרגע העדפתי לשמר כמה שיותר פתיחות ומרחב, מה גם שמידות האי תוכננו כך שבעת הצורך ניתן להצמיד אליו שולחן ולקבל משטח רציף, רחב וגדול דיו לאירוח נוח". 

  יחידת ההורים: מחיצת זכוכית שקופה מפרידה בין אזורי השינה והרחצה ומדגישה תחושה אוורירית. זיגוג:

יחידת ההורים: מחיצת זכוכית שקופה מפרידה בין אזורי השינה והרחצה ומדגישה תחושה אוורירית. זיגוג: "שבירו".

האגף הפרטי אינו שונה באופיו מהחלל הציבורי, מציג את אותה שפת עיצוב קפדנית-קלילה, נצמד לאותה פלטת הגוונים ולאותם שימושי החומרים ושם דגש על נוחות פונקציונאלית. את חדר העבודה שלה עיצבה האזרחי במראה תעשייתי וחם, ושלא כמקובל, העדיפה להותירו בינתיים כחלל פתוח ללא דלת הסוגרת עליו, כך שהוא מאפשר לה כאם (פעוט אחד בינתיים...) לשמור על קשר ישיר עם אזורי הבית האחרים ובמידת הרצון/צורך לסגור אותו בעתיד.

אזור הרחצה: ריצוף וחיפוי באריחי שיש אפורים המדמים בטון, ויחידת כיור בעבודת נגרות עם משטח זוברנו עליו מונח כיור גדול בעיצוב מסוגנן.

אזור הרחצה: ריצוף וחיפוי באריחי שיש אפורים המדמים בטון, ויחידת כיור בעבודת נגרות עם משטח זוברנו עליו מונח כיור גדול בעיצוב מסוגנן.

ביחידת ההורים מפרידה מחיצת זכוכית שקופה בין אזור השינה ואזור הרחצה, כשהיא גורמת לחלל כולו "להרגיש אוורירי יותר ומרווח" כדברי האזרחי. לחיפוי הקירות באזור הרחצה משמשים אריחים אפורים המדמים מראה של בטון, ויחידת הכיור עוצבה עם משטח זוברנו עליה מונח כיור מסוגנן. למשטח הכיור בחדר הרחצה של הילדים נבחר קוריאן בגוון תכלכל-ירקרק המשווה לחלל רעננות קרירה, ושירותי האורחים חושפים קריצה עיצובית שמייצרים יחידת ריהוט עשויה עץ אלון עליה מונח כיור עשוי בזלת במופעה הטבעי, וקומפוזיציה חיננית של מראות עגולות המעטרות את הקיר.  

  אזור הרחצה: ריצוף וחיפוי באריחי שיש אפורים המדמים בטון, ויחידת כיור בעבודת נגרות עם משטח זוברנו עליו מונח כיור גדול בעיצוב מסוגנן.

אזור הרחצה: ריצוף וחיפוי באריחי שיש אפורים המדמים בטון, ויחידת כיור בעבודת נגרות עם משטח זוברנו עליו מונח כיור גדול בעיצוב מסוגנן.

המרפסת, זו ש"התחילה" את סיפור הדירה, היא מרחב מלבב מרוצף באריחים דמויי פלנקים מעץ, ושטחה מכיל את כל ה"טובין" שחסרו בדירה הקודמת ועתה מאפשרים לבני הבית ליהנות מהם: מתקן ברביקיו, בריכה לילד, אופציה לארח באוויר הפתוח, לשבת מול הנוף עם קפה של בוקר או "סתם" לתפוס שלווה מרגיעה שאין כמוה לסיומו של יום מפרך.

פינת ישיבה אינטימית מזמינה

פינת ישיבה אינטימית מזמינה "לתפוס" אתנחתא רגועה במרפסת "טולמנ'ס".


כתבות נוספות

המהפכה החלקה: החומר שמשנה את פני הבית
עיצוב
המהפכה החלקה: החומר שמשנה את פני הבית
יוצקים חלומות בברזל
חומרים
יוצקים חלומות בברזל
הבית השרוף
אדריכלות
הבית השרוף
מתכננים שיפוץ בבית? אל תשכחו את הביוב!
תכנון
מתכננים שיפוץ בבית? אל תשכחו את הביוב!
פיקוס השדרות, הצעה לעיצוב הרכבת הקלה. יצהר גלמידי I אלירן יקשין
אדריכלות
פיקוס השדרות, הצעה לעיצוב הרכבת הקלה. יצהר גלמידי I אלירן יקשין
לא למעבר בלבד
אדריכלות
לא למעבר בלבד
עבודה במהירות האור
חומרים
עבודה במהירות האור
מטמורפוזה
אדריכלות
מטמורפוזה
נראה כמו אוהל מבחוץ, אך הוא בית מבפנים
תכנון
נראה כמו אוהל מבחוץ, אך הוא בית מבפנים
לגור במחסן
אדריכלות
לגור במחסן
ליהנות בבית, לבלות בגינה
אדריכלות
ליהנות בבית, לבלות בגינה
רשמים מכנס בניה טבעית
תכנון
רשמים מכנס בניה טבעית
רצף והיררכיה
אדריכלות
רצף והיררכיה
חינוך בעיצוב- שלוש מורות פוגשות מעצבת פנים
אדריכלות
חינוך בעיצוב- שלוש מורות פוגשות מעצבת פנים
תערוכת Ambiente– מטמון עיצובי לאדריכלים ולמעצבי פנים
תכנון
תערוכת Ambiente– מטמון עיצובי לאדריכלים ולמעצבי פנים
בדלת אמותיו - שיפוץ ושימור מבנים ודלתות
תכנון
בדלת אמותיו - שיפוץ ושימור מבנים ודלתות
על אומנות שבאה לידי ביטוי בצילום האדריכלי
עיצוב
על אומנות שבאה לידי ביטוי בצילום האדריכלי
מפלט אירופאי בתל אביב: כך עוצבה דירתה של מעצבת הפנים ומשפחתה
אדריכלות
מפלט אירופאי בתל אביב: כך עוצבה דירתה של מעצבת הפנים ומשפחתה
שקע תקע ,פינת החידושים
תכנון
שקע תקע ,פינת החידושים
עיצוב חדרי תינוקות בטפט
תכנון
עיצוב חדרי תינוקות בטפט
מה חדש במטבח ובסלון?
עיצוב
מה חדש במטבח ובסלון?
איזה סיפור הבית שלך מספר?
תכנון
איזה סיפור הבית שלך מספר?
עיצוב סביבת החוץ – עולם ומלואו
חומרים
עיצוב סביבת החוץ – עולם ומלואו
נכנס יין יצא יקב
אדריכלות
נכנס יין יצא יקב
עיצוב חדרי נוער- מגמות וחידושים
עיצוב
עיצוב חדרי נוער- מגמות וחידושים
אלומאיר: היסטוריה של חשיבה קדימה
עיצוב
אלומאיר: היסטוריה של חשיבה קדימה
10 דרכים להתארגן למעבר דירה בקיץ
עיצוב
10 דרכים להתארגן למעבר דירה בקיץ
חזית וילה באפקה - אדריכל מיקלה סימאונה
אדריכלות
חזית וילה באפקה - אדריכל מיקלה סימאונה
כך תעצבו את מטבח החלומות שלכם
תכנון
כך תעצבו את מטבח החלומות שלכם
דירה בפתח תקווה: ממקום - לבית
אדריכלות
דירה בפתח תקווה: ממקום - לבית
כשירושלים פוגשת את תל-אביב
תכנון
כשירושלים פוגשת את תל-אביב
מלבישים את הבית
אדריכלות
מלבישים את הבית
אדריכלית: טובה דויד ממשרד אדריכלים טובה דוד & צילה רייזר
אדריכלות
אדריכלית: טובה דויד ממשרד אדריכלים טובה דוד & צילה רייזר
באלאנס על הים, הצעה לעיצוב חדרים בבתי מלון: סטודיו 26
עיצוב
באלאנס על הים, הצעה לעיצוב חדרים בבתי מלון: סטודיו 26
בית  למשפחה
תכנון
בית למשפחה
"כמו במשחק הכיסאות - החלפנו בין פינת האוכל לסלון ויצרנו הרמוניה"
אדריכלות
"כמו במשחק הכיסאות - החלפנו בין פינת האוכל לסלון ויצרנו הרמוניה"
קיר ירוק הוא גינה ורטיקאלית
אדריכלות
קיר ירוק הוא גינה ורטיקאלית
עיצוב דירה צבעונית ומרגשת במרכז תל אביב
תכנון
עיצוב דירה צבעונית ומרגשת במרכז תל אביב
עיצוב דירת גג- לחיות עם ספרים
תכנון
עיצוב דירת גג- לחיות עם ספרים
מעטפת עירונית כשפה תרבותית
עיצוב
מעטפת עירונית כשפה תרבותית
לא רק שקוף: המעקות החדשים שמחליפים את הזכוכית בבנייני המגורים
אדריכלות
לא רק שקוף: המעקות החדשים שמחליפים את הזכוכית בבנייני המגורים
תנורי הוייקינגים הגיעו לתדיראן ויש בהחלט למה לצפות
חומרים
תנורי הוייקינגים הגיעו לתדיראן ויש בהחלט למה לצפות
הכותרות החשובות מתוך הוועידה לחדשנות בעיצוב ובאדריכלות
תכנון
הכותרות החשובות מתוך הוועידה לחדשנות בעיצוב ובאדריכלות
Studio Loop
תכנון
Studio Loop
רחבה מעוגלת מבטון
חומרים
רחבה מעוגלת מבטון
הכנס הבינ"ל השלישי לבנייה ירוקה 28.11.12 - סדר יום
חומרים
הכנס הבינ"ל השלישי לבנייה ירוקה 28.11.12 - סדר יום
הום סטיילינג - 'אימג'בנק'
עיצוב
הום סטיילינג - 'אימג'בנק'
אצלנו בסלון
אדריכלות
אצלנו בסלון
תערוכת Maison & Objet ינואר 2011
אדריכלות
תערוכת Maison & Objet ינואר 2011
לא על האריחים לבדם
חומרים
לא על האריחים לבדם
אדריכלות על בסיס עץ אלומיניום ובטון
אדריכלות
אדריכלות על בסיס עץ אלומיניום ובטון
Agro Housing תכנון בר קיימא
תכנון
Agro Housing תכנון בר קיימא
תנו לשמש לחדור
אדריכלות
תנו לשמש לחדור
המדריך לבניית קירות ירוקים
חומרים
המדריך לבניית קירות ירוקים
מעצבת אושרי גונן: כך עיצבתי את בית החלומות שלי
אדריכלות
מעצבת אושרי גונן: כך עיצבתי את בית החלומות שלי
העתיד בדיור חברתי
תכנון
העתיד בדיור חברתי
מעטפת המבנה – פנים וחוץ
חומרים
מעטפת המבנה – פנים וחוץ
עיצוב מתחם ספא
חומרים
עיצוב מתחם ספא
הריף האורבאני שזכה בתחרות הקנדית
אדריכלות
הריף האורבאני שזכה בתחרות הקנדית
בשם השיגעון
חומרים
בשם השיגעון
הקולקציות הכי טרנדיות שיש
חומרים
הקולקציות הכי טרנדיות שיש
קלאסית, נעימה ועל זמנית: דירה במראה שובבי לזוג צעיר בצפון של תל אביב
עיצוב
קלאסית, נעימה ועל זמנית: דירה במראה שובבי לזוג צעיר בצפון של תל אביב
עיצוב זורם בכפות ידייך
תכנון
עיצוב זורם בכפות ידייך
כשאמנות פוגשת טכנולוגיה – טיפא ארטס
תכנון
כשאמנות פוגשת טכנולוגיה – טיפא ארטס
עיצוב גינה – טיפים מנצחים
תכנון
עיצוב גינה – טיפים מנצחים
Fabio Novembre מילאנו 2009
אדריכלות
Fabio Novembre מילאנו 2009
מהדרום הישר לשינקין
תכנון
מהדרום הישר לשינקין
פרויקט מילאנו: מה צפוי בשבוע העיצוב הגדול בעולם?
אדריכלות מהעולם
פרויקט מילאנו: מה צפוי בשבוע העיצוב הגדול בעולם?
קפל לי כבשה (או משהו אחר...)
אדריכלות
קפל לי כבשה (או משהו אחר...)
נוטלי: פתרונות חדשניים למטבח העכשווי
אדריכלות
נוטלי: פתרונות חדשניים למטבח העכשווי
מהמילואים לשטיח האדום: המנצחים הגדולים של "אוסקר האדריכלים"
אדריכלות
מהמילואים לשטיח האדום: המנצחים הגדולים של "אוסקר האדריכלים"
תערוכת הפרוייקטים של כנס INNO 2017 - חלק א'
אדריכלות
תערוכת הפרוייקטים של כנס INNO 2017 - חלק א'
פתרונות יצירתיים של עיצוב משרד או חנות
חומרים
פתרונות יצירתיים של עיצוב משרד או חנות
דירת גן בוטיק אמיצה בשלושה צבעים בלבד
אדריכלות
דירת גן בוטיק אמיצה בשלושה צבעים בלבד
טביעת רגל  ישראלית במילאנו
אדריכלות
טביעת רגל ישראלית במילאנו
מים בששון: מהמנהג המרוקאי בשבועות ועד תרבות הוולנס הביתית
עיצוב
מים בששון: מהמנהג המרוקאי בשבועות ועד תרבות הוולנס הביתית
איך לארגן חדר כושר ביתי?
אדריכלות
איך לארגן חדר כושר ביתי?
עניין של צבע
חומרים
עניין של צבע
מסמל סטטוס לאלמנט (כמעט) חובה
אדריכלות
מסמל סטטוס לאלמנט (כמעט) חובה
מסדרים נכון - המדריך לחג הפסח
תכנון
מסדרים נכון - המדריך לחג הפסח
תערוכת Ambiente בפרנקפורט
אדריכלות
תערוכת Ambiente בפרנקפורט
לתת לרהיט אופי
עיצוב
לתת לרהיט אופי
יחסי חוץ ופנים בתכנון בית פרטי
אדריכלות
יחסי חוץ ופנים בתכנון בית פרטי
מה יוצא מכביסה וכיסא? כביסא!
עיצוב
מה יוצא מכביסה וכיסא? כביסא!
שני בתים וסטודיו
אדריכלות
שני בתים וסטודיו
משחקי חומר ומרקם
אדריכלות
משחקי חומר ומרקם
ראיון עם האמן Simone Legno האיטלקי
תכנון
ראיון עם האמן Simone Legno האיטלקי
השיטה העתיקה לבניית מבנים חזקים ועמידים ללא שימוש במלט
תכנון
השיטה העתיקה לבניית מבנים חזקים ועמידים ללא שימוש במלט
הסבת רבי קומות לידידותיים לקהילה ולסביבה
תכנון
הסבת רבי קומות לידידותיים לקהילה ולסביבה
אסלות מעוצבות- אל תגידו שלא ידעתם !
אדריכלות
אסלות מעוצבות- אל תגידו שלא ידעתם !
עיצוב ממקום אחר - 103
חומרים
עיצוב ממקום אחר - 103
לימונדה כחולה אבישי מרציאנו
תכנון
לימונדה כחולה אבישי מרציאנו
לא תכירו אותה
תכנון
לא תכירו אותה
התאמת ריהוט ב- 360 מעלות
חומרים
התאמת ריהוט ב- 360 מעלות
חשיפה לדרום
אדריכלות
חשיפה לדרום
יוצרים מקום - פרויקט גמר
תכנון
יוצרים מקום - פרויקט גמר
שיפוץ קומת כניסה יצרה חזות חדשה לבית
אדריכלות
שיפוץ קומת כניסה יצרה חזות חדשה לבית
סגנון ופרקטיקה
תכנון
סגנון ופרקטיקה
חדשות וחידושים - 122
עיצוב
חדשות וחידושים - 122
בית הליבה בירושלים
עיצוב
בית הליבה בירושלים