במשרד כמו בבית
חומרים

במשרד כמו בבית

המשרד שתכננו אדריכליות הפנים קרן אטלס-דרור ואורלי פיק בחלל לופט, הוא מרחב גמיש המשלב סביבת עבודה עכשווית עם אווירה ביתית

חלל המשרד, מבט מהכניסה - מרחב משותף הנחלק לשלושה “פרקי תוכן”: אזור קבלה והמתנה, אזור עמדות העבודה המתפקד כלב המשרד כשמולו ממוקם המטבח, ומשרדי המנהלים + חדר ישיבות הממוקמים בעומק ומהם ישנה יציאה למרפסת דק

חלל המשרד, מבט מהכניסה - מרחב משותף הנחלק לשלושה “פרקי תוכן”: אזור קבלה והמתנה, אזור עמדות העבודה המתפקד כלב המשרד כשמולו ממוקם המטבח, ומשרדי המנהלים + חדר ישיבות הממוקמים בעומק ומהם ישנה יציאה למרפסת דק

חלל המשרד, מבט מהכניסה - מרחב משותף הנחלק לשלושה “פרקי תוכן”: אזור קבלה והמתנה, אזור עמדות העבודה המתפקד כלב המשרד כשמולו ממוקם המטבח, ומשרדי המנהלים + חדר ישיבות הממוקמים בעומק ומהם ישנה יציאה למרפסת דק

כשנתבקשו אדריכליות הפנים קרן אטלס-דרור ואורלי פיק לתכנן את משרדה של חברת EXP אייל נאור, העוסקת בתחום השיווק החווייתי וידועה כחברה חדשנית המקפידה על מיצוב "בוטיקי” ויחס אישי ללקוחותיה, היה זה אך ברור שעיצובו של המשרד החדש יגלם את אותם ערכים. "הקונספט הרעיוני נועד ליצור שילוב של תחושת ביתיות נעימה, המייצגת את הערך האישי שמלווה את מדיניות התנהלותה של החברה, עם ממד עכשווי שמייצג את הזירה בה היא פועלת. מעבר לכך, היות והחלל מיועד לשמש גם לסוגים שונים של אירוח, המטרה הייתה לייצר בו את האווירה הנכונה לכך, כמו גם גמישות "פיזית” שתאפשר זאת” מספרות אטלס-דרור ופיק על נקודות המוצא שעמדו בבסיס התכנון.

שפת עיצוב המשלבת חומרי גמר תעשייתיים, פריטים שתוכננו ובוצעו ייעודית בעבודות נגרות ומסגרות, ופריטי וינטאג’ שנרכשו בשווקי פשפשים. ריצוף בטון מוחלק, תאורת פסי צבירה עם ספוטים, וחיפוי קירות בלבני סיליקט, מותאמות לקיר הלבנים המקורי שנצבע בלכה. מחיצות מדפים ניידות שתוכננו ייעודית להפרדה בין עמדות העבודה של צוותי הקריאייטיב: עשויות ברזל בעבודת מסגרות ומצוידות בגלגלים המאפשרים לניידן בנוחות בהתאם לצרכים משתנים.

שפת עיצוב המשלבת חומרי גמר תעשייתיים, פריטים שתוכננו ובוצעו ייעודית בעבודות נגרות ומסגרות, ופריטי וינטאג’ שנרכשו בשווקי פשפשים. ריצוף בטון מוחלק, תאורת פסי צבירה עם ספוטים, וחיפוי קירות בלבני סיליקט, מותאמות לקיר הלבנים המקורי שנצבע בלכה. מחיצות מדפים ניידות שתוכננו ייעודית להפרדה בין עמדות העבודה של צוותי הקריאייטיב: עשויות ברזל בעבודת מסגרות ומצוידות בגלגלים המאפשרים לניידן בנוחות בהתאם לצרכים משתנים.

שפת עיצוב המשלבת חומרי גמר תעשייתיים, פריטים שתוכננו ובוצעו ייעודית בעבודות נגרות ומסגרות, ופריטי וינטאג’ שנרכשו בשווקי פשפשים. ריצוף בטון מוחלק, תאורת פסי צבירה עם ספוטים, וחיפוי קירות בלבני סיליקט, מותאמות לקיר הלבנים המקורי שנצבע בלכה. מחיצות מדפים ניידות שתוכננו ייעודית להפרדה בין עמדות העבודה של צוותי הקריאייטיב: עשויות ברזל בעבודת מסגרות ומצוידות בגלגלים המאפשרים לניידן בנוחות בהתאם לצרכים משתנים.

שפת עיצוב המשלבת חומרי גמר תעשייתיים, פריטים שתוכננו ובוצעו ייעודית בעבודות נגרות ומסגרות, ופריטי וינטאג’ שנרכשו בשווקי פשפשים. ריצוף בטון מוחלק, תאורת פסי צבירה עם ספוטים, וחיפוי קירות בלבני סיליקט, מותאמות לקיר הלבנים המקורי שנצבע בלכה. מחיצות מדפים ניידות שתוכננו ייעודית להפרדה בין עמדות העבודה של צוותי הקריאייטיב: עשויות ברזל בעבודת מסגרות ומצוידות בגלגלים המאפשרים לניידן בנוחות בהתאם לצרכים משתנים.

החלל, לופט גבה תקרה ששטחו כ140- מ”ר + מרפסת דק גדולה, שוכן בקומה חדשה שנוספה לבניין פנורמה הוותיק באזור התעשייה ביפו, ומכיוון שמדובר בסביבה תעשייתית ללא מגדלי מגורים גבוהים הוא נהנה מנוף פתוח שנפרש מהקומה הגבוהה בה הוא ממוקם. "האתגר התכנוני היה לשלב בחלל את הפונקציות הנדרשות שהוגדרו בפרוגראמה, ובכלל זה פונקציות "סגורות” כמשרדים אישיים למנהלים, מחסן וחדר שירותים, ובה בעת לשמור על פתיחות המבנה הלופטי” אומרות אטלס-דרור ופיק, אשר בתוך כך חילקו את החלל לשלושה "פרקי תוכן” הסדורים לאורכו ומשני עבריו של ציר מרכזי פתוח הזורם מדלת הכניסה עד עומק המרחב: עמדת הקבלה ופינת ישיבה-המתנה מוקמו בחלקו הקדמי של החלל ומולן המחסן והשירותים שהוצנעו מאחורי קיר, עמדות העבודה של צוותי הקריאייטיב וההפקה מוקמו בחלקו ה”אמצעי” המתפקד כלב המשרד כשמולן שוכן מטבח פתוח, ומיקום משרדי המנהלים וחדר הישיבות נקבע בעומק השטח, כשהם צופים לנוף ומהם ישנה יציאה למרפסת הדק. 

חדרי המנהלים שבעומק החלל: תחומים במחיצות זכוכית שאינן חוסמות את הזרימה הישירה. ושילוב דלתות הזזה בשטחם מאפשר לתחום את פינת הישיבה שבחדר לכדי חלל עצמאי ולייצר בעת הצורך חדר סגור לישיבות אינטימיות. אוסף כובעים שנתלה על הקיר הסמוך לכניסה אליהם תורם נופך “דקורטיבי” לא פורמאלי וממד אישי חינני.

חדרי המנהלים שבעומק החלל: תחומים במחיצות זכוכית שאינן חוסמות את הזרימה הישירה. ושילוב דלתות הזזה בשטחם מאפשר לתחום את פינת הישיבה שבחדר לכדי חלל עצמאי ולייצר בעת הצורך חדר סגור לישיבות אינטימיות. אוסף כובעים שנתלה על הקיר הסמוך לכניסה אליהם תורם נופך “דקורטיבי” לא פורמאלי וממד אישי חינני.

המטבח - ממוקם מול עמדות העבודה, מעברו השני של הציר הפתוח שחוצה את החלל. מעוצב בשפה מודרנית המשלבת פורמייקה ונירוסטה. משטחה של יחידת האי הגדולה עשוי עץ, והיא תוכננה כך שתוכל לשמש גם כשולחן נוח לישיבות צוות משותפות. שלושה אהילים גדולים מעליה מייצגים את הממד הביתי של העיצוב.

המטבח - ממוקם מול עמדות העבודה, מעברו השני של הציר הפתוח שחוצה את החלל. מעוצב בשפה מודרנית המשלבת פורמייקה ונירוסטה. משטחה של יחידת האי הגדולה עשוי עץ, והיא תוכננה כך שתוכל לשמש גם כשולחן נוח לישיבות צוות משותפות. שלושה אהילים גדולים מעליה מייצגים את הממד הביתי של העיצוב.

טוויית מסגרתו של החלל ביקשה לשמר את אופיו הלופטי-מינימליסטי, וכך גם בחירת חומריו שנגזרה מהחומריות הבסיסית שהייתה בו: ריצוף הבטון הגולמי עבר ליטוש וציפוי אפוקסי ששיוו לו ברק ומראה חי המאפיינים רצפת בטון מוחלק; כהמשך רעיוני - ויזואלי לקיר בלוקים חשוף, לו הוענק גימור לכה, חופו הקירות האחרים בלבני סיליקט; תשתיות החשמל ומיזוג האוויר הותרו חשופות בתקרה ונצבעו בלבן; התאורה מתקבלת מפסי צבירה עם ספוטים; והמשרדים שבעומק החלל נתחמו במחיצות זכוכית אווריריות, שאכן מגדירות אותם כאזורים פרטיים ועם זאת אינן מפרות את תחושת הזרימה והפתיחות.

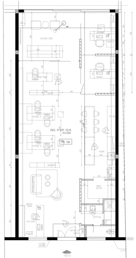
תוכנית המשרד.

תוכנית המשרד.

מוטיב הגמישות של החלל בא לידי ביטוי באזורים ובאלמנטים שתכנונם נועד לשרת צרכים שונים במקביל, כמו, למשל, פינת ישיבה סלונית ששולבה במשרדו של המנכ”ל, כאשר בעת הצורך ניתן לסגור אותה באמצעות דלתות הזזה שקופות ולהפכה לחלל ישיבות. אף יחידת האי הגדולה התוחמת/מגדירה את אזור המטבח תוכננה כך שתוכל לשמש גם כשולחן נוח להסב אליו בישיבות צוות ולחלופין לאירוח, ויחידות המדפים העשויות ברזל שתוחמות את עמדות העבודה מצוידות בגלגלים המאפשרים לניידן בנוחות בהתאם לצרכים משתנים. העמדות עצמן, המופרדות זו מזו באמצעות יחידות המדפים שבוצעו בעבודת מסגרות, תוכננו כעמדות משותפות שכל אחת מהן נועדה לארבעה עובדים, ועוצבו כשולחנות ארוכים דיים המאפשרים ישיבה משני עבריהם ומרחב עבודה פרטי לכל עובד. תשתיות החשמל והתקשורת שנדרשות לעבודה מועברות לעמדות ישירות דרך תעלות אצבע חשופות בקיר הסמוך אליהן, ומראות עגולות שהותקנו עליהן, כמו אחוזות בתוכן, משוות להן גם ערך דקורטיבי לא צפוי. 

המטבח - ממוקם מול עמדות העבודה, מעברו השני של הציר הפתוח שחוצה את החלל. מעוצב בשפה מודרנית המשלבת פורמייקה ונירוסטה. משטחה של יחידת האי הגדולה עשוי עץ, והיא תוכננה כך שתוכל לשמש גם כשולחן נוח לישיבות צוות משותפות. שלושה אהילים גדולים מעליה מייצגים את הממד הביתי של העיצוב.

המטבח - ממוקם מול עמדות העבודה, מעברו השני של הציר הפתוח שחוצה את החלל. מעוצב בשפה מודרנית המשלבת פורמייקה ונירוסטה. משטחה של יחידת האי הגדולה עשוי עץ, והיא תוכננה כך שתוכל לשמש גם כשולחן נוח לישיבות צוות משותפות. שלושה אהילים גדולים מעליה מייצגים את הממד הביתי של העיצוב.

חדרי המנהלים שבעומק החלל: תחומים במחיצות זכוכית שאינן חוסמות את הזרימה הישירה. ושילוב דלתות הזזה בשטחם מאפשר לתחום את פינת הישיבה שבחדר לכדי חלל עצמאי ולייצר בעת הצורך חדר סגור לישיבות אינטימיות. אוסף כובעים שנתלה על הקיר הסמוך לכניסה אליהם תורם נופך “דקורטיבי” לא פורמאלי וממד אישי חינני.

חדרי המנהלים שבעומק החלל: תחומים במחיצות זכוכית שאינן חוסמות את הזרימה הישירה. ושילוב דלתות הזזה בשטחם מאפשר לתחום את פינת הישיבה שבחדר לכדי חלל עצמאי ולייצר בעת הצורך חדר סגור לישיבות אינטימיות. אוסף כובעים שנתלה על הקיר הסמוך לכניסה אליהם תורם נופך “דקורטיבי” לא פורמאלי וממד אישי חינני.

יחידות העבודה והמדפים, כמו גם המטבח העשוי פורמייקה לבנה עם שילובי נירוסטה, עוצבו ייעודית ע”י המתכננות, כששפת עיצובם העכשווית - מודרנית משתלבת בהרמוניה עם פריטי וינטאג’ שנרכשו בשווקי פשפשים. עמדת הקבלה, לדוגמה, מתנאה בחזות של חלל עבודה ביתי עם שולחן וספרייה בעיצוב עתיק, פינת הישיבה הסמוכה אליה מעוצבת כפינה סלונית נעימה עם כורסאות עור, שולחן מסוגנן ושטיח צבעוני, את יחידת האי מלווים ממעל שלושה אהילים גדולים ומרשימים המעוצבים כמקלעת עץ, וקריצה אישית חביבה מגלם אוסף כובעים המעטר את הקיר הסמוך למשרד המנכ”ל. כך, במפגש בין שני הסגנונות, מתאחדים, למעשה, ערכי החברה לכדי חוויית חלל אחת, הנעה בין מרחב עכשווי, אסתטי ומוקפד, המעניק את מלוא הנוחות והפונקציונאליות שנדרשות ממהותו כסביבת עבודה, לבין תחושת ביתיות נסוכת אווירה שמותאמת גם לאירוח מזמין.

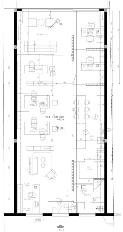
תוכנית המשרד.

תוכנית המשרד.


כתבות נוספות

מניתוח פלסטי ועד לבניין בהדפסת תלת-מימד
חומרים
מניתוח פלסטי ועד לבניין בהדפסת תלת-מימד
אדריכלית: ליאת בעבור
אדריכלות
אדריכלית: ליאת בעבור
נסתר וגלוי- בית חלומות ברמת השרון
אדריכלות
נסתר וגלוי- בית חלומות ברמת השרון
אדריכלית: יעל מן מורג
אדריכלות
אדריכלית: יעל מן מורג
תכנון גינה של חופש
אדריכלות
תכנון גינה של חופש
למה בטון מוחלק הוא הטרנד הבא בעולם הריצוף
חומרים
למה בטון מוחלק הוא הטרנד הבא בעולם הריצוף
הקירות מדברים - עיצוב קירות בהשראת נפלאות הטבע - פוסט אורח
אדריכלות
הקירות מדברים - עיצוב קירות בהשראת נפלאות הטבע - פוסט אורח
תערוכת Maison  Objet
תכנון
תערוכת Maison Objet
עיצוב ל"סיעור מוחות"
חומרים
עיצוב ל"סיעור מוחות"
נס חנוכה - גרסת השיפוצים
אדריכלות
נס חנוכה - גרסת השיפוצים
מרחב במפלסים
אדריכלות
מרחב במפלסים
שחור או לבן?
עיצוב
שחור או לבן?
עיצוב סובב עולם - 121
אדריכלות
עיצוב סובב עולם - 121
עיצוב גינה – טיפים מנצחים
תכנון
עיצוב גינה – טיפים מנצחים
תתחדשו על המטבח
תכנון
תתחדשו על המטבח
מטבחי Hacker - מטבחים ומקיימים
תכנון
מטבחי Hacker - מטבחים ומקיימים
מט גאלה 2026: מי גנב למפורסמים את ההצגה?
עיצוב
מט גאלה 2026: מי גנב למפורסמים את ההצגה?
עיצוב ותכנון דירה קטנה
תכנון
עיצוב ותכנון דירה קטנה
חומרים חדשים - 122
תכנון
חומרים חדשים - 122
לעצב בקליק: מותגי החשמל והריהוט אונליין בדרך לכבוש את הבית (והלב) שלנו
עיצוב
לעצב בקליק: מותגי החשמל והריהוט אונליין בדרך לכבוש את הבית (והלב) שלנו
בשם הפרטיות: רואים שקוף, רואים רחוק
אדריכלות
בשם הפרטיות: רואים שקוף, רואים רחוק
אנחנו מגיעים לישראל, תעזרו לנו לבחור בית.. ככה זה מתחיל
אדריכלות
אנחנו מגיעים לישראל, תעזרו לנו לבחור בית.. ככה זה מתחיל
עיצוב חדרים קטנים
עיצוב
עיצוב חדרים קטנים
מי רוצה מפלצת בסלון ?
תכנון
מי רוצה מפלצת בסלון ?
"redy made" שיק - סטודיו ארטישוק
חומרים
"redy made" שיק - סטודיו ארטישוק
קליל: למקסם את מלוא אורך רצפה-תקרה
תכנון
קליל: למקסם את מלוא אורך רצפה-תקרה
סגנון חופשי
חומרים
סגנון חופשי
לגור ירוק בישראל
תכנון
לגור ירוק בישראל
להגשים חלום על שלד: וילה מעוצבת בלב השפלה
אדריכלות
להגשים חלום על שלד: וילה מעוצבת בלב השפלה
מקלחונים מעוצבים לחדר הרחצה
אדריכלות
מקלחונים מעוצבים לחדר הרחצה
עיר מבטון
אדריכלות
עיר מבטון
נשב בחוץ, כמה יפה הליל...
אדריכלות
נשב בחוץ, כמה יפה הליל...
ביקורת גבולות
עיצוב
ביקורת גבולות
מיכאל חי
תכנון
מיכאל חי
עיצוב חדרי נוער
עיצוב
עיצוב חדרי נוער
תערוכת Ambiente– מטמון עיצובי לאדריכלים ולמעצבי פנים
תכנון
תערוכת Ambiente– מטמון עיצובי לאדריכלים ולמעצבי פנים
המלחמה על השטיח: למה מה שנראה מיותר הוא חובה עבור המעצב?
עיצוב
המלחמה על השטיח: למה מה שנראה מיותר הוא חובה עבור המעצב?
רשמים מכנס בניה טבעית
תכנון
רשמים מכנס בניה טבעית
איך לארגן חדר כושר ביתי?
אדריכלות
איך לארגן חדר כושר ביתי?
עיצוב משרד בקומה גבוהה עם נוף מרהיב
חומרים
עיצוב משרד בקומה גבוהה עם נוף מרהיב
בית החמנייה
אדריכלות
בית החמנייה
קבוצת אלומיניום קונסטרקשיין: העתיד כבר כאן
עיצוב
קבוצת אלומיניום קונסטרקשיין: העתיד כבר כאן
תחרות הפרסום הישראלית קקטוס הזהב
אדריכלות
תחרות הפרסום הישראלית קקטוס הזהב
הדרך הנכונה לבית מעוצב – תכנון העיצוב של חללי הבית השונים
תכנון
הדרך הנכונה לבית מעוצב – תכנון העיצוב של חללי הבית השונים
אלגנטיות מודרנית בניצוחה של מורן קיש
אדריכלות
אלגנטיות מודרנית בניצוחה של מורן קיש
לנשים יש היום יותר מקום בשטח – אבל הדרך עוד ארוכה
אדריכלות
לנשים יש היום יותר מקום בשטח – אבל הדרך עוד ארוכה
שתי חצרות בעיצוב בית בטורונטו, קנדה
אדריכלות
שתי חצרות בעיצוב בית בטורונטו, קנדה
מצעד הקולקציות שפשוט תשמחו לאמץ
עיצוב
מצעד הקולקציות שפשוט תשמחו לאמץ
תערוכת Batimat 2009
אדריכלות
תערוכת Batimat 2009
יחסי גומלין בין חוץ לפנים
אדריכלות
יחסי גומלין בין חוץ לפנים
עיצוב דירה לקראת האביב
תכנון
עיצוב דירה לקראת האביב
בית ילדותי
תכנון
בית ילדותי
צעיר ולא מעונב
חומרים
צעיר ולא מעונב
חללי עבודה פתוחים ביום שאחרי מגפת הקורונה
חומרים
חללי עבודה פתוחים ביום שאחרי מגפת הקורונה
הסלון כחלון ללב הבית: אריק בן שמחון חושף את סוד הקסם של תרבות האירוח הישראלית
תכנון
הסלון כחלון ללב הבית: אריק בן שמחון חושף את סוד הקסם של תרבות האירוח הישראלית
יופי של מכון
חומרים
יופי של מכון
בית שהוא סיפור
אדריכלות
בית שהוא סיפור
שימור שני בניינים בשכונת אחוזת בית - תל אביב
חומרים
שימור שני בניינים בשכונת אחוזת בית - תל אביב
אינסטינקט חזרתי
תכנון
אינסטינקט חזרתי
הסגנון הוא המתכון: איך באמת בוחרים נכון ריהוט גן?
אדריכלות
הסגנון הוא המתכון: איך באמת בוחרים נכון ריהוט גן?
סגנון ופרקטיקה
תכנון
סגנון ופרקטיקה
Studio Loop
תכנון
Studio Loop
דווקא עכשיו, ויותר מתמיד
תכנון
דווקא עכשיו, ויותר מתמיד
"הולנדיה" משיקה: המיטה החכמה ביותר בעולם
עיצוב
"הולנדיה" משיקה: המיטה החכמה ביותר בעולם
דלתות מסתובבות - השינוי הקטן שעושה את כל ההבדל
עיצוב
דלתות מסתובבות - השינוי הקטן שעושה את כל ההבדל
לגור בעיר, להרגיש בכפר - האם זה אפשרי?
עיצוב בתים פרטיים ודירות
לגור בעיר, להרגיש בכפר - האם זה אפשרי?
החומר שמשגע את האדריכלים- קוריאן גרסת 2016
תכנון
החומר שמשגע את האדריכלים- קוריאן גרסת 2016
בית של אור: עיצוב שמח ומלכד למשפחה ישראלית
תכנון
בית של אור: עיצוב שמח ומלכד למשפחה ישראלית
אדריכל מייקל שוורץ
תכנון
אדריכל מייקל שוורץ
מינימליזם אורבני
חומרים
מינימליזם אורבני
עיצוב שעונים - חבל על הזמן
אדריכלות
עיצוב שעונים - חבל על הזמן
מסדרים נכון - המדריך לחג הפסח
תכנון
מסדרים נכון - המדריך לחג הפסח
בשורת משטחי השיש והאריחים המשושים
חומרים
בשורת משטחי השיש והאריחים המשושים
מים בששון: מהמנהג המרוקאי בשבועות ועד תרבות הוולנס הביתית
עיצוב
מים בששון: מהמנהג המרוקאי בשבועות ועד תרבות הוולנס הביתית
הטבע: החמצן והמקור להצלחת הפרוייקט
אדריכלות
הטבע: החמצן והמקור להצלחת הפרוייקט
6 השראות לעיצוב סלון הבית
תכנון
6 השראות לעיצוב סלון הבית
המדריך לבניית קירות ירוקים
חומרים
המדריך לבניית קירות ירוקים
עיצוב סביבת למידה חינוכית  "בגובה העיניים"
חומרים
עיצוב סביבת למידה חינוכית "בגובה העיניים"
הוד והדר במרכז- עיצוב מחדש לדירה בראשון לציון
תכנון
הוד והדר במרכז- עיצוב מחדש לדירה בראשון לציון
"בראייה שלנו צפיפות היא ערך שצריך לשאוף אליו - ולא האויב של העיר"
אדריכלות
"בראייה שלנו צפיפות היא ערך שצריך לשאוף אליו - ולא האויב של העיר"
גני הילדים של המחר
תכנון
גני הילדים של המחר
עיצוב סוויטת היהלום, במלון אלכסנדר תל אביב. מישל הרוש
עיצוב
עיצוב סוויטת היהלום, במלון אלכסנדר תל אביב. מישל הרוש
שיפוץ דירה ישנה משנות ה-60
תכנון
שיפוץ דירה ישנה משנות ה-60
עיצוב פנטהאוז מעל הנוף
תכנון
עיצוב פנטהאוז מעל הנוף
מחושך לאור: יצירת אמנות בלב הבית
אדריכלות
מחושך לאור: יצירת אמנות בלב הבית
תערוכות בוגרים 2011 - הדור הבא
תכנון
תערוכות בוגרים 2011 - הדור הבא
טפטים לעדכון עיצוב הפנים
חומרים
טפטים לעדכון עיצוב הפנים
אלישבע –אירוח בכפר, מושק עמקה, הצעה לעיצוב חדרים בבתי מלון: Level
עיצוב
אלישבע –אירוח בכפר, מושק עמקה, הצעה לעיצוב חדרים בבתי מלון: Level
מעצבי פנים – דואגים עבורכם גם לצל
אדריכלות
מעצבי פנים – דואגים עבורכם גם לצל
עיצוב עם ערכים
חומרים
עיצוב עם ערכים
שומר על קנה מידה
אדריכלות
שומר על קנה מידה
הבית החכם
תכנון
הבית החכם
אדריכלית: טובה דויד ממשרד אדריכלים טובה דוד & צילה רייזר
אדריכלות
אדריכלית: טובה דויד ממשרד אדריכלים טובה דוד & צילה רייזר
גיליון מרץ-אפריל
עיצוב
גיליון מרץ-אפריל
שחור לבן בצבע
אדריכלות
שחור לבן בצבע
אומנות העיצוב מול הטכנולוגיה - האם ניתן למזג ביניהם?
אדריכלות
אומנות העיצוב מול הטכנולוגיה - האם ניתן למזג ביניהם?
אהבה ממבט ראשון
תכנון
אהבה ממבט ראשון
הדרך לבית שמרגישים בו טוב מתחילה על ספת המעצב
תכנון
הדרך לבית שמרגישים בו טוב מתחילה על ספת המעצב
סיפורה של גינה
אדריכלות
סיפורה של גינה
חווית הרחצה
אדריכלות
חווית הרחצה