אורח לרגע
אדריכלות

אורח לרגע

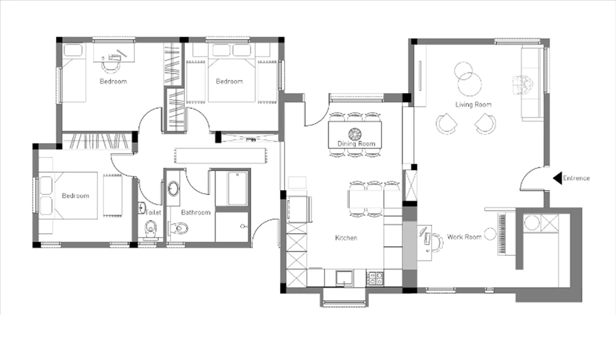
הבית בכפר האומנים הפסטורלי עין הוד, נבנה לראשונה בשנות ה- 70, ומאז לא עבר שיפוץ כולל הוא נבנה לראשונה כ"קוביה" ובמהלך השנים נוספה לו עוד "קוביה" – כלומר שני מבנים צמודים. עיצוב פנים: ערן נעים ואורי דוניץ | EN Studio   הפרוייקט נעשה בשיתוף עם האדריכל אייל רוזן

אקססוריז: SAGA TLV| One Bedroom | Abhaya

"בדרך לצפון תמיד עוברים תהליך "ניקוי" יש משהו מרגיע בירידה של הקצב הקיים בשיגרה העירונית במרכז, להגיע למקום פסטורלי כמו עין הוד"כפי שמספר מעצב הפנים ערן נעים, וכך היה גם תהליך התכנון והשיפוץ של הבית, מעין ניקוי של כל השלבים שהבית עבר במהלך שנות קיומו.

הבניה של הבית בשלבים יצרה ריבוי חלוקות אשר יצרו ריבוי של חללי ביניים, ללא  היררכיה בחלל, המטבח היה מנותק מהסלון, הסלון מנותק מחדר העבודה וניתוק מוחלט בין חדר העבודה למטבח. 


במהלך השיפוץ לבקשת בעלת הבית המטבח הפך לחלל המרכזי של הבית ונפתחו החללים המרובים, על מנת לייצר יותר אינטרקציה בין ה"קוביות" וליצור זרימה יותר חופשית בבית. זרימה אשר מתבטאת בתנועה חופשית בין החללים אך גם במבטים הנוצרים כתוצאה מפתיחת החלל.


המחיצה המפרידה בין חדר העבודה והמטבח, הפתח הוא אמנם קטן יחסית אך הוא יצר שינוי משמעותי בחלל, כמו גם פיתרון פונקציונאלי.


נכנסנו לפרוייקט משני עולמות זרים, כאורחים אל רגע בעולמן של בעלי הבית. החיבור שנוצר בין העולמות השאיר חותמו אצל שני הצדדים, כל אחד בדרכו 

אקססוריז: SAGA TLV|  One Bedroom | Abhaya

אקססוריז: SAGA TLV| One Bedroom | Abhaya


כתבות נוספות

תערוכות בוגרים במחלקות לאדריכלות ועיצוב
תכנון
תערוכות בוגרים במחלקות לאדריכלות ועיצוב
הושט היד וגע בה
אדריכלות
הושט היד וגע בה
הדרך הנכונה לבית מעוצב – תכנון העיצוב של חללי הבית השונים
תכנון
הדרך הנכונה לבית מעוצב – תכנון העיצוב של חללי הבית השונים
מה בין עיצוב פנים להום סטיילינג
תכנון
מה בין עיצוב פנים להום סטיילינג
עיצוב דיגיטאלי - דיגיטל שיק
תכנון
עיצוב דיגיטאלי - דיגיטל שיק
איך הופכים דירת קבלן חדשה לפנטהאוז מרהיב על הים?
אדריכלות
איך הופכים דירת קבלן חדשה לפנטהאוז מרהיב על הים?
עיצוב ושיפוץ דירה בולנסיה
תכנון
עיצוב ושיפוץ דירה בולנסיה
משחק ה"ארכפאזל של בית ונוי"
עיצוב
משחק ה"ארכפאזל של בית ונוי"
איזון עדין - תכנון מחדש של בית בשרון
אדריכלות
איזון עדין - תכנון מחדש של בית בשרון
לעצב בקליק: מותגי החשמל והריהוט אונליין בדרך לכבוש את הבית (והלב) שלנו
עיצוב
לעצב בקליק: מותגי החשמל והריהוט אונליין בדרך לכבוש את הבית (והלב) שלנו
תמ"א 38 – הזדמנות להתחדש
תכנון
תמ"א 38 – הזדמנות להתחדש
כבשו את מילאנו: מי זכה בפרס SaloneSatellite 2026
חומרים
כבשו את מילאנו: מי זכה בפרס SaloneSatellite 2026
"צעצוע" - תערוכה בנושא צעצועים
אדריכלות
"צעצוע" - תערוכה בנושא צעצועים
בפריז כמו בפריז, בריהוט כמו באופנה
אדריכלות
בפריז כמו בפריז, בריהוט כמו באופנה
רשת רנואר - חנות הדגל
חומרים
רשת רנואר - חנות הדגל
על אומנות שבאה לידי ביטוי בצילום האדריכלי
עיצוב
על אומנות שבאה לידי ביטוי בצילום האדריכלי
6 פעולות שכדאי לשקול בכל שיפוץ
תכנון
6 פעולות שכדאי לשקול בכל שיפוץ
ולמרות הכל - עשוי רק משני מרכיבים
חומרים
ולמרות הכל - עשוי רק משני מרכיבים
מהפכה של ממש
אדריכלות
מהפכה של ממש
השיטה העתיקה לבניית מבנים חזקים ועמידים ללא שימוש במלט
תכנון
השיטה העתיקה לבניית מבנים חזקים ועמידים ללא שימוש במלט
בניה ירוקה - ניצול ושימור אנרגיה
תכנון
בניה ירוקה - ניצול ושימור אנרגיה
אמנות הרישוי
אדריכלות
אמנות הרישוי
עיצוב סובב עולם
אדריכלות
עיצוב סובב עולם
חדשות וחידושים - 122
עיצוב
חדשות וחידושים - 122
עיצוב ושיפוץ בית - בחוץ המאה ה-19, בפנים המאה ה-21
אדריכלות
עיצוב ושיפוץ בית - בחוץ המאה ה-19, בפנים המאה ה-21
מלאו אסמינו... עיצוב חדש
אדריכלות
מלאו אסמינו... עיצוב חדש
כיצד תאפיין את הסגנון האישי שלך
עיצוב
כיצד תאפיין את הסגנון האישי שלך
תמורות בחיפוי מבנים: זהות מקומית ועמידות לאורך שנים
חומרים
תמורות בחיפוי מבנים: זהות מקומית ועמידות לאורך שנים
מזנון שחור- מה חשוב לדעת?
תכנון
מזנון שחור- מה חשוב לדעת?
תחרות לעיצוב בית מרחץ בלטבייה
אדריכלות
תחרות לעיצוב בית מרחץ בלטבייה
תערוכת הרהיטים מילאנו 2009
אדריכלות
תערוכת הרהיטים מילאנו 2009
בשם הפרטיות: רואים שקוף, רואים רחוק
אדריכלות
בשם הפרטיות: רואים שקוף, רואים רחוק
THE POWER TO CREATE
חומרים
THE POWER TO CREATE
Fabio Novembre מילאנו 2009
אדריכלות
Fabio Novembre מילאנו 2009
הריף האורבאני שזכה בתחרות הקנדית
אדריכלות
הריף האורבאני שזכה בתחרות הקנדית
תתארגנו על עצמכם
תכנון
תתארגנו על עצמכם
לספר סיפור אחר , מקדש לאוהבי סושי
אדריכלות
לספר סיפור אחר , מקדש לאוהבי סושי
"בית אמיתי" - שיפוץ מרכז שיקומי לנוער
עיצוב
"בית אמיתי" - שיפוץ מרכז שיקומי לנוער
חיבורים במרחב
תכנון
חיבורים במרחב
לגור בצימר: מעצב הפנים שהפך את החלל לבית מעוצב וחמים
אדריכלות
לגור בצימר: מעצב הפנים שהפך את החלל לבית מעוצב וחמים
מתי הכי טוב לעשות ניקוי פאנלים סולאריים?
עיצוב
מתי הכי טוב לעשות ניקוי פאנלים סולאריים?
מתחת לפני השטח
אדריכלות
מתחת לפני השטח
עיצוב חדש לקוטף סברס
תכנון
עיצוב חדש לקוטף סברס
חדשנות בעידן הטכנולוגי, טיפוח יצירתיות אנושית מקוריות בעידן הדיגיטלי
אדריכלות
חדשנות בעידן הטכנולוגי, טיפוח יצירתיות אנושית מקוריות בעידן הדיגיטלי
new lab - חממה טכנולוגית עתידנית על הריסות מספנה ישנה
חומרים
new lab - חממה טכנולוגית עתידנית על הריסות מספנה ישנה
בית שהוא סיפור
אדריכלות
בית שהוא סיפור
משרדי חברת הראל פיננסים
חומרים
משרדי חברת הראל פיננסים
אלון חסון - עיצוב משרד בבית
תכנון
אלון חסון - עיצוב משרד בבית
עיצוב חדר ארונות מודרני
אדריכלות
עיצוב חדר ארונות מודרני
לגור בעיר, להרגיש בכפר - האם זה אפשרי?
עיצוב בתים פרטיים ודירות
לגור בעיר, להרגיש בכפר - האם זה אפשרי?
בית הפסים
אדריכלות
בית הפסים
אלוטון: מהר יותר, גבוה יותר, איכותי יותר
עיצוב
אלוטון: מהר יותר, גבוה יותר, איכותי יותר
עיצוב פנים והסטייל החדש
אדריכלות
עיצוב פנים והסטייל החדש
טיפים למייקאובר לסלון בלי לגמור את הכיס
חומרים
טיפים למייקאובר לסלון בלי לגמור את הכיס
מדברים עיצוב - סטודיו BCXSY
תכנון
מדברים עיצוב - סטודיו BCXSY
אי אפשר להגדיל את המטבח? תגדילו ראש
תכנון
אי אפשר להגדיל את המטבח? תגדילו ראש
הדירה הלבנה במוסקבה
תכנון
הדירה הלבנה במוסקבה
בין הפורמאלי לנונשלאנט
אדריכלות
בין הפורמאלי לנונשלאנט
האדריכל היפני מסהירו הרדה ירצה בוועידה הבינלאומית לחדשנות בעיצוב ואדריכלות
תכנון
האדריכל היפני מסהירו הרדה ירצה בוועידה הבינלאומית לחדשנות בעיצוב ואדריכלות
גאווה ישראלית
עיצוב
גאווה ישראלית
6 השראות לעיצוב סלון הבית
תכנון
6 השראות לעיצוב סלון הבית
הרפת שהפכה לארמון קוסמטי
חומרים
הרפת שהפכה לארמון קוסמטי
הלובי כעוגן נדל"ני: החלל שמשפיע על ערך הבניין יותר ממה שנדמה
תכנון
הלובי כעוגן נדל"ני: החלל שמשפיע על ערך הבניין יותר ממה שנדמה
הכי רחוקה מהסטנדרט
תכנון
הכי רחוקה מהסטנדרט
מחדר משחקים במרפסת לחדר גיימינג חלומי: חלל הילדות הפך למרחב בוגר וחווייתי
עיצוב
מחדר משחקים במרפסת לחדר גיימינג חלומי: חלל הילדות הפך למרחב בוגר וחווייתי
פוליביד: רואים ירוק רואים רחוק
תכנון
פוליביד: רואים ירוק רואים רחוק
עיצוב דירה ישנה ברוח עברה
תכנון
עיצוב דירה ישנה ברוח עברה
"רציתי שמכל מקום בדירה יראו את הים ואת הגגות של ת"א"
עיצוב
"רציתי שמכל מקום בדירה יראו את הים ואת הגגות של ת"א"
שומרים על החום מבפנים
תכנון
שומרים על החום מבפנים
ריצוף חללי פנים
חומרים
ריצוף חללי פנים
לא על שכר הטרחה לבדו
אדריכלות
לא על שכר הטרחה לבדו
תכנון ירוק - בית פרטי במושב בשרון
תכנון
תכנון ירוק - בית פרטי במושב בשרון
שטח קטן,מרחב גדול
אדריכלות
שטח קטן,מרחב גדול
חוויה מתקנת
אדריכלות
חוויה מתקנת
תערוכת Maison & Objet ינואר 2011
אדריכלות
תערוכת Maison & Objet ינואר 2011
קליל: למקסם את מלוא אורך רצפה-תקרה
תכנון
קליל: למקסם את מלוא אורך רצפה-תקרה
ה:Rabbit Brush Residence בג'קסון וויומינג
אדריכלות
ה:Rabbit Brush Residence בג'קסון וויומינג
חידושים בתחום עיצוב מטבחים
תכנון
חידושים בתחום עיצוב מטבחים
עיצוב ברזים
עיצוב
עיצוב ברזים
דווקא עכשיו, ויותר מתמיד
תכנון
דווקא עכשיו, ויותר מתמיד
גדר חיה בגן
אדריכלות
גדר חיה בגן
תערוכת BAU - המקום הכי חם בחורף הקרוב
אדריכלות
תערוכת BAU - המקום הכי חם בחורף הקרוב
עיצוב חוצה תרבויות
אדריכלות
עיצוב חוצה תרבויות
עיצוב שעונים - חבל על הזמן
אדריכלות
עיצוב שעונים - חבל על הזמן
עיצוב בירוק
חומרים
עיצוב בירוק
עיצוב בר קיימא בהשראת התעשייה
אדריכלות
עיצוב בר קיימא בהשראת התעשייה
מצעד המצעים הנעימים 2022
עיצוב
מצעד המצעים הנעימים 2022
בין ה"מאגניב" לרגוע
חומרים
בין ה"מאגניב" לרגוע
פנטהאוז מול הים: דירת נופש מינימליסטית בעיצוב
תכנון
פנטהאוז מול הים: דירת נופש מינימליסטית בעיצוב
הנה הם באים: הטרנדים והמגמות לשנת תשפ"ה כבר כאן
תכנון
הנה הם באים: הטרנדים והמגמות לשנת תשפ"ה כבר כאן
אמבט לגור בו
אדריכלות
אמבט לגור בו
Coveri - חנות קונספט
חומרים
Coveri - חנות קונספט
בלב היער
אדריכלות
בלב היער
רעיונות טובים צריכים חומר שיהפוך אותם למציאות
תכנון
רעיונות טובים צריכים חומר שיהפוך אותם למציאות
תכנון במזל דגים
אדריכלות
תכנון במזל דגים
הוט קוטור ממוחזר
חומרים
הוט קוטור ממוחזר
תחרות לאדריכלים ומעצבים - התחרות של Next7
אדריכלות
תחרות לאדריכלים ומעצבים - התחרות של Next7
עיצוב חדר שינה
עיצוב
עיצוב חדר שינה
תכנון בתים במגרשים צרים
אדריכלות
תכנון בתים במגרשים צרים
מדברים עיצוב - Maarten Baas
תכנון
מדברים עיצוב - Maarten Baas