עד אחרון הפרטים
תכנון

עד אחרון הפרטים

עיצוב הפנים שהעניקה המעצבת אתי חצרוני לדירה בתל אביב, הושתת על דיוק הבא לידי ביטוי בחללה המסוגנן בו כל פרט קטן כגדול מטופל בקפידה ומספק מענה מגורים מושלם לדייריה

הרעיון שהנחה את תכנונה ועיצובה של הדירה היה "לדייק" את החלל לשגרת חייה של המשפחה" אומרת מעצבת הפנים אתי חצרוני, על הדירה השוכנת באחד ממגדלי היוקרה בתל אביב. "הדירה, ששטחה משתרע על כ- 125 מ"ר + 11 מ"ר מרפסת, כללה עם רכישתה חמישה חדרים, אך בעת ניתוח הצרכים בשלב הפרוגראמה הסתבר כי ניתן, ואף עדיף, לצמצם את מספרם לארבעה, ובכך להרוויח שטח לטובת פונקציות שתואמות יותר את אורח החיים בבית, כמו, למשל, חלל מגורים מרווח שיענה על מנהגם של בני המשפחה (בני זוג ושני בנים בוגרים) לבלות בו את מרבית זמנם ביחד, כמו גם על אהבת האירוח של בני הזוג".

מבט מעומק החלל הציבורי שמרכז בשטחו את הפונקציות המשותפות כולל פינת עבודה, וכן שתי יציאות למרפסת המשקיפה אל הנוף. ריצוף באריחי מילנו גריי גדולים בליטוש מבריק וצבעוניות מאופקת של תתי גוונים. ריצוף: "מודי".

מבט מעומק החלל הציבורי שמרכז בשטחו את הפונקציות המשותפות כולל פינת עבודה, וכן שתי יציאות למרפסת המשקיפה אל הנוף. ריצוף באריחי מילנו גריי גדולים בליטוש מבריק וצבעוניות מאופקת של תתי גוונים. ריצוף:

מבט מעומק החלל הציבורי שמרכז בשטחו את הפונקציות המשותפות כולל פינת עבודה, וכן שתי יציאות למרפסת המשקיפה אל הנוף. ריצוף באריחי מילנו גריי גדולים בליטוש מבריק וצבעוניות מאופקת של תתי גוונים. ריצוף: "מודי".


בתוך כך, נדרשה חצרוני לבצע חלוקת חלל חדשה, וכן להתמודד עם אילוצים שזימן המבנה המקורי "מדובר בדירה מרובת פתחי מסך מרצפה לתקרה (בכולם משתלב וילון פנימי המופעל באמצעות שלט), שהכניסה אליה הייתה חסומה בגלל קיר המטבח- מעין קיר מבואה שיצר הפרדה בכניסה, ואגב כך חסם גם את הנוף. בנוסף, במרכז החלל משתלבת מרפסת בעלת שתי יציאות- מהמטבח ומחלל המגורים, ושני הנתונים דרשו מציאת פתרונות להשגת זרימת חלל נעימה תוך שילוב כלל האלמנטים המבוקשים, והצבה נכונה ומדויקת של פריטי הריהוט".

פינת האוכל במרכז החלל הציבורי מקבלת את פני הנכנסים. מעליה: גוף תאורה דקורטיבי שנרכש בשוק הפשפשים, נצבע בצהוב עז כנגיעה של צבע במארג הגוונים המאופק, ולצד השולחן העגול שטיח בעיצוב תואם. שולחן אוכל:

פינת האוכל במרכז החלל הציבורי מקבלת את פני הנכנסים. מעליה: גוף תאורה דקורטיבי שנרכש בשוק הפשפשים, נצבע בצהוב עז כנגיעה של צבע במארג הגוונים המאופק, ולצד השולחן העגול שטיח בעיצוב תואם. שולחן אוכל: "כרמי", שנדלייר: דוד פולד - אילת תאורה, קערה דקורטיבית – אלמנטו.

פינת האוכל במרכז החלל הציבורי מקבלת את פני הנכנסים. מעליה: גוף תאורה דקורטיבי שנרכש בשוק הפשפשים, נצבע בצהוב עז כנגיעה של צבע במארג הגוונים המאופק, ולצד השולחן העגול שטיח בעיצוב תואם. שולחן אוכל:

פינת האוכל במרכז החלל הציבורי מקבלת את פני הנכנסים. מעליה: גוף תאורה דקורטיבי שנרכש בשוק הפשפשים, נצבע בצהוב עז כנגיעה של צבע במארג הגוונים המאופק, ולצד השולחן העגול שטיח בעיצוב תואם. שולחן אוכל: "כרמי", שנדלייר: דוד פולד - אילת תאורה, קערה דקורטיבית – אלמנטו.


ביטול החדר החמישי אכן ריווח את החלל תוך יצירת מרחב מגורים מרווח ואוורירי המרכז בשטחו מטבח, פינת אוכל, סלון ופינת עבודה, וכן אזור פרטי הכולל שני חדרי ילדים, ויחידת הורים, שהמסדרון הרחב שהוביל אליה נוצל אף הוא לתכנון חלל החדר (ראה תוכניות). 

תוכניות אחרי

תוכניות אחרי

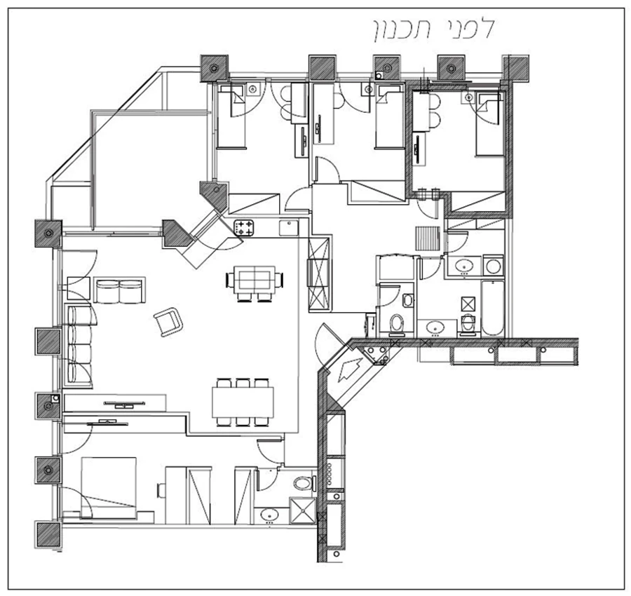
תוכניות לפני

תוכניות לפני

לאורך קיר הסלון: קומפוזיציה המשלבת מדפים פתוחים מעץ אלון, תאים סגורים, שתי יחידות אנכיות עם חזיתות נירוסטה בגימור מראה שמשמשות כבר, ויחידת אחסון נמוכה הנמשכת לכל אורכה ומכילה, בין היתר, מקרר יינות. ממול: ניגוד צורני בין שתי כורסאות בעיצוב מעוגל לבין שולחנות קפה בעיצוב אוורירי מצולע. עיצוב וביצוע ספרייה: יפרח בן צבי, מערכת ישיבה: פיטרו הכט, תאורה: קמחי תאורה, שטיחים: צמר שטיחים יפים.

לאורך קיר הסלון: קומפוזיציה המשלבת מדפים פתוחים מעץ אלון, תאים סגורים, שתי יחידות אנכיות עם חזיתות נירוסטה בגימור מראה שמשמשות כבר, ויחידת אחסון נמוכה הנמשכת לכל אורכה ומכילה, בין היתר, מקרר יינות. ממול: ניגוד צורני בין שתי כורסאות בעיצוב מעוגל לבין שולחנות קפה בעיצוב אוורירי מצולע. עיצוב וביצוע ספרייה: יפרח בן צבי, מערכת ישיבה: פיטרו הכט, תאורה: קמחי תאורה, שטיחים: צמר שטיחים יפים.

תוכניות אחרי

תוכניות אחרי


ברובד האסתטי הגדירה הפרוגראמה קו עיצובי מודרני ועכשווי, אך כזה שיאפשר להכיל בתוכו גם נגיעות נוסטלגיות של מי שביתם הקודם היה מאופיין בשפה השמורה לאספנים שוחרי פריטים עתיקים.  האתגר, לפיכך, היה לשתול את הישן בעיצוב המודרני באורח הרמוני שלא יפר את חזותו הנקייה של החלל, ובה בעת יעניק נוכחות ראויה לתכנים האישיים של בעלי הבית.

מבט מהכניסה: פינת העבודה הממוקמת לצדה, פינת האוכל הממוקמת מולה, והכניסה למטבח. ארון חשמל שניצב לצד פינת העבודה מעוצב בהתאמה אליה ליצירת רצף ויזואלי המטמיע אותם בחלל. ביצוע: יפרח בן צבי.

מבט מהכניסה: פינת העבודה הממוקמת לצדה, פינת האוכל הממוקמת מולה, והכניסה למטבח. ארון חשמל שניצב לצד פינת העבודה מעוצב בהתאמה אליה ליצירת רצף ויזואלי המטמיע אותם בחלל. ביצוע: יפרח בן צבי.

לאורך קיר הסלון: קומפוזיציה המשלבת מדפים פתוחים מעץ אלון, תאים סגורים, שתי יחידות אנכיות עם חזיתות נירוסטה בגימור מראה שמשמשות כבר, ויחידת אחסון נמוכה הנמשכת לכל אורכה ומכילה, בין היתר, מקרר יינות. ממול: ניגוד צורני בין שתי כורסאות בעיצוב מעוגל לבין שולחנות קפה בעיצוב אוורירי מצולע. עיצוב וביצוע ספרייה: יפרח בן צבי, מערכת ישיבה: פיטרו הכט, תאורה: קמחי תאורה, שטיחים: צמר שטיחים יפים.

לאורך קיר הסלון: קומפוזיציה המשלבת מדפים פתוחים מעץ אלון, תאים סגורים, שתי יחידות אנכיות עם חזיתות נירוסטה בגימור מראה שמשמשות כבר, ויחידת אחסון נמוכה הנמשכת לכל אורכה ומכילה, בין היתר, מקרר יינות. ממול: ניגוד צורני בין שתי כורסאות בעיצוב מעוגל לבין שולחנות קפה בעיצוב אוורירי מצולע. עיצוב וביצוע ספרייה: יפרח בן צבי, מערכת ישיבה: פיטרו הכט, תאורה: קמחי תאורה, שטיחים: צמר שטיחים יפים.

לריצוף החלל נבחרו אריחי מילנו גריי אפורים גדולים- 80X80- בליטוש מבריק, מרבית התאורה בו מתקבלת מגופים מינימליסטיים לבנים- שקועים וקבועי קיר ותקרה שאינם מייצרים עומס, ופלטת הצבעים נשלטת ע"י גוונים מאופקים כמוקה, אפור וחאקי, עם מינון מדוד מאד של גון צהוב. בחירתו נגזרה מציור של פיצ'חדזה המעטר את אחד הקירות, והיא שהכתיבה גם את גונו של גוף התאורה הדקורטיבי של פינת האוכל אשר נרכש בשוק הפשפשים ונצבע בהתאמה לעיצוב. 

המטבח ששטחו הוגדל על חשבון חדר סמוך: יחידה גבוהה, יחידת ארונות וכיור נמוכה, ויחידת אי מרכזית ארוכה וצרה המשמשת לאחסון, בישול ודלפק  אכילה בחיי יומיום. חזיתות בגימור שלייף לק אפור חוברות לשפת החלל. מטבח: LEICHT,

המטבח ששטחו הוגדל על חשבון חדר סמוך: יחידה גבוהה, יחידת ארונות וכיור נמוכה, ויחידת אי מרכזית ארוכה וצרה המשמשת לאחסון, בישול ודלפק אכילה בחיי יומיום. חזיתות בגימור שלייף לק אפור חוברות לשפת החלל. מטבח: LEICHT, "ארבעה נגרים".

מבט מהכניסה: פינת העבודה הממוקמת לצדה, פינת האוכל הממוקמת מולה, והכניסה למטבח. ארון חשמל שניצב לצד פינת העבודה מעוצב בהתאמה אליה ליצירת רצף ויזואלי המטמיע אותם בחלל. ביצוע: יפרח בן צבי.

מבט מהכניסה: פינת העבודה הממוקמת לצדה, פינת האוכל הממוקמת מולה, והכניסה למטבח. ארון חשמל שניצב לצד פינת העבודה מעוצב בהתאמה אליה ליצירת רצף ויזואלי המטמיע אותם בחלל. ביצוע: יפרח בן צבי.

כמי שאירוח הוא חלק בלתי נפרד מאורחות חייהם, אין ספק שהכניסה לדירה חושפת זאת באחת, עם פינת אוכל מזמינה שבמיקומה במרכז החלל, בין המטבח לסלון, מקבלת את פני הבאים- שולחן עגול שבעת הצורך ניתן להגדלה משמעותית ומאפשר למספר גדול של סועדים (20) להסב סביבה בנוחות (ההגדלות משתלבות בתוך רגלי השולחן!). בסלון הסמוך,  כמו בכל אזורי הבית האחרים, משתלבות עבודות נגרות שתכננה חצרוני בשיתוף פעולה עם המעצב יפרח בן צבי, תוך בחינה מדוקדקת של כל צורך וצורך להשגת פתרונות אחסון מיטביים, פונקציונאליים ואסתטיים.

שירותי האורחים: עיצוב דרמטי: מדף אגוז גושני עם כיור בהנחה עליונה  ותחתיו מדף שלבים. חיפוי, ריצוף ואביזרים סניטאריים:

שירותי האורחים: עיצוב דרמטי: מדף אגוז גושני עם כיור בהנחה עליונה ותחתיו מדף שלבים. חיפוי, ריצוף ואביזרים סניטאריים: "מודי", שטיחי טלאים: "צמר שטיחים יפים".

המטבח ששטחו הוגדל על חשבון חדר סמוך: יחידה גבוהה, יחידת ארונות וכיור נמוכה, ויחידת אי מרכזית ארוכה וצרה המשמשת לאחסון, בישול ודלפק  אכילה בחיי יומיום. חזיתות בגימור שלייף לק אפור חוברות לשפת החלל. מטבח: LEICHT,

המטבח ששטחו הוגדל על חשבון חדר סמוך: יחידה גבוהה, יחידת ארונות וכיור נמוכה, ויחידת אי מרכזית ארוכה וצרה המשמשת לאחסון, בישול ודלפק אכילה בחיי יומיום. חזיתות בגימור שלייף לק אפור חוברות לשפת החלל. מטבח: LEICHT, "ארבעה נגרים".


הדומיננטית בחלל זה היא מערכת 'ספרייה' הנמשכת על פני קיר שאורכו 6 מ', ומעוצבת כקומפוזיציה המשלבת יחידת מזנון ארוכה ונמוכה, מדפי עץ  פתוחים עם תאים סגורים המשתלבים עמם "פה ושם", ושתי יחידות אורכיות. המדפים הפתוחים משמשים להצבת פריטי נוי אהובים במיוחד שנותרו לאחר "דילול רציני" כדברי חצרוני, והם עשויים עץ אלון שנבחר בהתאמה לפינת האוכל.

תוכניות לפני

תוכניות לפני

שירותי האורחים: עיצוב דרמטי: מדף אגוז גושני עם כיור בהנחה עליונה  ותחתיו מדף שלבים. חיפוי, ריצוף ואביזרים סניטאריים:

שירותי האורחים: עיצוב דרמטי: מדף אגוז גושני עם כיור בהנחה עליונה ותחתיו מדף שלבים. חיפוי, ריצוף ואביזרים סניטאריים: "מודי", שטיחי טלאים: "צמר שטיחים יפים".

היחידה הנמוכה שמצניעה בתוכה, בין היתר, מקרר יינות, והתאים הסגורים המשתלבים בינות למדפים עוצבו עם חזיתות שלייף לק באפור בטון ומשמשים לאחסון כלים ולמגוון צרכי אחסון נוספים, ועל היחידות האורכיות המכילות בר משקאות סוגרות חזיתות נירוסטה בגימור מראה מבריק בו משתקף החלל תוך העצמת תחושת גודל ומרחב. פינת הישיבה הממוקמת מול המערכת המרשימה נרקמת מספת עור נוחה ומזמינה, משתי כורסאות בעיצוב מעוגל המהווה סוג של הד ויזואלי לשולחן פינת האוכל, משטיחים מסוגננים, ומשני שולחנות קפה, שבעיצובם הגיאומטרי-אוורירי המתקבל מקונסטרוקציית ברזל ומשטחי זכוכית מייצרים ניגוד צורני למוטיב המעוגל ונוסכים עניין שונה. 

יחידת השינה שהורחבה ע

יחידת השינה שהורחבה ע"י סיפוח מעבר שהוביל אליה. ריצוף פרקט בגוון אלון מולבן ונגרות ייעודית הכוללת גב המיטה ארוך במיוחד בגון תואם. על הגב תלויים ארונות לילה שאחד מהם ממשיך כשתי שידות אחסון ארוכות התלויות לאורכו של קיר המסדרון שסופח לחלל. עיצוב וביצוע נגרות: יפרח בן צבי.

יחידת השינה שהורחבה ע

יחידת השינה שהורחבה ע"י סיפוח מעבר שהוביל אליה. ריצוף פרקט בגוון אלון מולבן ונגרות ייעודית הכוללת גב המיטה ארוך במיוחד בגון תואם. על הגב תלויים ארונות לילה שאחד מהם ממשיך כשתי שידות אחסון ארוכות התלויות לאורכו של קיר המסדרון שסופח לחלל. עיצוב וביצוע נגרות: יפרח בן צבי.

המטבח הפעיל בביתם של אוהבי בישול ואירוח הוא אזור המספק לכך מענה נוח, ולמרות היותו חלק בלתי נפרד מחלל המגורים הוא עדיין מוגדר דיו כאזור בפני עצמו. שטחו הוגדל ע"י סיפוח נישה של החדר הגובל בו לטובת יחידת ארונות גבוהה בה משתלבים גם מכשירי החשמל, ויחידת ארונות נמוכים +משטח עבודה וכיור מוקמה מתחת לחלון כשהיא נהנית מאור יום נעים. במרכז החלל ניצבת יחידת אי ארוכה וצרה המשמשת לאחסון, בישול וכדלפק אכילה בחיי יומיום, ובעיצובו שבוצע עם חזיתות שלייף לק באפור בהיר הוא חובר הרמונית לשפת החלל. פינת העבודה הפונקציונאלית שמוקמה אף היא במרחב הציבורי תוכננה בתוך נישה בצמוד לארון החשמל הדירתי, כרצף חזותי נקי המטמיע אותם אינטגראלית בחלל. 

יחידת השינה שהורחבה ע

יחידת השינה שהורחבה ע"י סיפוח מעבר שהוביל אליה. ריצוף פרקט בגוון אלון מולבן ונגרות ייעודית הכוללת גב המיטה ארוך במיוחד בגון תואם. על הגב תלויים ארונות לילה שאחד מהם ממשיך כשתי שידות אחסון ארוכות התלויות לאורכו של קיר המסדרון שסופח לחלל. עיצוב וביצוע נגרות: יפרח בן צבי.

יחידת השינה שהורחבה ע

יחידת השינה שהורחבה ע"י סיפוח מעבר שהוביל אליה. ריצוף פרקט בגוון אלון מולבן ונגרות ייעודית הכוללת גב המיטה ארוך במיוחד בגון תואם. על הגב תלויים ארונות לילה שאחד מהם ממשיך כשתי שידות אחסון ארוכות התלויות לאורכו של קיר המסדרון שסופח לחלל. עיצוב וביצוע נגרות: יפרח בן צבי.

 האסתטיקה, הקפידה על כל פרט והתכנון המדויק מאפיינים כל חלל וחלל בבית: כך, לדוגמה, שירותי האורחים שעוצבו תוך שילוב נגרות ייעודית של בן צבי ושטיחים המשלימים את חזותם הדרמטית-מסוגננת, חדרי הילדים שעוצבו בהתאמה לטעם האישי של כל אחד מהם, והטיפול ביחידת ההורים, אומרת חצרוני "היה בבחינת פרויקט בפני עצמו". 

חדרי הבנים: נגרות ייעודית ועיצובים שנרקמו על סמך טעמם האישי. נגרות:

חדרי הבנים: נגרות ייעודית ועיצובים שנרקמו על סמך טעמם האישי. נגרות: "דלקוב", וילונות: "אורית טראוב"

חדרי הבנים: נגרות ייעודית ועיצובים שנרקמו על סמך טעמם האישי. נגרות:

חדרי הבנים: נגרות ייעודית ועיצובים שנרקמו על סמך טעמם האישי. נגרות: "דלקוב", וילונות: "אורית טראוב"

המרפסת המשקיפה אל הנוף

המרפסת המשקיפה אל הנוף "שוברת" את מארג הצבע של הפנים עם מערכת ישיבה בגווני תכלת וחול שנבחרו בהתאמה לים הנשקף באופק. מערכת ישיבה: "טולמנ'ס".


המסדרון שהוביל אליה סופח לשטחה והצורך באחסון רב הניב נגרות מוקפדת שנתפרה בהתאמה מדויקת למשעי. כמו כל חללי האזור הפרטי היא רוצפה בפרקט בגוון אלון מולבן המקנה לה חזות בהירה ונעימה, ועל גב המיטה הארוך במיוחד שהותאם לו בגונו נתלו ארונות לילה שאחד מהם ממשיך, למעשה, כשתי שידות אחסון ארוכות התלויות לאורכו של הקיר שתחם את המסדרון. יחידת אחסון פרקטית נוספת תוכננה מול המיטה- יחידה צרה המאכלסת בתוכה תיקים ונעליים שחללה הפנימי הותאם "אחד לאחד" לתכולה המאוחסנת בו ולמידות החדר כולו. העיצוב המהודק אינו פוסח על המרפסת הצופה אל נוף העיר, עבורה בחרה חצרוני במערכת ריהוט חוץ בגווני תכלת וחול החוברים אל נוף הים הנשקף באופק ומשלימים סיפור של עיצוב מהודק עד אחרון פרטיו.    

המרפסת המשקיפה אל הנוף

המרפסת המשקיפה אל הנוף "שוברת" את מארג הצבע של הפנים עם מערכת ישיבה בגווני תכלת וחול שנבחרו בהתאמה לים הנשקף באופק. מערכת ישיבה: "טולמנ'ס".


כתבות נוספות

מוצרי חשמל במטבח
תכנון
מוצרי חשמל במטבח
כשירושלים פוגשת את תל-אביב
תכנון
כשירושלים פוגשת את תל-אביב
דיור בר קיימא - מכולות ומגורים
תכנון
דיור בר קיימא - מכולות ומגורים
מינימל קומפקט
תכנון
מינימל קומפקט
כחול הוא הצבע שלי
אדריכלות
כחול הוא הצבע שלי
מגדל רוטשילד 17 - מגדל ירוק
תכנון
מגדל רוטשילד 17 - מגדל ירוק
הצצה למלון "קליק קלאק" בקולומביה
אדריכלות
הצצה למלון "קליק קלאק" בקולומביה
חושבים שנים קדימה
תכנון
חושבים שנים קדימה
כך תוכלו להתחיל לשלב בינה מלאכותית בעבודת העיצוב שלכם
אדריכלות
כך תוכלו להתחיל לשלב בינה מלאכותית בעבודת העיצוב שלכם
מתכננים שיפוץ בבית? אל תשכחו את הביוב!
תכנון
מתכננים שיפוץ בבית? אל תשכחו את הביוב!
הטרנד הוא אני
חומרים
הטרנד הוא אני
מתאבנים מתערוכת הריהוט במילאנו 2011
אדריכלות
מתאבנים מתערוכת הריהוט במילאנו 2011
מודרניות במעטפת מדברית
עיצוב
מודרניות במעטפת מדברית
האדריכלים כבר בחרו - אולם התצוגה החדש של ירדן קרמיקה
תכנון
האדריכלים כבר בחרו - אולם התצוגה החדש של ירדן קרמיקה
איך הופכים דירת קבלן ל"סוויטה" במלון בוטיק?
עיצוב
איך הופכים דירת קבלן ל"סוויטה" במלון בוטיק?
דירה קטנה - תכנון גדול: דירת 60 מ"ר בתל אביב
תכנון
דירה קטנה - תכנון גדול: דירת 60 מ"ר בתל אביב
דור חדש של מעצבים - בוגרים 2010
אדריכלות
דור חדש של מעצבים - בוגרים 2010
גלגולה של דירה - שיפוץ דירה ותיקה
תכנון
גלגולה של דירה - שיפוץ דירה ותיקה
דלתות כיס: כניסה לעולם של תחכום אלגנטי
תכנון
דלתות כיס: כניסה לעולם של תחכום אלגנטי
AUPING Essential - תתכווננו לישון נפלא!
עיצוב
AUPING Essential - תתכווננו לישון נפלא!
בשורת משטחי השיש והאריחים המשושים
חומרים
בשורת משטחי השיש והאריחים המשושים
אדריכלות הנוף מגדירה מחדש את היחס בין אדם לסביבה
תכנון
אדריכלות הנוף מגדירה מחדש את היחס בין אדם לסביבה
מדידה ארגונית בתהליך עיצוב סביבת העבודה
חומרים
מדידה ארגונית בתהליך עיצוב סביבת העבודה
עיצוב פינות אוכל בגדלים שונים
אדריכלות
עיצוב פינות אוכל בגדלים שונים
הקירות מדברים - עיצוב קירות בהשראת נפלאות הטבע - פוסט אורח
אדריכלות
הקירות מדברים - עיצוב קירות בהשראת נפלאות הטבע - פוסט אורח
סדר יום כנס בנייה ירוקה 25.11.2013
תכנון
סדר יום כנס בנייה ירוקה 25.11.2013
תערוכת אמביינטה בפרנקפורט, למטיבי לכת בלבד
אדריכלות
תערוכת אמביינטה בפרנקפורט, למטיבי לכת בלבד
הסוד לבית מסודר: בית שסולח על בלגן יומיומי
עיצוב
הסוד לבית מסודר: בית שסולח על בלגן יומיומי
פריטי ריהוט בעיצוב חדרים קטנים
תכנון
פריטי ריהוט בעיצוב חדרים קטנים
70 שנות עיצוב ואדריכלות
עיצוב
70 שנות עיצוב ואדריכלות
אייטמים בסגנון חופשי
עיצוב
אייטמים בסגנון חופשי
המונדיאל בפתח: איך להפוך את הבית לאצטדיון ביתי מושלם
חומרים
המונדיאל בפתח: איך להפוך את הבית לאצטדיון ביתי מושלם
בניה ירוקה - פורצת גבולות
תכנון
בניה ירוקה - פורצת גבולות
השוואת חומרי בניין: בטון מול פלדה ועץ
תכנון
השוואת חומרי בניין: בטון מול פלדה ועץ
בדלת אמותיו - שיפוץ ושימור מבנים ודלתות
תכנון
בדלת אמותיו - שיפוץ ושימור מבנים ודלתות
כלים להתמודדות עם האתגר המפחיד בסידור הבית - הניירת
תכנון
כלים להתמודדות עם האתגר המפחיד בסידור הבית - הניירת
עיצוב דירת גג
תכנון
עיצוב דירת גג
לארח עם טום דיקסון, לחייך עם גו'נתן אדלר
עיצוב
לארח עם טום דיקסון, לחייך עם גו'נתן אדלר
מה שקורה בכפר נשאר בכפר
תכנון
מה שקורה בכפר נשאר בכפר
עיצוב באדום
אדריכלות
עיצוב באדום
התאמה ייחודית לרצונות הלקוח
אדריכלות
התאמה ייחודית לרצונות הלקוח
שקוף שזה שביר
תכנון
שקוף שזה שביר
שבי ציון - מתנוסס באוויר
תכנון
שבי ציון - מתנוסס באוויר
"הולנדיה" משיקה: המיטה החכמה ביותר בעולם
עיצוב
"הולנדיה" משיקה: המיטה החכמה ביותר בעולם
צפו בתערוכות עיצוב המתקיימות בגרמניה, אנגליה, אוסטריה וארה"ב
אדריכלות
צפו בתערוכות עיצוב המתקיימות בגרמניה, אנגליה, אוסטריה וארה"ב
היום פה, מחר שם
אדריכלות
היום פה, מחר שם
המטבח החכם
תכנון
המטבח החכם
פרובנס זה כאן
תכנון
פרובנס זה כאן
עשתה לביתה: כך הפכה המעצבת דירה סטנדרטית בפתח תקווה לממלכה צבעונית
אדריכלות
עשתה לביתה: כך הפכה המעצבת דירה סטנדרטית בפתח תקווה לממלכה צבעונית
Silent rooms – הדרך לאיכות חיים בחלל המשרד המודרני
חומרים
Silent rooms – הדרך לאיכות חיים בחלל המשרד המודרני
מלון בוטיק בעיצובו של קארים רשיד
חומרים
מלון בוטיק בעיצובו של קארים רשיד
אפקט הוואו
אדריכלות
אפקט הוואו
משפחה בהרחבה
אדריכלות
משפחה בהרחבה
בסוף רמת גן יש מקום מיוחד, שם אפשר לעמוד ולראות שני מגדלים מדברים זה עם זה
אדריכלות
בסוף רמת גן יש מקום מיוחד, שם אפשר לעמוד ולראות שני מגדלים מדברים זה עם זה
מה משותף לדונלד דאק, ליווייס ולואי ויטון?
עיצוב
מה משותף לדונלד דאק, ליווייס ולואי ויטון?
הכנס השנתי למנהלי פרוייקטים 2016
אדריכלות
הכנס השנתי למנהלי פרוייקטים 2016
הכיוון טבע
עיצוב
הכיוון טבע
מה ההבדל בין תכנון, עיצוב ואבזור?
אדריכלות
מה ההבדל בין תכנון, עיצוב ואבזור?
הדברת חולדות בבית פרטי למה זה חשוב ומה הסכנות?
טכנולוגיה
הדברת חולדות בבית פרטי למה זה חשוב ומה הסכנות?
גדעון לוין - צילום אדריכלות
אדריכלות
גדעון לוין - צילום אדריכלות
מסגננים חדרי רחצה
אדריכלות
מסגננים חדרי רחצה
עיצוב ושיפוץ בית - בחוץ המאה ה-19, בפנים המאה ה-21
אדריכלות
עיצוב ושיפוץ בית - בחוץ המאה ה-19, בפנים המאה ה-21
רב הנסתר על הגלוי
אדריכלות
רב הנסתר על הגלוי
שקט, אור וקלילות: המהפכה בעיצוב חללי מגורים בעידן המודרניות המואצת
תכנון
שקט, אור וקלילות: המהפכה בעיצוב חללי מגורים בעידן המודרניות המואצת
מערכת בית ונוי
חומרים
מערכת בית ונוי
בית בסגנון פיוז'ן אמריקאי כאן בישראל
תכנון
בית בסגנון פיוז'ן אמריקאי כאן בישראל
הצוללת הירוקה - עיצוב משרד ירוק
חומרים
הצוללת הירוקה - עיצוב משרד ירוק
שטיח הינו חלק בלתי נפרד מעיצוב הבית
חומרים
שטיח הינו חלק בלתי נפרד מעיצוב הבית
מדעי האור
אדריכלות
מדעי האור
בית עם לב פתוח
אדריכלות
בית עם לב פתוח
עיצוב סלון-מגמות עכשוויות במע' ישיבה
תכנון
עיצוב סלון-מגמות עכשוויות במע' ישיבה
קרובים, קרובים - בית פרטי בהוד השרון
אדריכלות
קרובים, קרובים - בית פרטי בהוד השרון
"בבקשה, רק שנייה של שלווה": למה חדרי הרחצה החדשים נראים כמו ספא?
עיצוב
"בבקשה, רק שנייה של שלווה": למה חדרי הרחצה החדשים נראים כמו ספא?
פסיפס ללא הפסקה
אדריכלות
פסיפס ללא הפסקה
עבודה במהירות האור
חומרים
עבודה במהירות האור
נוסעת בעקבות האהבה
אדריכלות
נוסעת בעקבות האהבה
הבית שהעז להיות מיוחד
אדריכלות
הבית שהעז להיות מיוחד
עיצוב דירה בנגיעות של סגול
תכנון
עיצוב דירה בנגיעות של סגול
חכמה על קטנים
תכנון
חכמה על קטנים
העיצובים החדשניים של וול-סמארט לבתים חכמים ויפים יותר
אדריכלות
העיצובים החדשניים של וול-סמארט לבתים חכמים ויפים יותר
למה דווקא עכשיו אנחנו בוחרים לשפץ את הקיים?
עיצוב
למה דווקא עכשיו אנחנו בוחרים לשפץ את הקיים?
"נשים שמתנהגות יפה - לא עושות היסטוריה"
עיצוב
"נשים שמתנהגות יפה - לא עושות היסטוריה"
Bosco Veticale של מילאנו, הוא באופן רשמי בניין המשרדים החדשני ביותר בעולם
אדריכלות
Bosco Veticale של מילאנו, הוא באופן רשמי בניין המשרדים החדשני ביותר בעולם
תתחילו לבשל...
תכנון
תתחילו לבשל...
בית הארחה- הבית שתוכנן במיוחד למשפחה שאוהבת לארח
אדריכלות
בית הארחה- הבית שתוכנן במיוחד למשפחה שאוהבת לארח
יום מעונן
חומרים
יום מעונן
SIT & STAND - הדרך הקלה להישאר פעיל בעבודה
חומרים
SIT & STAND - הדרך הקלה להישאר פעיל בעבודה
אדריכל גרי פרידמן - עיצוב עדכני וחדשנות טכנולוגית
תכנון
אדריכל גרי פרידמן - עיצוב עדכני וחדשנות טכנולוגית
אלגנטיות מודרנית בניצוחה של מורן קיש
אדריכלות
אלגנטיות מודרנית בניצוחה של מורן קיש
עיצוב מלון בוטיק במדבר. סלאם - טיקוצקי - זלוטניק לוי
עיצוב
עיצוב מלון בוטיק במדבר. סלאם - טיקוצקי - זלוטניק לוי
10 דרכים לתיקון מיתוסי הצבע השגויים בבית שלכם
אדריכלות
10 דרכים לתיקון מיתוסי הצבע השגויים בבית שלכם
הצבע ירוק, העתיד ורוד
חומרים
הצבע ירוק, העתיד ורוד
Studio Loop
תכנון
Studio Loop
כך הפך גרם המדרגות הישן מחיסרון ליתרון והקיר בכניסה למטמון
אדריכלות
כך הפך גרם המדרגות הישן מחיסרון ליתרון והקיר בכניסה למטמון
הבית החכם
תכנון
הבית החכם
"סגנון כפרי"? אין דבר כזה
אדריכלות
"סגנון כפרי"? אין דבר כזה
אם לגור בתל אביב, אז בדירה הזו
אדריכלות
אם לגור בתל אביב, אז בדירה הזו
דובלר: בונים עם מצפון
חומרים
דובלר: בונים עם מצפון
על הגבול הדק שבין בית כפרי לבית מודרני
אדריכלות
על הגבול הדק שבין בית כפרי לבית מודרני
eVolo 2015 – התחרות לתכנון גורד שחקים
אדריכלות
eVolo 2015 – התחרות לתכנון גורד שחקים