חוץ-פנים, פנים חוץ
אדריכלות

חוץ-פנים, פנים חוץ

  בבית שתכנן משרד גל מרום אדריכלים באזור המרכז, חוברים עץ, זכוכית ואלמנט מים לכדי חווית מגורים בה מרחבי הפנים והחוץ "עובדים" בהרמוניה כמקשה אחת

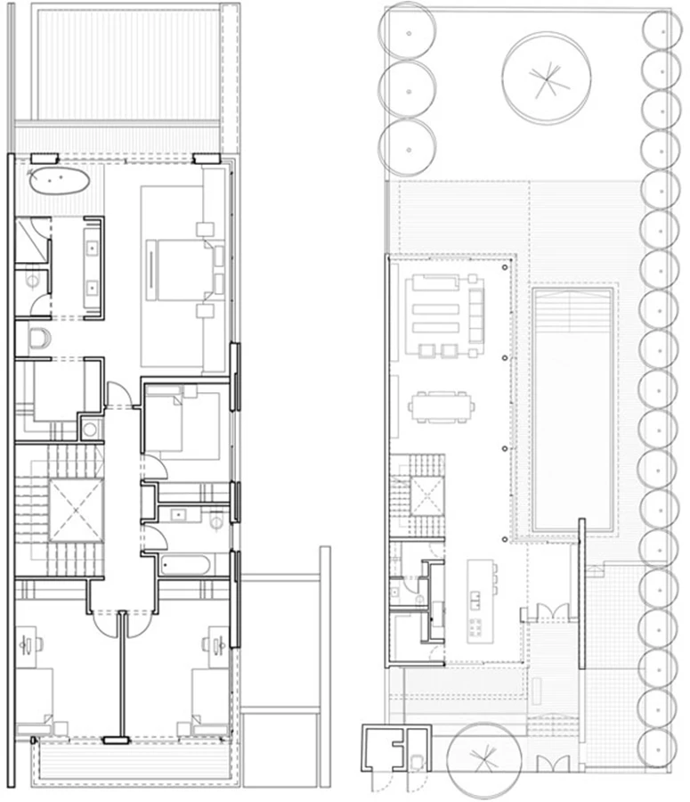
הפרוגראמה שקדמה לתכנון התגבשה ביחד עם הדיירים (בני זוג+ילדה) המנהלים אורח חיים פעיל ומרבים לארח, על מנת לזקק את כל החלומות, הצרכים והבקשות לכדי איכויות "אמיתיות" כפי שמכנה זאת מרום, כשהוא מתכוון בדבריו למרכיבים כאור ואוויר, מרקמי חומרים והשפעתם על תחושת החלל, עניין דינאמי, וכמובן קשרי חוץ ופנים. "בית הוא אחרי הכול סוג של "קונטיינר", שצריך לספק את המעטפת הנכונה, המתאימה והטובה ביותר לתכני החיים שיכניסו לתוכו האנשים הדרים בו"הוא אומר. מבואת הכניסה לבית, ממנה ניתן להישיר מבט עד "קצה" השטח. חיפוי בטון ודלת מרשימה בגובהה ובעיצובה המשלב כנף אחת עשויה עץ טיק גושני. דלת: "אינובייט".

מגרשים קטנים ככלל, לשיטתו של מרום, דורשים התייחסות מיוחדת בניצול שטחם ובפרופורציות החלוקה בין הבנוי וסביבת החוץ "אין שום טעם לבנות בית גדול ולהותיר רק חלקת גינה קטנה או להפך. שני המרחבים צריכים "לעבוד" ביחד" הוא אומר, ודבריו מיתרגמים כאן בבית שאכן נחשף כמקשה אחת של חוץ ופנים המייצרת חוויית מגורים כוללת.

מבט מעומק השטח אל עבר הכניסה: פנים וחוץ נמהלים זה בזה. ניצול נכון של שטח המגרש מייצר חשיפה דו צדדית "מקצה לקצה".

המגרש עליו הוא נבנה מאופיין במתאר מלבני, עמו זרם מרום כשטווה את תכנון המבנה כגוש מלבני המורכב מקופסת זכוכית תחתונה וקופסת עץ עליונה, כאשר בריכת שחייה המשתרעת לפתחה של קופסת הזכוכית מהווה חלק בלתי נפרד מהמערך המבני: קופסת העץ מתנשאת בהזחה קלה מעל קופסת הזכוכית ואף חורגת ממנה מעט ליצירת מעין גגון לקירוי נדרש, והבריכה כמו משלימה בקו דמיוני תצורת מלבן שלם.

  תמצית התכנון: קופסת זכוכית שקופה, קופסת עץ, ואלמנט של מים שמגיע מהבריכה הנפרשת לפתחה של קופסת הזכוכית. מבעד לשקיפותה נחשף חלל קומת הכניסה הזורם במקביל לבריכה כציר רציף.

מעבר לתפיסת מרחבי הפנים והחוץ כחוויה אחת, "שיתוף" הבריכה במארג הבית טמון בחשיבות הרבה שמייחס מרום לנוכחות האור כחומר לכל דבר ומרכיב משמעותי שמעשיר את שפת החלל בממד דינאמי ומשתנה. כך, מצד הבריכה מספק אותו אלמנט המים, על כלל ההשתקפויות החודרות פנימה דרך קופסת הזכוכית ומעטרות את התקרה ב"ציורים", ומצד החזית הגובלת עם הבית הצמוד הוא מגיע דרך סקיילייט הזורם לכל אורכה, אשר התקבל מאופן תכנונה של קופסת העץ במנותק מהקיר הבנוי.

על ציר הרצף של החלל: מתח של עניין נרקם בין פלדת הקורטן המשמשת במעקה גרם המדרגות לבין שקיפות הזכוכית.

ניצולו המושכל של השטח נגלה כבר מאזור דלת הכניסה המרשימה בממדי גובהה-4.5 מ': דלת כנף אחת עשויה עץ טיק גושני, אשר פתיחתה מאפשרת להישיר מבט לקצה המגרש, ואגב כך חושפת את מלוא הדיאלוג של חלל פנים גבוה הנקרא באחת עם הבריכה הנושקת לו.

החלל הציבורי כציר אורכי רציף נטול כל מחיצות חלוקה. השתקפויות האור במי הבריכה חודרות פנימה ומשרטטות ציורים על פני שטחה של התקרה תוך העשרת החלל בממד דינאמי. ריצוף בטון אדריכלי וקירות בטון לבנים. ריהוט: אריק בן שמחון.

החלל הציבורי כציר אורכי רציף נטול כל מחיצות חלוקה. השתקפויות האור במי הבריכה חודרות פנימה ומשרטטות ציורים על פני שטחה של התקרה תוך העשרת החלל בממד דינאמי. ריצוף בטון אדריכלי וקירות בטון לבנים. ריהוט: אריק בן שמחון.

המרחב זורם כציר רציף נטול כל מחיצות חלוקה, כאשר הפונקציות הציבוריות ממוקמות לאורכו (מטבח בקדמתו, פינת אוכל וסלון) וכך גם גרם המדרגות המוביל לקומה העליונה.

גרם המדרגות המוביל לקומה העליונה: מעקה עשוי פלדת קורטן יוצק עניין שונה לאווריריות השקופה. האור החודר מכיוון הבריכה ומסקיילייט עליון מייצר ברק ודיגומי אור על משטחי החומר והקיר.

גרם המדרגות המוביל לקומה העליונה: מעקה עשוי פלדת קורטן יוצק עניין שונה לאווריריות השקופה. האור החודר מכיוון הבריכה ומסקיילייט עליון מייצר ברק ודיגומי אור על משטחי החומר והקיר.

תאורת החלל מורכבת מגופים שקועים ומפסי צבירה ושמה את הדגש על אפקטים שמייצר האור, ופלטת החומרים מצומצמת, מגבה את ניקיון הקווים ונשענת על עץ, זכוכית ובטון. חומרים אלה משמשים הן בחלל הפנים והן מחוצה לו, ובחירתם נועדה למצות ולהעצים מפגשים עם אור, ואגב כך לייצר, למעשה, את "סיפור" הבית כולו.

לריצוף חלל קומת הכניסה כמו גם לחיפוי חלק מקירותיו, משמש בטון (מוחלק בריצוף, ובמופע חשוף בקירות לבנים), חיפוי העץ החיצוני בוצע בפרודמה (פורניר המודבק על גבי לוחות בקלית ומבטיח את העמידות הגבוהה הנדרשת בתנאי חוץ) התריסים המשתלבים בו עשויים עץ ארז, ואת הבריכה תוחם משטח דק. לתוך מסגרת חומרית קוהרנטית זו יצק מרום עניין מיוחד כשבחר בפלדת קורטן לשמש במעקה המלווה את גרם המדרגות.

מופעה החומרי במארג החלל האוורירי בעיקרו, מייצר מתח מעניין עם שקיפות הזכוכית ומשווה לגרם המדרגות ממד פיסולי - נוכחות פיסולית המודגשת במיוחד במפגש עם האור ה"נשפך" מטה דרך הסקיילייט ומשרטט אור על משטחי החומר.

המטבח שבקדמת החלל: עיצוב נקי המשלב יחידת קיר מעץ ויחידת אי גדולת ממדים עשויה קוריאן. מטבח: 'בולטהאופ'

המטבח שבקדמת החלל משלב יחידת קיר ויחידת אי גדולה במיוחד המכילה את הכיור ומשטח העבודה לצד שימוש כשולחן אוכל. פריטי הריהוט שנבחרו אנינים ומובחנים, ואת תכני עיצובו משלימות יצירות אמנות מובחרות, דוגמת פסל מרשים של ערן שקין, עבודות של יובל שאול ו-'LITA CABELUT' או צילום של תומר גניהר בחלל המדרגות.

יחידת ההורים בקומה העליונה: ריצוף פרקט בדיגום עצם דג, אור שחודר מבעד הפתחים נשזר בחלל, ועיצוב אנין-מדויק.

פרישת הקומה העליונה זהה לזו של קומת הכניסה, וכמוה זורמת כציר שלאורכו ממוקמים יחידת הורים וחדרה של הבת. שטחה רוצף בפרקט "עצם דג", והחללים המרווחים מעידים על אותה קפידה רעיונית ששמה דגש על איכויות אור וחומר, כמו, למשל, שיש לילך סגלגל המחפה את קירות חדר הרחצה ביחידת ההורים.

אדריכלות

חדר הרחצה שבשטח החדר: חלל מסוגנן ומוקפד. אמבט פרי סטנדינג וחיפוי קיר בשיש לבנדר סגלגל.

"על פניו" בחלוקה רווחת-מקובלת ניתן היה לסווג את הבית כמודרני, אך מרום, המסתייג מכל סיווג או תיוג סגנוני מסוג זה, חוזר ומבהיר את משנתו הסדורה: "רעיון טוב מוליד בית טוב, ובית טוב הוא כזה שמכיל את דייריו, מתאים ונכון להם. זהו כל הסיפור".

בשעות החשיכה, "היפוך יוצרות" בשיח הפנים-חוץ: התאורה המלאכותית של החלל משתקפת במי הבריכה ומדגישה את הקשר של שני מרחבים ה"עובדים יחד".  

מימין: קומת כניסה, קומה א

מימין: קומת כניסה, קומה א'

כתבות נוספות

עיצוב דירה שונה ומקורי בתל אביב
תכנון
עיצוב דירה שונה ומקורי בתל אביב
ה:Rabbit Brush Residence בג'קסון וויומינג
אדריכלות
ה:Rabbit Brush Residence בג'קסון וויומינג
קלאסיקה אופנתית במיטבה אל מול הים התיכון
תכנון
קלאסיקה אופנתית במיטבה אל מול הים התיכון
חיים את החלום! בני זוג חלמו לחיות בבית שירגיש להם בית מלון והתוצאה בדיוק כזו.
אדריכלות
חיים את החלום! בני זוג חלמו לחיות בבית שירגיש להם בית מלון והתוצאה בדיוק כזו.
השנה בחגים כבר לא "תצאו מהכלים"
תכנון
השנה בחגים כבר לא "תצאו מהכלים"
הגינה נולדה מחדש
אדריכלות
הגינה נולדה מחדש
נוף אינסוף - עיצוב דירה במרומי הכרמל
תכנון
נוף אינסוף - עיצוב דירה במרומי הכרמל
שיפוץ דירה חלל, נוף, וחיבוק
תכנון
שיפוץ דירה חלל, נוף, וחיבוק
והרי התחזית: מה תהיינה ההשלכות של משבר הקורונה על תכנון מתחמי העבודה העתידיים
חדשנות וטכנולוגיה
והרי התחזית: מה תהיינה ההשלכות של משבר הקורונה על תכנון מתחמי העבודה העתידיים
חומרים חדשים - 121
תכנון
חומרים חדשים - 121
הבית שנבנה מסביב לפרארי האדומה
אדריכלות
הבית שנבנה מסביב לפרארי האדומה
עיצוב מוצר - סיפריות
תכנון
עיצוב מוצר - סיפריות
הכל התחיל משטיח
תכנון
הכל התחיל משטיח
לא צריך טירה באנגליה...
תכנון
לא צריך טירה באנגליה...
עיצוב בקרטון
תכנון
עיצוב בקרטון
עיצוב הבית - "המבנה הירוק" הממוקם בסכנין
תכנון
עיצוב הבית - "המבנה הירוק" הממוקם בסכנין
חמימות יוקרתית מול נוף השדות
אדריכלות
חמימות יוקרתית מול נוף השדות
עיצוב מלון מלון בוטיק אינדיגו, ברמת גן. סטודיו מיכאל אזולאי
עיצוב
עיצוב מלון מלון בוטיק אינדיגו, ברמת גן. סטודיו מיכאל אזולאי
האדריכל רון שפיגל משרטט מחדש את המושג "אדריכל שירות" - וחושף את הבית שהפך ליצירה ייחודית
אדריכלות
האדריכל רון שפיגל משרטט מחדש את המושג "אדריכל שירות" - וחושף את הבית שהפך ליצירה ייחודית
עיצוב ל"סיעור מוחות"
חדשנות וטכנולוגיה
עיצוב ל"סיעור מוחות"
תכנון ושיפוץ בית ביפו
אדריכלות
תכנון ושיפוץ בית ביפו
מתבלים את חדר האמבטיה
חדשנות וטכנולוגיה
מתבלים את חדר האמבטיה
מסודרים
עיצוב
מסודרים
בונים או משפצים? ודאו שיש לכם קליל מקורי
חדשנות וטכנולוגיה
בונים או משפצים? ודאו שיש לכם קליל מקורי
עיצוב חדרי נוער
עיצוב
עיצוב חדרי נוער
קמחי אדריכלות ועיצוב: הופכים חלום לבית
אדריכלות
קמחי אדריכלות ועיצוב: הופכים חלום לבית
הוועידה הבינלאומית לחדשנות בעיצוב ואדריכלות  - מה בתכנית?
תכנון
הוועידה הבינלאומית לחדשנות בעיצוב ואדריכלות - מה בתכנית?
בעיצוב כמו במוסיקה
חדשנות וטכנולוגיה
בעיצוב כמו במוסיקה
תנורי הוייקינגים הגיעו לתדיראן ויש בהחלט למה לצפות
חדשנות וטכנולוגיה
תנורי הוייקינגים הגיעו לתדיראן ויש בהחלט למה לצפות
עיצוב חמים לנוף פראי
אדריכלות
עיצוב חמים לנוף פראי
המעטפת שיודעת למצמץ מול השמש
עיצוב
המעטפת שיודעת למצמץ מול השמש
מעבר רך
אדריכלות
מעבר רך
עם הספר - ספריות מעוצבות
תכנון
עם הספר - ספריות מעוצבות
גינה מותאמת למקומה
אדריכלות
גינה מותאמת למקומה
"THROUGH HOUSE" - אופטימיזציה של מרחב מגורים מואר ומזמין בקנדה
אדריכלות
"THROUGH HOUSE" - אופטימיזציה של מרחב מגורים מואר ומזמין בקנדה
"צעצוע" - תערוכה בנושא צעצועים
אדריכלות
"צעצוע" - תערוכה בנושא צעצועים
עיצוב דיגיטאלי - דיגיטל שיק
תכנון
עיצוב דיגיטאלי - דיגיטל שיק
כל מה שצריך לדעת על הקשר בין עיצוב פנים להתקנת מזגנים
אדריכלות
כל מה שצריך לדעת על הקשר בין עיצוב פנים להתקנת מזגנים
יחיד ומיוחד מאוד
תכנון
יחיד ומיוחד מאוד
כל דירה  צריכה  מרפסת...
אדריכלות
כל דירה צריכה מרפסת...
דירה בת 5 חדרים לזוג עם 3 ילדים קטנים מקבלת מראה חדש
תכנון
דירה בת 5 חדרים לזוג עם 3 ילדים קטנים מקבלת מראה חדש
מלון בוטיק, וילה גליליי
עיצוב
מלון בוטיק, וילה גליליי
רעיונות חדשניים בשירות הבנייה הירוקה: סיקור הכנס הבינלאומי ה-4 לתכנון ועיצוב מעטפת המבנה.
עיצוב
רעיונות חדשניים בשירות הבנייה הירוקה: סיקור הכנס הבינלאומי ה-4 לתכנון ועיצוב מעטפת המבנה.
החיים באדום
תכנון
החיים באדום
בית גמיש
אדריכלות
בית גמיש
טיפים על טפטים
תכנון
טיפים על טפטים
פסטורליה מכל זוית
אדריכלות
פסטורליה מכל זוית
כאן גרים בכיף
אדריכלות
כאן גרים בכיף
תערוכת BAU 2019: הבנייה המסורתית out!
אדריכלות
תערוכת BAU 2019: הבנייה המסורתית out!
חדרי ארונות וארונות קיר - עיצובים וחומרים
תכנון
חדרי ארונות וארונות קיר - עיצובים וחומרים
פתרונות אחסון חכמים לחדר השינה
עיצוב
פתרונות אחסון חכמים לחדר השינה
ריקוד המכונה
אדריכלות
ריקוד המכונה
מאוהלים אפורים לבניינים ירוקים
תכנון
מאוהלים אפורים לבניינים ירוקים
הדיסנילד של הקמעונאים – תערוכת יורושופ 2014
אדריכלות
הדיסנילד של הקמעונאים – תערוכת יורושופ 2014
בלורן - פתרונות פרזול ועיצוב לרהיטים
עיצוב
בלורן - פתרונות פרזול ועיצוב לרהיטים
בין עבודה ידנית לתחכום טכנולוגי
אדריכלות
בין עבודה ידנית לתחכום טכנולוגי
ככה עובדים היום
תכנון
ככה עובדים היום
כשהכול נעשה כמו שצריך
אדריכלות
כשהכול נעשה כמו שצריך
חיבורים וקשרים
תכנון
חיבורים וקשרים
מקובייה לאייקון בר קיימא
חדשנות וטכנולוגיה
מקובייה לאייקון בר קיימא
משרדי חברת "UBS"
חדשנות וטכנולוגיה
משרדי חברת "UBS"
אוהבי צמחים זה בשבילכם: עגלת השקיה ביתית
עיצוב
אוהבי צמחים זה בשבילכם: עגלת השקיה ביתית
טוסקנה זה כאן
תכנון
טוסקנה זה כאן
שיפוץ בית פרטי בשכונה בצפון תל אביב
אדריכלות
שיפוץ בית פרטי בשכונה בצפון תל אביב
דירה - מוסך
אדריכלות
דירה - מוסך
הדור הבא של עיצוב בתים פרטיים
תכנון
הדור הבא של עיצוב בתים פרטיים
כך תעצבו את הבית מבלי לקרוע את הכיס
עיצוב
כך תעצבו את הבית מבלי לקרוע את הכיס
ינון בן דוד : "אל תשכחו – הטבע הוא המשאב החשוב ביותר של הבית"
אדריכלות
ינון בן דוד : "אל תשכחו – הטבע הוא המשאב החשוב ביותר של הבית"
שיפוץ דירה ישנה משנות ה-60
תכנון
שיפוץ דירה ישנה משנות ה-60
בית כפרי במושב בני עטרות
אדריכלות
בית כפרי במושב בני עטרות
הבית שתפור למידותיהן המדוייקות של הילדים
אדריכלות
הבית שתפור למידותיהן המדוייקות של הילדים
הרמוניה של שילובים
תכנון
הרמוניה של שילובים
מדובר באנשים - נעמה אהרונסון
אדריכלות
מדובר באנשים - נעמה אהרונסון
מדידה ארגונית בתהליך עיצוב סביבת העבודה
חדשנות וטכנולוגיה
מדידה ארגונית בתהליך עיצוב סביבת העבודה
פנטהאוז של הצהרה: קלאסיקה עכשווית בגובה אחר
אדריכלות
פנטהאוז של הצהרה: קלאסיקה עכשווית בגובה אחר
מעטפת עירונית כשפה תרבותית
עיצוב
מעטפת עירונית כשפה תרבותית
רואה את הנולד: מעצבת הפנים שמשלבת ישן וחדש
אדריכלות
רואה את הנולד: מעצבת הפנים שמשלבת ישן וחדש
הניו אייג' של הריהוט המשרדי
חדשנות וטכנולוגיה
הניו אייג' של הריהוט המשרדי
מערכת בית ונוי
חדשנות וטכנולוגיה
מערכת בית ונוי
להרגיש  את הגינה
אדריכלות
להרגיש את הגינה
השילוב המושלם
אדריכלות
השילוב המושלם
עיצוב סובב עולם - 126
אדריכלות
עיצוב סובב עולם - 126
עיצוב סוויטת היהלום, במלון אלכסנדר תל אביב. מישל הרוש
עיצוב
עיצוב סוויטת היהלום, במלון אלכסנדר תל אביב. מישל הרוש
חדשות וחידושים - 107
עיצוב
חדשות וחידושים - 107
כיצד לתכנן נכון את שיפוץ הבית?
תכנון
כיצד לתכנן נכון את שיפוץ הבית?
כיכר חברתית אקולוגית
תכנון
כיכר חברתית אקולוגית
בידול אדריכלי באמצעות בינה מלאכותית
אדריכלות
בידול אדריכלי באמצעות בינה מלאכותית
מדוע ביטוח דירה הוא מוצר חובה לכל בעל בית
תכנון
מדוע ביטוח דירה הוא מוצר חובה לכל בעל בית
תכנון מרחבים בטוחים ומזמינים לבריאות הנפש
תכנון
תכנון מרחבים בטוחים ומזמינים לבריאות הנפש
האדריכל היפני מסהירו הרדה ירצה בוועידה הבינלאומית לחדשנות בעיצוב ואדריכלות
תכנון
האדריכל היפני מסהירו הרדה ירצה בוועידה הבינלאומית לחדשנות בעיצוב ואדריכלות
שחזור ושיפוץ מבנה ותיק לכדי בית מגורים
אדריכלות
שחזור ושיפוץ מבנה ותיק לכדי בית מגורים
יוצאים לשטח - עבודות בוגרים 2010
תכנון
יוצאים לשטח - עבודות בוגרים 2010
בואו לתכנן "צ'ק פוינט" לקטנועים ברומא
אדריכלות
בואו לתכנן "צ'ק פוינט" לקטנועים ברומא
נגישות כדרך חיים
אדריכלות
נגישות כדרך חיים
כשטכנולוגיה ועיצוב נפגשים: הבית החכם דואג גם לאווירה ועיצוב בבית שלכם
תכנון
כשטכנולוגיה ועיצוב נפגשים: הבית החכם דואג גם לאווירה ועיצוב בבית שלכם
אדריכלית: יעל מן מורג
אדריכלות
אדריכלית: יעל מן מורג
מה מתבשל
תכנון
מה מתבשל
"redy made" שיק - סטודיו ארטישוק
חדשנות וטכנולוגיה
"redy made" שיק - סטודיו ארטישוק
עיר פרבר
תכנון
עיר פרבר
יש הרבה דגים בים...
עיצוב
יש הרבה דגים בים...