מדרגות מחוללות חלל
אדריכלות

מדרגות מחוללות חלל

בבית שתכנן האדריכל מיקי טרבס בהרצלייה פיתוח, גרם המדרגות המרחף והשקוף הוא האלמנט שמחולל את התנועה, מגדיר את חלוקת האזורים, מאיר את החלל ואף מאציל את נוכחות מופעו על הגינה

נוכח מיקומו של השטח, המשתרע על 750 מ"ר, הקונספט שגיבש טרבס נועד בראש ובראשונה "להפנות את הבית לשקט" כדבריו- לייצר כניסה משמעותית אליו מהרחוב השקט, ובתוך כך "לנתקו" כמה שיותר מהרחוב ההומה בין השניים.

הבית: שתי מסות בנויות ופרק חיבור מרכזי מחופה לכל גובהו בסרגלי עץ אופקיים, ומקורה בגג אלומיניום מעוגל כפתרון אדריכלי יצירתי לניצול שטח הגג- מיישר קו עם דרישות התב"ע תוך התאמה לאופיו המודרני. חיפוי עץ: "אצטרובל", שערים: "סנפיר".

מרחב המבואה החיצונית: בריכת שיקוף בתצורת ר

מרחב המבואה החיצונית: בריכת שיקוף בתצורת ר' ובתוכה "אי" מחופה חלוקי נחל ועליו פסל גדול ומרשים, פסל: איציק בן שלום, דלת כניסה: ליאור דהרי ואצטרובל.

בהיבט האדריכלי-עיצובי ביקש טרבס לייצר מבנה מודרני המשמר שקיפות ופתיחות מרבית, עם חללים מוארים המעניקים מבטים ארוכים ומאפשרים קיום קשרי עין ישירים בין אזוריו השונים, כמו גם בין הפנים והחוץ. אלה נוסחו על ידו לכדי מבנה המתכנס סביב חצר פנימית, שמתארו מאזכר תצורת H כלשהי המתקבלת משני גושים המקושרים באמצעות פרק חיבור.

דלת הכניסה נטמעת בתוך חיפוי העץ כחלק אינטגראלי.

דלת הכניסה נטמעת בתוך חיפוי העץ כחלק אינטגראלי.

הגושים אינם זהים: גוש אחד נחשף כנקי קווים ואטום כמעט לחלוטין, ובחזיתו של השני קבועים פתחים וצד אחד של גגו זורם בקו מעוגל. "הקו המעוגל" מסביר טרבס "תוכנן כפתרון אדריכלי יצירתי לניצול שטח הגג, אשר מיישר קו עם דרישות התב"ע במקום, ובה בעת מתאים לאופיו המודרני של המבנה, בטח ובטח יותר מגג הרעפים הרווח בד"כ בסיטואציות דוגמת אלה".

בתוך הבית פנימה מתברר פרק החיבור בין הגושים כחלל מדרגות גבוה המהווה מרכיב משמעותי בזרימת המרחב, הן תפקודית והן ויזואלית: ברובד התפקודי גרם המדרגות הוא מחולל התנועה בבית, האלמנט הקובע את הגדרת/מיקום האזורים בקומות, ולצד קיר המסך התוחם-מלווה אותו הוא משמש אף כסוג של באר אור המחדירה ומעבירה תאורת יום טבעית לחלל .

קומת הכניסה וחלל המדרגות המגדיר את חלוקת אזוריה: סלון ופינת אוכל מעברו האחד ומטבח מעברו השני. מטבח: בולטהאופ, תאורה: אקסקלוסיבי, ריצוף באריחי שיש שייגרי אפורים: שיש רוקח.

קומת הכניסה וחלל המדרגות המגדיר את חלוקת אזוריה: סלון ופינת אוכל מעברו האחד ומטבח מעברו השני. מטבח: בולטהאופ, תאורה: אקסקלוסיבי, ריצוף באריחי שיש שייגרי אפורים: שיש רוקח.

ברובד הוויזואלי מהווה הגרם המרחף שבנוי מפרופילי פלדה ומדרכי זכוכית מוקד דומיננטי הנוסך עניין צורני ואסתטי רב, מדגיש את שפת העיצוב המודרנית-עכשווית ואת מוטיב השקיפות וההשתקפויות שביקש התכנון ליצור.

קומת כניסה

קומת כניסה

קומה א

קומה א'

עליית גג

עליית גג

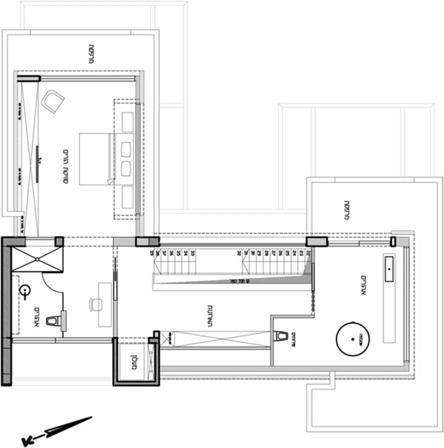
הבית רחב הידיים (600 מ"ר בנויים) מתפרש על פני 3 קומות+קומת מרתף: קומת הכניסה היא הקומה הציבורית שתחומה בויטרינות המקשרות אותה אל הגינה ונחלקת לשני אזורים הממוקמים משני עבריו של גרם המדרגות- סלון ופינת אוכל מעברו האחד, ומטבח ושירותי אורחים מעברו השני.

הסלון ופינת האוכל חולקים את אותו מרחב בקומת הכניסה, עטופים בויטרינות החושפות את נוף הגינה.

בריכת השיקוף שבחזית הקדמית נושקת לפינת האוכל ומחדירה לשטחה את נוכחות הפסל המשתלב במרכזה, אלומיניום: אמץ אלומיניום.

הקומה הראשונה כוללת בשטחה ארבע סוויטות מרווחות הממוקמות אף הן משני עברי המדרגות, וכך גם הקומה השנייה בה שוכנת יחידת הורים מפנקת מעברו האחד, וחדר רחצה נוסף רחב ידיים במיוחד + מרפסת מעברו השני. קומת המרתף מכילה בשטחה חלל מגורים רב תכליתי שנפתח לחצר אנגלית מטופחת, סוויטת אירוח נוספת, מטבח נוסף לנוחות האורחים ו/או הדיירים במידה ומתעורר הצורך, ואף הממ"ד תוכנן כסוויטה נדיבת ממדים.

הסלון: פתח אופקי נמוך מחדיר את נוף הגינה למסבים בפינת הישיבה, ובאדן הרחב משתלב קמין תחום בשקיפות. מעל הפתח: מסך פלסמה שבהיותו כבוי הופך למראה. משני עבריו מותקנות מראות זהות בגודלן המשלימות אותו למעין "רצועת מראות" מקבילה לפתח התחתון.

לצד השקיפות המהווה מוטיב רב נוכחות במרחב, המערך החומרי בו נעשה שימוש מצומצם ותמציתי, משמר את האווריריות שהיא מקנה ומייצר מסגרת חלל נקייה ומינימליסטית: קירות לבנים וריצוף באריחי אבן שיש שייגריי אפורים החוברים לפלטת צבעים מאופקת ואלגנטית. לכך מצטרפת גם התאורה, שתוכננה ברוב קפידה תוך מתן דגש לאפקטים ולאווירה שמייצר האור, כשהיא משלבת מיעוט גופים דקורטיביים במיקומים ממוקדים, גופים מינימליסטיים דוגמת פסי לד דקיקים המאירים את המעברים, ובעיקר גופים טכניים ונסתרים.

גרם המדרגות המרחף כמוקד מרכזי בבית מעצים את ממד השקיפות והאווריריות בחללו. בנוי פרופילי פלדה ומדרכי זכוכית, ותחום בקיר מסך המלווה את כל גובהו הופך אותו לסוג של באר אור המחדירה תאורת יום טבעית למרחב הפנים.

שקיפות, שקיפות, שקיפות: חלל מעבר בין שני עברי קומה המוגדרים ע"י גרם המדרגות.

מוטיב השקיפות מועצם באמצעות מערך חומרי מצומצם ותמציתי המייצר מסגרת חלל נקייה ומינימליסטית

פריטי הריהוט בבית נבחרו ייעודית לכל חלל וחלל, ומגלמים איכות אנינה ומראה קלאסי-נקי, מסוגנן ומזמין כאחד. הסלון ופינת האוכל חולקים את אותו מרחב וממוקמים בו כרצף פונקציות, כאשר אזור פינת האוכל כמעט ו"נושק" לבריכת השיקוף שבחזית הקדמית ונהנה ישירות מנוכחותו של הפסל הניצב בה. אזור הסלון עטוף בויטרינות, ופרט מעניין בו הוא פתח אופקי נמוך שנפרץ בקיר, כאשר באדנו הרחב משתלב קמין מודרני, ש"גבו" תחום בשקיפות המחדירה את נוף החוץ הישר לעין המסבים בפינת הישיבה. מעל הפתח מותקן מסך פלסמה אשר בהיותו כבוי הופך למראה, ושתי מראות זהות במידותיהן המותקנות משני עבריו משלימות אותו למעין "רצועת" מראה הזורמת בהתאמה מדויקת לפתח.

בתמונות: הקומה העליונה שכולה "מוקדשת" ליחידת השינה: חלל החדר מרווח ומאופיין בעיצוב אלגנטי, חדר הרחצה רחב הידיים כחדר לכל דבר ממוקם מעברה השני של הקומה, והמעבר ביניהם מנוצל כאזור ארונות המספק שפע של מקום אחסון, אמבט ויחידת כיור מקוריאן: ארקדה, פרקט: "הרקולס".

בצדה השני של קומת הכניסה, סמוך לגרם המדרגות, ממוקם המטבח, כשהוא פונה אל הגינה ומאופיין בעיצוב מינימליסטי על טהרת הגון הלבן.

העיצוב המהוקצע לא פסח על אף חלל מחללי הבית, ובכלל זה על קומת המרתף המתנאה בחלל מגורים מסוגנן, ועל כל חדרי השינה שעוצבו עד אחרון הפרטים. מרשימה במיוחד היא יחידת ההורים השוכנת בקומה העליונה כטריטוריה פרטית מרווחת ומפנקת. חללה מתפרש, למעשה, על פני כל הקומה, כאשר חדר השינה ממוקם בעברה האחד, חדר רחצה בעברה השני, ומעבר מרוצף פרקט התחום משני עבריו בארונות מחבר ביניהם. חדר השינה מגלם הידור מינימליסטי, וחדר הרחצה נפרש כחלל רחב ידיים במיוחד שתקרתו המקומרת נגזרה מהגג המעוגל: מרוצף באריחי גרניט פורצלן גדולים, מאכלס בשטחו אביזרים סניטאריים מובחרים ופריטי נגרות מוקפדים בסגנון "פרי סטנדינג", ואפילו שטיח רך ווילונות קלילים משתלבים בחללו הכולל יציאה למרפסת.

החזית האחורית: חובקת גינה מטופחת עם בריכת שחייה ופינות אוכל וישיבה, וגרם המדרגות הנחשף מבעד קיר המסך מאציל את נוכחותו הדומיננטית גם על החוץ.  בריכות (קדמית ואחורית): אקווהפולקו, פרגולה: עמיאל תעשיות מקבוצת אלוקל.

החזית האחורית: חובקת גינה מטופחת עם בריכת שחייה ופינות אוכל וישיבה, וגרם המדרגות הנחשף מבעד קיר המסך מאציל את נוכחותו הדומיננטית גם על החוץ. בריכות (קדמית ואחורית): אקווהפולקו, פרגולה: עמיאל תעשיות מקבוצת אלוקל.

החצר סביבה מתכנס הבית אינה נופלת בעיצובה מהקפידה של הפנים, כששטחה "מאכלס" את כל האלמנטים הנדרשים לבילוי מהנה של זמן איכות בחוץ: פינות אוכל וישיבה, בריכת שחייה, צמחייה מטופחת, וכן "תמונה" מיוחדת במינה של גרם המדרגות המרחף שמאציל את נוכחותו המשמעותית בחיי הבית גם על מרחב החוץ ומשלים את חוויית המגורים שביקש התכנון ליצור.

כתבות נוספות

עטרה חדשה לדירה ישנה
אדריכלות
עטרה חדשה לדירה ישנה
לכל מי שמבקש לטוס שעה ולהרגיש שהגיע לקצה העולם
עיצוב
לכל מי שמבקש לטוס שעה ולהרגיש שהגיע לקצה העולם
ירושלים, אין דומה לה: בפנטהאוז שכולנו רוצים לגור
אדריכלות
ירושלים, אין דומה לה: בפנטהאוז שכולנו רוצים לגור
הבית שחושף את קסמו בהדרגה
אדריכלות
הבית שחושף את קסמו בהדרגה
בית ותיק ששופץ לבית נופש במיורקה
אדריכלות
בית ותיק ששופץ לבית נופש במיורקה
אמנות הרישוי
אדריכלות
אמנות הרישוי
כך תוכלו להתחיל לשלב בינה מלאכותית בעבודת העיצוב שלכם
אדריכלות
כך תוכלו להתחיל לשלב בינה מלאכותית בעבודת העיצוב שלכם
מה חדש בבית?
חומרים
מה חדש בבית?
מרשם לאפיית הבית הנכון
אדריכלות
מרשם לאפיית הבית הנכון
הכנס הבינ"ל ה- 4 לבנייה ירוקה ותכנון בר-קיימא
תכנון
הכנס הבינ"ל ה- 4 לבנייה ירוקה ותכנון בר-קיימא
פרטים קטנים תרומה גדולה
עיצוב
פרטים קטנים תרומה גדולה
מסמל סטטוס לאלמנט (כמעט) חובה
אדריכלות
מסמל סטטוס לאלמנט (כמעט) חובה
להלביש את הבית באופנתיות
אדריכלות
להלביש את הבית באופנתיות
צפון שלא הכרתם
אדריכלות
צפון שלא הכרתם
להחיות את פנים הבית שלך: 6 סיבות מדוע שטיחים חיוניים בעיצוב
תכנון
להחיות את פנים הבית שלך: 6 סיבות מדוע שטיחים חיוניים בעיצוב
עיצוב מקלחת
אדריכלות
עיצוב מקלחת
האתגר הגדול: לתכנן ולעצב בית לעצמך
אדריכלות
האתגר הגדול: לתכנן ולעצב בית לעצמך
סביבת העבודה שחוסכת הרבה אנרגיה
חומרים
סביבת העבודה שחוסכת הרבה אנרגיה
Hotel Design 2
תכנון
Hotel Design 2
הסוד של מעצבי השיער: מה באמת גורם לכם לחזור למספרה?
אדריכלות
הסוד של מעצבי השיער: מה באמת גורם לכם לחזור למספרה?
הסלון כחלון ללב הבית: אריק בן שמחון חושף את סוד הקסם של תרבות האירוח הישראלית
תכנון
הסלון כחלון ללב הבית: אריק בן שמחון חושף את סוד הקסם של תרבות האירוח הישראלית
משפצים? לפני שאתם שוברים - על ניסור קירות שמעתם?
תכנון
משפצים? לפני שאתם שוברים - על ניסור קירות שמעתם?
מתרגמת חלומות למציאות
אדריכלות
מתרגמת חלומות למציאות
יהודה גדליהו - פרוטרטים מחוטי ברזל
תכנון
יהודה גדליהו - פרוטרטים מחוטי ברזל
לתת לרהיט אופי
עיצוב
לתת לרהיט אופי
חללים משותפים בהתאמה אישית
חומרים
חללים משותפים בהתאמה אישית
ספות נפתחות למיטה – הרהיט הפונקציונאלי ביותר
חומרים
ספות נפתחות למיטה – הרהיט הפונקציונאלי ביותר
בית החלומות במזכרת בתיה – עיצוב עכשווי שופע
אדריכלות
בית החלומות במזכרת בתיה – עיצוב עכשווי שופע
קטוף ואכול
עיצוב
קטוף ואכול
בתוך ים של חיפויים - כתבת המשך
חומרים
בתוך ים של חיפויים - כתבת המשך
בית מטבחיים הופך לאולם קולנוע
אדריכלות
בית מטבחיים הופך לאולם קולנוע
מהפכה של ממש
אדריכלות
מהפכה של ממש
עיצוב מחודש של מרפאה פסיכיאטרית לילד
חומרים
עיצוב מחודש של מרפאה פסיכיאטרית לילד
? הלו, זה ברז
תכנון
? הלו, זה ברז
ישראלים בתערוכת הרהיטים במילאנו 2011
אדריכלות
ישראלים בתערוכת הרהיטים במילאנו 2011
מוציאים את המשרד מחדר השינה
חומרים
מוציאים את המשרד מחדר השינה
גאווה ישראלית
עיצוב
גאווה ישראלית
"על המילימטר"
אדריכלות
"על המילימטר"
המלון החדש של זאהה חדיד ב"עיר החלומות"
אדריכלות
המלון החדש של זאהה חדיד ב"עיר החלומות"
סיקור כנס תכנון ועיצוב פתרונות דיור לגיל השלישי - מחקרים, מגמות, מסקנות...
תכנון
סיקור כנס תכנון ועיצוב פתרונות דיור לגיל השלישי - מחקרים, מגמות, מסקנות...
נוחות בחדר השינה – מיטות מתכווננות
עיצוב
נוחות בחדר השינה – מיטות מתכווננות
דבר אליי בבדים
עיצוב
דבר אליי בבדים
אלף גוונים של רוגע
תכנון
אלף גוונים של רוגע
איך נראית דירה שמרגישה כמו חופשה גם כשאתם נשארים בבית?
עיצוב
איך נראית דירה שמרגישה כמו חופשה גם כשאתם נשארים בבית?
עיצוב קירות
חומרים
עיצוב קירות
שחור לבן בצבע
אדריכלות
שחור לבן בצבע
בעלת החלומות
אדריכלות
בעלת החלומות
בית שמחבק חזק את המשפחה
אדריכלות
בית שמחבק חזק את המשפחה
חלל קטן, הזדמנות גדולה
תכנון
חלל קטן, הזדמנות גדולה
מעצב
תכנון
מעצב
מבעד לזכוכית השקופה
חומרים
מבעד לזכוכית השקופה
ריצוף חללי פנים
חומרים
ריצוף חללי פנים
שיחה על עיצוב הבית עם לארה הדברג-דים מקימת מגזין דוול
אדריכלות
שיחה על עיצוב הבית עם לארה הדברג-דים מקימת מגזין דוול
מפגש  מודרני-כפרי
אדריכלות
מפגש מודרני-כפרי
קוביית הפתעות
תכנון
קוביית הפתעות
אחרי השיפוץ - פנים חדשות לבית קיים
אדריכלות
אחרי השיפוץ - פנים חדשות לבית קיים
שפת תכנון עכשווית באוניברסיטת קורנל, ניו יורק
אדריכלות
שפת תכנון עכשווית באוניברסיטת קורנל, ניו יורק
עיצוב שולחן לחג
תכנון
עיצוב שולחן לחג
"redy made" שיק - סטודיו ארטישוק
חומרים
"redy made" שיק - סטודיו ארטישוק
 הירוק הוא השחור החדש: כשרהיט הופך לגינה חיה
עיצוב
הירוק הוא השחור החדש: כשרהיט הופך לגינה חיה
חלל המגורים: רואים שקוף, רואים רחוק
אדריכלות
חלל המגורים: רואים שקוף, רואים רחוק
Hotel Design Blog  - הרומן האנגלי שלי - חלק 2
עיצוב
Hotel Design Blog - הרומן האנגלי שלי - חלק 2
דובלר: בונים עם מצפון
חומרים
דובלר: בונים עם מצפון
מעז יצא מתוק
אדריכלות
מעז יצא מתוק
דברים טובים באים בזוגות
אדריכלות
דברים טובים באים בזוגות
מדבר מודרני: בית בהשראת סהרה
אדריכלות
מדבר מודרני: בית בהשראת סהרה
Coveri - חנות קונספט
חומרים
Coveri - חנות קונספט
יוצרים חווית לקוח, ייחודית, בלתי נשכחת והכי חשוב – רווחית!
תכנון
יוצרים חווית לקוח, ייחודית, בלתי נשכחת והכי חשוב – רווחית!
6 השראות לעיצוב סלון הבית
תכנון
6 השראות לעיצוב סלון הבית
תכנון בית פיסולי בסביבת אלפים מושלגת
אדריכלות
תכנון בית פיסולי בסביבת אלפים מושלגת
אדריכלים מביאים בשורות עיצוב
תכנון
אדריכלים מביאים בשורות עיצוב
שימוש באקווריומים בתחום של עיצוב פנים
תכנון
שימוש באקווריומים בתחום של עיצוב פנים
עיצוב שטיחים
חומרים
עיצוב שטיחים
טפטים לעדכון עיצוב הפנים
חומרים
טפטים לעדכון עיצוב הפנים
לגעת באוכל ובחומר
אדריכלות
לגעת באוכל ובחומר
המטבח של 2026:  מרגיש כמו חלק מהבית ולא חלל תצוגה
תכנון
המטבח של 2026: מרגיש כמו חלק מהבית ולא חלל תצוגה
"לפעמים, כדי שמשהו אחד ייבנה, משהו אחר צריך להתפרק"
עיצוב
"לפעמים, כדי שמשהו אחד ייבנה, משהו אחר צריך להתפרק"
לחמם את הבית
תכנון
לחמם את הבית
"דלידה" היא חמארה אירופאית
אדריכלות
"דלידה" היא חמארה אירופאית
כשהבקטריות מייצרות מלט ושבבי העץ משתלבים בו
תכנון
כשהבקטריות מייצרות מלט ושבבי העץ משתלבים בו
עיצוב של שקיפויות ואור
תכנון
עיצוב של שקיפויות ואור
מי יזכה באות האדריכלות הישראלית?
אדריכלות
מי יזכה באות האדריכלות הישראלית?
ווילרוי&בוך מותג בתחום עיצוב חדרי רחצה
אדריכלות
ווילרוי&בוך מותג בתחום עיצוב חדרי רחצה
השיטה של נקי כמו חדש לניקוי הדירה?
עיצוב חללי הבית
השיטה של נקי כמו חדש לניקוי הדירה?
הספא הביתי עולה רמה: 3 טרנדים בעיצוב חדרי אמבטיה
חומרים
הספא הביתי עולה רמה: 3 טרנדים בעיצוב חדרי אמבטיה
מחדר משחקים במרפסת לחדר גיימינג חלומי: חלל הילדות הפך למרחב בוגר וחווייתי
עיצוב
מחדר משחקים במרפסת לחדר גיימינג חלומי: חלל הילדות הפך למרחב בוגר וחווייתי
עיצוב דירות בשיטת "מעריסה לעריסה"
תכנון
עיצוב דירות בשיטת "מעריסה לעריסה"
בלגי+, הבלגי החדש של קליל - מסורת שעוברת עדכון
אדריכלות
בלגי+, הבלגי החדש של קליל - מסורת שעוברת עדכון
תכנון שהפך אסם ישן לבית מגורים
אדריכלות
תכנון שהפך אסם ישן לבית מגורים
עיצוב חדרי ילדים ונוער
עיצוב
עיצוב חדרי ילדים ונוער
אדריכלות ספורטיבית הקיץ בלונדון
אדריכלות
אדריכלות ספורטיבית הקיץ בלונדון
מקומיות. מקום.  בית.
אדריכלות
מקומיות. מקום. בית.
דירה בניחוח ים, חול ותפוזים
אדריכלות
דירה בניחוח ים, חול ותפוזים
יוצאים לשטח - עבודות בוגרים 2010
תכנון
יוצאים לשטח - עבודות בוגרים 2010
שילוב סגנונות הנורדי והכפרי בדירה על הרי הכרמל למשפחה חמה
אדריכלות
שילוב סגנונות הנורדי והכפרי בדירה על הרי הכרמל למשפחה חמה
עולם המחר של המשרדים
חומרים
עולם המחר של המשרדים
עיצוב סובב עולם - 121
אדריכלות
עיצוב סובב עולם - 121
עיצוב חוצה תרבויות
אדריכלות
עיצוב חוצה תרבויות
אוכל, קדימה אוכל
אדריכלות
אוכל, קדימה אוכל
כשפרסום ועיצוב נפגשים
חומרים
כשפרסום ועיצוב נפגשים