במפגש הזמנים
תכנון

במפגש הזמנים

דירה לשימור בלב תל אביב תוכננה ועוצבה ע"י מיקי ברגר וירון שמואלי כמפגש הרמוני בין חומרים, כמו גם בין ממד הוותק של עברה לבין החדש והעכשווי

מבט מדלת הכניסה אל חלל המגורים: מימין ממוקמים המטבח ופינת האוכל ובעומק הסלון. משמאל נראות דלתות חדר העבודה, אשר פתיחתן "מצרפת" אותו למרחב כאזור נוסף.

מבט מדלת הכניסה אל חלל המגורים: מימין ממוקמים המטבח ופינת האוכל ובעומק הסלון. משמאל נראות דלתות חדר העבודה, אשר פתיחתן

מבט מדלת הכניסה אל חלל המגורים: מימין ממוקמים המטבח ופינת האוכל ובעומק הסלון. משמאל נראות דלתות חדר העבודה, אשר פתיחתן "מצרפת" אותו למרחב כאזור נוסף.

הדירה השוכנת במבנה לשימור בלב תל אביב, נרכשה ע"י זוג צעיר, אשר בפנייתו אל המעצבים מיקי ברגר וירון שמואלי הגדיר את רצונו במרחב מגורים מרווח בעל אופי עירוני- "בני הזוג עוסקים במקצועות חופשיים, והתכנון המבוקש היה עכשווי למדי, פתוח בעיקרו עם "הרבה" סלון והרבה מקומות אחסון" מתארים ברגר ושמואלי את הפרוגראמה שנפרשה בפניהם. 

פינת הישיבה שבעומק החלל: קורות ועמודים קונסטרוקטיביים מודגשים באמצעות עיבוי והכהית הבטון ומנוצלים כמוקדים אסתטיים. מסגרות פרופיל אלומיניום בלגי בפתחים, לריצוף משמש פרקט אלון מגוון, וחיפוי קיר בלבני פירוק מדגיש את הארומה האירופאית כנקודת מיקוד של המארג העיצובי. פריטי ריהוט בסגנון קלאסי ושילוב טקסטילים בדיגומים וגוונים שונים. פריטי ריהוט:

פינת הישיבה שבעומק החלל: קורות ועמודים קונסטרוקטיביים מודגשים באמצעות עיבוי והכהית הבטון ומנוצלים כמוקדים אסתטיים. מסגרות פרופיל אלומיניום בלגי בפתחים, לריצוף משמש פרקט אלון מגוון, וחיפוי קיר בלבני פירוק מדגיש את הארומה האירופאית כנקודת מיקוד של המארג העיצובי. פריטי ריהוט בסגנון קלאסי ושילוב טקסטילים בדיגומים וגוונים שונים. פריטי ריהוט: "גלריה הומאז'".

פינת הישיבה שבעומק החלל: קורות ועמודים קונסטרוקטיביים מודגשים באמצעות עיבוי והכהית הבטון ומנוצלים כמוקדים אסתטיים. מסגרות פרופיל אלומיניום בלגי בפתחים, לריצוף משמש פרקט אלון מגוון, וחיפוי קיר בלבני פירוק מדגיש את הארומה האירופאית כנקודת מיקוד של המארג העיצובי. פריטי ריהוט בסגנון קלאסי ושילוב טקסטילים בדיגומים וגוונים שונים. פריטי ריהוט:

פינת הישיבה שבעומק החלל: קורות ועמודים קונסטרוקטיביים מודגשים באמצעות עיבוי והכהית הבטון ומנוצלים כמוקדים אסתטיים. מסגרות פרופיל אלומיניום בלגי בפתחים, לריצוף משמש פרקט אלון מגוון, וחיפוי קיר בלבני פירוק מדגיש את הארומה האירופאית כנקודת מיקוד של המארג העיצובי. פריטי ריהוט בסגנון קלאסי ושילוב טקסטילים בדיגומים וגוונים שונים. פריטי ריהוט: "גלריה הומאז'".

שטחה של הדירה משתרע על 110 מ"ר שבמקור נחלקו ל 3- חדרים, סלון ומרפסת, והקונספט שטוו עבורה ברגר ושמואלי נבע מסגנון הבאוהאוס של הבניין בו היא ממוקמת, כמו גם מתפיסתם את העיצוב הישראלי, שלשיטתם מאופיין בעירוב "למעשה, זהו עיצוב שאינו מחויב לשום דבר בצורה גורפת, ומאפיינו העיקרי הוא ממד החיבור כפי שהוא בא לידי ביטוי בתחומי חיים אחרים כאן, כמו החיבור העדתי, קשת המזונות הרבגונית שניתן למצוא בארץ, וכד'. השורה התחתונה היא, שבעצם, הכול הולך". על בסיס זה, לדבריהם, הם ביקשו לצקת זיקה אירופאית משהו לתוך תל אביב של פעם "ולייצר מפגשים מעניינים בין חומרים ובין ממדי הישן והוותיק לבין החדש והעכשווי".

יחידת נגרות מובילה מדלת הכניסה אל חדר השינה שבעומק החלל כעין חוט מקשר. באזור הסלון מנוצלת היחידה לאחסון מערך הבידור ולתליית מסך הטלוויזיה, וכוללת גם חללים פתוחים להצבת ספרים וחפצי נוי, ותאורת החלל נשענת על גופים שקועים המייצרים אווירה. פתיחת דלתות חדר העבודה כמו מספחת אותו כעוד אזור בחלל המגורים, כשעיצובו מותאם לשפתו הקלאסית

יחידת נגרות מובילה מדלת הכניסה אל חדר השינה שבעומק החלל כעין חוט מקשר. באזור הסלון מנוצלת היחידה לאחסון מערך הבידור ולתליית מסך הטלוויזיה, וכוללת גם חללים פתוחים להצבת ספרים וחפצי נוי, ותאורת החלל נשענת על גופים שקועים המייצרים אווירה. פתיחת דלתות חדר העבודה כמו מספחת אותו כעוד אזור בחלל המגורים, כשעיצובו מותאם לשפתו הקלאסית

מבט מאזור הסלון אל עבר המטבח: מעוצב בתצורת ר

מבט מאזור הסלון אל עבר המטבח: מעוצב בתצורת ר' ומשקיף אל החצר הירוקה. חזיתות בגון שחור בגימור צבע בתנור, ושולחן אוכל עם כיסאות אייקוניים שונים זה מזה הנושאים את חתימתם של מעצבי על. גופים טכניים מספקים תאורה פונקציונאלית.

בשלב הראשון הוסרו מהדירה כל מחיצות הפנים למעט העמודים התומכים אשר נרתמו לטובת העיצוב החדש, שטחה של מרפסת סופח לשטח הפנים על מנת להרחיבו, וחלוקת החלל החדשה גובשה כך שהוא יהיה מואר, אוורירי, וישמר תחושת פתיחות: מרחב מגורים נדיב שטח ובו סלון, מטבח, ופינת אוכל המשרתת את הדיירים לאירוח ולצרכי יומיום כאחד, חדר עבודה אשר במידת הרצון/צורך יכול לחבור לחלל המגורים באמצעות פתיחת דלתות הזכוכית הרחבות הסוגרת על פתחו, ויחידת שינה מרווחת. את החיבור בין האזור הציבורי והפרטי מייצרת יחידת נגרות גדולה ובהירה המובילה כעין חוט מקשר מאזור דלת הכניסה אל עבר יחידת השינה, ובצדה הפונה לסלון מכילה בתוכה מערכת סראונד, מסך טלוויזיה, מדפי ספרים ומעין "גומחות" לחפצי נוי. 

במרכז החלל ניצב אמבט פרי סטנדינג, ומעל יחידת הכיור המודרנית-נקייה משתלב חיפוי לבנים, תוך חיבור ממד העכשוויות עם זיקה לניחוח אירופאי-קלאסי.

במרכז החלל ניצב אמבט פרי סטנדינג, ומעל יחידת הכיור המודרנית-נקייה משתלב חיפוי לבנים, תוך חיבור ממד העכשוויות עם זיקה לניחוח אירופאי-קלאסי.

בפתחי החלונות הותקנו מסגרות פרופיל אלומיניום בלגי, דלתות הפנים הוחלפו בדלתות עץ שבוצעו "קסטם מייד" בעבודת נגרות, והעמודים התומכים שנותרו כאילו נוצלו ליצירת התרחשות צורנית "אחרת": הבטון ששימש לבנייתם נחשף, עובה, והודגש באמצעות העמקת גונו לגון כהה יותר, כך שנוכחותם בחלל מודגשת כמוקדים אסתטיים המעשירים את החלל בעניין שונה. פלטת החומרים והצבעים שמשמשת בחלל מאופיינת באיפוק ונשענת על חיבורים המייצרים דיוק ויזואלי וזרימה טבעית לצד מפגשים מעניינים, כאשר לריצוף נבחר פרקט אלון מיושן בגון חום-אפרפר, שהושג לדברי ברגר ושמואלי לאחר לא מעט ניסיונות צבע עד הגיעם לזה שסיבר את דעתם; ולקירות הוענק גון בז'-אפרפר כרקע ניטראלי המשלים את גון הריצוף וחובר אליו. באזור החציצה בין הפרטי והציבורי שולבו גם לבני פירוק כחיפוי קיר הנוסך חמימות, אווירה וטקסטורה שונה, ובמיקומו לצד יחידת הנגרות נקיית הקווים נוצר ניגוד מעניין בין ממדי היושן והוותק לבין ממד מודרני-עכשווי. "יתרה מכך" אומרים ברגר ושמואלי "מיקום החיפוי דווקא באזור זה אינו אקראי, אלא נבחר בקפידה מחושבת כך שיהווה נקודת מיקוד "בסוף" החלל, וככזה יתרום את נוכחותו ליצירת עניין חומרי וצבעוני וישלים את ההרמוניה הכללית".

חדר השינה המרווח נחלק לאזורים ומעוצב בשפה אקלקטית, מובחנת ואנינה. כאן נראה אזור השינה בו משתלבים מיטה מרופדת עם גב גבוה עשיר למראה, סקרטר קלאסי בטעם של פעם, ויצירות אמנות.

חדר השינה המרווח נחלק לאזורים ומעוצב בשפה אקלקטית, מובחנת ואנינה. כאן נראה אזור השינה בו משתלבים מיטה מרופדת עם גב גבוה עשיר למראה, סקרטר קלאסי בטעם של פעם, ויצירות אמנות.

יחידת נגרות מובילה מדלת הכניסה אל חדר השינה שבעומק החלל כעין חוט מקשר. באזור הסלון מנוצלת היחידה לאחסון מערך הבידור ולתליית מסך הטלוויזיה, וכוללת גם חללים פתוחים להצבת ספרים וחפצי נוי, ותאורת החלל נשענת על גופים שקועים המייצרים אווירה. פתיחת דלתות חדר העבודה כמו מספחת אותו כעוד אזור בחלל המגורים, כשעיצובו מותאם לשפתו הקלאסית

יחידת נגרות מובילה מדלת הכניסה אל חדר השינה שבעומק החלל כעין חוט מקשר. באזור הסלון מנוצלת היחידה לאחסון מערך הבידור ולתליית מסך הטלוויזיה, וכוללת גם חללים פתוחים להצבת ספרים וחפצי נוי, ותאורת החלל נשענת על גופים שקועים המייצרים אווירה. פתיחת דלתות חדר העבודה כמו מספחת אותו כעוד אזור בחלל המגורים, כשעיצובו מותאם לשפתו הקלאסית

מרבית התאורה שהותקנה בחלל מורכבת מגופים שקועים ומתכווננים, שכולם מצוידים בדימרים המאפשרים לווסת את כמות האור לכדי תרחישים שונים ולייצר אווירת דרמה כשצריך, ובמטבח שולבה תאורה טכנית סמויה, המבטיחה את הפונקציונאליות הנדרשת לפעילות בו. 

מבט מאזור הסלון אל עבר המטבח: מעוצב בתצורת ר

מבט מאזור הסלון אל עבר המטבח: מעוצב בתצורת ר' ומשקיף אל החצר הירוקה. חזיתות בגון שחור בגימור צבע בתנור, ושולחן אוכל עם כיסאות אייקוניים שונים זה מזה הנושאים את חתימתם של מעצבי על. גופים טכניים מספקים תאורה פונקציונאלית.

ברגר, אדריכל פנים, ושמואלי, מעצב פנים, שהשותפות המקצועית ביניהם צמחה בהיותם שכירים באותו מקום עבודה, מגדירים את עצמם כ"הפכים משלימים" החולקים אהבה להיסטוריה ולחומרים, וכמו אמונתם בעירוב סגנוני הם מאמינים גם בעיצוב שאינו כפוף לגבולות זמן. תפיסתם זו באה לידי ביטוי בפריטי הריהוט והעיצוב שנבחרו לחללי הבית השונים, מהם שנבחרו בקפידה מובחנת מאד, ומהם שעוצבו על ידם ובוצעו ייעודית. כך, בסלון למשל, משתלבים בהרמוניה פריטי ריהוט שונים בסגנון אירופאי- קלאסי בטעם של פעם וכ"מיקס" מלא חן של צורות ובדים, דוגמת צמד כורסאות פרחוניות, כורסה אדומה נדיבת ממדים, או ספה בהירה מעוטרת בשפעת כריות בדיגומים משתנים ובצבעוניות מגוונת. גם במטבח, הממוקם בקדמת החלל לצד הכניסה ומשקיף לנופה הירוק של החצר, ניתן למצוא את ממדי העירוב והעל- זמניות בכיסאות שצוותו לשולחן האוכל הניצב במרכזו: כיסאות שונים זה מזה, אשר כל אחד מהם קנה את מעמדו כאייקון נחשב הנושא חתימה של מעצבים מובילים כאימס, ברטויה ונוספים.

אזור הרחצה שבחדר השינה: במרכז החלל ניצב אמבט פרי סטנדינג, ומעל יחידת הכיור המודרנית- נקייה משתלב חיפוי לבנים, תוך חיבור ממד העכשוויות עם זיקה לניחוח אירופאי-קלאסי

אזור הרחצה שבחדר השינה: במרכז החלל ניצב אמבט פרי סטנדינג, ומעל יחידת הכיור המודרנית- נקייה משתלב חיפוי לבנים, תוך חיבור ממד העכשוויות עם זיקה לניחוח אירופאי-קלאסי

במרכז החלל ניצב אמבט פרי סטנדינג, ומעל יחידת הכיור המודרנית-נקייה משתלב חיפוי לבנים, תוך חיבור ממד העכשוויות עם זיקה לניחוח אירופאי-קלאסי.

במרכז החלל ניצב אמבט פרי סטנדינג, ומעל יחידת הכיור המודרנית-נקייה משתלב חיפוי לבנים, תוך חיבור ממד העכשוויות עם זיקה לניחוח אירופאי-קלאסי.

את השולחן עוטפות בתצורת ר' יחידות המטבח המתהדרות בגון שחור בגימור צבע בתנור, ויחידת הקיר הגדולה שתוכננה בשטחו מנוצלת גם לאחסון "כללי" ולהצנעת תשתיות. שטחו המרווח של חדר השינה נחלק לשלושה אזורים: אזור שינה מסוגנן עם מיטה בעלת גב מרופד גבוה ופינת סקרטר, חדר ארונות המתנאה במידות נוחות במיוחד, ואזור רחצה מפנק שחלק משטחו משמש גם כחלל שירות. מוטיב העירוב והניגוד של חלל המגורים באים לידי ביטוי גם בשטחו, כמו, למשל, בלבנים המשמשות לחיפוי הקיר מעל יחידת כיור נקייה בעבודת נגרות, במרכזו ניצב אמבט פרי סטנדינג, ולצדו תוכנן גם מקלחון מרווח המשלים את נוחות המשתמשים. כך, תוך מתן מענה לבקשות הדיירים, כשהמוטיב האירופאי-קלאסי מהדהד בחללים השונים ותשומת הלב שניתנה לטעם אישי ולשילוב מוקפד של פריטים וחפצים שזורה בכל פינה, מושלם נרטיב החיבורים והעל-זמניות שעמד בבסיס התכנון לכדי מרחב ספוג אסתטיקה נעימה, שכוחה אכן טמון בתכנים שהיא אוצרת בתוכה.

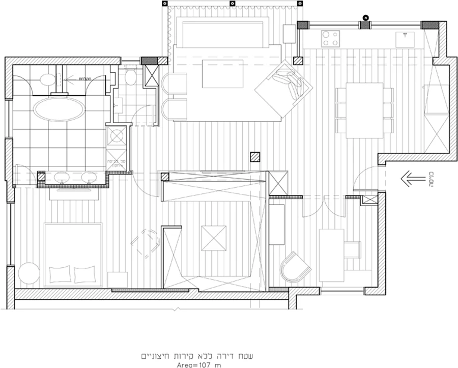
תכנית אדריכלית

תכנית אדריכלית

חדר השינה המרווח נחלק לאזורים ומעוצב בשפה אקלקטית, מובחנת ואנינה. כאן נראה אזור השינה בו משתלבים מיטה מרופדת עם גב גבוה עשיר למראה, סקרטר קלאסי בטעם של פעם, ויצירות אמנות.

חדר השינה המרווח נחלק לאזורים ומעוצב בשפה אקלקטית, מובחנת ואנינה. כאן נראה אזור השינה בו משתלבים מיטה מרופדת עם גב גבוה עשיר למראה, סקרטר קלאסי בטעם של פעם, ויצירות אמנות.

אזור הרחצה שבחדר השינה: במרכז החלל ניצב אמבט פרי סטנדינג, ומעל יחידת הכיור המודרנית- נקייה משתלב חיפוי לבנים, תוך חיבור ממד העכשוויות עם זיקה לניחוח אירופאי-קלאסי

אזור הרחצה שבחדר השינה: במרכז החלל ניצב אמבט פרי סטנדינג, ומעל יחידת הכיור המודרנית- נקייה משתלב חיפוי לבנים, תוך חיבור ממד העכשוויות עם זיקה לניחוח אירופאי-קלאסי

תכנית אדריכלית

תכנית אדריכלית


כתבות נוספות

באלאנס על הים, הצעה לעיצוב חדרים בבתי מלון: סטודיו 26
עיצוב
באלאנס על הים, הצעה לעיצוב חדרים בבתי מלון: סטודיו 26
נווה (עבודה ב) מדבר
חומרים
נווה (עבודה ב) מדבר
תערוכת תכשיטים המבטאים את ה"אלטר-אגו" במוזיאון ארץ-ישראל
אדריכלות
תערוכת תכשיטים המבטאים את ה"אלטר-אגו" במוזיאון ארץ-ישראל
משרד אדריכלים מאירלנד זוכה בתחרות לעיצוב מרכז לאומנות במוסקבה
אדריכלות
משרד אדריכלים מאירלנד זוכה בתחרות לעיצוב מרכז לאומנות במוסקבה
דיור בר קיימא - אדריכל ד"ר יוסי קורי
תכנון
דיור בר קיימא - אדריכל ד"ר יוסי קורי
עיצוב "סנדוויץ בר"
תכנון
עיצוב "סנדוויץ בר"
נשב בחוץ
אדריכלות
נשב בחוץ
תכנון בתים במגרשים צרים
אדריכלות
תכנון בתים במגרשים צרים
כל הדרכים ליצירת מרחב ביתי וחמים שנעים להיות בו
תכנון
כל הדרכים ליצירת מרחב ביתי וחמים שנעים להיות בו
כל ההוצאות שאתם צריכים לקחת בחשבון כשאתם מעצבים מחדש את הבית
תכנון
כל ההוצאות שאתם צריכים לקחת בחשבון כשאתם מעצבים מחדש את הבית
עיצוב כסאות נדנדה מאז ועד היום
תכנון
עיצוב כסאות נדנדה מאז ועד היום
פריטי ריהוט בעיצוב חדרים קטנים
תכנון
פריטי ריהוט בעיצוב חדרים קטנים
מתכננים בית חדש? אל תשכחו להתקין משאבה טבולה
אדריכלות
מתכננים בית חדש? אל תשכחו להתקין משאבה טבולה
עבודת כפיים
תכנון
עבודת כפיים
מעצבי פנים בישראל
תכנון
מעצבי פנים בישראל
מומחי 'המטבח שלי' מסבירים: איך לעצב מטבח בצורה נכונה?
תכנון
מומחי 'המטבח שלי' מסבירים: איך לעצב מטבח בצורה נכונה?
מול נוף הגולף
אדריכלות
מול נוף הגולף
איך לבחור שיש למטבח ולמה לשים לב
תכנון
איך לבחור שיש למטבח ולמה לשים לב
תכנון בית כמערכת קשרים והפתעות
אדריכלות
תכנון בית כמערכת קשרים והפתעות
ההשפעה שיש לסידור ארגזים לאחר מעבר דירה על העיצוב של הבית
טיפים לעיצוב
ההשפעה שיש לסידור ארגזים לאחר מעבר דירה על העיצוב של הבית
ארץ ישראל שלי !
תכנון
ארץ ישראל שלי !
הצעה לעיצוב חדרים בבתי מלון: גיא וולפמן, נדב סוויסה
עיצוב
הצעה לעיצוב חדרים בבתי מלון: גיא וולפמן, נדב סוויסה
עיצוב מוצר - סיפריות
תכנון
עיצוב מוצר - סיפריות
אפיריון סטייל
אדריכלות
אפיריון סטייל
גינות קטנות, הנאות גדולות
אדריכלות
גינות קטנות, הנאות גדולות
עיצוב בירוק
חומרים
עיצוב בירוק
SMALL BUT BIG, הצעה לעיצוב חדרים בבתי מלון: סטודיו שתי מעצבות
עיצוב
SMALL BUT BIG, הצעה לעיצוב חדרים בבתי מלון: סטודיו שתי מעצבות
תמ"א 38 – הזדמנות להתחדש
תכנון
תמ"א 38 – הזדמנות להתחדש
חיים חדשים, דירה חדשה
תכנון
חיים חדשים, דירה חדשה
פביליון וגשר סרגוסה, ספרד
אדריכלות
פביליון וגשר סרגוסה, ספרד
לופט כמו לופט
תכנון
לופט כמו לופט
לא רק בטוסקנה: בית העץ בשרון שמאתגר את האדריכלות המקומית
עיצוב בתים פרטיים ודירות
לא רק בטוסקנה: בית העץ בשרון שמאתגר את האדריכלות המקומית
כנות החומר, קסם הצבע
אדריכלות
כנות החומר, קסם הצבע
הדירה שהיא ארץ לעולם לא
תכנון
הדירה שהיא ארץ לעולם לא
Zygota - פיק אפ בר
חומרים
Zygota - פיק אפ בר
קיר אמיר: חיפוי חזיתות באריחי פורצלן גדולים
חומרים
קיר אמיר: חיפוי חזיתות באריחי פורצלן גדולים
עולם ומלואו – פרזול
תכנון
עולם ומלואו – פרזול
להבקיע כבר בניסיון הראשון
תכנון
להבקיע כבר בניסיון הראשון
מקצה לקצה
אדריכלות
מקצה לקצה
עיצוב ותכנון דירה קטנה השוכנת בנוה שאנן, בחיפה
תכנון
עיצוב ותכנון דירה קטנה השוכנת בנוה שאנן, בחיפה
"THROUGH HOUSE" - אופטימיזציה של מרחב מגורים מואר ומזמין בקנדה
אדריכלות
"THROUGH HOUSE" - אופטימיזציה של מרחב מגורים מואר ומזמין בקנדה
עיצוב בשעם
עיצוב
עיצוב בשעם
מאלגנטיות שקופה ועד לחיפוי עתידני
חומרים
מאלגנטיות שקופה ועד לחיפוי עתידני
תל אביב בבאר שבע
חומרים
תל אביב בבאר שבע
חומרים חדשים - 102
תכנון
חומרים חדשים - 102
iconic תכנית ידע ושיווק לאדריכלים ומעצבים
אדריכלות
iconic תכנית ידע ושיווק לאדריכלים ומעצבים
עיצוב הבית – ככה עושים את זה ביפן
אדריכלות
עיצוב הבית – ככה עושים את זה ביפן
לספר סיפור אחר , מקדש לאוהבי סושי
אדריכלות
לספר סיפור אחר , מקדש לאוהבי סושי
סיפור של בית ונוף
אדריכלות
סיפור של בית ונוף
דוקטור צבע
תכנון
דוקטור צבע
עיצוב חכם מתחיל בחללי אחסון
תכנון
עיצוב חכם מתחיל בחללי אחסון
בית רחב ידיים
תכנון
בית רחב ידיים
מוציאים את המשרד מחדר השינה
חומרים
מוציאים את המשרד מחדר השינה
סטודיו / בית של רוברטו ולודויקה פלומבה
חומרים
סטודיו / בית של רוברטו ולודויקה פלומבה
עיצוב חדרי כושר: איך מעצבים חדר כושר מנצח?
חומרים
עיצוב חדרי כושר: איך מעצבים חדר כושר מנצח?
נוכחות עכשווית לבית עם אווירה של כפר
אדריכלות
נוכחות עכשווית לבית עם אווירה של כפר
שיק מחויך
תכנון
שיק מחויך
לגור בתוך ציור, בצפון הישן
תכנון
לגור בתוך ציור, בצפון הישן
דרך היין - יקבים מעוצבים בפיימונטה
חומרים
דרך היין - יקבים מעוצבים בפיימונטה
קטנה בעיר הגדולה
תכנון
קטנה בעיר הגדולה
עיצוב הבית באמצעות טכנולוגיות מתקדמות
חומרים
עיצוב הבית באמצעות טכנולוגיות מתקדמות
אדר' ג'וליאנו פיירונה בעליו של סטודיו CP_A מרצה אורח בכנס בנייה ירוקה 3
חומרים
אדר' ג'וליאנו פיירונה בעליו של סטודיו CP_A מרצה אורח בכנס בנייה ירוקה 3
מבצעיםוהטבות
תכנון
מבצעיםוהטבות
חצר, גינה וגן – ה-Playground  של אדריכלי הנוף
אדריכלות
חצר, גינה וגן – ה-Playground של אדריכלי הנוף
עיצוב דירות בבנייה ירוקה
תכנון
עיצוב דירות בבנייה ירוקה
מרחפים באוויר במלון פיצוויליאם בלפסט
אדריכלות
מרחפים באוויר במלון פיצוויליאם בלפסט
בית מגורים מודרני שנבנה מ-31 מכולות מסע באוסטרליה
אדריכלות
בית מגורים מודרני שנבנה מ-31 מכולות מסע באוסטרליה
הקו האדום - שיפוץ דירה
תכנון
הקו האדום - שיפוץ דירה
באה מנוחה ליגע
חומרים
באה מנוחה ליגע
משנים פנים לפנים
עיצוב
משנים פנים לפנים
יין ואמנות
תכנון
יין ואמנות
בידוד, הרבה יותר ממה שחשבת
תכנון
בידוד, הרבה יותר ממה שחשבת
ג'רמי מיירסון - מרצה בכנס inno 2017 לתכנון ועיצוב מרחב העבודה
עיצוב
ג'רמי מיירסון - מרצה בכנס inno 2017 לתכנון ועיצוב מרחב העבודה
Ambiente
אדריכלות
Ambiente
צ'רלס לאון - מתג אותו כמו בקהאם.
עיצוב
צ'רלס לאון - מתג אותו כמו בקהאם.
תכנון בית בקנדה
אדריכלות
תכנון בית בקנדה
דירה אורבנית בתל אביב: תכנון למשפחה בתנועה
אדריכלות
דירה אורבנית בתל אביב: תכנון למשפחה בתנועה
רוך ואינטימיות: השפה העיצובית בבתים שבהם גרות נשים
עיצוב
רוך ואינטימיות: השפה העיצובית בבתים שבהם גרות נשים
פונקציונאלי ונוסטלגי- הכירו את מלון בוטיק אדוה
עיצוב
פונקציונאלי ונוסטלגי- הכירו את מלון בוטיק אדוה
מינימליזם וצבע - עיצוב פנים
תכנון
מינימליזם וצבע - עיצוב פנים
עיצוב בית עם נוף הים - בית פרטי באשדוד
אדריכלות
עיצוב בית עם נוף הים - בית פרטי באשדוד
פסטיבל האור בעתיקה 2010
אדריכלות
פסטיבל האור בעתיקה 2010
מה חדש בסצינת העיצוב
עיצוב
מה חדש בסצינת העיצוב
דיור בר קיימא - מכולות ומגורים
תכנון
דיור בר קיימא - מכולות ומגורים
פרויקט מילאנו: מה צפוי בשבוע העיצוב הגדול בעולם?
אדריכלות מהעולם
פרויקט מילאנו: מה צפוי בשבוע העיצוב הגדול בעולם?
מקצב של שקט
אדריכלות
מקצב של שקט
מימד רגשי במרחב האישי
עיצוב
מימד רגשי במרחב האישי
החנות של ד"ר מאנזנה - עיצוב פנים ככלי לחיזוק מותג
אדריכלות
החנות של ד"ר מאנזנה - עיצוב פנים ככלי לחיזוק מותג
ארז שטיינברג, בעליו של סטודיו EG מרצה אורח בכנס בנייה ירוקה 3
חומרים
ארז שטיינברג, בעליו של סטודיו EG מרצה אורח בכנס בנייה ירוקה 3
יחסי חוץ ופנים בתכנון בית פרטי
אדריכלות
יחסי חוץ ופנים בתכנון בית פרטי
תערוכת Ambiente בפרנקפורט
אדריכלות
תערוכת Ambiente בפרנקפורט
חכמה על קטנים
תכנון
חכמה על קטנים
עיצוב קירות
חומרים
עיצוב קירות
?עיצוב משרד נשי, יש דבר כזה
תכנון
?עיצוב משרד נשי, יש דבר כזה
תכנון מרחבים בטוחים ומזמינים לבריאות הנפש
תכנון
תכנון מרחבים בטוחים ומזמינים לבריאות הנפש
הדור הבא של עיצוב בתים פרטיים
תכנון
הדור הבא של עיצוב בתים פרטיים
מפלט אירופאי בתל אביב: כך עוצבה דירתה של מעצבת הפנים ומשפחתה
אדריכלות
מפלט אירופאי בתל אביב: כך עוצבה דירתה של מעצבת הפנים ומשפחתה
קומה 18 מול הים
תכנון
קומה 18 מול הים
מחסרון ליתרון
תכנון
מחסרון ליתרון
מילאנו 2008
עיצוב
מילאנו 2008