אדריכלות
חזות חדשה לבית
שיפוץ מסיבי, שביצעה האדריכלית אירה שריג בתקציב נתון ולא גבוה במיוחד, שיווה לבית קיים חזות חדשה ורעננה. במסגרת תכנון ועיצוב הפנים, החלל החשוך הפך למרחב אוורירי ומואר ובמסגרת תכנון ועיצוב החוץ, הגינה הפכה לאזור מחייה מעוצב המהווה המשך ישיר של חלל הפנים
"השיפוץ שבוצע בבית השוכן באזור המרכז, נועד לחדש את ימיו של המבנה הוותיק ששטחו כ-200 מ"ר, ולהעניק לדייריו נוחות מגורים בחלל עכשווי ומתאים לצורכיהם", אומרת האדריכלית אירה שריג על תכנון פרויקט השיפוץ המסיבי שביצעה בו. "טרום השיפוץ היה חללו חשוך ודחוס למדי, והמטרה הייתה לפתוח אותו לדיאלוג ישיר עם הגינה הסובבת אותו, ולשוות לו מראה אוורירי ומואר".
הקונספט התכנוני: מסגרת השיפוץ הייתה כוללת, והקיפה את חזיתו החיצונית של הבית הדו קומתי, את שטח הגינה, וכמובן את כלל חללי הפנים, כאשר חלקו הארי התמקד בקומת הכניסה, שהפכה במסגרתו למרחב אחד המכיל בשטחו את הפונקציות המשותפות.
בשלב הראשון הסירה אדריכלית אירה שריג את המחיצות המקוריות ואת העמודים הקונסטרוקטיביים, למעט שניים להם ייעדה "תפקידי הפרדה והגדרה" בתכנון החדש ואף הדגישה אותם באמצעות חיפוי טיח. כתמיכה חלופית לעמודים שהוסרו בקדמת החלל הותקנה קורת ברזל ה"נמשכת" לכל רוחבו, כאשר בגונה הטבעי - חלוד שצופה בלכה - היא אף הופכת לאלמנט שנוכחותו תורמת עניין. הפתחים הקיימים נותרו בגודלם המקורי אך הותקנו במסגרות אלומיניום חדשות בגון גרפיט, ורק פתח היציאה מהסלון לגינה הורחב במטרה להעצים את הדיאלוג המבוקש בין אדריכלות הפנים לאדריכלות החוץ. ואמנם, בחלל של אחרי השיפוץ יכול העומד בכניסה לבית להישיר מבט אל רחבת הישיבה הממוקמת בגן, ולחלופין יכולים המצויים ברחבת הישיבה לחצות במבט את כלל מרחב הפנים עד דלת הכניסה המסוגננת בגון גרפיט התואם את גון הפתחים.
מראה מרחבת הישיבה ביציאה מהסלון אל עבר חלל הפנים: קשר ויזואלי הדוק בין שני המרחבים. צבעוניות וחומריות: פלטת הצבעים שנבחרה להוביל את העיצוב המחודש נשענת על גווני אפור, מוקה ולבן, והיא מתגלה כבר במעטפת החיצונית שחופתה בטיח פיגמנטי בגון לבן אפרפר. בנסיגות המופיעות על פני שטח המעטפת המקורי, שילבה אדריכלית אירה שריג לבני פירוקים בגון אפור תואם. שימוש חומרי שעתיד להתגלות גם בחלל הפנים, כשהוא מייצר המשכיות ומדגיש קשר עם החוץ. כך גם הבטון שמשמש לריצוף שביל הכניסה ומופיע אף בגרם המדרגות, שמיקומו נותר כשהיה אך הוחלף בגרם בטון מלווה במעקה ברזל שחור בקווי עיצוב נקיים. ניקיון וחמימות כאחד הם ממאפייניו של החלל האוורירי שנחשף עם הכניסה לבית. ריצוף החלל נעשה בפרקט אלון שנמשח בשמן המעניק לו ברק, קירותיו נצבעו בגווני מוקה בהירים או חופו בטיח באחד מגווני הפלטה שנבחרה, והתאורה ששולבה בו מורכבת מספוטים שהותקנו על פסי צבירה וגופים קבועי קיר המפיצים אור רך ונעים.
חלוקת החלל: במסגרת עיצוב חלל הפנים, חלוקת החלל החדשה מגדירה במרחב הפתוח ארבעה אזורים, אשר למרות היותם חולקים את אותו חלל, כל אחד מהם הינו אזור עצמאי ומוגדר בבירור: סלון, פינת אוכל, מטבח ופינת עבודה. קביעת מיקומיהם במרחב כמו חוצה אותו לאורך, כאשר הסלון ופינת האוכל ממוקמים בצד אחד והמטבח ופינת העבודה בצד שני. בין שני העברים זורם ציר פנוי ויחידת האי של המטבח "מתפקדת", למעשה, כאלמנט שמסמן / מגדיר אותם. הראשונה במערך החללים היא פינת האוכל הממוקמת משמאל לדלת הכניסה ומתחת לקורת הברזל עליונה, תחומה ומוגדרת בין קיר בחיפוי לבני פירוק לבין יחידת נגרות דו צדדית המפרידה אותה מאזור הסלון. יחידה זו, שבוצעה בעבודת נגרות, תוכננה ע"י אדריכלית אירה שריג כפתרון דו תכליתי- הן להפרדה חלקית בין שני האזורים, והן לאכלוס מסך הפלסמה אשר הסרת הקירות וריבוי החלונות הקשו על מציאת קיר פנוי להתקנתו. צדה הפונה לפינת האוכל אף עוצב עם גימור של סרגלים בולטים המייצרים מרקם תלת ממדי דקורטיבי המוסיף עניין צורני וערך אסתטי נוסף לאזור זה. הסלון הממוקם מאחוריו מעוצב בקפידה מינימליסטית המשמרת את אווריריותו, ואף מאפשרת מבט ישיר אל רחבת הישיבה החיצונית, תוך הדגשת תחושה של רצף וזרימה עמה.
תכנית הבית לפני השיפוץ.
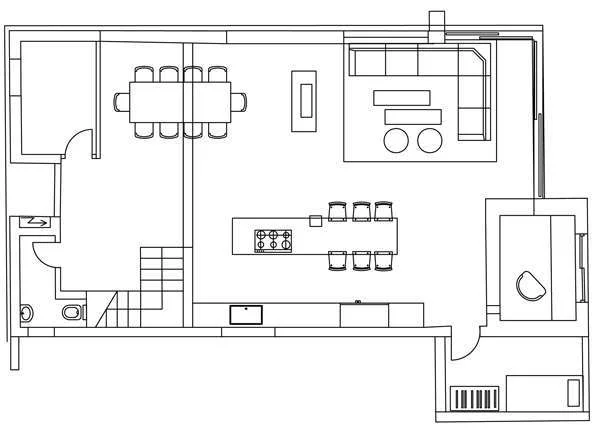
תוכנית הבית לאחר השיפוץ. תכנון ועיצוב החלל הציבורי: לתכנון ועיצוב המטבח, העשוי עץ בגימור שלייף לק בגון מוקה ומצוי מעברו השני של החלל, "גייסה" שריג את אחד העמודים התומכים שנותרו בשטח להוות "נקודת מוצא" שסביבה נבנתה יחידת האי של המטבח. במיקומו, שכמו צומח ממרכזה הוא מהווה אלמנט הפרדה בין חלקה המשמש כמשטח עבודה ובו מותקנים גם הכיריים, לבין חלקה המשמש כדלפק אכילה עם כיסאות בר גבוהים בעיצוב אוורירי. במקביל ליחידת האי תוכנן מערך ארונות תחתיים עם משטח עבודה נוסף, ויחידה גבוהה המאכלסת חללי אחסון ומכשירי חשמל, כשהמרווח ביניהם זורם כ"שדרה" המאפשרת התנהלות נוחה למצויים במטבח, כמו גם נוחות גישה לאלמנטים השונים. העמוד התומך השני שנותר בשטח משמש אף הוא כסוג של הגדרת אזורים, כשהוא כמו מסמן את "קצה" אזור הסלון ומפריד בינו לבין פינת עבודה שתוכננה מולו כמענה לאחת מדרישות הפרוגראמה. למרות שטחה המצומצם היא פונקציונאלית מאד, מהווה חלק בלתי נפרד מהחלל ובו בזמן משמרת פרטיות מתבקשת, ואף נהנית מנוף החוץ הנשקף מבעד לחלון המצוי מעל משטח העבודה.
תכנון ועיצוב החלל הפרטי: כמו בקומה התחתונה, כך גם בקומה העליונה הוחלף הריצוף בחדרים וחדרי הרחצה חודשו מבראשית, אך מבחינה מבנית לא בוצעו בה שינויים מהפכניים.
פינת האוכל תחומה בין קיר בחיפוי לבני פירוקים בגווני אפור, ויחידת ריהוט המפרידה אותה מאזור הסלוןתכנון ועיצוב הגינה: גינת הבית, שמצבה היה מוזנח למדי, זכתה לעיצוב מחודש תוך התייחסות לעובדה שבני הבית מרבים לארח ועושים שימוש תכוף במרחב החיצוני. ביציאה מהסלון תוכנן דק עץ גדול ששתי מדרגות מובילות מטה ממנו אל שטחה של מדשאה ירוקה. חלקו - הנושק לחלל הפנים ומצוי היישר ביציאה ממנו - קורה בפרגולה בנויה מקונסטרוקציית מתכת וחיפוי במבוק, בה הוצבה פינת ישיבה סלונית, ובסמוך לה הוצבה גם פינת אוכל נוחה. השביל הזורם במקביל לבית ומוביל אל הגינה האחורית רוצף בעץ ונתחם בצמחייה עשירה שנשתלה בינות לחיפוי אבנים "הגינה תוכננה כגינה פשוטה ונוחה לתחזוקה, ולמעשה, זהו סיפורו של כל פרויקט השיפוץ, אשר בתקציב נתון ולא מאד גבוה הפך את החלל החשוך והמיושן למרחב מאוורר, מואר ופתוח שנוח ונעים להתנהל בו", מסכמת אדריכלית אירה שריג.
מתוך מגזין 111: "חזות חדשה לבית"
בשלב הראשון הסירה אדריכלית אירה שריג את המחיצות המקוריות ואת העמודים הקונסטרוקטיביים, למעט שניים להם ייעדה "תפקידי הפרדה והגדרה" בתכנון החדש ואף הדגישה אותם באמצעות חיפוי טיח. כתמיכה חלופית לעמודים שהוסרו בקדמת החלל הותקנה קורת ברזל ה"נמשכת" לכל רוחבו, כאשר בגונה הטבעי - חלוד שצופה בלכה - היא אף הופכת לאלמנט שנוכחותו תורמת עניין. הפתחים הקיימים נותרו בגודלם המקורי אך הותקנו במסגרות אלומיניום חדשות בגון גרפיט, ורק פתח היציאה מהסלון לגינה הורחב במטרה להעצים את הדיאלוג המבוקש בין אדריכלות הפנים לאדריכלות החוץ. ואמנם, בחלל של אחרי השיפוץ יכול העומד בכניסה לבית להישיר מבט אל רחבת הישיבה הממוקמת בגן, ולחלופין יכולים המצויים ברחבת הישיבה לחצות במבט את כלל מרחב הפנים עד דלת הכניסה המסוגננת בגון גרפיט התואם את גון הפתחים.
מראה מרחבת הישיבה ביציאה מהסלון אל עבר חלל הפנים: קשר ויזואלי הדוק בין שני המרחבים. צבעוניות וחומריות: פלטת הצבעים שנבחרה להוביל את העיצוב המחודש נשענת על גווני אפור, מוקה ולבן, והיא מתגלה כבר במעטפת החיצונית שחופתה בטיח פיגמנטי בגון לבן אפרפר. בנסיגות המופיעות על פני שטח המעטפת המקורי, שילבה אדריכלית אירה שריג לבני פירוקים בגון אפור תואם. שימוש חומרי שעתיד להתגלות גם בחלל הפנים, כשהוא מייצר המשכיות ומדגיש קשר עם החוץ. כך גם הבטון שמשמש לריצוף שביל הכניסה ומופיע אף בגרם המדרגות, שמיקומו נותר כשהיה אך הוחלף בגרם בטון מלווה במעקה ברזל שחור בקווי עיצוב נקיים. ניקיון וחמימות כאחד הם ממאפייניו של החלל האוורירי שנחשף עם הכניסה לבית. ריצוף החלל נעשה בפרקט אלון שנמשח בשמן המעניק לו ברק, קירותיו נצבעו בגווני מוקה בהירים או חופו בטיח באחד מגווני הפלטה שנבחרה, והתאורה ששולבה בו מורכבת מספוטים שהותקנו על פסי צבירה וגופים קבועי קיר המפיצים אור רך ונעים. חלוקת החלל: במסגרת עיצוב חלל הפנים, חלוקת החלל החדשה מגדירה במרחב הפתוח ארבעה אזורים, אשר למרות היותם חולקים את אותו חלל, כל אחד מהם הינו אזור עצמאי ומוגדר בבירור: סלון, פינת אוכל, מטבח ופינת עבודה. קביעת מיקומיהם במרחב כמו חוצה אותו לאורך, כאשר הסלון ופינת האוכל ממוקמים בצד אחד והמטבח ופינת העבודה בצד שני. בין שני העברים זורם ציר פנוי ויחידת האי של המטבח "מתפקדת", למעשה, כאלמנט שמסמן / מגדיר אותם. הראשונה במערך החללים היא פינת האוכל הממוקמת משמאל לדלת הכניסה ומתחת לקורת הברזל עליונה, תחומה ומוגדרת בין קיר בחיפוי לבני פירוק לבין יחידת נגרות דו צדדית המפרידה אותה מאזור הסלון. יחידה זו, שבוצעה בעבודת נגרות, תוכננה ע"י אדריכלית אירה שריג כפתרון דו תכליתי- הן להפרדה חלקית בין שני האזורים, והן לאכלוס מסך הפלסמה אשר הסרת הקירות וריבוי החלונות הקשו על מציאת קיר פנוי להתקנתו. צדה הפונה לפינת האוכל אף עוצב עם גימור של סרגלים בולטים המייצרים מרקם תלת ממדי דקורטיבי המוסיף עניין צורני וערך אסתטי נוסף לאזור זה. הסלון הממוקם מאחוריו מעוצב בקפידה מינימליסטית המשמרת את אווריריותו, ואף מאפשרת מבט ישיר אל רחבת הישיבה החיצונית, תוך הדגשת תחושה של רצף וזרימה עמה.
תכנית הבית לפני השיפוץ.
תוכנית הבית לאחר השיפוץ. תכנון ועיצוב החלל הציבורי: לתכנון ועיצוב המטבח, העשוי עץ בגימור שלייף לק בגון מוקה ומצוי מעברו השני של החלל, "גייסה" שריג את אחד העמודים התומכים שנותרו בשטח להוות "נקודת מוצא" שסביבה נבנתה יחידת האי של המטבח. במיקומו, שכמו צומח ממרכזה הוא מהווה אלמנט הפרדה בין חלקה המשמש כמשטח עבודה ובו מותקנים גם הכיריים, לבין חלקה המשמש כדלפק אכילה עם כיסאות בר גבוהים בעיצוב אוורירי. במקביל ליחידת האי תוכנן מערך ארונות תחתיים עם משטח עבודה נוסף, ויחידה גבוהה המאכלסת חללי אחסון ומכשירי חשמל, כשהמרווח ביניהם זורם כ"שדרה" המאפשרת התנהלות נוחה למצויים במטבח, כמו גם נוחות גישה לאלמנטים השונים. העמוד התומך השני שנותר בשטח משמש אף הוא כסוג של הגדרת אזורים, כשהוא כמו מסמן את "קצה" אזור הסלון ומפריד בינו לבין פינת עבודה שתוכננה מולו כמענה לאחת מדרישות הפרוגראמה. למרות שטחה המצומצם היא פונקציונאלית מאד, מהווה חלק בלתי נפרד מהחלל ובו בזמן משמרת פרטיות מתבקשת, ואף נהנית מנוף החוץ הנשקף מבעד לחלון המצוי מעל משטח העבודה.תכנון ועיצוב החלל הפרטי: כמו בקומה התחתונה, כך גם בקומה העליונה הוחלף הריצוף בחדרים וחדרי הרחצה חודשו מבראשית, אך מבחינה מבנית לא בוצעו בה שינויים מהפכניים.
פינת האוכל תחומה בין קיר בחיפוי לבני פירוקים בגווני אפור, ויחידת ריהוט המפרידה אותה מאזור הסלוןתכנון ועיצוב הגינה: גינת הבית, שמצבה היה מוזנח למדי, זכתה לעיצוב מחודש תוך התייחסות לעובדה שבני הבית מרבים לארח ועושים שימוש תכוף במרחב החיצוני. ביציאה מהסלון תוכנן דק עץ גדול ששתי מדרגות מובילות מטה ממנו אל שטחה של מדשאה ירוקה. חלקו - הנושק לחלל הפנים ומצוי היישר ביציאה ממנו - קורה בפרגולה בנויה מקונסטרוקציית מתכת וחיפוי במבוק, בה הוצבה פינת ישיבה סלונית, ובסמוך לה הוצבה גם פינת אוכל נוחה. השביל הזורם במקביל לבית ומוביל אל הגינה האחורית רוצף בעץ ונתחם בצמחייה עשירה שנשתלה בינות לחיפוי אבנים "הגינה תוכננה כגינה פשוטה ונוחה לתחזוקה, ולמעשה, זהו סיפורו של כל פרויקט השיפוץ, אשר בתקציב נתון ולא מאד גבוה הפך את החלל החשוך והמיושן למרחב מאוורר, מואר ופתוח שנוח ונעים להתנהל בו", מסכמת אדריכלית אירה שריג.מתוך מגזין 111: "חזות חדשה לבית"
"לפעמים, כדי שמשהו אחד ייבנה, משהו אחר צריך להתפרק"
בקצה השמיים ובסוף המדבר - מתחיל הפינוק
איך נראית דירה שמרגישה כמו חופשה גם כשאתם נשארים בבית?
מהמילואים לשטיח האדום: המנצחים הגדולים של "אוסקר האדריכלים"
הטעויות שהופכות כל שיפוץ לסיוט (ואיך להימנע מהן)
המונדיאל בפתח: איך להפוך את הבית לאצטדיון ביתי מושלם
כתבות נוספות
מהפכת הסלון: איך תאורה חכמה יוצרת יוקרה ללא שיפוץ
לתכנן ל"סבתא" את הדירה
המעצבת שמלמדת את הבית להרגיש
קומה 18 מול הים
דברים טובים באים באריזות קטנות
WELCOME TO THE MODERN FARM HOUSE
דירה קטנה - תכנון גדול: דירת 60 מ"ר בתל אביב
הגיאומטריה שמחברת בין הדיירים לטבע
דירת הגג שזוכה לשיפוץ מהמסד עד הטפחות
ליצור מקור הצללה מעוצב בחצר הבית או המרפסת
ברוכים הבאים למחר: האתר החדש של קליל
שיפוץ ועיצוב מחודש לדירה
מינימל קומפקט
חזרה לבית ילדותי
מתחם הממגורות - חנות קונספט קנה קש
נפלאות עיצוב חדר נוער
מנכ"ל חברת הבנייה אוסטק שמיר
למרות המגרש הקטן, היא לא התפשרה על הבריכה!
אדריכלות ישראלית במלוא תפארתה..
טרנדים וחדשנות בעולם הקרמיקה: מבט מקרוב
כך תארחו את משפחתכם
המעבדה של המעטפת האמורפית / מעטפת שיוצרת בקרת אקלים משתנה
אינסטינקט חזרתי
שיפוץ בית באוסטרליה
הוועידה הבינלאומית לחדשנות בעיצוב ואדריכלות - כתבו עלינו, דיברו עלינו
הקשר בין עולם הרכב לבית הזה?
אופטימיות נצחית בראש צלול
הקיץ בפתח: תתפלאו עד כמה החלון יכול לחסוך לכם כסף
עיצוב בתים בסגנון סקנדינבי
עיצוב חללים של בית מלון על ידי הבינה המלאכותית בהשראת הארכיטקט ראנצו פיאנו
SMALL BUT BIG, הצעה לעיצוב חדרים בבתי מלון: סטודיו שתי מעצבות
תכנון שהפך אסם ישן לבית מגורים
בגובה העיניים
מהדרום הישר לשינקין
אינובייט - Optimize Your Mind
מה חדש בעולם החומר?
יוצאים מהקופסא
ייחוד ואווירה
חומרים חדשים - 117
להלביש בית
לעצב מכל הלב- מעצבים למען הקהילה
מעלית ביתית- יש דבר כזה
חיים חדשים על הגבעה
הלקוחות הם מקור ההשראה שלי
פרטים קטנים תרומה גדולה
המטבח – לב הבית – טיפים לתכנון פונקציונלי
קלאסיקה אורבנית בשרון
יוצאים מהקופסה
עיצוב בתים תוך שימוש נכון באנרגיה
השראות בתחום עיצוב בתים
הוט קוטור ממוחזר
אדריכלית: ויקטוריה קרייס
מלון EDITION - מגדירים יוקרה מחדש
תכנון ועיצוב בית - משני עברי הגשר
תחרות red dot - זוכים ישראליים
יפה, ירוק, חכם ועובד
עיצוב בית פרטי- הידור גאומטרי
גן ציור
רסטורציה - שימור ושיקום רהיטים
הדשא (הסינתטי) של השכן ירוק יותר
המפקדה שמגדירה את תרבות העבודה
מה עושים כשאין קיר?
כיצד לשלב בהרמוניה אלמנטים מנוגדים במהלך שיפוץ בית
הכל תלוי (והרשות נתונה): עיצוב חדר גמיש במלון אורבאני. שרון נוימן אדריכלים
מרחב אחד, המון חיבורים
למרות האתגר: התוצאה נפלאה, חמה ופיסולית
סגנון ה FUSION במלוא תפארתו
הבית על צלע הר
שכונה ירוקה - זכות ציבורית
עיצוב עתידני
חמימות, ניקיון והרמוניה: דירת חמישה חדרים בבאר יעקב
לחמם את הבית
לידתו של גן
הנוער של היום
עיצוב בשתי קומות- דופלקס במתחם נגה
נקודת חיבור
לעצב בקליק: מותגי החשמל והריהוט אונליין בדרך לכבוש את הבית (והלב) שלנו
הכלי שחוסך ליזמי נדל"ן עשרות שעות בחודש
עיצוב מלון באקפולקו, שמשלב את חוויות היום וחוויות הלילה
עיצוב דיגיטאלי - דיגיטל שיק
אוהבים לארח
כחול הוא הצבע שלי
טבע וצבע בלב תל אביב
זה המוזיאון שגונב את ההצגה בלונדון
בית שגדל עם הדיירים: עיצוב נכון לפי שלבי החיים
"CASA HERRERO" בית ים תיכוני מודרני, לבן, חכם... "מבריק"
אורבונד – לוחות גבס משופרים בהתאמה מלאה לאופי החלל
בית הקשתות - אדריכלות ועיצוב
הרמוניה של שילובים
המהפכה החלקה: החומר שמשנה את פני הבית
עיצוב מכונית העתיד של BMW
מבנה מגורים מדהים, בשוויץ, מתחת לפני הקרקע
שיפוץ בית פרטי בשכונה בצפון תל אביב
מטבח עכשיו - חידושים בתחום המטבחים
מרחב העסקים המודרני
עיצוב מערכות ריהוט – כיסאות
קלאסיקה אופנתית במיטבה אל מול הים התיכון
עונת הרחצה החלה
מגדל רוטשילד 17 - מגדל ירוק
משרדי חב' "אנגל אינווסטמנט" ומשרדי עו"ד "חת שריד גרובר ספיר-חן לברון"