נולד ממקומו
אדריכלות

נולד ממקומו

שילוב בין התכנון של האדריכלית ליאת דנקנר, מלאכת העיצוב של מעצבת הפנים אורלי אמיתי, ומיקום מנצח החושף מרחב פתוח, הניב בית שהנוף הוא הנרטיב הרוקם את שפתו

חזיתו הקדמית של הבית: חזות קוהרנטית שאינה מסגירה את העובדה שמדובר במבנה דו משפחתי. אזור הכניסה משתלב בחזית כעין פרק ניתוק.

כשפותחים את דלת הכניסה של הבית השוכן באחד מישובי השרון, והמבט החוצה את החלל פוגש מרחב פתוח המשתרע מולו וכמו נמשך ונמשך אל עבר אינסוף, נקל להבין את "החיזור הנמרץ" של מעצבת הפנים אורלי אמיתי ויורם, בעלה, אחרי המגרש עליו הוא ממוקם. "גם ביתנו הקודם היה בית שבנינו, אך הילדים שבגרו והצרכים שהשתנו בעקבות זאת, הביאו אותנו להחלטה על בניית בית חדש שיהיה מותאם יותר לאורח חיינו העכשווי, מה גם שהתאהבנו במיקום של המגרש" הם מספרים.

עם הנוף הזה אי אפשר להתווכח: מעקה שקוף התוחם את שטח הגן מבטיח שדבר לא יחסום את יפי המראה.

עם הנוף הזה אי אפשר להתווכח: מעקה שקוף התוחם את שטח הגן מבטיח שדבר לא יחסום את יפי המראה.

אל האדריכלית ליאת דנקנר, שהייתה אמונה על התכנון הארכיטקטוני הם הגיעו אחרי שאורלי התרשמה מבתים בתכנונה שתאמו את הסגנון והרוח שרצתה ליצור בביתה החדש, והתהליך המקצועי-אישי זרם כדיאלוג פורה, לו היה שותף גם יורם שלקח על עצמו לשמש כמנהל הפרויקט. "אורלי ויורם הגיעו אלי מגובשים לגמרי, עם תובנות ורצונות ברורים" מספרת דנקנר על הפרויקט שהופקד בידיה- תכנון בית דו משפחתי הכולל יחידה גדולה שנועדה לשמש למגוריהם ויחידה קטנה יותר, על מגרש ששטחו משתרע על 660 מ"ר.

עם עיסוקה של אורלי ולמודי ניסיון מביתם הקודם, הפרוגראמה שניסחו הייתה מדויקת: לכלול בקומת הכניסה את משרדה של אורלי, ליצור יחידת הורים מפנקת בקומה העליונה + שתי סוויטות קטנות יותר שימשו לאירוח וכמשרדו של בעל הבית, וכן יחידה לבן הבוגר בקומת המרתף.

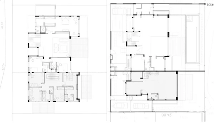
תכנית אדריכלית: מימין: קומת הכניסה, משמאל: הקומה הראשונה

תכנית אדריכלית: מימין: קומת הכניסה, משמאל: הקומה הראשונה


בהיבט האדריכלי האתגר של דנקנר היה לדבריה "ליצור מבנה שחזותו תיראה אחידה ולא תסגיר את החלוקה לשתי יחידות". ואמנם, הבית נקי הקווים אינו חושף זאת כלל ועיקר, אלא נחשף כמעטפת קוהרנטית בה משתלב אזור כניסה מרשים ועוצמתי: מספר מדרגות שיש מרחפות מובילות אל מרחב חיצוני-פנימי המתנשא עד גובה גג הבית, ודלת גבוהה מחופה בסרגלי עץ אלון מגוון הממשיכים ומחפים גם את מלוא גובה הקיר, בהתאמה לסרגלי עץ הטיק של חלונות הקומה העליונה.

   מבט מקצה גרם המדרגות אל מראה הנוף הנשקף נכחה, ונחשף במלואו מבעד למעקה השקוף של הגשר. קיר הלבנים שנראה מימין מייצר תחושת המשכיות בין שתי הקומות, ומשמאל נראית הספרייה.

ממד הגובה הרב של אזור הכניסה ממשיך בתוך הבית פנימה בו הוא מגדיר את אזור הסלון, כאשר בשאר חללי הקומה הגובה הוא מעט "צנוע" יותר, "רק" 3.50 מ'. משמאל לאזור הסלון ממוקמים המטבח ופינת האוכל; מימינו ישנו מעבר למשרדה של אורלי ולשירותי אורחים; ממעל חוצה אותו גשר-גלריה של הקומה העליונה; וגרם המדרגות המוביל אליה ממוקם לצד דלת הכניסה.

תמונה קטנה-שמאל-חזיתו הקדמית של הבית: מדרגות שיש מרחפות ומרחב כניסה חיצוני שגובהו מתנשא עד גובה הגג. חיפוי סרגלי עץ האלון המגוון של הדלת ממשיך מעלה ועוטף גם את הקירוי, כשהוא מותאם לסרגלי עץ הטיק של חלונות הקומה השנייה.

תמונה קטנה-שמאל-חזיתו הקדמית של הבית: מדרגות שיש מרחפות ומרחב כניסה חיצוני שגובהו מתנשא עד גובה הגג. חיפוי סרגלי עץ האלון המגוון של הדלת ממשיך מעלה ועוטף גם את הקירוי, כשהוא מותאם לסרגלי עץ הטיק של חלונות הקומה השנייה.

"מאחורי" קיר הסלון תוכנן אמנם חדר משפחה/טלוויזיה, אך להבדיל מהבית הקודם בו היווה חלל המשפחה אזור פעיל בו הרבו לשהות, את מרכז החיים בביתם הנוכחי העדיפו אורלי ויורם לקבוע במרחב המגורים הפתוח, ליהנות ממנו ו"לחיות אותו" לדבריהם.

חלל המגורים, מבט מעומק החלל אל עבר דלת הכניסה: מימינה גרם מדרגות שמוביל לקומה העליונה, משמאלה מעבר למשרדה של אורלי, וממעל גשר-גלריה של הקומה העליונה חוצה את הגובה הרב ומקיים איתו קשרי עין ישירים. הגובה הכפול מגדיר את אזור הסלון.

חלל המגורים, מבט מעומק החלל אל עבר דלת הכניסה: מימינה גרם מדרגות שמוביל לקומה העליונה, משמאלה מעבר למשרדה של אורלי, וממעל גשר-גלריה של הקומה העליונה חוצה את הגובה הרב ומקיים איתו קשרי עין ישירים. הגובה הכפול מגדיר את אזור הסלון.

נוכח מיקומו של הבית, אך טבעי היה שהנוף יהווה את הנרטיב הרוקם את שפתו, אשר בתוך כך מאופיינת בפתיחות רבה ומשמרת קשר הדוק עם החוץ: רצף ויטרינות מייצר חזית שקופה לכיוון הנוף, וכך גם ויטרינה גדולה המלווה את גרם המדרגות מעברו השני של החלל, לכיוון החזית הקדמית.

מבט מאזור הכניסה אל עבר כלל אזורי החלל ואל הספרייה הממוקמת בגשר- הגלריה שבקומה העליונה. ריצוף באריחי שייגריי אפורים המדמים בטון, קירות לבנים, ותאורה המשלבת גופים שקועים עם גופים דקורטיביים ממוקדים.

מבט מאזור הכניסה אל עבר כלל אזורי החלל ואל הספרייה הממוקמת בגשר- הגלריה שבקומה העליונה. ריצוף באריחי שייגריי אפורים המדמים בטון, קירות לבנים, ותאורה המשלבת גופים שקועים עם גופים דקורטיביים ממוקדים.

לממד השקיפות מתווסף מארג חומרי מודרני וחמים כאחד- ריצוף קומת הכניסה בוצע באריחי שייגריי אפורים שנבחרו בשל חוזקם ובשל גונם ההומוגני המדמה בטון, והם משמשים גם לריצוף פינת הישיבה החיצונית תוך יצירת המשכיות ויזואלית המדגישה את חיבור שני המרחבים. קירות החלל נצבעו בלבן, והקיר המפריד בין אזור הסלון וחדר הטלוויזיה חופה לכל גובהו בלבנים בגוני שחור-אפור, אשר שילובן, לדברי אורלי, "יוצק חמימות, ובאופן הנחתן ב"שורות עוקבות" (לבנה מעל לבנה) גם מייצר מראה נקי החובר היטב לשפת החלל". חיפוי זהה הוענק גם לקיר הצמוד לוויטרינה מאחורי גרם המדרגות, והתחושה המתקבלת היא של מידתיות נכונה, של מרחב בו נמהלים עוצמה ועידון לכדי איזון מדויק- שילוב של חומרים ואלמנטים שנוכחותם עשירה וניכרת, אך באורח שאף אחד מהם אינו משתלט או דומיננטי מידי.

  הסלון: תחום בשקיפות החושפת את הגינה והבריכה. ריצוף באריחי שייגריי, קיר מחופה לבנים כהות מייצר מראה חמים ונקי כאחד, פריטי ריהוט האקלקטי מגלם זיקה לסגנון טבעי- שולחנות קפה עשויים אדני רכבת, וצמד כורסאות עשויים מקלעת אצות ים. ריהוט: "סיאם", חיפוי לבנים: "פרקטים", פתחים: "ווינקס".

תאורת החלל מורכבת מגופים שקועים, ספוטים ומינון מדוד של גופים דקורטיביים באזורים ממוקדים, ופריטי הריהוט מגלמים בחירה אקלקטית אנינה עם זיקה כלשהי לסגנון טבעי, דוגמת שולחנות הקפה והאוכל המעוצבים מאדני רכבת, או צמד כורסאות עשויות מקליעת אצות ים.

המטבח: רווחה ונגישות נוחה לפינת האוכל. יחידת כיור עם משטח קוריאן, יחידת קיר עם חזיתות פורניר מחורץ מצניעה בתוכה מכשירי חשמל אינטגראליים, ויחידת אי גדולה עם משטח גרניט כמו מגדירה את החלל במרחב הפתוח. מטבח:

המטבח: רווחה ונגישות נוחה לפינת האוכל. יחידת כיור עם משטח קוריאן, יחידת קיר עם חזיתות פורניר מחורץ מצניעה בתוכה מכשירי חשמל אינטגראליים, ויחידת אי גדולה עם משטח גרניט כמו מגדירה את החלל במרחב הפתוח. מטבח: "רגבה", משטח קוריאן: גיא בורסטין, משטח גרניט: "פרביטל".

פינת האוכל ממוקמת בנגישות נוחה ופונקציונאלית למטבח הנהנה מ"ספייס" ראוי, ובו משתלבים יחידת כיור עם משטח קוריאן, יחידת קיר בעלת חזיתות פורניר מחורץ המצניעה בתוכה מכשירי חשמל אינטגראליים, ויחידת אי גדולה שכמו מגדירה את שטחו במרחב הפתוח. עיצוב היחידה, המשמשת לאחסון, לעבודה וכדלפק אכילה לחיי יומיום, משלב גוף עם חזיתות צבע בתנור, משטחה העליון עשוי גרניט כהה, ושלושה גופי תאורה דקורטיביים המשתלשלים מעליה משלימים את חזותה.

גשר הגלריה שבקומה העליונה: רחב מאד, זורם בתצורת L, ומייצר מופע של אזור בפני עצמו ולא של מעבר בלבד. בתמונה נראית הכניסה ליחידת ההורים, שכמו כל פתחי החדרים תוכננו כגבוהים מהמקובל עם דלתות בגובה 2.80 מ

גשר הגלריה שבקומה העליונה: רחב מאד, זורם בתצורת L, ומייצר מופע של אזור בפני עצמו ולא של מעבר בלבד. בתמונה נראית הכניסה ליחידת ההורים, שכמו כל פתחי החדרים תוכננו כגבוהים מהמקובל עם דלתות בגובה 2.80 מ'. נגרות ספרייה ודלתות: נגריית קלוד.

גרם המדרגות המוביל לקומה העליונה אמנם ממוקם כך שהוא אינו נוטל מנפח החלל, ועם זאת, לצד שקיפות הוויטרינה המלווה אותו וכשהוא כמו מרחף בחלל הגבוה נוכחותו מרשימה ומייצרת מוקד של עניין אסתטי. המדרגות בנויות מבטון במופע גולמי "נטו" (ללא תוספת שכבות טיח וחיפוי) שמשווה לגרם כולו חזות אותנטית וקלילה יותר, והמעקה המסוגנן משלב זכוכית שקופה, ניצבי נירוסטה מעודנים, ומאחז יד מעץ החובר חומרית וויזואלית למדרכי העץ המחפים את המדרגות.

גרם המדרגות שמוביל לקומה העליונה: מלווה בוויטרינה שקופה ובעל נוכחות מרחפת המייצרת עניין. המדרגות בנויות בטון גולמי במופע גולמי

גרם המדרגות שמוביל לקומה העליונה: מלווה בוויטרינה שקופה ובעל נוכחות מרחפת המייצרת עניין. המדרגות בנויות בטון גולמי במופע גולמי "נטו" עם שילוב של מדרכי עץ, ובמעקה משתלבים משטחי זכוכית שקופה, ניצבי נירוסטה מעודנים ומאחז יד מעץ זהה למדרכי המדרגות. מדרגות ומעקות בכל הבית: "שרון מעקות" .

נרטיב הנוף נחשף במלוא עוצמתו גם בקומה העליונה, בה גשר הגלריה משקיף ישר לעברו, מחדיר אותו פנימה ומדגיש את תחושת החיבור עם החוץ גם כשנמצאים בגובה. הגשר הרחב, שכמו כל הקומה העליונה מרוצף בפרקט אלון, תוכנן ביד נדיבה כאזור בפני עצמו ולא כמעבר פונקציונאלי בלבד, כך שאפילו פינת ישיבה חיננית ניצבת בשטחו. מתארו זורם בתצורת האות L, שעל קיר "צלעה הקצרה" משתלבת ספרייה גדולה, וחללי הקומה ממוקמים משני עברי הצלע הארוכה יותר- יחידת הורים רחבת ידיים בצד אחד ושתי סוויטות נוספות בצד השני, כשבכולן מותקנות דלתות מסוגננות וגבוהות מהמקובל- 2.80 מ'.

#fids434- 12#  

יחידת ההורים נהנית מהנוף באמצעות פתח ענק מרצפה לתקרה שפונה אליו, ושטחה כולל אזורי שינה ורחצה המקושרים ביניהם באמצעות אזור ארונות רחב ונוח. העיצוב המוקפד של אורלי שילב בהם ארונות, שידת מגירות ויחידת כיור אשר בוצעו ייעודית, ובחדר הרחצה המרווח והמפנק חופו אזורי המקלחת והשירותים באריחי פסיפס שחורים הנוסכים נופך דרמטי משהו.

#fids434- 13#  

מבט מעומק הגינה אל חזיתו האחורית של הבית. רחבת ישיבה מרוצפת באריחי שייגריי זהים לאלה שבבית, דק עץ עם כורסאות מזמינות, ובריכת גלישה מחופה באריחי פסיפס כחולים.

מבט מעומק הגינה אל חזיתו האחורית של הבית. רחבת ישיבה מרוצפת באריחי שייגריי זהים לאלה שבבית, דק עץ עם כורסאות מזמינות, ובריכת גלישה מחופה באריחי פסיפס כחולים.


בבית המשמר יחסי חוץ-פנים הדוקים, המרחב המשתרע ביציאה מהסלון מתקבל כהמשך רציף וטבעי של חלל הפנים: רחבת הישיבה מרוצפת באריחי שיי גריי, ולצדה דק עץ עם כורסאות המזמינות להתרווח בתוכן מול הנוף ומול בריכת גלישה מפנקת מחופה באריחי פסיפס. וכשגונה הכחול נשזר בתמונה המרהיבה שחושפת את הנוף הקרוב והאופק הרחוק, שוב נקל להבין מה שבה את לבם של אורלי ויורם מלכתחילה, ולא בכדי.

כתבות נוספות

ריקוד המכונה
אדריכלות
ריקוד המכונה
בחוץ כמו בבית - ריהוט גינה ואביזרים
אדריכלות
בחוץ כמו בבית - ריהוט גינה ואביזרים
ביום בהיר אפשר לראות לנצח
חדשנות וטכנולוגיה
ביום בהיר אפשר לראות לנצח
ינון בן דוד : "אל תשכחו – הטבע הוא המשאב החשוב ביותר של הבית"
אדריכלות
ינון בן דוד : "אל תשכחו – הטבע הוא המשאב החשוב ביותר של הבית"
הסוד הוא בתשוקה
עיצוב
הסוד הוא בתשוקה
מילאנו אהובתי
תכנון
מילאנו אהובתי
עיצוב פנים יצירתי- גם במבנים מהמאה ה-19
אדריכלות
עיצוב פנים יצירתי- גם במבנים מהמאה ה-19
URBAN HOTEL, הצעה לעיצוב חדרים בבתי מלון: אדר' שרון גורן, אדר' חנן פרץ
עיצוב
URBAN HOTEL, הצעה לעיצוב חדרים בבתי מלון: אדר' שרון גורן, אדר' חנן פרץ
תוכו כברו
אדריכלות
תוכו כברו
איך עושים יבוא אישי של מוצרי גמר מסין
אדריכלות
איך עושים יבוא אישי של מוצרי גמר מסין
תכנון ועיצוב בית ספר להכשרת שפים
חדשנות וטכנולוגיה
תכנון ועיצוב בית ספר להכשרת שפים
הפריטים הקטנים שעושים את ההבדל: איך לבחור מתנות חג שמשדרגות את עיצוב הבית?
אדריכלות
הפריטים הקטנים שעושים את ההבדל: איך לבחור מתנות חג שמשדרגות את עיצוב הבית?
שיפוץ דירה- שדרוג קטן, הבדל גדול
תכנון
שיפוץ דירה- שדרוג קטן, הבדל גדול
בית שמקרב לבבות: איך התכנון האדריכלי מחזק את הביחד המשפחתי?
אדריכלות
בית שמקרב לבבות: איך התכנון האדריכלי מחזק את הביחד המשפחתי?
קניון Kragujevac, סרביה
חדשנות וטכנולוגיה
קניון Kragujevac, סרביה
הבית של פיטרו הכט
תכנון
הבית של פיטרו הכט
שיפוץ בית - חוץ ופנים, ישן וחדש
אדריכלות
שיפוץ בית - חוץ ופנים, ישן וחדש
שתיים ביחד  וכל אחת לחוד
תכנון
שתיים ביחד וכל אחת לחוד
מדריך מטבחים 2012
תכנון
מדריך מטבחים 2012
"דה ניידי" - תערוכת עיצוב
אדריכלות
"דה ניידי" - תערוכת עיצוב
אתגרים ופתרונות בעיצוב משרדי העתיד – סיכום כנס INNO 2024
חדשנות וטכנולוגיה
אתגרים ופתרונות בעיצוב משרדי העתיד – סיכום כנס INNO 2024
קיימות שכונתית
תכנון
קיימות שכונתית
תערוכת פרוייקטים כנס INNO - חלק ג' ואחרון
חדשנות וטכנולוגיה
תערוכת פרוייקטים כנס INNO - חלק ג' ואחרון
עיצוב זורם בכפות ידייך
תכנון
עיצוב זורם בכפות ידייך
יוצקים חלומות בברזל
חדשנות וטכנולוגיה
יוצקים חלומות בברזל
עיצוב צימרים בסגנון יפני
חדשנות וטכנולוגיה
עיצוב צימרים בסגנון יפני
סיפורה של גינה - חותם האבן
אדריכלות
סיפורה של גינה - חותם האבן
כיכר חברתית אקולוגית
תכנון
כיכר חברתית אקולוגית
מה עושים כשאין קיר?
תכנון
מה עושים כשאין קיר?
בית רב מפלסי הפך לאטרקציה בשכונה
תכנון
בית רב מפלסי הפך לאטרקציה בשכונה
תערוכת Ambiente בפרנקפורט
אדריכלות
תערוכת Ambiente בפרנקפורט
שני חלקים של השלם
אדריכלות
שני חלקים של השלם
עיצוב סובב עולם
אדריכלות
עיצוב סובב עולם
"דלידה" היא חמארה אירופאית
אדריכלות
"דלידה" היא חמארה אירופאית
הרפת שהפכה לארמון קוסמטי
חדשנות וטכנולוגיה
הרפת שהפכה לארמון קוסמטי
Noa - לפעמים חלומות משתלמים
עיצוב
Noa - לפעמים חלומות משתלמים
15 מ"ר של סטודיו מודולרי מעורר השראה
אדריכלות
15 מ"ר של סטודיו מודולרי מעורר השראה
פתרון עיצובי ואסתטי לארונות בחדר הרחצה
אדריכלות
פתרון עיצובי ואסתטי לארונות בחדר הרחצה
גינה פורחת- מחלום למציאות
אדריכלות
גינה פורחת- מחלום למציאות
מוזיאון העיצוב בחולון
חדשנות וטכנולוגיה
מוזיאון העיצוב בחולון
אהבה ממבט ראשון
אדריכלות
אהבה ממבט ראשון
עיצוב דירה עם תקציב מצומצם בהר הדר
תכנון
עיצוב דירה עם תקציב מצומצם בהר הדר
הכריות שמחזירות עטרה ליושנה
עיצוב
הכריות שמחזירות עטרה ליושנה
עניין של צבע
חדשנות וטכנולוגיה
עניין של צבע
ולמרות הכל - עשוי רק משני מרכיבים
חדשנות וטכנולוגיה
ולמרות הכל - עשוי רק משני מרכיבים
זויות שונות למטבח
תכנון
זויות שונות למטבח
מה ה- MOLET שלך?
אדריכלות
מה ה- MOLET שלך?
ידידותי לכיס נעים למראה
תכנון
ידידותי לכיס נעים למראה
רשת אורגניק מרקט
חדשנות וטכנולוגיה
רשת אורגניק מרקט
כשאירופה פוגשת כפר ישראלי
אדריכלות
כשאירופה פוגשת כפר ישראלי
אבן קיסר: יתרונות, חסרונות והאם כדאי?
תכנון
אבן קיסר: יתרונות, חסרונות והאם כדאי?
בדר אלומיניום: קווי יצור חדישים ומגוונים ומענה לכל פרויקט
עיצוב
בדר אלומיניום: קווי יצור חדישים ומגוונים ומענה לכל פרויקט
אנחנו זמן עבר
עיצוב
אנחנו זמן עבר
הדבר הגדול הבא
אדריכלות
הדבר הגדול הבא
אירופאי שיק!
אדריכלות
אירופאי שיק!
בין הספרים לחפצי הנוי: איך מוצאים את האיזון נכון בספרייה הביתית
עיצוב
בין הספרים לחפצי הנוי: איך מוצאים את האיזון נכון בספרייה הביתית
הקירות שלכם יכולים לדבר: חיפויים רב ממדיים מקוריאן
אדריכלות
הקירות שלכם יכולים לדבר: חיפויים רב ממדיים מקוריאן
הסלון כחלון ללב הבית: אריק בן שמחון חושף את סוד הקסם של תרבות האירוח הישראלית
תכנון
הסלון כחלון ללב הבית: אריק בן שמחון חושף את סוד הקסם של תרבות האירוח הישראלית
עיצוב חדש לבית עם קשר בין פנים לחוץ
אדריכלות
עיצוב חדש לבית עם קשר בין פנים לחוץ
עיצוב דירות ארכיטקטוני –סולרי
תכנון
עיצוב דירות ארכיטקטוני –סולרי
אלומאיר: היסטוריה של חשיבה קדימה
עיצוב
אלומאיר: היסטוריה של חשיבה קדימה
תוכנית החלוקה
תכנון
תוכנית החלוקה
התחלה חדשה בתקציב קטן
אדריכלות
התחלה חדשה בתקציב קטן
עיצוב ממקום אחר - 104
חדשנות וטכנולוגיה
עיצוב ממקום אחר - 104
שיפוץ בית בהרצלייה פיתוח הפך לחוויה ויזואלית ספוגת צבע
אדריכלות
שיפוץ בית בהרצלייה פיתוח הפך לחוויה ויזואלית ספוגת צבע
חדשות וחידושים - 125
עיצוב
חדשות וחידושים - 125
מהבית הזה לא תרצו לצאת!
אדריכלות
מהבית הזה לא תרצו לצאת!
שיפוץ ועיצוב מחודש לדירה 2
תכנון
שיפוץ ועיצוב מחודש לדירה 2
בית ישן וחדש
אדריכלות
בית ישן וחדש
עבודת טלאים מהפנטת
תכנון
עבודת טלאים מהפנטת
מאוהלים אפורים לבניינים ירוקים
תכנון
מאוהלים אפורים לבניינים ירוקים
העיצוב עולה קומה
תכנון
העיצוב עולה קומה
כי חצר זה לא רק דשא...
אדריכלות
כי חצר זה לא רק דשא...
אדריכלות ישראלית במלוא תפארתה..
אדריכלות
אדריכלות ישראלית במלוא תפארתה..
לשפץ בלי לבזבז: 9 טיפים לחידוש מראה הבית במחיר שפוי
עיצוב
לשפץ בלי לבזבז: 9 טיפים לחידוש מראה הבית במחיר שפוי
DOMOTEX 2026: נקודת המפגש של עולם החיפויים והעיצוב
אדריכלות
DOMOTEX 2026: נקודת המפגש של עולם החיפויים והעיצוב
דיוק הרמוני
אדריכלות
דיוק הרמוני
חברות מעוצבת
תכנון
חברות מעוצבת
חזית בלתי אפשרית
חדשנות וטכנולוגיה
חזית בלתי אפשרית
עיצוב מטבחים – תנורים וכיריים
תכנון
עיצוב מטבחים – תנורים וכיריים
חיים חדשים, דירה חדשה
תכנון
חיים חדשים, דירה חדשה
עידן חדש בתחום חיפוי קירות באריחים
תכנון
עידן חדש בתחום חיפוי קירות באריחים
פואטיקה עם קוריאן
תכנון
פואטיקה עם קוריאן
מנימליסטית ומוארת-כך עיצבה לעצמה המעצבת את דירתה
תכנון
מנימליסטית ומוארת-כך עיצבה לעצמה המעצבת את דירתה
מה לעשות עם החפצים כשמעצבים את הבית?
עיצוב
מה לעשות עם החפצים כשמעצבים את הבית?
אדריכלות נוף, גינה בתנועה
אדריכלות
אדריכלות נוף, גינה בתנועה
חלום אורבני
אדריכלות
חלום אורבני
כתבת המשך... 18 טרנדים לשנת 2014, שכדאי מאוד לשים לב אליהם!
אדריכלות
כתבת המשך... 18 טרנדים לשנת 2014, שכדאי מאוד לשים לב אליהם!
קליל: אוהבים מינימליזם, אבל לא רק
אדריכלות
קליל: אוהבים מינימליזם, אבל לא רק
חוץ-פנים, פנים חוץ
אדריכלות
חוץ-פנים, פנים חוץ
פויליון כניסה מהרחוב לתחנה תת-קרקעית הצעה לעיצוב הרכבת הקלה. ולדימיר מרקובסקי
אדריכלות
פויליון כניסה מהרחוב לתחנה תת-קרקעית הצעה לעיצוב הרכבת הקלה. ולדימיר מרקובסקי
מוזיאון ה-1000 - פרדיגמה חדשה לגורדי שחקים- מעטפת עמודי בטון שמשמשים כהגנה מפני רוחות חזקות
עיצוב
מוזיאון ה-1000 - פרדיגמה חדשה לגורדי שחקים- מעטפת עמודי בטון שמשמשים כהגנה מפני רוחות חזקות
תנורים, כיריים, עיצוב, טכנולוגיה מגמות וחידושים
תכנון
תנורים, כיריים, עיצוב, טכנולוגיה מגמות וחידושים
פיירו ליסוני - אסתטיקה טהורה.
עיצוב
פיירו ליסוני - אסתטיקה טהורה.
הלו זה משרד?
חדשנות וטכנולוגיה
הלו זה משרד?
eurocucina 2010 - תערוכת המטבחים במילאנו
תכנון
eurocucina 2010 - תערוכת המטבחים במילאנו
70 שנות עיצוב ואדריכלות
עיצוב
70 שנות עיצוב ואדריכלות
קלאסיקה מודרנית - עיצוב ותכנון בית פרטי
אדריכלות
קלאסיקה מודרנית - עיצוב ותכנון בית פרטי
הכי רחוקה מהסטנדרט
תכנון
הכי רחוקה מהסטנדרט
הפנטזיה המוחשית: בינה מלאכותית ועתיד לוחות השראה
אדריכלות
הפנטזיה המוחשית: בינה מלאכותית ועתיד לוחות השראה