כפרי לייט
אדריכלות

כפרי לייט

העדפת דיירים למראה כפרי-חמים תורגמה ע"י האדריכלית ענת קרטיס בגרסת "לייט", המוהלת את האלמנטים המתקשרים לסגנון עם חזות בהירה ופתיחות אוורירית

אזורי האירוח שבחלל הציבורי: מראה כפרי-חמים ואוורירי כאחד. ריצוף פרקט אלון מגוון, קירות בגון חאקי רך, ופתחים גדולים במסגרות פרופיל בלגי בגון שמנת עם חלוקות אופקיות ואנכיות לתוספת עניין.

אזורי האירוח שבחלל הציבורי: מראה כפרי-חמים ואוורירי כאחד. ריצוף פרקט אלון מגוון, קירות בגון חאקי רך, ופתחים גדולים במסגרות פרופיל בלגי בגון שמנת עם חלוקות אופקיות ואנכיות לתוספת עניין.

אזורי האירוח שבחלל הציבורי: מראה כפרי-חמים ואוורירי כאחד. ריצוף פרקט אלון מגוון, קירות בגון חאקי רך, ופתחים גדולים במסגרות פרופיל בלגי בגון שמנת עם חלוקות אופקיות ואנכיות לתוספת עניין.

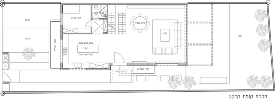
"דיאלוג זורם עם לקוחות מגובשים שיודעים להגדיר את רצונותיהם הוא לא ספק אחד הדברים שמקלים על תהליך התכנון וגורמים גם לו לזרום מהר וטוב" אומרת האדריכלית ענת קרטיס, כשהיא מתייחסת בדבריה לבית הדו קומתי שתכננה למשפחה עם ילדים קטנים באזור המרכז. המגרש שיועד לבנייה היה מאופיין במתאר ארוך וצר שחלקו האחורי הסתיים במדרון תלול, ובתוך כך הציב בפני קרטיס שתי אפשרויות - יצירת בית במבנה מפלסים מדורג עם גינה קטנה, ולחלופין מילוי המדרון לקבלת פני שטח ישרים. בבחירה בין השתיים ניצחה אופציית המילוי, אשר לדברי קרטיס אפשרה לה להיענות לבקשת הלקוחות לבית מואר ובהיר וליצור מבנה בו קומת הכניסה והגינה הגדולה חולקות מפלס אחד על כל היתרונות הגלומים בכך: קשר ישיר בין חוץ ופנים,  התנהלות ותנועה נוחה בתוך הבית פנימה, וכן השגת אזור נעים לאירוח חיצוני ומרחב משחק נגיש לילדים.   

פתחים גדולים מאצילים פתיחות אוורירית, פריטי ריהוט אקלקטיים, תאורה מגוונת משלבת גופים שקועים וצמודי קיר ברוח הסגנון הכפרי, וקמין עצים מחופה אבן אפורה.

פתחים גדולים מאצילים פתיחות אוורירית, פריטי ריהוט אקלקטיים, תאורה מגוונת משלבת גופים שקועים וצמודי קיר ברוח הסגנון הכפרי, וקמין עצים מחופה אבן אפורה.

פתחים גדולים מאצילים פתיחות אוורירית, פריטי ריהוט אקלקטיים, תאורה מגוונת משלבת גופים שקועים וצמודי קיר ברוח הסגנון הכפרי, וקמין עצים מחופה אבן אפורה.

פתחים גדולים מאצילים פתיחות אוורירית, פריטי ריהוט אקלקטיים, תאורה מגוונת משלבת גופים שקועים וצמודי קיר ברוח הסגנון הכפרי, וקמין עצים מחופה אבן אפורה.

בשל מבנהו הצר של המגרש, אשר "על פניו" הכתיב זרימת חלל אורכית, מוקמה דלת הכניסה לבית בחזית צידית, השוברת-מרככת מבנה פנימי מאורך ומאפשרת פרישת חלל "רוחבית" ויצירת חלל ציבורי הנחלק לשני אזורים: אזור הכולל את המטבח, ואזור הכולל את אזורי הסלון ופינת האוכל. היות ואזור הסלון הינו צפוני וחשוך יחסית, אפשרה חלוקה זו להאירו באמצעות פתחים רבים העוטפים אותו בשקיפות ומחדירים לחללו אור ממזרח ודרום, כך שהוא נהנה מתאורה טבעית במהלך שעות היום. דגש על החדרת אור יום כחלק משמעותי בתכנון ניכר גם בקומת המרתף בה מוקמו הפתחים בכיוון דרום בנוסף לחצר אנגלית גדולה, ויותר מכל באופן תכנונה של דלת הכניסה: דלת עשויה פרופיל בלגי שחור תחומה במסגרת זכוכית שקופה שאף היא מחדירה אור ממזרח לדרום, ובה בעת מייצרת מופע אסתטי המקדם את פני הבאים. 

מבט מאזור הסלון לעבר המטבח הממוקם כאזור בצדו השני של החלל, אך צופה אליו ונצפה ממנו.

מבט מאזור הסלון לעבר המטבח הממוקם כאזור בצדו השני של החלל, אך צופה אליו ונצפה ממנו.

ספרייה שחורה בקווי עיצוב נקיים מכסה את פני שטחו של הקיר, ופינת האוכל משלבת שולחן עץ עם רגל מרכזית מאסיבית עם כיסאות בהירים במראה קליל יותר.

ספרייה שחורה בקווי עיצוב נקיים מכסה את פני שטחו של הקיר, ופינת האוכל משלבת שולחן עץ עם רגל מרכזית מאסיבית עם כיסאות בהירים במראה קליל יותר.

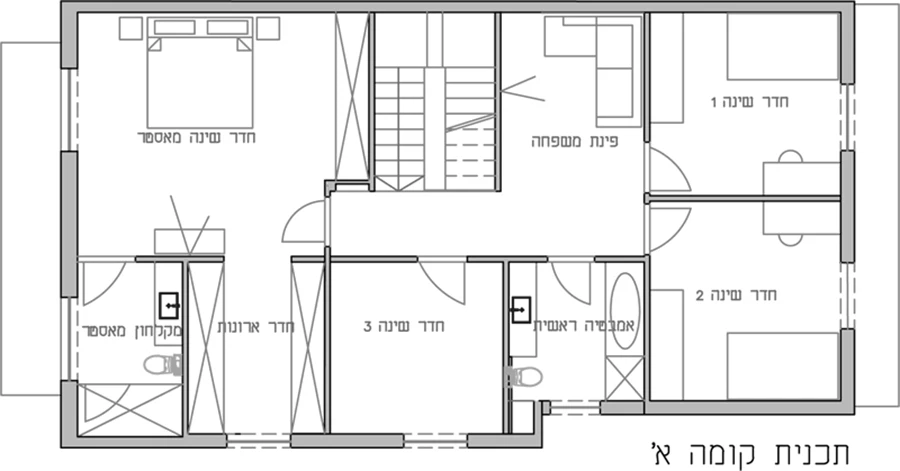
הדלת, כמו גם המדרגות הניצב בקו ישר מולה, חוצים את קומת הכניסה לשני האזורים,   כאשר באזור המטבח נכללים גם חדר של אחד הילדים ושירותי אורחים שתוכננו בצמידות אליו תוך שילוב פונקציה של מקלחת המשרתת אותו כיחידה פרטית נוחה. בקומה העליונה תוכננו שלושה חדרי ילדים נוספים וסוויטת הורים מרווחת. 

המטבח: חזיתות בעיצוב פאנלים חמים בגון שמנת וגימור צבע בתנור, ויחידת אי מרכזית מלווה בגופי תאורה גדולים עשויים מתכת במראה עכשווי. מטבח:

המטבח: חזיתות בעיצוב פאנלים חמים בגון שמנת וגימור צבע בתנור, ויחידת אי מרכזית מלווה בגופי תאורה גדולים עשויים מתכת במראה עכשווי. מטבח: "סמל".

מבט מאזור הסלון לעבר המטבח הממוקם כאזור בצדו השני של החלל, אך צופה אליו ונצפה ממנו.

מבט מאזור הסלון לעבר המטבח הממוקם כאזור בצדו השני של החלל, אך צופה אליו ונצפה ממנו.

העדפת הדיירים לבית חמים עם זיקה למראה כפרי תורגמה לשפת עיצוב אותה ניתן להגדיר כבעלת  ניחוח "כפרי לייט"- מכילה אלמנטים המתקשרים לסגנון, אך עם זאת חפה מכל עומס ומשמרת אווריריות, ניקיון ומראה בהיר. הפתחים  הרבים נתונים  בפרופיל בלגי בגון שמנת עם חלוקות אופקיות ואנכיות לתוספת עניין; לריצוף כלל אזורי הבית משמש אלון מגוון; והקירות נצבעו בגון רך ממשפחת גווני החאקי שמשתלב עם נוכחות העץ לכדי חמימות נעימה. התאורה בחלל מגוונת, כוללת גופים מסוגים שונים- שקועים, צמודי קיר ודקורטיביים ברוח הסגנון, וחלק נכבד מפריטי הריהוט "עבר" עם הדיירים מביתם הקודם תוך שילוב "השלמות" חדשות של פריטי טקסטיל ואמנות. 

גרם המדרגות הממוקם מול דלת הכניסה כנקודת אמצע החוצה את חלל הקומה לשני אזורים מוגדרים מחד, אך פתוחים זה כלפי לזה מאידך.  מעקה הברזל השחור מתכתב עם דלת הכניסה העשויה פרופיל בלגי שחור ותחומה במסגרת זכוכית שקופה המחדירה לחלל אור ממזרח לדרום.

גרם המדרגות הממוקם מול דלת הכניסה כנקודת אמצע החוצה את חלל הקומה לשני אזורים מוגדרים מחד, אך פתוחים זה כלפי לזה מאידך. מעקה הברזל השחור מתכתב עם דלת הכניסה העשויה פרופיל בלגי שחור ותחומה במסגרת זכוכית שקופה המחדירה לחלל אור ממזרח לדרום.

אזור הסלון- פינת האוכל מאופיין במראה מסוגנן ונינוח כאחד הנשען על שילובים, דוגמת שולחן אוכל עגול עשוי עץ עם מעמד מסיבי לו צוותו כיסאות בהירים וקלילים יותר למראה, או פינת ישיבה עם ספה בהירה ומזמינה עתירת כריות צבעוניות, צמד כורסאות עם זיקה לסגנון עתיק ושולחן קפה מעוצב כארגז משאות שחור. הגון השחור ככלל, שזור במראה הבהיר ומיוצג כאן בעיקר באמצעות ספרייה גדולה ומרשימה שבוצעה ייעודית בעבודת נגרות. הספרייה, שעוצבה בקווים נקיים, מכסה את כל פני שטחו של הקיר כשהיא מכילה בתוך גם את מסך הטלוויזיה ומעשירה בנוכחותה הדומיננטית את חזות החלל. בקיר מולה שילב העיצוב את אחד האלמנטים המייצגים את הרוח הכפרית יותר-  קמין עצים מצופה אבן אפורה כשמעליו תלויה עבודת צילום שנושאה חובר לאווירת החלל. 

ספרייה שחורה בקווי עיצוב נקיים מכסה את פני שטחו של הקיר, ופינת האוכל משלבת שולחן עץ עם רגל מרכזית מאסיבית עם כיסאות בהירים במראה קליל יותר.

ספרייה שחורה בקווי עיצוב נקיים מכסה את פני שטחו של הקיר, ופינת האוכל משלבת שולחן עץ עם רגל מרכזית מאסיבית עם כיסאות בהירים במראה קליל יותר.

המטבח: חזיתות בעיצוב פאנלים חמים בגון שמנת וגימור צבע בתנור, ויחידת אי מרכזית מלווה בגופי תאורה גדולים עשויים מתכת במראה עכשווי. מטבח:

המטבח: חזיתות בעיצוב פאנלים חמים בגון שמנת וגימור צבע בתנור, ויחידת אי מרכזית מלווה בגופי תאורה גדולים עשויים מתכת במראה עכשווי. מטבח: "סמל".

המטבח הממוקם בחלקו השני של האזור הציבורי נשלט ע"י גון שמנת עם חזיתות צבע בתנור, כאשר גם כאן משתלב עיצוב פנלים חמים התואם את ה"אפיל" הכפרי עם גופי תאורה גדולים עשויים מתכת במראה עכשווי שמלווים את יחידת האי הניצבת במרכז החלל. 

שילובי גון שחור בחדר הרחצה של יחידת ההורים:  ריצוף באריחי גרניט פורצלן, משטח שיש ביחידת הכיור, וגוף תאורה מעוצב כעין אשכול קריסטלים שנוסך ממד אלגנטי- עתיק.

שילובי גון שחור בחדר הרחצה של יחידת ההורים: ריצוף באריחי גרניט פורצלן, משטח שיש ביחידת הכיור, וגוף תאורה מעוצב כעין אשכול קריסטלים שנוסך ממד אלגנטי- עתיק.

את גרם המדרגות המוביל לקומה העליונה מלווה מעקה ברזל שגונו השחור מתכתב עם עיצובה של דלת הכניסה שמולו, ומדגיש את נגיעות הגון שנשזרו בחזות הבהירה בעיקרה.  סוויטת ההורים שבקומה זו פונה אל החזית הקדמית, ושטחה כולל חדרי רחצה וארונות, וכן מרפסת קונזולית קלה, שנוכחותה, לדברי קרטיס, מרככת מעט את מתארו הקובייתי של הבית. מהמרפסת, המשלבת קונסטרוקציית מתכת וריצוף עץ, ניתן להשקיף אל הרחוב, והיציאה אליה נעשית דרך דלתות זכוכית גדולות המאפשרות להשקיף אל הנוף הפתוח גם מחלל החדר עצמו. כמו שירותי האורחים שבקומת הכניסה שעוצב תוך שילוב שיש שחור , כך גם חדר הרחצה המפנק של סוויטת ההורים מגלם את שילובי הגון השחור שמופיע כאן בריצוף שבוצע מאריחי גרניט פורצלן ובמשטח יחידת הכיור, וגוף תאורה מעוצב כעין אשכול קריסטלים נוסך ממד אלגנטי- עתיק משהו למראה.

חלל השינה ביחידת ההורים: יציאה למרפסת קונזולית ופתחים גדולים המאפשרים להשקיף החוצה גם מחלל החדר עצמו. במבט מבחוץ מרככת המרפסת הקונסולית את מתארו הקובייתי של הבית.

חלל השינה ביחידת ההורים: יציאה למרפסת קונזולית ופתחים גדולים המאפשרים להשקיף החוצה גם מחלל החדר עצמו. במבט מבחוץ מרככת המרפסת הקונסולית את מתארו הקובייתי של הבית.

גרם המדרגות הממוקם מול דלת הכניסה כנקודת אמצע החוצה את חלל הקומה לשני אזורים מוגדרים מחד, אך פתוחים זה כלפי לזה מאידך.  מעקה הברזל השחור מתכתב עם דלת הכניסה העשויה פרופיל בלגי שחור ותחומה במסגרת זכוכית שקופה המחדירה לחלל אור ממזרח לדרום.

גרם המדרגות הממוקם מול דלת הכניסה כנקודת אמצע החוצה את חלל הקומה לשני אזורים מוגדרים מחד, אך פתוחים זה כלפי לזה מאידך. מעקה הברזל השחור מתכתב עם דלת הכניסה העשויה פרופיל בלגי שחור ותחומה במסגרת זכוכית שקופה המחדירה לחלל אור ממזרח לדרום.

מרחב החוץ המשתרע ביציאה מהסלון מאפשר לכל בני הבית ליהנות משהייה בו, אם כאזור אירוח עבור ההורים ואם למשחק עבור הילדים, כשהוא חותם חלל ביתי נעים העונה לצרכי המשפחה ומותאם לה במדויק כמו כפפה ליד.    

שילובי גון שחור בחדר הרחצה של יחידת ההורים:  ריצוף באריחי גרניט פורצלן, משטח שיש ביחידת הכיור, וגוף תאורה מעוצב כעין אשכול קריסטלים שנוסך ממד אלגנטי- עתיק.

שילובי גון שחור בחדר הרחצה של יחידת ההורים: ריצוף באריחי גרניט פורצלן, משטח שיש ביחידת הכיור, וגוף תאורה מעוצב כעין אשכול קריסטלים שנוסך ממד אלגנטי- עתיק.

חלל השינה ביחידת ההורים: יציאה למרפסת קונזולית ופתחים גדולים המאפשרים להשקיף החוצה גם מחלל החדר עצמו. במבט מבחוץ מרככת המרפסת הקונסולית את מתארו הקובייתי של הבית.

חלל השינה ביחידת ההורים: יציאה למרפסת קונזולית ופתחים גדולים המאפשרים להשקיף החוצה גם מחלל החדר עצמו. במבט מבחוץ מרככת המרפסת הקונסולית את מתארו הקובייתי של הבית.

כתבות נוספות

נר לי, נר לי - חנוכיות מעוצבות
חומרים
נר לי, נר לי - חנוכיות מעוצבות
בית ירוק בצבע ורוד
אדריכלות
בית ירוק בצבע ורוד
גיא הקש - מנהל בכיר של מסעדות וברים ברשת המלונות הבינלאומית 'מריוט'
עיצוב
גיא הקש - מנהל בכיר של מסעדות וברים ברשת המלונות הבינלאומית 'מריוט'
תוכו כברו
אדריכלות
תוכו כברו
פירמידת הצרכים של הבית
תכנון
פירמידת הצרכים של הבית
במעלה המדרגות
תכנון
במעלה המדרגות
נילי פורטוגלי: תפיסה הוליסטית באדריכלות
תכנון
נילי פורטוגלי: תפיסה הוליסטית באדריכלות
האדריכל היפני מסהירו הרדה ירצה בוועידה הבינלאומית לחדשנות בעיצוב ואדריכלות
תכנון
האדריכל היפני מסהירו הרדה ירצה בוועידה הבינלאומית לחדשנות בעיצוב ואדריכלות
הצעה לעיצוב חדרים בבתי מלון: גיא וולפמן, נדב סוויסה
עיצוב
הצעה לעיצוב חדרים בבתי מלון: גיא וולפמן, נדב סוויסה
דירה - מוסך
אדריכלות
דירה - מוסך
"כשעיצבנו את הבית הזה, לא יכולתי לתלות את האמנות שלו על הקיר. אז הנחתי אותה על הרצפה"
עיצוב
"כשעיצבנו את הבית הזה, לא יכולתי לתלות את האמנות שלו על הקיר. אז הנחתי אותה על הרצפה"
מי אמר דירת קבלן?!
תכנון
מי אמר דירת קבלן?!
הסלע בגני
אדריכלות
הסלע בגני
כשהאור הופך לעיצוב: 70 מעצבים בתערוכת SHINE בניו יורק
חומרים
כשהאור הופך לעיצוב: 70 מעצבים בתערוכת SHINE בניו יורק
הקירות מדברים - עיצוב קירות בהשראת נפלאות הטבע - פוסט אורח
אדריכלות
הקירות מדברים - עיצוב קירות בהשראת נפלאות הטבע - פוסט אורח
שיפוץ בית תוך שימור דו שיח בין פנים וחוץ
אדריכלות
שיפוץ בית תוך שימור דו שיח בין פנים וחוץ
טוסקנה בשרון
תכנון
טוסקנה בשרון
Autex - בידוד אקוסטי כאלמנט פונקציונלי עיצובי
חומרים
Autex - בידוד אקוסטי כאלמנט פונקציונלי עיצובי
הצעה לעיצוב אזור המתנה ברציף התת קרקעי - הרכבת הקלה של מטרופולין תל אביב. הדר דור
אדריכלות
הצעה לעיצוב אזור המתנה ברציף התת קרקעי - הרכבת הקלה של מטרופולין תל אביב. הדר דור
המותג היוקרתי Rolf Benz
תכנון
המותג היוקרתי Rolf Benz
מעצבים את הצעד הבא
חומרים
מעצבים את הצעד הבא
עיצוב מקלחת
אדריכלות
עיצוב מקלחת
דירה ברמת אביב הירוקה
תכנון
דירה ברמת אביב הירוקה
הפריטים הקטנים שעושים את ההבדל: איך לבחור מתנות חג שמשדרגות את עיצוב הבית?
אדריכלות
הפריטים הקטנים שעושים את ההבדל: איך לבחור מתנות חג שמשדרגות את עיצוב הבית?
התמונות הזוכות לשנת 2013 בתחרות הצילומים האדריכליים "Arcaid Images"
אדריכלות
התמונות הזוכות לשנת 2013 בתחרות הצילומים האדריכליים "Arcaid Images"
"...שלוש ארבע ולעבודה..."
חומרים
"...שלוש ארבע ולעבודה..."
עיצוב מכולה למגורים
אדריכלות
עיצוב מכולה למגורים
מהונג קונג – עיצוב בר-קיימא שהוא גם מחווה לטכנולוגיה מודרנית
תכנון
מהונג קונג – עיצוב בר-קיימא שהוא גם מחווה לטכנולוגיה מודרנית
רוב ווגמאנס- מרצה בכנס הגדול של שנת 2018
עיצוב
רוב ווגמאנס- מרצה בכנס הגדול של שנת 2018
"הפכתי את הלימון ללימונצ'לו"  המעצבת צביה קזיוף
אדריכלות
"הפכתי את הלימון ללימונצ'לו" המעצבת צביה קזיוף
כשאיימי ווינהאוס פגשה את מוצארט ופברוטי
תכנון
כשאיימי ווינהאוס פגשה את מוצארט ופברוטי
"נשים שמתנהגות יפה - לא עושות היסטוריה"
עיצוב
"נשים שמתנהגות יפה - לא עושות היסטוריה"
רונית רחבי
אדריכלות
רונית רחבי
מתאבנים מתערוכת הריהוט במילאנו 2011
אדריכלות
מתאבנים מתערוכת הריהוט במילאנו 2011
הלקוחות הם מקור ההשראה שלי
תכנון
הלקוחות הם מקור ההשראה שלי
קבלת פנים ספרותית
אדריכלות
קבלת פנים ספרותית
סין סטייל
אדריכלות
סין סטייל
מרחב מעוצב INNO 2018 - כנס בנ"ל לעיצוב ותכנון משרד ומרחב העבודה
עיצוב
מרחב מעוצב INNO 2018 - כנס בנ"ל לעיצוב ותכנון משרד ומרחב העבודה
בין הזמנים
אדריכלות
בין הזמנים
עיצוב שעונים - חבל על הזמן
אדריכלות
עיצוב שעונים - חבל על הזמן
הסבת רבי קומות לידידותיים לקהילה ולסביבה
תכנון
הסבת רבי קומות לידידותיים לקהילה ולסביבה
יושבים נמוך - רואים רחוק
אדריכלות
יושבים נמוך - רואים רחוק
לגור בעיר, להרגיש בכפר - האם זה אפשרי?
עיצוב בתים פרטיים ודירות
לגור בעיר, להרגיש בכפר - האם זה אפשרי?
על קוצו של ברז
אדריכלות
על קוצו של ברז
סוגי הפרקט הפופולריים ביותר לבית ב-2023
תכנון
סוגי הפרקט הפופולריים ביותר לבית ב-2023
הוועידה הבינלאומית לחדשנות בעיצוב ואדריכלות  - כתבו עלינו, דיברו עלינו
תכנון
הוועידה הבינלאומית לחדשנות בעיצוב ואדריכלות - כתבו עלינו, דיברו עלינו
מתחמי דיור מוגן: השקעה, פינוק וחיבור לקהילה
עיצוב
מתחמי דיור מוגן: השקעה, פינוק וחיבור לקהילה
הוועידה הבינלאומית לחדשנות בעיצוב ואדריכלות  - מה בתכנית?
תכנון
הוועידה הבינלאומית לחדשנות בעיצוב ואדריכלות - מה בתכנית?
מעצבי פנים בישראל
תכנון
מעצבי פנים בישראל
מרכז מחזור עירוני - א.ת. רעננה
תכנון
מרכז מחזור עירוני - א.ת. רעננה
מדריך מטבחים 2012
תכנון
מדריך מטבחים 2012
מתי הכי טוב לעשות ניקוי פאנלים סולאריים?
עיצוב
מתי הכי טוב לעשות ניקוי פאנלים סולאריים?
כך תעצבו את מטבח החלומות שלכם
תכנון
כך תעצבו את מטבח החלומות שלכם
הבית שנבנה מסביב לפרארי האדומה
אדריכלות
הבית שנבנה מסביב לפרארי האדומה
בית הקשתות - אדריכלות ועיצוב
אדריכלות
בית הקשתות - אדריכלות ועיצוב
להאיר את המטבח ולבשל באור חדש
טכנולוגיה
להאיר את המטבח ולבשל באור חדש
הרמוניה של שילובים
תכנון
הרמוניה של שילובים
נטו חלל
תכנון
נטו חלל
האלומיניום שמעצב את עתיד העיצוב התעשייתי
תכנון
האלומיניום שמעצב את עתיד העיצוב התעשייתי
המטבח שהופך כל בישול לחוויה מוצלחת
תכנון
המטבח שהופך כל בישול לחוויה מוצלחת
עיצוב אלה וואבי סאבי
תכנון
עיצוב אלה וואבי סאבי
תערוכת פרוייקטים כנס INNO - חלק ג' ואחרון
חומרים
תערוכת פרוייקטים כנס INNO - חלק ג' ואחרון
מעטפת מבטיחה וגם מקיימת
עיצוב
מעטפת מבטיחה וגם מקיימת
דרמה ונוכחות: כמה דברים שכדאי לדעת על המעצב מיכאל אוחיון
אדריכלות
דרמה ונוכחות: כמה דברים שכדאי לדעת על המעצב מיכאל אוחיון
עיצוב דירה במגדל בפתח תקווה
תכנון
עיצוב דירה במגדל בפתח תקווה
Agro Housing תכנון בר קיימא
תכנון
Agro Housing תכנון בר קיימא
הכי רחוקה מהסטנדרט
תכנון
הכי רחוקה מהסטנדרט
עיצוב בשתי קומות- דופלקס במתחם נגה
תכנון
עיצוב בשתי קומות- דופלקס במתחם נגה
לא צריך טירה באנגליה...
תכנון
לא צריך טירה באנגליה...
הבטון שמצמצם סכנות בריאותיות
תכנון
הבטון שמצמצם סכנות בריאותיות
מגמות וחידושים בתחום הפינוק, הספא והרחצה לשנת 2021
אדריכלות
מגמות וחידושים בתחום הפינוק, הספא והרחצה לשנת 2021
בין עבר, הווה ועתיד
אדריכלות
בין עבר, הווה ועתיד
התאורה שהופכת את החלל לפוטוגני
חומרים
התאורה שהופכת את החלל לפוטוגני
מה זה עיצוב פנים טוטאלי?
אדריכלות
מה זה עיצוב פנים טוטאלי?
יוצרים חווית לקוח, ייחודית, בלתי נשכחת והכי חשוב – רווחית!
תכנון
יוצרים חווית לקוח, ייחודית, בלתי נשכחת והכי חשוב – רווחית!
מיתוג וזהות תאגידית: עיצוב משרד עבור שטראוס
חומרים
מיתוג וזהות תאגידית: עיצוב משרד עבור שטראוס
חללי עבודה פתוחים ביום שאחרי מגפת הקורונה
חומרים
חללי עבודה פתוחים ביום שאחרי מגפת הקורונה
אדריכלות ספורטיבית הקיץ בלונדון
אדריכלות
אדריכלות ספורטיבית הקיץ בלונדון
נציג חברת BIG - ממובילי זירת האדריכלות העכשוית מרצה אורח בכנס בנייה ירוקה 3
חומרים
נציג חברת BIG - ממובילי זירת האדריכלות העכשוית מרצה אורח בכנס בנייה ירוקה 3
תכנון בית פרטי - מתלבש ומתפשט
אדריכלות
תכנון בית פרטי - מתלבש ומתפשט
פואטיקה עם קוריאן
תכנון
פואטיקה עם קוריאן
לעצב את מרפסת הבית או החצר עם ריהוט גן מעוצב
אדריכלות
לעצב את מרפסת הבית או החצר עם ריהוט גן מעוצב
עיצוב בבטון
תכנון
עיצוב בבטון
עד אחרון הפרטים
תכנון
עד אחרון הפרטים
ווילרוי&בוך - אופנת הבית
תכנון
ווילרוי&בוך - אופנת הבית
קלאסיקה אורבנית בשרון
תכנון
קלאסיקה אורבנית בשרון
מטיילים על קירות
אדריכלות
מטיילים על קירות
הממלכה הקסומה
עיצוב
הממלכה הקסומה
חומרים חדשים - 118
תכנון
חומרים חדשים - 118
משחקים באור: דגשים חשובים בבחירת תאורה לכל חלל בבית
חומרים
משחקים באור: דגשים חשובים בבחירת תאורה לכל חלל בבית
הגרלת כנס בתי מלון 2014
תכנון
הגרלת כנס בתי מלון 2014
חלום אורבני
אדריכלות
חלום אורבני
האוסקר של האדריכלות הישראלית
אדריכלות
האוסקר של האדריכלות הישראלית
אהבה ממבט ראשון
תכנון
אהבה ממבט ראשון
עיצוב עם ערכים
חומרים
עיצוב עם ערכים
מפעל אקסטל לחדשנות אדריכלית באמצעות האלומיניום
אדריכלות
מפעל אקסטל לחדשנות אדריכלית באמצעות האלומיניום
ליהנות מהסתיו באמצעות עיצוב גינה מושכל
אדריכלות
ליהנות מהסתיו באמצעות עיצוב גינה מושכל
עיצוב ממקום אחר - 102
חומרים
עיצוב ממקום אחר - 102
לא תאמינו איך הבית הזה נראה עכשיו!
עיצוב
לא תאמינו איך הבית הזה נראה עכשיו!
עיצוב גינות באמצעי הצללה
תכנון
עיצוב גינות באמצעי הצללה