מול נוף הגולף
אדריכלות

מול נוף הגולף

עם נוף מנצח של מדשאות מתחם הגולף בקיסריה, הבית שתוכנן כשיתוף פעולה בין האדריכליות טובה דויד וצילה רייזר והמעצבת ריקה לונדון, מהווה פלטפורמה ראויה 'לקלוט' אותו לתוך חללו רחב הידיים.

בית הצופה אל מגרשי הגולף בקיסריה, הוא כבר "סיבוב" שלישי של תכנון שמבצעות האדריכליות צילה רייזר וטובה דוד לדייריו "הפרויקט הראשון היה שיפוץ בית קיים בקריות, מקום מגוריהם הקודם, השני היה בית שתכננו גם כן בקיסריה אך בשכונה אחרת, וזה הנוכחי נולד מתוך רצון "לדייק" יותר את חלל ביתם ולהתאימו לצורכיהם ולשלב זה של חייהם" מספרות רייזר ודוד, על תכנונו, אותו ביצעו בשיתוף פעולה עם המעצבת ריקה לונדון. "מדובר במשפחה המנהלת חיי חברה פעילים, שאוהבת לארח ומרבה לעשות זאת, והבית הזה שנהנה ממרחב גדול יותר מעניק להם את כל התנאים הנוחים לכך, עם בונוס של נוף המדשאות הירוקות אליו הוא פונה". ואמנם, הנוף המלבב ורצון למצות אותו כמה שיותר, היוו שיקולים מכריעים בקביעת ההפניות ובטוויית תכנונו של המבנה הקלאסי למראה שקומפוזיציית גושיו מהדהדת תצורת H כלשהי. מערך הגושים הודגש באמצעות חיפוי חוץ המשלב טיח פיגמנטי בפרק האמצעי ואבן טבעית באלה שמשני עבריו, כאשר שילוב קרניזים נקיים בחלקו העליון מרככים ומעדנים את המופע הגושי.  

מבט מבחוץ אל החזית הקדמית: מבנה קלאסי בתצורת H כלשהי, משלב חיפוי טיח עם אבן טבעית וקרניזים נקיים המרככים את המופע הגושי. חיפוי אבן: "ג'רוזלם סטון".

חלל ביניים פתוח לשמיים, שנחשף עם פתיחת דלת העץ האטומה שבחזית ובסופו מתגלה הכניסה הרשמית השקופה.

חלל ביניים פתוח לשמיים, שנחשף עם פתיחת דלת העץ האטומה שבחזית ובסופו מתגלה הכניסה הרשמית השקופה.

דלת העץ אטומה בחזית

דלת העץ אטומה בחזית

רחבת חצר קדמית מובילה אל דלת כניסה דו כנפית עשויה עץ טבעי מבוקע עם מסגרת מתכת, ופתיחתה מפתיעה: במקום חלל פנים של "בית כמו בית" מתגלה חצר חיצונית פתוחה לשמיים, כחלל ביניים אותו חותמת הכניסה ה"רשמית"-  דלת זכוכית המעוצבת כשלושה מקטעים רחבים, ששקיפותם מאפשרת למבט לחצות את מרחב הפנים ולהיחשף היישר לנוף החוץ הנשקף ממנו. 

קומת הכניסה היא הקומה הציבורית, חלל מרווח ונדיב ממדים אשר בנוסף לפונקציות המשותפות – מטבח, פינת אוכל, סלון ופינת משפחה- כולל בשטחו גם סוויטת אירוח וחדר עבודה, ובויטרינות הגדולות מרצפה עד תקרה שתוחמות אותו תוך יצירת חזית שקופה  משתלבים פתחי יציאה לרחבת ישיבה חיצונית. הרחבה מתוכננת כעין אכסדרה מקורה בפרגולה עם תריסים חשמליים הניתנים לסגירה מלאה, ואגב כך, לצד תפקודה כמרחב חוץ נעים הכולל פונקציות אירוח, בעת הצורך היא יכולה להפוך גם לסוג של חלל פנים ולחבור לחלל המגורים כהמשך ישיר. בקומה העליונה ממוקמים סוויטת הורים מרווחת ביותר עם מרפסת המעניקה תצפית אל הנוף, וכן חדרו של הבן הצעיר שתוכנן אף הוא כסוויטה נוחה. 

מבט מתוך חלל המגורים לחלל הביניים ולדלת האטומה העשויה עץ אלון מבוקע.

מבט מתוך חלל המגורים לחלל הביניים ולדלת האטומה העשויה עץ אלון מבוקע.

חלל המגורים הנחשף מדלת הכניסה השקופה.

חלל המגורים הנחשף מדלת הכניסה השקופה.

חלל המגורים: הפונקציות המשותפות ממוקמות לרוחבו ברצף, כך שכולן נהנות ישירות מנוף החוץ. פרופיל בלגי אפור כהה בפתחים, ריצוף פרקט אלון אפרפר בפלנקים רחבים מהמקובל, קירות בצביעת טיח אפור ותאורה מגוונת, צמודת קיר ותקרה בעיקר. גופי צמודי קיר:

חלל המגורים: הפונקציות המשותפות ממוקמות לרוחבו ברצף, כך שכולן נהנות ישירות מנוף החוץ. פרופיל בלגי אפור כהה בפתחים, ריצוף פרקט אלון אפרפר בפלנקים רחבים מהמקובל, קירות בצביעת טיח אפור ותאורה מגוונת, צמודת קיר ותקרה בעיקר. גופי צמודי קיר: "הזית תאורה".

גרם המדרגות המוליך לקומות הבית האחרות ממוקם לצד מבואת כניסה מרווחת המתנשאת לגובה כפול, ועם קונספט מוביל של פתיחות מקסימאלית, במרחב המגורים הסלון, המטבח ופינת האוכל מוקמו כציר רציף "זה אחרי/לצד זה" כך שכולם פונים אל נוף החוץ ונהנים ממנו. מיקום פינת הישיבה נקבע בצדו השני של המטבח, כשהיא חורגת מעט החוצה מרצף הפונקציות, ובתוך כך נהנית מהפניות נוספות ומיתר אינטימיות כיאה לחלל שנועד לשעות של "ביחד" משפחתי-פרטי. 

המטבח: חזיתות בגימור שלייף לק מט, משטח כיור שחור המדמה אבן בזלת, חיפוי בריקים בגומחות שמשני עבריו, יחידת אי גדולה שעיצובה מהדהד זיקה למראה קלאסי, ושלושה גופי תאורה גדולים ושחורים שמשתלשלים מעליה. לצד האי נראית פינת המשפחה. נגרות מטבח:

המטבח: חזיתות בגימור שלייף לק מט, משטח כיור שחור המדמה אבן בזלת, חיפוי בריקים בגומחות שמשני עבריו, יחידת אי גדולה שעיצובה מהדהד זיקה למראה קלאסי, ושלושה גופי תאורה גדולים ושחורים שמשתלשלים מעליה. לצד האי נראית פינת המשפחה. נגרות מטבח: "נגר בכפר".

מערך ויטרינות המייצר חזית שקופה לחלל המגורים חושף את רחבת הישיבה החיצונית. הרחבה מקורה בתריסים חשמליים הניתנים לסגירה מלאה ומאפשרים להפכה לאזור נוסף של חלל הפנים.

מערך ויטרינות המייצר חזית שקופה לחלל המגורים חושף את רחבת הישיבה החיצונית. הרחבה מקורה בתריסים חשמליים הניתנים לסגירה מלאה ומאפשרים להפכה לאזור נוסף של חלל הפנים.

למרות ממדיו הנדיבים מאד שעלולים לעתים ליצור ניכור, שפת החלל משדרת חמימות נעימה ומזמינה ההולמת את אופיים ואת אורחות החיים של שוחרי אירוח. היא נשענת על חומרים טבעיים- עץ וברזל בעיקר, על מרקמי מט, ועל פלטת גווני אפור-אפור חאקי לסוגיהם עם נגיעות מדודות של שחור. אלה מופיעים בכל חומרי הגמר, האלמנטים ופריטי הריהוט והטקסטיל המשתלבים במרחב הבית תוך יצירת מסגרת חלל חמימה: מסגרות הפתחים עשויות פרופיל בלגי בגון אפור כהה- גרפיט, ריצוף הפרקט בוצע מפלנקים רחבים מהמקובל של עץ אלון מגוון לאפרפר, והקירות נצבעו בטיח אפור. התאורה המגוונת מורכבת מגופים שקועים וגופים סמויים שהוצנעו בהנמכות תקרה, פסי צבירה עם ספוטים, גופים צמודי קירות, ואף התאורה הדקורטיבית היא צמודת קיר/ תקרה בעיקרה, עם שתי "חריגות" של גופים תלויים: שלישיית גופים המלווים את יחידת האי במטבח, וגוף נוסף המשתלשל מתקרת הקומה העליונה בחלל המדרגות.

פינת המשפחה:  מיקומה החורג מעט

פינת המשפחה: מיקומה החורג מעט 'החוצה' מרצף הפונקציות מעניק לה הפניות נוספות ותחושת אינטימיות ההולמת את ייעודה כאזור משפחתי-פרטי. פריטי ריהוט בכל הבית: "ריהוטים".

חלל המדרגות הפתוח שמוביל לקומה העליונה, מודגש באמצעות גוף תאורה גדול שנתלה ברום התקרה.  המדרגות עשויות אבן והמעקה השקוף נשתל בתוכן.

חלל המדרגות הפתוח שמוביל לקומה העליונה, מודגש באמצעות גוף תאורה גדול שנתלה ברום התקרה. המדרגות עשויות אבן והמעקה השקוף נשתל בתוכן.

מרבית פריטי הריהוט בבית (ספות ושולחנות) שעוצבו ייעודית ע"י לונדון ועובדו לתכניות מפורטות ע"י דוד ורייזר, בוצעו בהזמנה תוך הקפדה על שפת הצבע והחומר, וכך גם המטבח שבוצע בעבודת נגרות. שטחו המרווח והנוח, הכולל גם מזווה ומספק שפע של מקומות אחסון, משלב חזיתות עץ באפור בהיר בגימור מט, משטח עבודה ארוך משיש שחור המדמה אבן בזלת, ומשני עברי החלון הזורם במקביל אליו משתלבות גומחות עם מדפים שחללן הפנימי חופה בבריקים. יחידת האי מרשימה בגודלה, מאפשרת ל-12 סועדים להסב סביבה, כוללת חללי אחסון, ומעוצבת תוך שילוב משטח עץ אלון ופריטי נגרות ייחודיים המגלמים רוח קלאסית, דוגמת רגליה המסיביות.

חדר השינה רחב הידיים כחלל מסוגנן ומוקפד מוקף מרפסת דק גדולה המעניקה תצפית אל הנוף.

חדר השינה רחב הידיים כחלל מסוגנן ומוקפד מוקף מרפסת דק גדולה המעניקה תצפית אל הנוף.

פינת צפייה בטלוויזיה המשתלבת כאזור בפני עצמו בחדר השינה.

פינת צפייה בטלוויזיה המשתלבת כאזור בפני עצמו בחדר השינה.

חדר הארונות כחדר לכל דבר. ארונות מרצפה לתקרה בכל היקפו מספקים שפע של מקומות אחסון, ובמרכזו ניצבת יחידת

חדר הארונות כחדר לכל דבר. ארונות מרצפה לתקרה בכל היקפו מספקים שפע של מקומות אחסון, ובמרכזו ניצבת יחידת "אי" ייעודית לאחסון אביזרים קטנים: משופעת במגירות נוחות ובעלת משטח עליון שקוף המחפה תאי אחסון ומקל על בחינת תכולתם.

למדרכי גרם המדרגות נבחרה אבן בהירה בגון לבן מלוכלך ומעקה הזכוכית המלווה אותו "נשתל" בתוכן כשהוא כמו חוצה אותן ומשמר חזות נקייה חפה מחיבורים נראים לעין. סוויטת השינה של ההורים הממוקמת בקומה העליונה היא חלל מפנק במיוחד, כמעט "דירה בפני עצמה בתוך הבית". שטחה כולל מרחב הנחלק לאזור שינה ופינת הסבה/טלוויזיה, חדר ארונות שהינו חדר בפני עצמו, וחדר רחצה רחב ידיים בו כל אחת מהפונקציות- מקלחון, יחידת כיור, שירותים- מהווה, למעשה, סוג של אזור בפני עצמו. העיצוב המסוגנן משלב חיפוי בריקים בחלקים ה"חיצוניים", חיפוי פלטות גרניט פורצלן מדוקקות וספסלים מרחפים במקלחון, ויחידת כיור בתצורת האות ר' שקוויה מהדהדים משהו את יחידת האי במטבח- רגליים מסיביות, מגירות אחסון נוחות, ומשטח שחור דמוי בזלת זהה לזה של משטח העבודה במטבח.

אזור רחצה/שירותים מרווח ונוח הנחלק לאזורי מקלחון, יחידת כיור ושירותים. חיפוי בריקים בחלקים ה

אזור רחצה/שירותים מרווח ונוח הנחלק לאזורי מקלחון, יחידת כיור ושירותים. חיפוי בריקים בחלקים ה"חיצוניים", יחידת כיור בתצורת האות ר' שמהדהדת את יחידת האי במטבח- רגליים מסיביות, מגירות אחסון נוחות, ומשטח שחור דמוי בזלת. אביזרים סניטאריים: טופולסקי.

חיפוי פלטות גרניט פורצלן מדוקקות וספסלים מרחפים במקלחון.

חיפוי פלטות גרניט פורצלן מדוקקות וספסלים מרחפים במקלחון.

רחבת הישיבה החיצונית משמשת את בני הבית רבות ומכילה את כל הנדרש לבילוי ושהייה בחוץ ולאירוח נעים. הרחבה נושקת לבריכת שחייה, וכשמעבר למימיה הכחולים משתרע נופן הירוק של מדשאות הגולף, מדובר בסוג של "פינאלה" ראוי לתכנון שמיצה עד תום את המיקום המנצח.

החזית האחורית: רחבת הישיבה המתוכננת כעין אכסדרה מכילה פונקציות נוחות לשהייה ואירוח וצופה אל בריכת השחייה ואל נוף מדשאות הגולף שמעבר לה.

החזית האחורית: רחבת הישיבה המתוכננת כעין אכסדרה מכילה פונקציות נוחות לשהייה ואירוח וצופה אל בריכת השחייה ואל נוף מדשאות הגולף שמעבר לה.

פונקציה נוחה לשהייה ואירוח

פונקציה נוחה לשהייה ואירוח

תכנית קומת קרקע.

תכנית קומת קרקע.

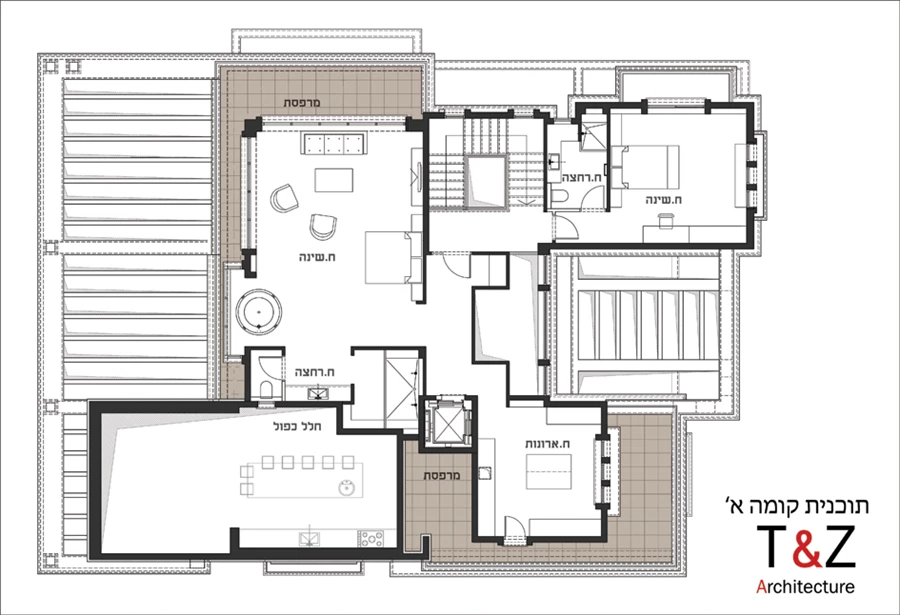
תכנית קומה א׳.

תכנית קומה א׳.

תכנון ועיצוב: אדריכליות טובה דוד וצילה רייזר- www.r-d-arch.co.il

מעצבת: ריקה לונדון - rikalondon@gmail.com

כתבות נוספות

מסורת ועכשוויות בקוריאה
אדריכלות
מסורת ועכשוויות בקוריאה
חדשות וחידושים - 123
עיצוב
חדשות וחידושים - 123
מה קורה כשטקסס פוגשת את טוסקנה?
אדריכלות
מה קורה כשטקסס פוגשת את טוסקנה?
עיצוב דירה ישנה ברוח עברה
תכנון
עיצוב דירה ישנה ברוח עברה
בשורת משטחי השיש והאריחים המשושים
חומרים
בשורת משטחי השיש והאריחים המשושים
פתרונות אחסון חכמים לחדר השינה
עיצוב
פתרונות אחסון חכמים לחדר השינה
מגמות עתידיות באדריכלות ועיצוב פנים
אדריכלות
מגמות עתידיות באדריכלות ועיצוב פנים
היא אוהבת מודרני, הוא אוהב כפרי – התוצאה נפלאה!
אדריכלות
היא אוהבת מודרני, הוא אוהב כפרי – התוצאה נפלאה!
קירות מרפאים: מה האדריכלות יודעת על טראומה קולקטיבית
אדריכלות
קירות מרפאים: מה האדריכלות יודעת על טראומה קולקטיבית
לגור במחסן
אדריכלות
לגור במחסן
רוצים לדעת מה חדש?
חומרים
רוצים לדעת מה חדש?
בית ארבע הזרועות
אדריכלות
בית ארבע הזרועות
לנשים יש היום יותר מקום בשטח – אבל הדרך עוד ארוכה
אדריכלות
לנשים יש היום יותר מקום בשטח – אבל הדרך עוד ארוכה
כיצד הפכה פרביטל ליצרנית השיש והאבן המובילה בישראל?
חומרים
כיצד הפכה פרביטל ליצרנית השיש והאבן המובילה בישראל?
קולקצית אריחי גרניט פורצלן , ויה ארקדיה
עיצוב
קולקצית אריחי גרניט פורצלן , ויה ארקדיה
נוחות בחדר השינה – מיטות מתכווננות
עיצוב
נוחות בחדר השינה – מיטות מתכווננות
מה צופן העתיד בתחום קירות מסך?
עיצוב
מה צופן העתיד בתחום קירות מסך?
שיפוץ דירה - בין צירי הזמן
תכנון
שיפוץ דירה - בין צירי הזמן
אורבניות היא שם המשחק
תכנון
אורבניות היא שם המשחק
האדריכל  Xavier  Vilalta
אדריכלות
האדריכל Xavier Vilalta
עולם ומלואו של ידיות
עיצוב
עולם ומלואו של ידיות
ממש לא בוטק'ה: משרדי המכירות בענף הנדל"ן
חומרים
ממש לא בוטק'ה: משרדי המכירות בענף הנדל"ן
שילובי חומרים בעיצוב בית פרטי
אדריכלות
שילובי חומרים בעיצוב בית פרטי
בין ארצות-הברית לתל-אביב
תכנון
בין ארצות-הברית לתל-אביב
מסודרים
תכנון
מסודרים
תכנון בית נופש קונספטואלי
אדריכלות
תכנון בית נופש קונספטואלי
חמימות יוקרתית מול נוף השדות
אדריכלות
חמימות יוקרתית מול נוף השדות
קבלת פנים ספרותית
אדריכלות
קבלת פנים ספרותית
עיצוב חדש לבית עם קשר בין פנים לחוץ
אדריכלות
עיצוב חדש לבית עם קשר בין פנים לחוץ
הסלון לאנין הטעם הישראלי
תכנון
הסלון לאנין הטעם הישראלי
מרחבי עבודה ביתיים: איך ליצור מרחב פרודוקטיבי בבית שמשלב את החוץ?
חומרים
מרחבי עבודה ביתיים: איך ליצור מרחב פרודוקטיבי בבית שמשלב את החוץ?
12 טיפים חכמים לסידור ארון הבגדים
עיצוב
12 טיפים חכמים לסידור ארון הבגדים
בטיחות בבית עם ילדים בצעדים פשוטים (בלי לוותר על העיצוב)
תכנון
בטיחות בבית עם ילדים בצעדים פשוטים (בלי לוותר על העיצוב)
פנינה תל-אביבית
אדריכלות
פנינה תל-אביבית
לגור בקובה - עיצוב בית פרטי
אדריכלות
לגור בקובה - עיצוב בית פרטי
דירה ברמת אביב הירוקה
תכנון
דירה ברמת אביב הירוקה
רוך ואינטימיות: השפה העיצובית בבתים שבהם גרות נשים
עיצוב
רוך ואינטימיות: השפה העיצובית בבתים שבהם גרות נשים
האמנית קרן שפילשר - ראיון
תכנון
האמנית קרן שפילשר - ראיון
להרגיש הכי בבית, במשרד
חומרים
להרגיש הכי בבית, במשרד
WELCOME TO THE MODERN FARM HOUSE
תכנון
WELCOME TO THE MODERN FARM HOUSE
על ראש הגבעה עומדת אצה
אדריכלות
על ראש הגבעה עומדת אצה
בידוד חיצוני בטוח כקו הגנה ראשון למבנה
עיצוב
בידוד חיצוני בטוח כקו הגנה ראשון למבנה
תכנון יצירתי בבית פרטי ופסטורלי ביישוב מתן
אדריכלות
תכנון יצירתי בבית פרטי ופסטורלי ביישוב מתן
האם הבינה המלאכותית תחליף אתכם במטבח?
טכנולוגיה
האם הבינה המלאכותית תחליף אתכם במטבח?
דירת רווקים בטייוואן בסגנון תעשייתי
תכנון
דירת רווקים בטייוואן בסגנון תעשייתי
הפרקט כאופציה בעיצוב פנים
חומרים
הפרקט כאופציה בעיצוב פנים
עיצוב חדר ארונות מודרני
אדריכלות
עיצוב חדר ארונות מודרני
הדילמה הנצחית: עיצוב פרקטי או עיצוב יפה?
עיצוב
הדילמה הנצחית: עיצוב פרקטי או עיצוב יפה?
רשת רנואר - חנות הדגל
חומרים
רשת רנואר - חנות הדגל
קל וחומר - 125
תכנון
קל וחומר - 125
מרכז התרבות החדש בפורטוגל עתיד להפוך עיר עתיקה למרכז עצבים תרבותי
אדריכלות
מרכז התרבות החדש בפורטוגל עתיד להפוך עיר עתיקה למרכז עצבים תרבותי
מיכאל חי
תכנון
מיכאל חי
קרוב רחוק – בית הטרסות בתפיסה של קיימות
תכנון
קרוב רחוק – בית הטרסות בתפיסה של קיימות
תכנון שהפך אסם ישן לבית מגורים
אדריכלות
תכנון שהפך אסם ישן לבית מגורים
עולם שלם של מטבח
תכנון
עולם שלם של מטבח
דקים סינטטיים מעוצבים לגינה, למרפסת ולבריכה
אדריכלות
דקים סינטטיים מעוצבים לגינה, למרפסת ולבריכה
לעבוד בתל אביב, להרגיש באירופה
תכנון
לעבוד בתל אביב, להרגיש באירופה
כפרי, אקלקטי, צבעוני ושובב- בית שיש בו הכל
אדריכלות
כפרי, אקלקטי, צבעוני ושובב- בית שיש בו הכל
כך תעברו ותעצבו את הדירה החדשה שלכם
תכנון
כך תעברו ותעצבו את הדירה החדשה שלכם
חללים אחרים
אדריכלות
חללים אחרים
עיצוב חללים של בית מלון על ידי הבינה המלאכותית בהשראת הארכיטקט ראנצו פיאנו
תכנון
עיצוב חללים של בית מלון על ידי הבינה המלאכותית בהשראת הארכיטקט ראנצו פיאנו
עורף חזק זה גם לקוחות תומכים
חומרים
עורף חזק זה גם לקוחות תומכים
עיצוב הוא עיצוב הוא עיצוב
תכנון
עיצוב הוא עיצוב הוא עיצוב
המשקפיים של מירון לוי
עיצוב
המשקפיים של מירון לוי
תכנון מבנה משרדי
חומרים
תכנון מבנה משרדי
מרכז מבקרים-עין קשתות (אום אל קנטיר)- אתר מורשת לאומית ברמת הגולן
אדריכלות
מרכז מבקרים-עין קשתות (אום אל קנטיר)- אתר מורשת לאומית ברמת הגולן
מדברים עיצוב - Maarten Baas
תכנון
מדברים עיצוב - Maarten Baas
על תעוזה וסקרנות
חומרים
על תעוזה וסקרנות
דור חדש של מעצבים - בוגרים 2010
אדריכלות
דור חדש של מעצבים - בוגרים 2010
מישהו הזיז את חדר השינה שלי – על מגמות משתנות בעיצוב חדרי שינה
עיצוב
מישהו הזיז את חדר השינה שלי – על מגמות משתנות בעיצוב חדרי שינה
מחיצת זכוכית אלגנטית לחיסכון ולשמירה על הפרטיות בלחיצת כפתור אחת...
חומרים
מחיצת זכוכית אלגנטית לחיסכון ולשמירה על הפרטיות בלחיצת כפתור אחת...
שימור וחידוש באסותא וילאג'
עיצוב
שימור וחידוש באסותא וילאג'
על הגבול הדק שבין בית כפרי לבית מודרני
אדריכלות
על הגבול הדק שבין בית כפרי לבית מודרני
פנטהאוז מול הים: דירת נופש מינימליסטית בעיצוב
תכנון
פנטהאוז מול הים: דירת נופש מינימליסטית בעיצוב
מדרגות בסגנון מודרני
עיצוב
מדרגות בסגנון מודרני
הקירות מדברים - עיצוב קירות בהשראת נפלאות הטבע - פוסט אורח
אדריכלות
הקירות מדברים - עיצוב קירות בהשראת נפלאות הטבע - פוסט אורח
חיבורים וקשרים
תכנון
חיבורים וקשרים
אלומאיר: היסטוריה של חשיבה קדימה
עיצוב
אלומאיר: היסטוריה של חשיבה קדימה
מפעל אקסטל לחדשנות אדריכלית באמצעות האלומיניום
אדריכלות
מפעל אקסטל לחדשנות אדריכלית באמצעות האלומיניום
גלגלי הצלחה
חומרים
גלגלי הצלחה
אסלות מעוצבות
תכנון
אסלות מעוצבות
שינוי פני עיצוב הבית בעקבות מגפת הקורונה
אדריכלות
שינוי פני עיצוב הבית בעקבות מגפת הקורונה
עיצוב קירות
חומרים
עיצוב קירות
תוכו כברו
אדריכלות
תוכו כברו
עיצוב מחודש של מרפאה פסיכיאטרית לילד
חומרים
עיצוב מחודש של מרפאה פסיכיאטרית לילד
האדריכלות הישראלית: בדרך אל העיר העתידית
עיצוב
האדריכלות הישראלית: בדרך אל העיר העתידית
תנו לעבור
חומרים
תנו לעבור
פסטיבל העיצוב הבינלאומי בברלין 2010
אדריכלות
פסטיבל העיצוב הבינלאומי בברלין 2010
אהבה ממבט ראשון
תכנון
אהבה ממבט ראשון
קומה 18 מול הים
תכנון
קומה 18 מול הים
סיפורה של גינה - חותם האבן
אדריכלות
סיפורה של גינה - חותם האבן
פסיפס של אהבה
עיצוב
פסיפס של אהבה
הבית על צלע הר
אדריכלות
הבית על צלע הר
הכותרות החשובות מתוך הוועידה לחדשנות בעיצוב ובאדריכלות
תכנון
הכותרות החשובות מתוך הוועידה לחדשנות בעיצוב ובאדריכלות
רעננה בהוד השרון
אדריכלות
רעננה בהוד השרון
הצורך הוא אבי ההמצאה
עיצוב
הצורך הוא אבי ההמצאה
פרויקט מילאנו: מה צפוי בשבוע העיצוב הגדול בעולם?
אדריכלות מהעולם
פרויקט מילאנו: מה צפוי בשבוע העיצוב הגדול בעולם?
עיצוב פנים בצבעים
תכנון
עיצוב פנים בצבעים
מתכננים שיפוץ בבית? אל תשכחו את הביוב!
תכנון
מתכננים שיפוץ בבית? אל תשכחו את הביוב!
אין עתיד לאדריכלות הישראלית?
אדריכלות
אין עתיד לאדריכלות הישראלית?