שקט מצלמים ,סטודיו לצילום
תכנון

שקט מצלמים ,סטודיו לצילום

קבלן ביצוע: רמי בן עמי, רעננה.

תפאורה: גדי מימון, חברת ג'ק רובינזון.

רפד: יוסי מזרחי, אזור התעשייה קריית שאול.

מיקום ושטח: אזור התעשייה ברעננה, כ- 100 מ"ר.

סוג הטיפול: שיפוץ ועיצוב פנים.

על הפרויקט

הפרויקט הייחודי ממוקם בבניין מסחרי/תעשייתי, בן שלוש קומות באזור התעשייה ברעננה. את החלל, שהיה נטוש ומוזנח מזה זמן רב, שכרה הצלמת יהודית הופמן על מנת להגשים חלום של הקמת סטודיו מקצועי לצילום, במסגרת המגמה הרווחת כיום של חזרה ל'פוטו' המסורתי של פעם. למרות שכיום מדובר בדרך כלל על 'בוק' והצילום הוא צילום דיגיטלי, עדיין ניתן לזהות חזרה לדפוס פעולה שנדמה שעבר מן העולם, עם הפיכת המצלמה לפריט בשימוש המוני – ההכרה בצורך בצילום מקצועי כאשר יש צורך בתוצר איכותי.

על מטרת העיצוב

המטרה, אם כן, הייתה ליצור סטודיו שהביקור בו הופך לחוויה כוללת עבור המבקרים בו ואשר כולל מרחב צילום וכן משרד ואזור קבלת קהל. המוטיב המרכזי שהוביל את תכנון העיצוב היה הרצון ליצור חוויה על בסיס תפאורה קבועה ומשתנה, בהתאם לצרכי הצילום. חשוב להדגיש שהתקציב לעבודה היה מצומצם וחסכוני וחלק ניכר ממנו הושקע בטיפול בתשתיות הישנות והמוזנחות (דוגמת ריצוף, אלמנטים מגבס, תאורה, מטבחון וכד').

כניסה לחדר השירותים

על העיצוב

קו העיצוב מחבר בין דרישות הלקוחה (הפרוגראמה) ל'רעיון מוביל' בסטודיו. כך, למשל, נעשה שימוש במוטיבים מעולם הצילום וחיבורם למבנה החלל, למשל, באמצעות בניית קיר מעוגל בכניסה בהשראת דימוי של סרט צילום. קיר מעוגל זה מחלק את החלל לשני חלקים עיקריים – אזור הקבלה ואזור הצילום. בנוסף, תכנון העיצוב הוא פונקציונלי לצורך תפקוד נכון של הסטודיו ולכן נעשה שימוש בתפאורה בעלת גמישות צורנית, על מנת שניתן יהיה להתאימה בקלות יחסית לצרכי צילום משתנים. העיצוב כולו מאופיין בקו צעיר, דינמי ומלא הומור, על מנת להוות מוקד משיכה למצולמים/ות שחלקם הם בני ובנות מצווה המגיעים לצורך צילום 'בוק' חגיגי.

בהמשך לכך, הושם דגש רב על שילוב סטים שיכולים להוות רקע צילומי הולם: גרפיטי, נסיכתי וכד' וכן הושקעו משאבים תכנוניים ועיצוביים ביצירת חוויית ההכנה לצילום: שילוב של עמדת איפור מהודרת, תא הלבשה להחלפת תלבושות לצילום וכד' – אלמנטים אשר מעצימים את חוויית הצילום וההתמקדות במצולמות כ'נסיכות' למספר שעות.

התוצאה

למרות התקציב הצנוע נוצר בחלל 'אירוע' חזותי שאינו משאיר את המבקרים בו אדישים. החלל שופע אלמנטים יצירתיים ומקוריים ומכניס לאווירת צילום וקולנוע בסגנון הוליוודי מזמין. פרויקט מקורי.

עמדות איפור והחלפת תלבושות
עמדת המטבחון והכניסה לסטודיו
עמדת ההמתנה בכניסה לסטודיו
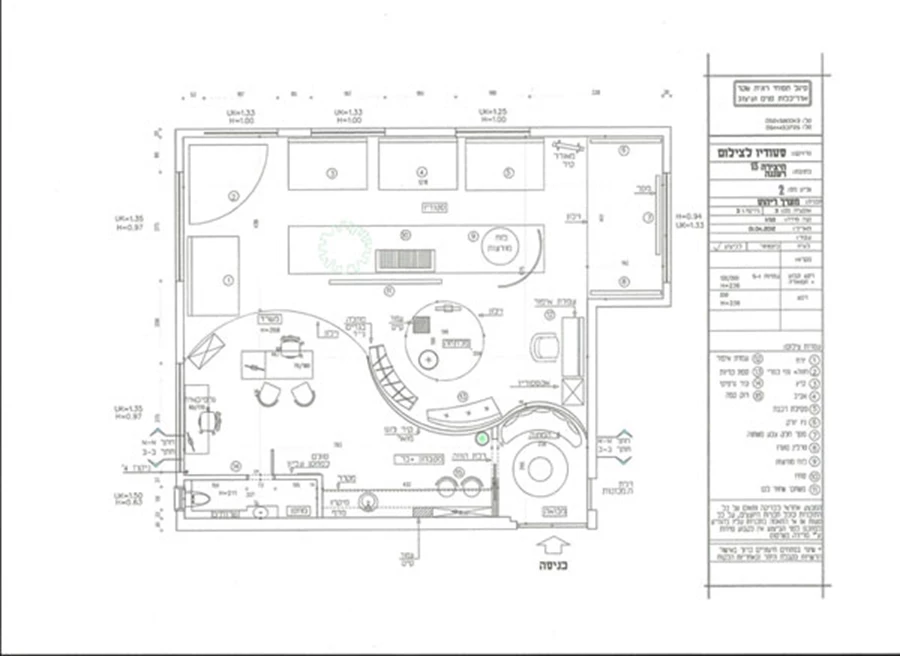
תוכנית 'אחרי' של הסטודיו

כתבות נוספות

Simply wood- ביד ברזל
עיצוב
Simply wood- ביד ברזל
האדריכל רון שפיגל משרטט מחדש את המושג "אדריכל שירות" - וחושף את הבית שהפך ליצירה ייחודית
אדריכלות
האדריכל רון שפיגל משרטט מחדש את המושג "אדריכל שירות" - וחושף את הבית שהפך ליצירה ייחודית
Colunata - בית לבן בגיאומטריה מורכבת
תכנון
Colunata - בית לבן בגיאומטריה מורכבת
תחרות בינלאומית לעיצוב סוכה
אדריכלות
תחרות בינלאומית לעיצוב סוכה
הספא הביתי עולה רמה: 3 טרנדים בעיצוב חדרי אמבטיה
חומרים
הספא הביתי עולה רמה: 3 טרנדים בעיצוב חדרי אמבטיה
לעצב מכל הלב- מעצבים למען הקהילה
אדריכלות
לעצב מכל הלב- מעצבים למען הקהילה
תכנון דירה מול ים
תכנון
תכנון דירה מול ים
חומרים חדשים - 113
תכנון
חומרים חדשים - 113
גני פרובנס
אדריכלות
גני פרובנס
הסבת רבי קומות לידידותיים לקהילה ולסביבה
תכנון
הסבת רבי קומות לידידותיים לקהילה ולסביבה
חומרים מפעילים חושים
תכנון
חומרים מפעילים חושים
מטבחי "מיילה" סוף סוף גם אצלנו
תכנון
מטבחי "מיילה" סוף סוף גם אצלנו
החשמל חכם, החשמלאי עוד יותר
עיצוב
החשמל חכם, החשמלאי עוד יותר
עיצוב דלתות
תכנון
עיצוב דלתות
החנות של ד"ר מאנזנה - עיצוב פנים ככלי לחיזוק מותג
אדריכלות
החנות של ד"ר מאנזנה - עיצוב פנים ככלי לחיזוק מותג
מפלט אירופאי בתל אביב: כך עוצבה דירתה של מעצבת הפנים ומשפחתה
אדריכלות
מפלט אירופאי בתל אביב: כך עוצבה דירתה של מעצבת הפנים ומשפחתה
שיפוץ קטן שינוי גדול
אדריכלות
שיפוץ קטן שינוי גדול
עיצוב פינות אוכל בגדלים שונים
אדריכלות
עיצוב פינות אוכל בגדלים שונים
שילוב בין עיצוב הבית ופתרונות הצללה
תכנון
שילוב בין עיצוב הבית ופתרונות הצללה
יש הרבה דגים בים...
עיצוב
יש הרבה דגים בים...
קלימט ופנטזיות אחרות
תכנון
קלימט ופנטזיות אחרות
סיפור של ניגודים
אדריכלות
סיפור של ניגודים
מי רוצה מפלצת בסלון ?
תכנון
מי רוצה מפלצת בסלון ?
עיצוב ותכנון דירה קטנה השוכנת בנוה שאנן, בחיפה
תכנון
עיצוב ותכנון דירה קטנה השוכנת בנוה שאנן, בחיפה
בחוץ כמו בבית - ריהוט גינה ואביזרים
אדריכלות
בחוץ כמו בבית - ריהוט גינה ואביזרים
העיצובים החדשניים של וול-סמארט לבתים חכמים ויפים יותר
אדריכלות
העיצובים החדשניים של וול-סמארט לבתים חכמים ויפים יותר
כל דירה  צריכה  מרפסת...
אדריכלות
כל דירה צריכה מרפסת...
המשקפיים של מירון לוי
עיצוב
המשקפיים של מירון לוי
חשיבות האיטום במהלך שיפוץ ועיצוב מחדש של בית
חומרים
חשיבות האיטום במהלך שיפוץ ועיצוב מחדש של בית
טיח, שליכט ומה שביניהם
עיצוב
טיח, שליכט ומה שביניהם
עיצוב גינות- עטיפה טבעית לבית
אדריכלות
עיצוב גינות- עטיפה טבעית לבית
סיבוב פרסה: חוזרים אל המדבר.
אדריכלות
סיבוב פרסה: חוזרים אל המדבר.
איזון עדין - תכנון מחדש של בית בשרון
אדריכלות
איזון עדין - תכנון מחדש של בית בשרון
אחדות הפכים - הילדה מרום, תערוכה
אדריכלות
אחדות הפכים - הילדה מרום, תערוכה
כחול זה גם הצבע שלכם
חומרים
כחול זה גם הצבע שלכם
חדשות וחידושים - 120
עיצוב
חדשות וחידושים - 120
כנות החומר, קסם הצבע
אדריכלות
כנות החומר, קסם הצבע
מעטפת מבטיחה וגם מקיימת
עיצוב
מעטפת מבטיחה וגם מקיימת
ורנר פנטון חוזר הביתה: מאה שנה ליצירה שעיצבה את העתיד
חומרים
ורנר פנטון חוזר הביתה: מאה שנה ליצירה שעיצבה את העתיד
איך לפתוח חלון בקיר הבית ולהישאר בחיים
חומרים
איך לפתוח חלון בקיר הבית ולהישאר בחיים
ארומה של פעם כאן ועכשיו
אדריכלות
ארומה של פעם כאן ועכשיו
טיקוזין יושיאוקה - זה בטבע שלו
תכנון
טיקוזין יושיאוקה - זה בטבע שלו
מים שקטים חודרים עמוק
אדריכלות
מים שקטים חודרים עמוק
מאבזרים את עולם המלונאות
עיצוב
מאבזרים את עולם המלונאות
עיצוב משרד עבור חברת מייקרוסופט ישראל
חומרים
עיצוב משרד עבור חברת מייקרוסופט ישראל
עיצוב ממקום אחר - 104
חומרים
עיצוב ממקום אחר - 104
מלאכת מחשבת
אדריכלות
מלאכת מחשבת
דלתות כיס: כניסה לעולם של תחכום אלגנטי
תכנון
דלתות כיס: כניסה לעולם של תחכום אלגנטי
בין ארצות-הברית לתל-אביב
תכנון
בין ארצות-הברית לתל-אביב
תכנון ועיצוב משרדי זאפ גרופ בפתח תקווה על ידי אדריכלית הפנים נעמי שחר
חומרים
תכנון ועיצוב משרדי זאפ גרופ בפתח תקווה על ידי אדריכלית הפנים נעמי שחר
האדריכל: צבי מוססקו
אדריכלות
האדריכל: צבי מוססקו
בית החלונות
אדריכלות
בית החלונות
עיצוב בית פרטי בקיסריה
אדריכלות
עיצוב בית פרטי בקיסריה
6 פעולות שכדאי לשקול בכל שיפוץ
תכנון
6 פעולות שכדאי לשקול בכל שיפוץ
לינזי קסלס- מרצה בכנס inno 2017
עיצוב
לינזי קסלס- מרצה בכנס inno 2017
"CASA HERRERO" בית ים תיכוני מודרני, לבן, חכם... "מבריק"
אדריכלות
"CASA HERRERO" בית ים תיכוני מודרני, לבן, חכם... "מבריק"
עיצוב מכולה למגורים
אדריכלות
עיצוב מכולה למגורים
תמי יערי: אמנות עיצוב הפנים
תכנון
תמי יערי: אמנות עיצוב הפנים
מה משותף לאופניים, בלונים ותלת רגל?
עיצוב
מה משותף לאופניים, בלונים ותלת רגל?
הצבע חזר ללחיי מילאנו - חלק ראשון
אדריכלות
הצבע חזר ללחיי מילאנו - חלק ראשון
מדידה ארגונית בתהליך עיצוב סביבת העבודה
חומרים
מדידה ארגונית בתהליך עיצוב סביבת העבודה
עיצוב תאורה - חוויה של אור וחלל
חומרים
עיצוב תאורה - חוויה של אור וחלל
הצצה למלון "קליק קלאק" בקולומביה
אדריכלות
הצצה למלון "קליק קלאק" בקולומביה
דבר אליי בבדים
עיצוב
דבר אליי בבדים
עיצוב חדר עם פריטי ריהוט חכמים
תכנון
עיצוב חדר עם פריטי ריהוט חכמים
אושרי גונן מעצבת את הנשימה: מרחבי WELLNESS כתגובה למציאות
חומרים
אושרי גונן מעצבת את הנשימה: מרחבי WELLNESS כתגובה למציאות
פרובנס זה כאן
תכנון
פרובנס זה כאן
תנו לשמש לחדור
אדריכלות
תנו לשמש לחדור
משרדי חברת "UBS"
חומרים
משרדי חברת "UBS"
עיצוב פנים בצבעים
תכנון
עיצוב פנים בצבעים
"כמו כפר יווני על מדרגות": מלון חדש במיקונוס יורד מהמצוקים אל הים
אדריכלות
"כמו כפר יווני על מדרגות": מלון חדש במיקונוס יורד מהמצוקים אל הים
שיפוץ כמסע ריפוי משותף
תכנון
שיפוץ כמסע ריפוי משותף
איזון הרמוני - בית פרטי בשרון
אדריכלות
איזון הרמוני - בית פרטי בשרון
הרמוניה בתנועה, הצעה לעיצוב הרכבת הקלה של מטרופולין תל אביב. מתי חרותי
אדריכלות
הרמוניה בתנועה, הצעה לעיצוב הרכבת הקלה של מטרופולין תל אביב. מתי חרותי
פתרון אורבני של צמחיה לגובה
תכנון
פתרון אורבני של צמחיה לגובה
מדריך מטבחים 2012
תכנון
מדריך מטבחים 2012
כיכר ציון תל אביב
חומרים
כיכר ציון תל אביב
כך תשרו לביתכם אווירה כפרית רגועה –  המדריך השלם לעיצוב פנים כפרי
אדריכלות
כך תשרו לביתכם אווירה כפרית רגועה – המדריך השלם לעיצוב פנים כפרי
האצטדיונים של ישראל עוברים ליגה: בין תקן UEFA לחזון הדור הבא
אדריכלות
האצטדיונים של ישראל עוברים ליגה: בין תקן UEFA לחזון הדור הבא
כיצד נבחר את הכיור הנכון?
עיצוב
כיצד נבחר את הכיור הנכון?
בסוף רמת גן יש מקום מיוחד, שם אפשר לעמוד ולראות שני מגדלים מדברים זה עם זה
אדריכלות
בסוף רמת גן יש מקום מיוחד, שם אפשר לעמוד ולראות שני מגדלים מדברים זה עם זה
פסיפס ללא הפסקה
אדריכלות
פסיפס ללא הפסקה
שילובים מעניינים של חומרים בעולם העיצוב
חומרים
שילובים מעניינים של חומרים בעולם העיצוב
מתחם הממגורות - חנות קונספט קנה קש
חומרים
מתחם הממגורות - חנות קונספט קנה קש
על תעוזה וסקרנות
חומרים
על תעוזה וסקרנות
לגור במחסן
אדריכלות
לגור במחסן
הטבע: החמצן והמקור להצלחת הפרוייקט
אדריכלות
הטבע: החמצן והמקור להצלחת הפרוייקט
מפלט ביער
אדריכלות
מפלט ביער
בית שמקרב לבבות: איך התכנון האדריכלי מחזק את הביחד המשפחתי?
אדריכלות
בית שמקרב לבבות: איך התכנון האדריכלי מחזק את הביחד המשפחתי?
הבית שהעז להיות מיוחד
אדריכלות
הבית שהעז להיות מיוחד
סגנון חופשי
חומרים
סגנון חופשי
הבית שחושף את קסמו בהדרגה
אדריכלות
הבית שחושף את קסמו בהדרגה
עיצוב מול אלגוריתם
אדריכלות
עיצוב מול אלגוריתם
מבעד לזכוכית השקופה
חומרים
מבעד לזכוכית השקופה
מדורת השבט
תכנון
מדורת השבט
מה ה- MOLET שלך?
אדריכלות
מה ה- MOLET שלך?
עיצוב הבית בתקציב מהודק
אדריכלות
עיצוב הבית בתקציב מהודק
מה למדתי מתערוכת "Salone del mobile"?
אדריכלות
מה למדתי מתערוכת "Salone del mobile"?
החיפויים האלה בונים חזית עיצובית
חומרים
החיפויים האלה בונים חזית עיצובית
עיצוב בית פרטי, מינימליזם לבן
אדריכלות
עיצוב בית פרטי, מינימליזם לבן