קבלת פנים ספרותית
אדריכלות

קבלת פנים ספרותית

האדריכל ארז אליאסין אימץ את האהבה לספרים של בעלי הבית כנקודת מוצא לתכנון שרקם עבורם. כך, כשם שהם מהווים ערך חשוב ביותר בעולם התוכן שלהם, כך גם הספרייה המכילה אותם היא האלמנט המחולל את זרימת המרחב ותנועת החלל בביתם

מבט אל הבית: תצורת תיבה מלבנית שבתוכה משתלבות נסיגות, כשהמתאר ה"תיבתי" מושלם באמצעות קורות ועמודים. ניתוקים אופקיים על פני שטחה של המעטפת מרככים תחושת מסה ושקיפות החזית הקדמית חושפת את הספרייה כמבואה פנימית. פתחים: "לומינר" בע"מ.

מבט אל הבית: תצורת תיבה מלבנית שבתוכה משתלבות נסיגות, כשהמתאר ה

מבט אל הבית: תצורת תיבה מלבנית שבתוכה משתלבות נסיגות, כשהמתאר ה"תיבתי" מושלם באמצעות קורות ועמודים. ניתוקים אופקיים על פני שטחה של המעטפת מרככים תחושת מסה ושקיפות החזית הקדמית חושפת את הספרייה כמבואה פנימית. פתחים: "לומינר" בע"מ.

על הבית השוכן בגבעת האירוס, ישוב קהילתי חדש סמוך לנס ציונה, ניתן לומר כי הוא נולד מאהבה לספרים- "אהבה לספרים שהפכה לארכיטקטורה” כפי שמגדיר זאת האדריכל המתכנן ארז אליאסין. "המקום שתופסים ספרים בחיי הדיירים, הכמות העצומה שלהם שמצויה ברשותם, והנוכחות המכובדת שביקשו להעניק להם בביתם, היו הסעיפים המשמעותיים ביותר שהועלו בפרוגראמה” מוסיף אליאסין שאימץ את הדברים כנקודת מוצא לתכנון שרקם ומזמן הפתעה של ממש: ספרייה מרשימה נחשפת לעין הבאים כבר מחוץ לבית, מקבלת את פני הנכנסים לחצרו כסוג של תעודת זהות המכריזה על עולם התוכן של הדיירים.

הכניסה לבית: כתהליך שכבות מדורג המתחיל בשער החצר, עולה מספר מדרגות, מגיע למבואה חיצונית מוגדרת, חולף על פני חלקה מגוננת ומגיע אל חזית שקופה מזמינה שדרכה נגלים הספרייה וגשר הגלריה של הקומה העליונה.

הכניסה לבית: כתהליך שכבות מדורג המתחיל בשער החצר, עולה מספר מדרגות, מגיע למבואה חיצונית מוגדרת, חולף על פני חלקה מגוננת ומגיע אל חזית שקופה מזמינה שדרכה נגלים הספרייה וגשר הגלריה של הקומה העליונה.

הכניסה לבית: כתהליך שכבות מדורג המתחיל בשער החצר, עולה מספר מדרגות, מגיע למבואה חיצונית מוגדרת, חולף על פני חלקה מגוננת ומגיע אל חזית שקופה מזמינה שדרכה נגלים הספרייה וגשר הגלריה של הקומה העליונה.

הכניסה לבית: כתהליך שכבות מדורג המתחיל בשער החצר, עולה מספר מדרגות, מגיע למבואה חיצונית מוגדרת, חולף על פני חלקה מגוננת ומגיע אל חזית שקופה מזמינה שדרכה נגלים הספרייה וגשר הגלריה של הקומה העליונה.

המגרש עליו נבנה הבית הדו קומתי משתרע על שטח של 500 מ”ר מוגבה מעט ממפלס הרחוב, ומעטפת המבנה תוכננה כתיבה מלבנית בה משתלבות נסיגות, כאשר קורות ועמודים שכמו משלימים את המתאר ה”תיבתי” הופכים את החללים שבקדמתם לאזורי ביניים ואף מספקים להם הצללה נדרשת. כך, במיקומו הגבוה עם העמודים המתנשאים בחזיתות הפונות לרחוב, נדמה הבית כבעל מידות, אך לדברי אליאסין "הבית אינו גדול כפי שהוא נראה. נפחים של חוץ ופנים המשולבים אחד בשני בתוך מסגרת מלבנית הם שיוצרים אשליה של גודל”.

מבט מעומק הסלון: אלמנט הספרייה מהווה הפרדה בין המבואה לבין המטבח המוצנע מאחוריו. תכנונו במנותק מהתקרה וגובה כפול שנשמר באזור המבואה מייצרים תחושת פתיחות וזרימה בין האזורים.

מבט מעומק הסלון: אלמנט הספרייה מהווה הפרדה בין המבואה לבין המטבח המוצנע מאחוריו. תכנונו במנותק מהתקרה וגובה כפול שנשמר באזור המבואה מייצרים תחושת פתיחות וזרימה בין האזורים.

המבואה הפנימית: מוגדרת באמצעות אלמנט הספרייה המחולל את התנועה בבית. זורמת כציר אורכי ומושכת את המבט לכיוון הסלון. חיפוי לבני סיליקט המשתלב לצד המדפים: תוצר של עומק היחידה שגויס לטובת שילוב המקרר במטבח הממוקם מאחוריה. נגרות ספרייה:

המבואה הפנימית: מוגדרת באמצעות אלמנט הספרייה המחולל את התנועה בבית. זורמת כציר אורכי ומושכת את המבט לכיוון הסלון. חיפוי לבני סיליקט המשתלב לצד המדפים: תוצר של עומק היחידה שגויס לטובת שילוב המקרר במטבח הממוקם מאחוריה. נגרות ספרייה: "פרפקט אייר את בר".

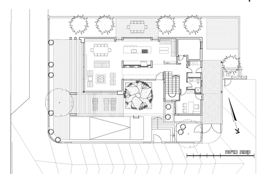
תהליך הכניסה לבית מדורג ומתרחש כעין "שכבות”: מתחיל בשער הכניסה לחצר, עובר דרך מספר מדרגות המוליכות מעלה למבואה חיצונית מוגדרת באמצעות קורה עליונה, חולף לצד חלקה מגוננת המשתרעת לצד חזית קדמית שקופה, דרכה נחשפת הספרייה המזמינה פנימה. דלת הבית מתגלה כאחד הקטעים השקופים המייצרים את החזית, אך בניגוד למצופה הכניסה לחלל הפנים אינה ממשיכה את ממדי השקיפות והחשיפה- קיר הספרייה מתברר כאלמנט מרכזי שמחולל את הסירקולציה בחלל, מגדיר מבואה פנימית וזרימת מרחב הנחלקת לאזורים ברורים ומובחנים: עברו האחד מוביל אל אזור הכולל סלון ופינת האוכל; מעברו השני ישנה גישה לאזור חדרים ולגרם מדרגות המוביל לקומה העליונה; ומאחוריו ממוקם המטבח. עם זאת, תכנונו במנותק מהתקרה וגובהו של אזור המבואה המתנשא עד רום תקרת הבית, משמרים תחושת מרחב ופתיחות שהינה אחד ממרכיבי הקוד המלווה את החלל כולו- פתיחות ואינטימיות המתקיימות בו בעת ובעונה אחת. אליאסין:” פתיחת כל החללים הניתנים לפתיחה ליצירת מרחב אחד גדול, ושילוב הפרדות פונקציונאליות ביניהם, היא שמעצימה את התחושה המשולבת”.

חלל הסלון ופינת האוכל: עיצוב מוקפד המשלבי פריטי ריהוט מסוגננים בקווים עכשוויים, וויטרינות גדולות המשמרות קשר ישיר עם החוץ. תקרה צפה מנוצלת להשקעת תאורה סמויה בהיקף החלל, וגופים נוספים משובצים על פני שטחה. על שולחן האוכל פסלים עשויים חוטי ברזל של האמן ניהד דביט פריטי ריהוט:

חלל הסלון ופינת האוכל: עיצוב מוקפד המשלבי פריטי ריהוט מסוגננים בקווים עכשוויים, וויטרינות גדולות המשמרות קשר ישיר עם החוץ. תקרה צפה מנוצלת להשקעת תאורה סמויה בהיקף החלל, וגופים נוספים משובצים על פני שטחה. על שולחן האוכל פסלים עשויים חוטי ברזל של האמן ניהד דביט פריטי ריהוט: "ריהוטים" ראשל"צ, תאורה: DMI לייטינג בע"מ.

מבט מעומק הסלון: אלמנט הספרייה מהווה הפרדה בין המבואה לבין המטבח המוצנע מאחוריו. תכנונו במנותק מהתקרה וגובה כפול שנשמר באזור המבואה מייצרים תחושת פתיחות וזרימה בין האזורים.

מבט מעומק הסלון: אלמנט הספרייה מהווה הפרדה בין המבואה לבין המטבח המוצנע מאחוריו. תכנונו במנותק מהתקרה וגובה כפול שנשמר באזור המבואה מייצרים תחושת פתיחות וזרימה בין האזורים.

מכיוון שמדובר במגרש לא גדול במיוחד אחת השאלות שהפנה אליאסין לדיירים בעת גיבוש התכנון התייחסה להעדפתם מבחינת יחסי בית וגינה- בית גדול או גינה גדולה, ותשובתם הגדירה העדפה לבית גדול שישרת אותם בנוחות כמשפחה עם שלושה ילדים. ובכ”ז, היות ו”בבית צמוד קרקע כמו בבית צמוד קרקע” אחת ההנאות המשמעותיות טמונה בקשר המידי עם החוץ, הקפיד אליאסין לנצל את "מעט שטח הגן” וליצור לכל אזור מאזורי קומת הכניסה גישה ישירה אליו, למרחב התואם את מהותו. כך, לדוגמה, מהמטבח ישנה יציאה אל פינת אוכל אינטימית המשמשת את בני הבית בחיי יומיום, מחזיתו הקדמית של הסלון ישנה יציאה לרחבה מרוצפת המיועדת לאירוח, חזית נוספת שלו "יוצאת” אל אזור הבריכה, ומאזור החדרים של הקומה- )ממ”ד, חדר כביסה, שירותי אורחים+מקלחת, וחדר עבודה שנכון לעכשיו משמש כחדר משחקים(- ישנה גישה אל אזור שיועד לשמש את הילדים למשחק. בתוך כך, נרקמת מסגרת החלל כשילוב מאוזן בין שקיפות וקירות, הבא לידי ביטוי במרחב מגורים נוח ונעים למחייה- פתוח דיו בקשריו החוץ, ואינטימי דיו בתחושת הביתיות שהוא מעניק. אליאסין: "העובדה שמדובר במגרש מוגבה ממפלס הרחוב, הייתה בבחינת יתרון שאפשר ליצור פתיחות ללא חשש של היחשפות לרחוב אליו פונה הבית”.

המטבח המאופיין בעיצוב נקי בגון לבן. יחידת קיר מכילה בתוכה מכשירי חשמל, ובמרכז ניצבת יחידת אי בה משתלבות יתר הפונקציות המטבחיות והיא משמשת גם כדלפק אכילה. חזיתות בגימור צבע בתנור ללא ידיות, לשמירת חזות אחידה ונקייה. מטבח:

המטבח המאופיין בעיצוב נקי בגון לבן. יחידת קיר מכילה בתוכה מכשירי חשמל, ובמרכז ניצבת יחידת אי בה משתלבות יתר הפונקציות המטבחיות והיא משמשת גם כדלפק אכילה. חזיתות בגימור צבע בתנור ללא ידיות, לשמירת חזות אחידה ונקייה. מטבח: " enicuC ateneV" מכשירי חשמל: "תותחני".

חלל הסלון ופינת האוכל: עיצוב מוקפד המשלבי פריטי ריהוט מסוגננים בקווים עכשוויים, וויטרינות גדולות המשמרות קשר ישיר עם החוץ. תקרה צפה מנוצלת להשקעת תאורה סמויה בהיקף החלל, וגופים נוספים משובצים על פני שטחה. על שולחן האוכל פסלים עשויים חוטי ברזל של האמן ניהד דביט פריטי ריהוט:

חלל הסלון ופינת האוכל: עיצוב מוקפד המשלבי פריטי ריהוט מסוגננים בקווים עכשוויים, וויטרינות גדולות המשמרות קשר ישיר עם החוץ. תקרה צפה מנוצלת להשקעת תאורה סמויה בהיקף החלל, וגופים נוספים משובצים על פני שטחה. על שולחן האוכל פסלים עשויים חוטי ברזל של האמן ניהד דביט פריטי ריהוט: "ריהוטים" ראשל"צ, תאורה: DMI לייטינג בע"מ.

קירות החלל נצבעו בלבן, לריצוף קומת הכניסה נבחרו אריחי גרניט פורצלן גדולים )80X80( בגון אבן, והפתחים הרבים, שתוכננו בקפידה להשגת נוחות אקלימית, הותקנו במסגרות אלומיניום אנודייזד כסוף כשעמם משתלבים תריסים חיצוניים בגון תואם. תקרת החללים הציבוריים גבוהה למדי- 3.80 מ’ "על מנת ליצור תחושה של נפח ומרחב גדולים מאלה הקיימים בפועל” כפי שמסביר אליאסין, ואופן תכנונה כתקרה צפה מנצל את מרווח ניתוקה מהקיר להצנעת גופי תאורה סמויים תוך יצירת רצועת אור היקפית, במקביל לגופים שקועים ששובצו בפני שטחה.

מבט מעומק המטבח אל פינת המשפחה הממוקמת בהמשכו.

מבט מעומק המטבח אל פינת המשפחה הממוקמת בהמשכו. "שדרה" רחבה בין יחידת הקיר ויחידת האי מעניקה נוחות למשתמשים ונגישות נוחה לפינת המשפחה. שדרה נוספת זורמת מצדה השני של היחידה, ומקשרת את אזור המטבח עם רחבת הדק שמחוצה לו. גרם המדרגות: שילוב של מדרכי עץ אלון ומעקה ברזל צבוע לבן בעיצוב נקי. מדרגות: TD עיצובים בעץ.

המטבח המאופיין בעיצוב נקי בגון לבן. יחידת קיר מכילה בתוכה מכשירי חשמל, ובמרכז ניצבת יחידת אי בה משתלבות יתר הפונקציות המטבחיות והיא משמשת גם כדלפק אכילה. חזיתות בגימור צבע בתנור ללא ידיות, לשמירת חזות אחידה ונקייה. מטבח:

המטבח המאופיין בעיצוב נקי בגון לבן. יחידת קיר מכילה בתוכה מכשירי חשמל, ובמרכז ניצבת יחידת אי בה משתלבות יתר הפונקציות המטבחיות והיא משמשת גם כדלפק אכילה. חזיתות בגימור צבע בתנור ללא ידיות, לשמירת חזות אחידה ונקייה. מטבח: " enicuC ateneV" מכשירי חשמל: "תותחני".

קיר הספרייה על מדפיו הארוכים מייצר ממד אופקי נעים לעין המושך את העין לכיוון אזור הסלון מלווה בצבעוניות שמעניקות עטיפות הספרים. לצד המדפים משתלבת גם גומחה בה ניצב פסל עץ וכן חלקת קיר מחופה בלבני סיליקט אפורות. אליאסין: ”היות ומאחורי הקיר ממוקם המטבח, "גויס” העומק שתוכנן למדפים לטובת שילוב המקרר בצדו השני, וחיפוי הלבנים בנקודה זו היה פתרון אסתטי התורם עניין ויזואלי נוסף ואף מהדהד חיפוי זהה ששולב בחדר המשפחה הממוקם בהמשך המטבח”.

המבואה הפנימית: מוגדרת באמצעות אלמנט הספרייה המחולל את התנועה בבית. זורמת כציר אורכי ומושכת את המבט לכיוון הסלון. חיפוי לבני סיליקט המשתלב לצד המדפים: תוצר של עומק היחידה שגויס לטובת שילוב המקרר במטבח הממוקם מאחוריה. נגרות ספרייה:

המבואה הפנימית: מוגדרת באמצעות אלמנט הספרייה המחולל את התנועה בבית. זורמת כציר אורכי ומושכת את המבט לכיוון הסלון. חיפוי לבני סיליקט המשתלב לצד המדפים: תוצר של עומק היחידה שגויס לטובת שילוב המקרר במטבח הממוקם מאחוריה. נגרות ספרייה: "פרפקט אייר את בר".

חללי הסלון ופינת האוכל הממוקמים בהמשך למבואת הספרייה, בכיוון הנוף, מאופיינים בקפידה מסוגננת: פריטי ריהוט נדיבי מידות בקווי עיצוב עכשוויים וצבעוניות מאופקת, ועבודות אמנות אנינות הפזורות סביב, דוגמת פסלים מעודנים עשויים חוטי ברזל שיוצר האמן ניהד דביט.

קומה העליונה: ריצוף פרקט וציר תחום בשקיפות החזית הקדמית שלאורכו ממוקמים החדרים. מרווח פתוח שנשמר בינו לבין החזית השקופה ומאפשר קיום קשר עין עם קומת הכניסה מעצים תחושת זרימה ופתיחות.

קומה העליונה: ריצוף פרקט וציר תחום בשקיפות החזית הקדמית שלאורכו ממוקמים החדרים. מרווח פתוח שנשמר בינו לבין החזית השקופה ומאפשר קיום קשר עין עם קומת הכניסה מעצים תחושת זרימה ופתיחות.

מבט מעומק המטבח אל פינת המשפחה הממוקמת בהמשכו.

מבט מעומק המטבח אל פינת המשפחה הממוקמת בהמשכו. "שדרה" רחבה בין יחידת הקיר ויחידת האי מעניקה נוחות למשתמשים ונגישות נוחה לפינת המשפחה. שדרה נוספת זורמת מצדה השני של היחידה, ומקשרת את אזור המטבח עם רחבת הדק שמחוצה לו. גרם המדרגות: שילוב של מדרכי עץ אלון ומעקה ברזל צבוע לבן בעיצוב נקי. מדרגות: TD עיצובים בעץ.

אל המטבח השוכן מאחורי הספרייה ניתן להגיע מפינת האוכל, כמו גם מעברה הסמוך לדלת הכניסה ללא צורך לחצות את חללי האירוח, והוא עוצב בקו נקי בגון לבן עם חזיתות בגימור צבע בתנור וידיות אינטגראליות המשמרות חזות אחידה ושקטה. צדו השני של אלמנט הספרייה הופך בשטחו ליחידת קיר בה משתלבים בנוחות מכשירי חשמל וחללי אחסון רבים, ובמרכזו ניצבת יחידת אי גדולה וארוכה המכילה את יתר הפונקציות ה”מטבחיות”: במשטחה העליון משתלבים כיור וכיריים, בהיקפה חללי אחסון נוספים, ואחד מקצותיה משמש כדלפק אכילה. במיקומה במרכז החלל, היישר מול פתח היציאה לפינת האוכל החיצונית, היא מסמנת בשטח המטבח שתי "שדרות” רחבות למדי המעניקות נוחות עבודה למשתמשים, ומייצרות מעברים נגישים- הן לפינת האוכל שבאזור הסלון, הן לרחבת הדק שבחוץ, והן לפינת משפחה/טלוויזיה הממוקמת מעברו השני. פינה נינוחה זו היא לב ההתרחשות הביתית, מוקד הפעילות של חיי היומיום ואזור אינטימי לשהייה ביחד, כאשר קרבתה למטבח ולפתח יציאה לגינה מספקת נוחות רבה, ומותירה את אזור האירוח כ”חלל לבן”.

קומה העליונה: ריצוף פרקט וציר תחום בשקיפות החזית הקדמית שלאורכו ממוקמים החדרים. מרווח פתוח שנשמר בינו לבין החזית השקופה ומאפשר קיום קשר עין עם קומת הכניסה מעצים תחושת זרימה ופתיחות.

קומה העליונה: ריצוף פרקט וציר תחום בשקיפות החזית הקדמית שלאורכו ממוקמים החדרים. מרווח פתוח שנשמר בינו לבין החזית השקופה ומאפשר קיום קשר עין עם קומת הכניסה מעצים תחושת זרימה ופתיחות.

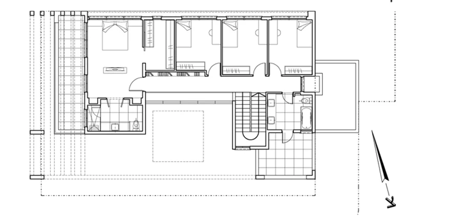
האזור בצדה השני של המבואה נפרש כחלל פתוח שהחדרים ממוקמים בהיקפו, והוא תוכנן כך שבמידת הרצון/צורך ניתן יהיה לאחד אותם בעתיד לכדי יחידת הורים מרווחת. אליאסין "לצד מענה לצרכים עכשוויים, אני מאמין שהתכנון צריך לשמר ממד דינאמי, גמישות ומבט לעתיד, שכן הצרכים משתנים מהר מאד, מהר מכפי שאנו מעריכים בנקודת זמן נתונה”. גרם מדרגות המשלב מדרכים בחיפוי עץ אלון ומעקה ברזל צבוע לבן, מוביל אל הקומה העליונה הזורמת כציר שצדו האחד תחום בשקיפות הויטרינות של החזית הקדמית. לאורכו של הציר ממוקמים שלושה חדרי ילדים, חדר רחצה שהם חולקים ויחידת הורים רחבת ידיים, וגומחה בקיר המלווה אותו מלמדת שבשטחו עתיד להשתלב גם "פרק ב”’ של הספרייה.

החזית הפונה לרחוב

החזית הפונה לרחוב

קומה העליונה: ריצוף פרקט וציר תחום בשקיפות החזית הקדמית שלאורכו ממוקמים החדרים. מרווח פתוח שנשמר בינו לבין החזית השקופה ומאפשר קיום קשר עין עם קומת הכניסה מעצים תחושת זרימה ופתיחות.

קומה העליונה: ריצוף פרקט וציר תחום בשקיפות החזית הקדמית שלאורכו ממוקמים החדרים. מרווח פתוח שנשמר בינו לבין החזית השקופה ומאפשר קיום קשר עין עם קומת הכניסה מעצים תחושת זרימה ופתיחות.

חללי הקומה רוצפו בפרקט הנוסך חמימות, ובחזותם ניכר דגש לפונקציונאליות ונוחות. כך, למשל, בחדרי הילדים תוכננו פתחי החלונות בנסיגה מקו המעטפת, תוך יצירת אדנים רחבים ועומק שנוצל לשילוב מגירות ו”מרווח” את שטחם מיטבית ללא צורך בשילוב יחידות אחסון נוספות. יחידת ההורים המרווחת כוללת בשטחה חדר ארונות, אזור רחצה מפנק המופרד מחלל החדר באמצעות צמד דלתות כנפיים עשויות זכוכית, ומרפסת חזיתית ממנה ניתן להשקיף לכיוון מערב ולנוף הים באופק.

קומת כניסה

קומת כניסה

קומה העליונה: ריצוף פרקט וציר תחום בשקיפות החזית הקדמית שלאורכו ממוקמים החדרים. מרווח פתוח שנשמר בינו לבין החזית השקופה ומאפשר קיום קשר עין עם קומת הכניסה מעצים תחושת זרימה ופתיחות.

קומה העליונה: ריצוף פרקט וציר תחום בשקיפות החזית הקדמית שלאורכו ממוקמים החדרים. מרווח פתוח שנשמר בינו לבין החזית השקופה ומאפשר קיום קשר עין עם קומת הכניסה מעצים תחושת זרימה ופתיחות.

למרות מיעוט יחסי של שטח גן, מרחב החוץ הסובב את הבית אינו "מרגיש” ככזה. בתכנון שיצר אזורים ייעודיים מייצר אופיים המשתנה תחושה דינאמית, ודבר אינו חסר לשהייה מפנקת בחוץ, ובכלל זה בריכת שחייה שמיקומה לכיוון דרום לצד המבואה החיצונית נעשה במכוון לחימום המים לקראת הקיץ. כך, כשכל פונקציה פנימית או חיצונית נהנית מ”ספייס” מוגדר שלה וביחד הן חוברות לכדי מארג הרמוני, נראה כי כוחה של אהבת ספרים להיתרגם לארכיטקטורה הוכיח גם הוכיח את עצמו.

קומה עליונה

קומה עליונה

החזית הפונה לרחוב

החזית הפונה לרחוב

קומת כניסה

קומת כניסה

קומה עליונה

קומה עליונה


כתבות נוספות

השביעייה הסודית
אדריכלות
השביעייה הסודית
טיפים עיצוביים חשובים בעת תכנון מעטפת הבית שלכם
עיצוב
טיפים עיצוביים חשובים בעת תכנון מעטפת הבית שלכם
עיצוב הוא עיצוב הוא עיצוב
תכנון
עיצוב הוא עיצוב הוא עיצוב
יצירת מציאות אחרת – פזית חזיז
אדריכלות
יצירת מציאות אחרת – פזית חזיז
הבית שמבקש שקט: למה כולנו נמשכים עכשיו לעיצוב יפני
עיצוב בתים פרטיים ודירות
הבית שמבקש שקט: למה כולנו נמשכים עכשיו לעיצוב יפני
בסוף זה עולם של אדריכלות, עיצוב ושיווק, ונשים יודעות לעשות את זה נכון
אדריכלות
בסוף זה עולם של אדריכלות, עיצוב ושיווק, ונשים יודעות לעשות את זה נכון
תיבת האוצרות
תכנון
תיבת האוצרות
סגנונות עיצוב מטבחים
תכנון
סגנונות עיצוב מטבחים
שילובים מעניינים של חומרים בעולם העיצוב
חדשנות וטכנולוגיה
שילובים מעניינים של חומרים בעולם העיצוב
הפנטהאוז מדהים, וחדר הרחצה וואו
תכנון
הפנטהאוז מדהים, וחדר הרחצה וואו
בית מלון משכנות רות דניאל, הצעה לעיצוב חדרים בבתי מלון: יוליה חנדז'י- Studio Jules, מיכל לייטנר
עיצוב
בית מלון משכנות רות דניאל, הצעה לעיצוב חדרים בבתי מלון: יוליה חנדז'י- Studio Jules, מיכל לייטנר
עיצוב בשעם
עיצוב
עיצוב בשעם
לשבור את תקרת האבן
תכנון
לשבור את תקרת האבן
תתארגנו על עצמכם
תכנון
תתארגנו על עצמכם
יפה בשחור
אדריכלות
יפה בשחור
תכנון ועיצוב מרכז אימון לכדורגל
חדשנות וטכנולוגיה
תכנון ועיצוב מרכז אימון לכדורגל
לגור בעיר ולהרגיש בכפר
אדריכלות
לגור בעיר ולהרגיש בכפר
להחיות את פנים הבית שלך: 6 סיבות מדוע שטיחים חיוניים בעיצוב
תכנון
להחיות את פנים הבית שלך: 6 סיבות מדוע שטיחים חיוניים בעיצוב
על ה-EARTHWOOL  של אורבונד כבר שמעתם?
תכנון
על ה-EARTHWOOL של אורבונד כבר שמעתם?
תערוכת הרהיטים במילאנו 2011
אדריכלות
תערוכת הרהיטים במילאנו 2011
מלאכות היד המסורתיות
עיצוב
מלאכות היד המסורתיות
משפחה בונה ירוק
תכנון
משפחה בונה ירוק
סימן שבא אביב
תכנון
סימן שבא אביב
עיצוב מסעדת אוגסטין
חדשנות וטכנולוגיה
עיצוב מסעדת אוגסטין
מה יוצא מכביסה וכיסא? כביסא!
עיצוב
מה יוצא מכביסה וכיסא? כביסא!
יחסי חוץ ופנים בתכנון בית פרטי
אדריכלות
יחסי חוץ ופנים בתכנון בית פרטי
המעבדה של המעטפת האמורפית / מעטפת שיוצרת בקרת אקלים משתנה
עיצוב
המעבדה של המעטפת האמורפית / מעטפת שיוצרת בקרת אקלים משתנה
המלון החדש של זאהה חדיד ב"עיר החלומות"
אדריכלות
המלון החדש של זאהה חדיד ב"עיר החלומות"
עיצוב בית פרטי- בביתה במדבר
תכנון
עיצוב בית פרטי- בביתה במדבר
משרד שהוא בית, לבתים
חדשנות וטכנולוגיה
משרד שהוא בית, לבתים
אדר' ג'וליאנו פיירונה בעליו של סטודיו CP_A מרצה אורח בכנס בנייה ירוקה 3
חדשנות וטכנולוגיה
אדר' ג'וליאנו פיירונה בעליו של סטודיו CP_A מרצה אורח בכנס בנייה ירוקה 3
הכי רחוק מהסטנדרט
תכנון
הכי רחוק מהסטנדרט
על לוח לבנו: המדיניות האקולוגית של EGGER
עיצוב
על לוח לבנו: המדיניות האקולוגית של EGGER
פסיפס ללא הפסקה
אדריכלות
פסיפס ללא הפסקה
משפחה כקהילה
אדריכלות
משפחה כקהילה
חומרים חדשים - 122
תכנון
חומרים חדשים - 122
הטרנד הוא אני
חדשנות וטכנולוגיה
הטרנד הוא אני
טעימות מעוצבות
אדריכלות
טעימות מעוצבות
מוצרי יוקרה לכל אחד
תכנון
מוצרי יוקרה לכל אחד
חינוך גרסה 2.000
חדשנות וטכנולוגיה
חינוך גרסה 2.000
יוצאים מהארון
תכנון
יוצאים מהארון
אבן קיסר: יתרונות, חסרונות והאם כדאי?
תכנון
אבן קיסר: יתרונות, חסרונות והאם כדאי?
עיצוב בשחור לבן
תכנון
עיצוב בשחור לבן
אירופאי שיק!
אדריכלות
אירופאי שיק!
האקשן של תל אביב פוגש שדות ירוקים
חדשנות וטכנולוגיה
האקשן של תל אביב פוגש שדות ירוקים
Hotel Design 2
תכנון
Hotel Design 2
תנורים, כיריים, עיצוב, טכנולוגיה מגמות וחידושים
תכנון
תנורים, כיריים, עיצוב, טכנולוגיה מגמות וחידושים
אג'נדה אדריכלית
עיצוב
אג'נדה אדריכלית
עיצוב ספריות - מפגשים מהסוג הספרותי
חדשנות וטכנולוגיה
עיצוב ספריות - מפגשים מהסוג הספרותי
כשהמוזיקה היא הנשמה של המשפחה
אדריכלות
כשהמוזיקה היא הנשמה של המשפחה
מדוע ביטוח דירה הוא מוצר חובה לכל בעל בית
תכנון
מדוע ביטוח דירה הוא מוצר חובה לכל בעל בית
מניתוח פלסטי ועד לבניין בהדפסת תלת-מימד
חדשנות וטכנולוגיה
מניתוח פלסטי ועד לבניין בהדפסת תלת-מימד
ירושלים, אין דומה לה: בפנטהאוז שכולנו רוצים לגור
אדריכלות
ירושלים, אין דומה לה: בפנטהאוז שכולנו רוצים לגור
עיצוב תאורה - חוויה של אור וחלל
חדשנות וטכנולוגיה
עיצוב תאורה - חוויה של אור וחלל
חמימות, ניקיון והרמוניה: דירת חמישה חדרים בבאר יעקב
אדריכלות
חמימות, ניקיון והרמוניה: דירת חמישה חדרים בבאר יעקב
משהו על נישות
תכנון
משהו על נישות
להתחיל מבראשית
תכנון
להתחיל מבראשית
השילוב המושלם בין אסתטיקה לבין פרקטיקה
אדריכלות
השילוב המושלם בין אסתטיקה לבין פרקטיקה
עיצוב ותכנון דירת גג
אדריכלות
עיצוב ותכנון דירת גג
חמים ונעים  - וילונות ושטיחים
עיצוב
חמים ונעים - וילונות ושטיחים
כך נולד “הבית הלבן”: בית משפחתי אלגנטי ומדויק בלב השרון
עיצוב חללי הבית
כך נולד “הבית הלבן”: בית משפחתי אלגנטי ומדויק בלב השרון
מרפסת מול מרפסת
תכנון
מרפסת מול מרפסת
הום סטיילינג כפנים שונות של שיפוץ בתים
תכנון
הום סטיילינג כפנים שונות של שיפוץ בתים
עיצוב חללים של בית מלון על ידי הבינה המלאכותית בהשראת האדריכלית זהה חדיד
אדריכלות
עיצוב חללים של בית מלון על ידי הבינה המלאכותית בהשראת האדריכלית זהה חדיד
קלאסית, נעימה ועל זמנית: דירה במראה שובבי לזוג צעיר בצפון של תל אביב
עיצוב
קלאסית, נעימה ועל זמנית: דירה במראה שובבי לזוג צעיר בצפון של תל אביב
מפגשים מהסוג האותנטי
חדשנות וטכנולוגיה
מפגשים מהסוג האותנטי
5 דרכים לעיצוב חדר שינה רומנטי ומפנק
עיצוב
5 דרכים לעיצוב חדר שינה רומנטי ומפנק
לחודש בלבד
עיצוב
לחודש בלבד
ברזים מעוצבים מרחבי העולם
אדריכלות
ברזים מעוצבים מרחבי העולם
דרושה: תעוזה בעיצוב דיגיטלי כגון עיצוב חדרי אמבטיה
תכנון
דרושה: תעוזה בעיצוב דיגיטלי כגון עיצוב חדרי אמבטיה
להיות שם
חדשנות וטכנולוגיה
להיות שם
עיצוב חדש לבית עם קשר בין פנים לחוץ
אדריכלות
עיצוב חדש לבית עם קשר בין פנים לחוץ
חג שמח!
תכנון
חג שמח!
תחרות הפרסום הישראלית קקטוס הזהב
אדריכלות
תחרות הפרסום הישראלית קקטוס הזהב
Grand Palais ההיסטורי עתיד לזכות למגע עכשווי
אדריכלות
Grand Palais ההיסטורי עתיד לזכות למגע עכשווי
קלאסיקה אורבנית בשרון
תכנון
קלאסיקה אורבנית בשרון
ראיון עם האדריכל יפתח הררי
תכנון
ראיון עם האדריכל יפתח הררי
עיצוב משרד בסגנון חדשני וצעיר
חדשנות וטכנולוגיה
עיצוב משרד בסגנון חדשני וצעיר
איש תחת גפנו ותחת תאנתו
אדריכלות
איש תחת גפנו ותחת תאנתו
לא רק בטוסקנה: בית העץ בשרון שמאתגר את האדריכלות המקומית
עיצוב בתים פרטיים ודירות
לא רק בטוסקנה: בית העץ בשרון שמאתגר את האדריכלות המקומית
תערוכת Batimat 2009
אדריכלות
תערוכת Batimat 2009
הבית השרוף
אדריכלות
הבית השרוף
לגור בתוך ציור, בצפון הישן
תכנון
לגור בתוך ציור, בצפון הישן
ברוכים הבאים: איך מעצבים תחושת הזמנה במבואת כניסה
תכנון
ברוכים הבאים: איך מעצבים תחושת הזמנה במבואת כניסה
4 על 4
תכנון
4 על 4
עיצוב מסעדת The Cube - על גג  העולם
חדשנות וטכנולוגיה
עיצוב מסעדת The Cube - על גג העולם
תערוכת Ambiente מתאחדת עם Creativeworld ו-Christmasworld
אדריכלות
תערוכת Ambiente מתאחדת עם Creativeworld ו-Christmasworld
תתחילו לבשל...
תכנון
תתחילו לבשל...
עיצוב זורם בכפות ידייך
תכנון
עיצוב זורם בכפות ידייך
עיצוב דירה במגדל בפתח תקווה
תכנון
עיצוב דירה במגדל בפתח תקווה
ECO360
עיצוב
ECO360
בית מגורים מודרני שנבנה מ-31 מכולות מסע באוסטרליה
אדריכלות
בית מגורים מודרני שנבנה מ-31 מכולות מסע באוסטרליה
אלמנטים חזקים יוצרים דירה שלא תוכלו לשכוח, ולא בטוח שבמובן החיובי של המילה
אדריכלות
אלמנטים חזקים יוצרים דירה שלא תוכלו לשכוח, ולא בטוח שבמובן החיובי של המילה
עיצוב בית פרטי - הפוטנציאל שמומש
אדריכלות
עיצוב בית פרטי - הפוטנציאל שמומש
יוצאים לשטח - עבודות בוגרים לארכיטקטורה ועיצוב פנים
תכנון
יוצאים לשטח - עבודות בוגרים לארכיטקטורה ועיצוב פנים
תוכו כברו
אדריכלות
תוכו כברו
דשא סינטטי - ירוק ואקולוגי
אדריכלות
דשא סינטטי - ירוק ואקולוגי
עיצוב מלון עסקים הרצליה - קונספט. אדריכל אלכס מייטליס
עיצוב
עיצוב מלון עסקים הרצליה - קונספט. אדריכל אלכס מייטליס
עובדים חכם: כיצד מעצבים את הבית בלי לזוז מהכסא?
תכנון
עובדים חכם: כיצד מעצבים את הבית בלי לזוז מהכסא?
שטיחים אתניים בעיצוב הבית
עיצוב
שטיחים אתניים בעיצוב הבית