נטו חלל
תכנון

נטו חלל

ציר אורכי הכולל בריכות שיקוף ו"חלון ללא הפסקה" אורגים את שפת הבית בצהלה, ומממשים את הרעיון של מתכננו, האדריכל פיצו קדם: למקסם את איכויות החלל עצמו ולהעניק לדייריו מרחב נטו, המשלב קשר עם החוץ ואינטימיות ביתית

החזית הקדמית - אטומה לחלוטין ומחופה אבן אפורה בעיבוד מסורק. בריכת שיקוף זורמת במקביל לשביל המעבר אל הבית, תחומה בחיפוי חלוקי נחל וצמחי שבטבטים. הקיר מימינה מפריד בינה לבין החניה ופתח אופקי שנפער בו הינו חלק משפת התכנון המקיפה את כל המרחב.

החזית הקדמית - אטומה לחלוטין ומחופה אבן אפורה בעיבוד מסורק. בריכת שיקוף זורמת במקביל לשביל המעבר אל הבית, תחומה בחיפוי חלוקי נחל וצמחי שבטבטים. הקיר מימינה מפריד בינה לבין החניה ופתח אופקי שנפער בו הינו חלק משפת התכנון המקיפה את כל המרחב.

החזית הקדמית - אטומה לחלוטין ומחופה אבן אפורה בעיבוד מסורק. בריכת שיקוף זורמת במקביל לשביל המעבר אל הבית, תחומה בחיפוי חלוקי נחל וצמחי שבטבטים. הקיר מימינה מפריד בינה לבין החניה ופתח אופקי שנפער בו הינו חלק משפת התכנון המקיפה את כל המרחב.

ידענו שאנחנו רוצים בית פשוט שאינו מנקר עיניים, והחלטנו גם ליהנות מתהליך הבנייה” אומרים בעלי הבית השוכן בצהלה. על רקע זה, הם מוסיפים, מפגשם עם האדריכל פיצו קדם היה בבחינת "קליק” מידי - שפתו המודרניסטית תאמה את אופיו של הבית שחזו והכימיה נוצרה מהר מאד. קדם, שעקרונות המודרניזם הם משנתו הסדורה ולחם חוקו המקצועי, תרגם את הפשטות המבוקשת למה שהוא מכנה "נטו חלל” - מקסום איכויות של החלל עצמו לכדי מרחב מגורים שכל מהותו מכוונת למילוי צרכי דייריו והכלת תכניהם האישיים. כך, על רקע סביבתו המשובצת בבנייה חדשה, אין ספק שהבית בולט דווקא בחזותו המאופקת: חד קומתי, מחופה אבן אפורה בעיבוד מסורק, ולמעט דלת הכניסה העשויה עץ, חזיתו הקדמית אטומה לחלוטין, נעדרת כל פתח אחר.

מבט מדלת הכניסה אל מרחב החלל: מארג נקי וקוהרנטי, וציר הבריכה מייצר שני אזורים הממוקמים משני עבריה. ריצוף בטון מוחלק בגון

מבט מדלת הכניסה אל מרחב החלל: מארג נקי וקוהרנטי, וציר הבריכה מייצר שני אזורים הממוקמים משני עבריה. ריצוף בטון מוחלק בגון "שמנתי" כלשהו, תעלות תאורה שקועות בתקרה, פרופיל בלגי לבן בויטרינות ובדלתות הפנים ומקצב מרתק של פתחים המייצרים מבטים משתנים ומפתיעים.משמאל: תקריב של בריכת השיקוף התחומה בחלוקי נחל שבינות להם ב"מערך מסודר" שתולים צמחי קקטוס.

 שביל מעבר המוביל אל מבואת הכניסה החיצונית תחום בחלקת דשא קטנה מצדו האחד, ובבריכת שיקוף מלווה בחיפוי חלוקי נחל וצמחי שבטבטים בצדו השני, ופתיחת דלת הבית מתעתעת: מבעד לשקיפות ויטרינה, כמו אחרי "הפסקה מתודית”, נחשפת שוב בריכת שיקוף כשבסופה משתרע נוף גן, ולרגע לא ברור אם אכן מדובר בכניסה לחלל פנים או שמא בהמשך ישיר של החוץ. "תעתוע” זה, מסתבר, מגלם את סיפורו של התכנון ואת הרעיון שניצב בבסיסו. קדם: "הקונספט הרעיוני נשען על יצירת ציר אורכי הכולל בריכת שיקוף, ושילוב נוכחותה, על כל הערכים האסתטיים הנובעים ממהותה, כחלק אינטגראלי מחלל הפנים”. 

חלל הסלון: חובר לרחבת ישיבה חיצונית ומזמן הנאה ישירה וממוקדת מנופה של בריכת השיקוף. פתחי הסרט הנמוכים התקבלו הודות לתכנון קונסטרוקציה תלויה הנסמכת על קורות עליונות ועמודי ברזל במערכת החלונות, כך שהקירות האטומים נראים כתלויים ומרחפים באוויר, ללא כל תמיכה נראית לעין.

חלל הסלון: חובר לרחבת ישיבה חיצונית ומזמן הנאה ישירה וממוקדת מנופה של בריכת השיקוף. פתחי הסרט הנמוכים התקבלו הודות לתכנון קונסטרוקציה תלויה הנסמכת על קורות עליונות ועמודי ברזל במערכת החלונות, כך שהקירות האטומים נראים כתלויים ומרחפים באוויר, ללא כל תמיכה נראית לעין.

מבט מהגן המשתרע בחזית האחורית אל עבר בריכת השיקוף ודלת הכניסה: קונספט רעיוני הנשען על ציר אורכי הכולל פטיו עם בריכת שיקוף, אשר למרות היותם חיצוניים מהווים חלק בלתי נפרד מחלל הפנים.

מבט מהגן המשתרע בחזית האחורית אל עבר בריכת השיקוף ודלת הכניסה: קונספט רעיוני הנשען על ציר אורכי הכולל פטיו עם בריכת שיקוף, אשר למרות היותם חיצוניים מהווים חלק בלתי נפרד מחלל הפנים.

המגרש עליו נבנה הבית משתרע על שטח של 612 מ”ר במתאר טרפזי משהו, והציר האורכי מתחיל, למעשה, כבר באופן העמדתו עליו, שנקבע בהתייחס לעץ אלמוגן ותיק שניצב בעומקו, כך שקו הכניסה והבריכות "מתיישר” עמו כרצף אחד וחושף את נופו. העדפת הדיירים הייתה לבית בן קומה אחת, אך כמשפחה הכוללת ארבעה ילדים ומטבע הדברים ביקשה לייעד לכל אחד מהם חדר משלו, בניית קומה נוספת הייתה אך מתבקשת, והוחלט שהיא תהיה קומת מרתף על מנת שקנה המידה הידידותי של בית חד קומתי יישמר, וכן קשר ישיר עם החוץ גם מקומה זו. בהמשך לכך, אחד האתגרים של התכנון היה להימנע ממצב בו החנייה תתקבל כ”טלאי” שדבק בניקיון המבני, והיא אכן "הוטמעה” בשטח בקו מקביל לשביל הכניסה, כשהיא מופרדת מבריכת השיקוף החיצונית באמצעות קיר חוצץ בו משולב חלון אופקי נמוך המהווה רמז לבאות - לשפת תכנון מפתיעה ומהודקת עד אחרון פרטיה, המאפיינת את כלל המרחב.

מבט מעומק החלל אל פינת האוכל הממוקמת בקדמתו, ואשר אף היא נהנית מפתח סרט נמוך החושף נוף מגונן. הקירות התמימים לכאורה, אינם אלא חזיתות נגרות הסוגרות על חללי אחסון ושירות, מצניעות מערכות תשתיות ואף כניסה לשירותי אורחים

מבט מעומק החלל אל פינת האוכל הממוקמת בקדמתו, ואשר אף היא נהנית מפתח סרט נמוך החושף נוף מגונן. הקירות התמימים לכאורה, אינם אלא חזיתות נגרות הסוגרות על חללי אחסון ושירות, מצניעות מערכות תשתיות ואף כניסה לשירותי אורחים

מבט מדלת הכניסה אל מרחב החלל: מארג נקי וקוהרנטי, וציר הבריכה מייצר שני אזורים הממוקמים משני עבריה. ריצוף בטון מוחלק בגון

מבט מדלת הכניסה אל מרחב החלל: מארג נקי וקוהרנטי, וציר הבריכה מייצר שני אזורים הממוקמים משני עבריה. ריצוף בטון מוחלק בגון "שמנתי" כלשהו, תעלות תאורה שקועות בתקרה, פרופיל בלגי לבן בויטרינות ובדלתות הפנים ומקצב מרתק של פתחים המייצרים מבטים משתנים ומפתיעים.משמאל: תקריב של בריכת השיקוף התחומה בחלוקי נחל שבינות להם ב"מערך מסודר" שתולים צמחי קקטוס.

קדם: "הדגשת הציר האורכי ושיתוף הבריכה בחלל הפנים כמוקד מרכזי בו, מומשו באמצעות מוטיב של שקיפות, ולצורך זה תוכננה קונסטרוקציה "תלויה” שאפשרה פריצת פתחים לא שגרתיים המייצרים מבטים משתנים, ומעשירים את החלל כולו ברובד תוכני נוסף ועניין שונה”. הקונסטרוקציה המורכבת נסמכת על קורות עליונות ועל עמודי ברזל במערכת החלונות, ומתאר הבית מתגלה כ”קופסה” יישרת קווים, שאופן פתיחתה אכן מאפשר קיום קשר מקסימאלי עם החוץ מחד, ומעניק תחושה של אינטימיות מאידך - למעט החזית הקדמית שהינה אטומה, הפתחים שנפרצו בחזיתות האחרות )ראה שרטוטים( מלווים את המעטפת כסוג של "חלון ללא הפסקה”, אשר בתוך הבית פנימה מייצר מקצב מרתק של יחסי שקיפות-אטימות: לצד ויטרינות גדולות ו”רגילות” המשתרעות מרצפה לתקרה, הקירות האטומים מסתיימים בפתחי סרט אופקיים ונמוכים, משל היו תלויים ומרחפים באוויר ללא כל תמיכה נראית לעין. פתחי הסרט תוכננו וחושבו בקפידה מדויקת תוך התייחסות למראות הנחשפים דרכם, כשהם "ממסגרים” אותם לכדי תמונות קטנות ומזכים את המצויים באזורי החלל השונים בהנאות ויזואליות לא צפויות. 

מבט מהגן המשתרע בחזית האחורית אל עבר בריכת השיקוף ודלת הכניסה: קונספט רעיוני הנשען על ציר אורכי הכולל פטיו עם בריכת שיקוף, אשר למרות היותם חיצוניים מהווים חלק בלתי נפרד מחלל הפנים.

מבט מהגן המשתרע בחזית האחורית אל עבר בריכת השיקוף ודלת הכניסה: קונספט רעיוני הנשען על ציר אורכי הכולל פטיו עם בריכת שיקוף, אשר למרות היותם חיצוניים מהווים חלק בלתי נפרד מחלל הפנים.

כך, למשל, ליושבים בסלון מזומן מבט ישיר אל יופיים של בריכת השיקוף וצמחי קקטוס שנשתלו בינות לחיפוי חלוקי הנחל התוחם אותה; מבטם של המסבים בפינת האכל פוגש נוף מגונן; ומשטח דשא ואדנית פורחת הנושקים לפתח השקוף בחדר השינה מבטיחים לבעלי הבית קשר עין עמם, כמו גם עם בריכת השיקוף ,בעת שכיבה במיטה. מעבר לכך, בהיותה שקופה משני עבריה, יכול המבט לחצות את הבריכה ולנדוד מאזור לאזור ברחבי הקומה הציבורית, כשהוא מעניק בכך תחושת קשר בין דיירי הבית המצויים באזורים שונים.

גרם המדרגות המוביל לקומת המרתף והמעבר אל יחידת השינה של ההורים, ששטחה כולל אזורי ארונות ורחצה מרווחים, וכן פינת עבודה המשתלבת באזור השינה. המעבר אליה מלווה בפתח סרט הממשיך וזורם גם בחזיתה כשהוא מאפשר ליהנות מנוף הגינה גם בעת שכיבה במיטה.

גרם המדרגות המוביל לקומת המרתף והמעבר אל יחידת השינה של ההורים, ששטחה כולל אזורי ארונות ורחצה מרווחים, וכן פינת עבודה המשתלבת באזור השינה. המעבר אליה מלווה בפתח סרט הממשיך וזורם גם בחזיתה כשהוא מאפשר ליהנות מנוף הגינה גם בעת שכיבה במיטה.

חלל הסלון: חובר לרחבת ישיבה חיצונית ומזמן הנאה ישירה וממוקדת מנופה של בריכת השיקוף. פתחי הסרט הנמוכים התקבלו הודות לתכנון קונסטרוקציה תלויה הנסמכת על קורות עליונות ועמודי ברזל במערכת החלונות, כך שהקירות האטומים נראים כתלויים ומרחפים באוויר, ללא כל תמיכה נראית לעין.

חלל הסלון: חובר לרחבת ישיבה חיצונית ומזמן הנאה ישירה וממוקדת מנופה של בריכת השיקוף. פתחי הסרט הנמוכים התקבלו הודות לתכנון קונסטרוקציה תלויה הנסמכת על קורות עליונות ועמודי ברזל במערכת החלונות, כך שהקירות האטומים נראים כתלויים ומרחפים באוויר, ללא כל תמיכה נראית לעין.

בקומת הקרקע הציבורית מסמן הציר האורכי שני אזורים ומייצר מרחב מגורים נוח ופונקציונאלי: בצדו האחד ממוקמים הסלון ופינת האוכל, בצדו השני ממוקם המטבח, שבהמשכו ישנו מעבר ליחידת ההורים והוא אף גובל בגרם המדרגות המוביל לקומת המרתף. בתווך, כשהיא כמו חוצצת ביניהם ומחברת אותם כאחד, נחשפת בריכת השיקוף, אשר למרות מיקומה החיצוני כסוג של פטיו, אכן מהווה חלק בלתי נפרד מהמרחב, כשנוכחותה מאצילה עליו תכנים אסתטיים ייחודיים, דוגמת השתקפות שמיים תכולים במימיה באור היום, או היטלי תאורה מלאכותית ה”נופלים” עליה בשעות החשיכה והופכים אותה לתמונה קסומה. 

יחידת השינה של ההורים: מראה מבחוץ. החלון ה

יחידת השינה של ההורים: מראה מבחוץ. החלון ה"מטייל" בהיקף המעטפת תוכנן בקפידה בהתייחס למראות הנחשפים דרכו, מייצר יחסים מאוזנים בין שקוף ואטום.

מבט מעומק החלל אל פינת האוכל הממוקמת בקדמתו, ואשר אף היא נהנית מפתח סרט נמוך החושף נוף מגונן. הקירות התמימים לכאורה, אינם אלא חזיתות נגרות הסוגרות על חללי אחסון ושירות, מצניעות מערכות תשתיות ואף כניסה לשירותי אורחים

מבט מעומק החלל אל פינת האוכל הממוקמת בקדמתו, ואשר אף היא נהנית מפתח סרט נמוך החושף נוף מגונן. הקירות התמימים לכאורה, אינם אלא חזיתות נגרות הסוגרות על חללי אחסון ושירות, מצניעות מערכות תשתיות ואף כניסה לשירותי אורחים

רעיון ה”נטו חלל” של קדם, קרם עור וגידים כמרחב נקי, בהיר וקוהרנטי, ללא כל אלמנט "בולט”, מבני או אחר, וללא כל סטייה מהמסגרת החומרית-צבעונית שנשענת על מספר מצומצם של חומרים וגוונים ומלווה את כל חללי הבית ללא יוצא מן הכלל. ריצוף החלל נעשה בבטון מוחלק עם תוסף של פיגמנט לבן המשווה לו ניואנס "שמנתי” כלשהו, והוא בוצע תוך שילוב חרוץ נירוסטה המייצר מראה של אריחים גדולים. הויטרינות ודלתות הפנים נתונות במסגרות פרופיל בלגי, התאורה המוקפדת מתקבלת מפסי תאורה שהושקעו בתקרה, עבודות הנגרות הרבות עשויות עץ שנצבע בלבן עם גימור מט, וכל המשטחים במטבח ובחדרי הרחצה עשויים קוריאן.

החזית האחורית - רחבת ישיבה מרווחת מקורה בפרגולה עשויה מקורות אלומיניום משתלבת במתאר הנקי וישר הקווים, והגינה ה

החזית האחורית - רחבת ישיבה מרווחת מקורה בפרגולה עשויה מקורות אלומיניום משתלבת במתאר הנקי וישר הקווים, והגינה ה"פשוטה" והמטופחת מגלמת המשך ישיר של שפתו האסתטית של חלל הפנים.

ההפתעה הגדולה מגיעה מכיוון הקירות, שחזותם התמימה והרגילה כביכול, מתבררת כחזיתות נגרות הסוגרות על חללים שקיומם לא נודע והן מצניעות מאחוריהן עולם ומלואו, דוגמת ארונות חשמל ומערכות תשתית, ארונות אחסון, וכן כניסות לחלל שירות, מזווה ושירותי אורחים. בתוך כך נותר החלל אוורירי וחף מכל אלמנט המפר את זרימתו הפתוחה, והפריטים/אלמנטים היחידים שניצבים בו הם פריטי הריהוט שנבחרו בקפידה אנינה ויחידת האי גדלת ממדים של המטבח, המתפקדת גם כשולחן שמאפשר לכל בני הבית להסב אליה בנוחות.

חזית מערבית

חזית מערבית

גרם המדרגות המוביל לקומת המרתף והמעבר אל יחידת השינה של ההורים, ששטחה כולל אזורי ארונות ורחצה מרווחים, וכן פינת עבודה המשתלבת באזור השינה. המעבר אליה מלווה בפתח סרט הממשיך וזורם גם בחזיתה כשהוא מאפשר ליהנות מנוף הגינה גם בעת שכיבה במיטה.

גרם המדרגות המוביל לקומת המרתף והמעבר אל יחידת השינה של ההורים, ששטחה כולל אזורי ארונות ורחצה מרווחים, וכן פינת עבודה המשתלבת באזור השינה. המעבר אליה מלווה בפתח סרט הממשיך וזורם גם בחזיתה כשהוא מאפשר ליהנות מנוף הגינה גם בעת שכיבה במיטה.

גרם המדרגות, שעיצובו משלב בטון, מדרכי עץ בצביעת ווש לבנה ומעקה עם כבלי מתכת, מוביל אל קומת המרתף כשהוא מלווה בוויטרינה גדולה החושפת את החוץ לעיני היורדים/עולים, ואופן תכנונו במנותק ממנה ומהקיר הסמוך אליו משמר את הממד האוורירי השורה על החלל כולו. קומת המרתף תחומה בשתי חצרות אנגליות אשר במיקומה הנמוך מעניקות לה תחושת פתיחות, ושטחה כולל את חדרי הילדים וחלל משותף לשהייה בצוותא, הנחלק לפינת טלוויזיה ולפינת לימודים. 

חזית מזרחית

חזית מזרחית

רחבת הישיבה החיצונית ביציאה מהסלון מקורה בפרגולה עשויה קורות אלומיניום זהות לאלה שבשער הכניסה, וחוברת לגינה, אשר כמו הבית פנימה, מאופיינת באסתטיקה "פשוטה” אך מוקפדת: חלקת דשא מטופחת, פה ושם עצים ותיקים ואדניות פורחות, ג’קוזי שקוע בקצה אחד של המרחב, ויחידת מטבח מאובזרת כראוי לבילוי בחוץ בצדו השני. כך, האורח המושכל בו שולב בונוס הקשר הישיר עם החוץ שמעניק בית צמוד קרקע עם קירות המספקים את מידת ה”עטיפה” הראויה להשגת אינטימיות, אכן מאחד את שתי המהויות לכדי חוויית חלל מזוקקת - "נטו חלל” כדברי קדם, ופשטות במובנה הטוב של המילה.

חזית צפונית

חזית צפונית

יחידת השינה של ההורים: מראה מבחוץ. החלון ה

יחידת השינה של ההורים: מראה מבחוץ. החלון ה"מטייל" בהיקף המעטפת תוכנן בקפידה בהתייחס למראות הנחשפים דרכו, מייצר יחסים מאוזנים בין שקוף ואטום.

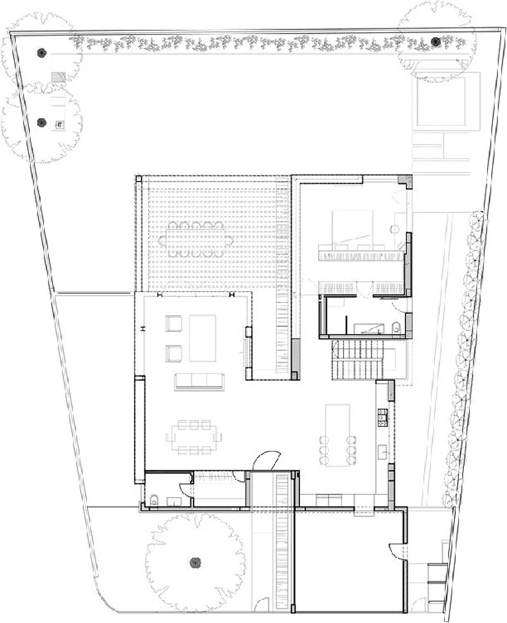
תוכנית הבית

תוכנית הבית

החזית האחורית - רחבת ישיבה מרווחת מקורה בפרגולה עשויה מקורות אלומיניום משתלבת במתאר הנקי וישר הקווים, והגינה ה

החזית האחורית - רחבת ישיבה מרווחת מקורה בפרגולה עשויה מקורות אלומיניום משתלבת במתאר הנקי וישר הקווים, והגינה ה"פשוטה" והמטופחת מגלמת המשך ישיר של שפתו האסתטית של חלל הפנים.

חזית מערבית

חזית מערבית

חזית מזרחית

חזית מזרחית

חזית צפונית

חזית צפונית

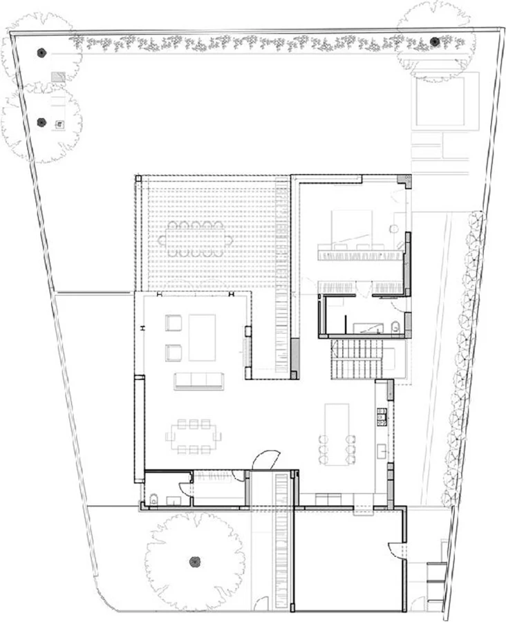
תוכנית הבית

תוכנית הבית


כתבות נוספות

ההוויה והחוויה
עיצוב
ההוויה והחוויה
המהפכה החלקה: החומר שמשנה את פני הבית
עיצוב
המהפכה החלקה: החומר שמשנה את פני הבית
"אני הולך לכבוש את העולם"
אדריכלות
"אני הולך לכבוש את העולם"
עיצוב חללים של בית מלון על ידי הבינה המלאכותית בהשראת האדריכלית זהה חדיד
אדריכלות
עיצוב חללים של בית מלון על ידי הבינה המלאכותית בהשראת האדריכלית זהה חדיד
שיפוץ דירה - רכות אורבאנית
תכנון
שיפוץ דירה - רכות אורבאנית
הבית האקלקטי
אדריכלות
הבית האקלקטי
טשטוש גבולות
תכנון
טשטוש גבולות
רוצים לדעת מה חדש?
חומרים
רוצים לדעת מה חדש?
Hotel Design 2
תכנון
Hotel Design 2
על התפר בין חוץ לפנים
אדריכלות
על התפר בין חוץ לפנים
עיצוב דירה עם תקציב מצומצם בהר הדר
תכנון
עיצוב דירה עם תקציב מצומצם בהר הדר
כיצד הפכה פרביטל ליצרנית השיש והאבן המובילה בישראל?
חומרים
כיצד הפכה פרביטל ליצרנית השיש והאבן המובילה בישראל?
"אפס, בית "- מיצג אומנותי ירוק
תכנון
"אפס, בית "- מיצג אומנותי ירוק
דירת סטודיו באיטליה
תכנון
דירת סטודיו באיטליה
במבט ראשון - כל החידושים בתחום העיצוב לבית
תכנון
במבט ראשון - כל החידושים בתחום העיצוב לבית
ינון בן דוד : "אל תשכחו – הטבע הוא המשאב החשוב ביותר של הבית"
אדריכלות
ינון בן דוד : "אל תשכחו – הטבע הוא המשאב החשוב ביותר של הבית"
תנורי הוייקינגים הגיעו לתדיראן ויש בהחלט למה לצפות
חומרים
תנורי הוייקינגים הגיעו לתדיראן ויש בהחלט למה לצפות
היא אוהבת מודרני, הוא אוהב כפרי – התוצאה נפלאה!
אדריכלות
היא אוהבת מודרני, הוא אוהב כפרי – התוצאה נפלאה!
עיצוב אדריכלי ספרותי
תכנון
עיצוב אדריכלי ספרותי
שופכים אור
חומרים
שופכים אור
תכנון חדר חיצוני - גינה
אדריכלות
תכנון חדר חיצוני - גינה
חומרים חדשים - 118
תכנון
חומרים חדשים - 118
האלומיניום שמעצב את עתיד העיצוב התעשייתי
תכנון
האלומיניום שמעצב את עתיד העיצוב התעשייתי
כפריות מודרנית
אדריכלות
כפריות מודרנית
"כמו אליס, נפלנו דרך מחילת השפן ומצאנו עולם חדש"
אדריכלות
"כמו אליס, נפלנו דרך מחילת השפן ומצאנו עולם חדש"
דווקא עכשיו – שיפוץ קל:
אדריכלות
דווקא עכשיו – שיפוץ קל:
Relax, הצעה לעיצוב חדרים בבתי מלון: אלונה פרסלוב
עיצוב
Relax, הצעה לעיצוב חדרים בבתי מלון: אלונה פרסלוב
בית ירוק בצבע ורוד
אדריכלות
בית ירוק בצבע ורוד
שקט, אור וקלילות: המהפכה בעיצוב חללי מגורים בעידן המודרניות המואצת
תכנון
שקט, אור וקלילות: המהפכה בעיצוב חללי מגורים בעידן המודרניות המואצת
רחבה מעוגלת מבטון
חומרים
רחבה מעוגלת מבטון
כשהכול נעשה כמו שצריך
אדריכלות
כשהכול נעשה כמו שצריך
דשא סינטטי - ירוק ואקולוגי
אדריכלות
דשא סינטטי - ירוק ואקולוגי
פתרונות עיצוב - 113
תכנון
פתרונות עיצוב - 113
שיש - תכונות, שימושים ומגמות עכשוויות
תכנון
שיש - תכונות, שימושים ומגמות עכשוויות
מי יכתיב את הטון בשנת 2014?
עיצוב
מי יכתיב את הטון בשנת 2014?
עידן חדש בתחום חיפוי קירות באריחים
סלון
עידן חדש בתחום חיפוי קירות באריחים
בונים? משפצים? מעצבים מחדש? הכול מתחיל ונגמר בבחירת האדריכל המתאים לפרויקט!
תכנון
בונים? משפצים? מעצבים מחדש? הכול מתחיל ונגמר בבחירת האדריכל המתאים לפרויקט!
למה בטון מוחלק הוא הטרנד הבא בעולם הריצוף
חומרים
למה בטון מוחלק הוא הטרנד הבא בעולם הריצוף
אין דבר כזה פונקציה באדריכלות
אדריכלות
אין דבר כזה פונקציה באדריכלות
מוצרי יוקרה לכל אחד
תכנון
מוצרי יוקרה לכל אחד
מחשבה מייצרת מציאות
תכנון
מחשבה מייצרת מציאות
כאן גרים בכיף
אדריכלות
כאן גרים בכיף
התמונות הזוכות לשנת 2013 בתחרות הצילומים האדריכליים "Arcaid Images"
אדריכלות
התמונות הזוכות לשנת 2013 בתחרות הצילומים האדריכליים "Arcaid Images"
אפור & פודרה, יופי & סטייל
תכנון
אפור & פודרה, יופי & סטייל
הבית  על הצוק
אדריכלות
הבית על הצוק
יש מקום! פתרונות אחסון יצירתיים שחייבים להכיר
תכנון
יש מקום! פתרונות אחסון יצירתיים שחייבים להכיר
הוא אוהב לתקלט ומעריץ את דיוויד בואי, שני אלו שולבו בגאונות בדירת היוקרה התל אביבית
תכנון
הוא אוהב לתקלט ומעריץ את דיוויד בואי, שני אלו שולבו בגאונות בדירת היוקרה התל אביבית
קלתאה: דיווה טרופית בסלון
עיצוב
קלתאה: דיווה טרופית בסלון
עיצוב מערכות ריהוט – כיסאות
תכנון
עיצוב מערכות ריהוט – כיסאות
דירה חדשה – להשקיע בעיצוב פנים או לא?
תכנון
דירה חדשה – להשקיע בעיצוב פנים או לא?
חללים מעוצבים מתוך הכנס הבינ"ל לעיצוב ותכנון בתי מלון
אדריכלות
חללים מעוצבים מתוך הכנס הבינ"ל לעיצוב ותכנון בתי מלון
לתת לרהיט אופי
עיצוב
לתת לרהיט אופי
שומרים על החום מבפנים
תכנון
שומרים על החום מבפנים
עיצוב מתפרץ
עיצוב
עיצוב מתפרץ
עם הספר - ספריות מעוצבות
תכנון
עם הספר - ספריות מעוצבות
הדירה שהיא ארץ לעולם לא
תכנון
הדירה שהיא ארץ לעולם לא
קומה 18 מול הים
תכנון
קומה 18 מול הים
תכנון בית פרטי - מתלבש ומתפשט
אדריכלות
תכנון בית פרטי - מתלבש ומתפשט
שימור שני בניינים בשכונת אחוזת בית - תל אביב
חומרים
שימור שני בניינים בשכונת אחוזת בית - תל אביב
תערוכת אמביינטה בפרנקפורט, למטיבי לכת בלבד
אדריכלות
תערוכת אמביינטה בפרנקפורט, למטיבי לכת בלבד
בשם הפרטיות: רואים שקוף, רואים רחוק
אדריכלות
בשם הפרטיות: רואים שקוף, רואים רחוק
פרגולות אלומיניום תלויות: פתרון הצללה אלגנטי מבית צללית
אדריכלות
פרגולות אלומיניום תלויות: פתרון הצללה אלגנטי מבית צללית
עיצוב ותכנון מלונות בעולם
חומרים
עיצוב ותכנון מלונות בעולם
כאן משחקים וחיים בכיף
אדריכלות
כאן משחקים וחיים בכיף
הבית בגדרה- אלוהי הפרטים הקטנים
אדריכלות
הבית בגדרה- אלוהי הפרטים הקטנים
עיצוב הבית – ככה עושים את זה ביפן
אדריכלות
עיצוב הבית – ככה עושים את זה ביפן
עבודת כפיים
תכנון
עבודת כפיים
כנס inno 2017 - עיצוב סביבת עבודה חדשנית
עיצוב
כנס inno 2017 - עיצוב סביבת עבודה חדשנית
עיצוב שולחן לחג
תכנון
עיצוב שולחן לחג
התאמה ייחודית לרצונות הלקוח
אדריכלות
התאמה ייחודית לרצונות הלקוח
עיצוב חדרי מלון- חופשה בסימן אמנות
עיצוב
עיצוב חדרי מלון- חופשה בסימן אמנות
רהיטים "שמחברים" בין אנשים
חומרים
רהיטים "שמחברים" בין אנשים
פלסטיק בום
תכנון
פלסטיק בום
כשאיימי ווינהאוס פגשה את מוצארט ופברוטי
תכנון
כשאיימי ווינהאוס פגשה את מוצארט ופברוטי
שיפוץ בית בהרצלייה פיתוח הפך לחוויה ויזואלית ספוגת צבע
אדריכלות
שיפוץ בית בהרצלייה פיתוח הפך לחוויה ויזואלית ספוגת צבע
עיצוב סובב עולם - 121
אדריכלות
עיצוב סובב עולם - 121
בזכות הטפטים: עיצוב פנים משודרג ועכשווי
חומרים
בזכות הטפטים: עיצוב פנים משודרג ועכשווי
עיצוב בירוק
חומרים
עיצוב בירוק
עיצוב לכולם - ריאיון עם המעצב אוקי סאטו
אדריכלות
עיצוב לכולם - ריאיון עם המעצב אוקי סאטו
אורח לרגע
אדריכלות
אורח לרגע
הטרנדים החמים בעיצוב חדרי ישיבות: מה חדש בתל אביב?
חומרים
הטרנדים החמים בעיצוב חדרי ישיבות: מה חדש בתל אביב?
קיימות עירונית - רשמים מביקור בניו יורק
תכנון
קיימות עירונית - רשמים מביקור בניו יורק
10 דרכים להתארגן למעבר דירה בקיץ
טיפים לעיצוב
10 דרכים להתארגן למעבר דירה בקיץ
ניגודים יוצרים הרמוניה
אדריכלות
ניגודים יוצרים הרמוניה
חושים במקום לוח וגירים
חומרים
חושים במקום לוח וגירים
חדר משלכם
אדריכלות
חדר משלכם
נשב בחוץ
עיצוב
נשב בחוץ
תכנון ועיצוב בית ותיק
אדריכלות
תכנון ועיצוב בית ותיק
Welcome 2020 Farewell 2019
תכנון
Welcome 2020 Farewell 2019
עיצוב פינת לימודים
חומרים
עיצוב פינת לימודים
עובדים חכם: כיצד מעצבים את הבית בלי לזוז מהכסא?
תכנון
עובדים חכם: כיצד מעצבים את הבית בלי לזוז מהכסא?
"אמריקנה" - תערוכת יחיד של אורן לוקץ' בגלריה רוזנפלד
אדריכלות
"אמריקנה" - תערוכת יחיד של אורן לוקץ' בגלריה רוזנפלד
בניה ירוקה - פורצת גבולות
תכנון
בניה ירוקה - פורצת גבולות
עיצוב ממקום אחר - 108
חומרים
עיצוב ממקום אחר - 108
מצא את ההבדלים
אדריכלות
מצא את ההבדלים
החזית של גנסלר
תכנון
החזית של גנסלר
קניון Kragujevac, סרביה
חומרים
קניון Kragujevac, סרביה
נגיעה קטנה של עיצוב, שינוי עצמתי בחלל
חומרים
נגיעה קטנה של עיצוב, שינוי עצמתי בחלל
הבית שחושף את קסמו בהדרגה
אדריכלות
הבית שחושף את קסמו בהדרגה
מהפכת הסלון: איך תאורה חכמה יוצרת יוקרה ללא שיפוץ
תכנון
מהפכת הסלון: איך תאורה חכמה יוצרת יוקרה ללא שיפוץ