חוויה מתקנת
שיפוץ הדירה שביצעה אדריכלית הפנים דלית ונגרובסקי בדירה ותיקה על הכרמל בחיפה, היה בבחינת חוויה מתקנת: חללה עוצב כסוג של לופט אוורירי ופתוח, בו מככב נוף הים שהוחמץ בתכנון המקורי תכנון: דלית ונגרובסקי, אדריכלית פנים
פרויקט שיפוצה של הדירה השוכנת על הכרמל בחיפה, החל, למעשה, כשלב מקדים לתוספת בניית ממ"ד שתוכננה לבניין כולו.
"הדירה, ששטחה משתרע על כ-110 מ"ר, שוכנת בניין ותיק וחללה המקורי היה טיפוסי לדירות שנבנו באותה תקופה, וכלל מסדרון צר וארוך שהקנה לה תחושה סגורה" מספרת אדריכלית הפנים דלית ונגרובסקי.
הקונספט התכנוני של ונגרובסקי "הלך על כל הקופה", ושיווה לו איכויות לופטיות- כל המחיצות המקוריות הוסרו, כאשר בפרישת החלל החדשה נוצר חלל מרכזי גדול ופתוח המכיל את הפונקציות המשותפות ובהיקפו מוקמו החדרים הפרטיים (ראה תוכניות לפני ואחרי השיפוץ).
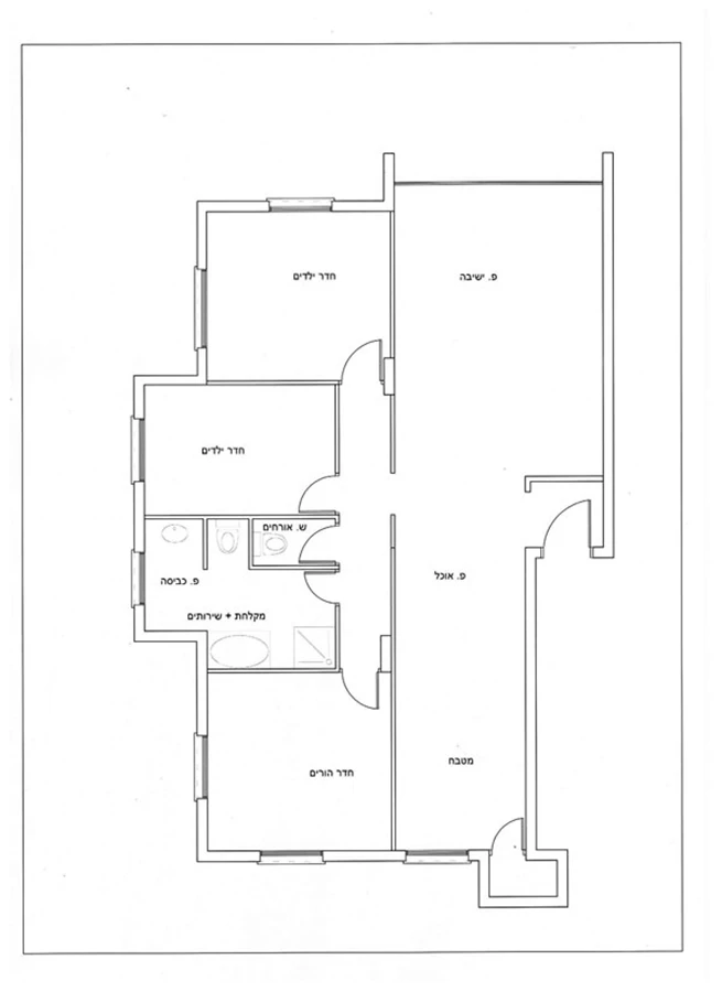
תוכנית לפני השיפוץ
תוכנית לאחר השיפוץ ללא הממ"ד
"השינוי המשמעותי ביותר היה חילופין בין המטבח וחדר השינה" מספרת ונגרובסקי, ולמראה המרחב הפתוח הצופה ברוחב לב ועין אל נוף הים קשה לדמיין את ההחמצה שהייתה מנת חלקו של החלל בגלגולה הקודם של הדירה. הצבעוניות המאפיינת את המרחב המחודש ניטראלית ומאופקת- גווני אפור ולבן, ושפתו החומרית מינימליסטית: לריצוף משמשים אריחי גרניט פורצלן דמויי דק (פלנקים) בגון אפור, קירותיו לבנים, והתאורה הכללית היא בעיקרה צמודת תקרה, ובכלל זה גופים שקועים שהותקנו בהנמכות שתוכננו בה.
אחרי השיפוץ - החלל שנפתח לנוף הים
מגוון חברות ומוצרים
בקדמת החלל האוורירי, סמוך לכניסה, ישנה ספרייה שעיצובה המודולארי מתקבל ממשחק תיבות בגווני שחור ולבן ומאפשר לבצע בה שינויים רצויים, ובעומקו, זה לצד זה ממוקמים המטבח ופינת הישיבה.
יחידת הספרייה המודולארית מעוצבת כקוביות בשחור לבן וניתנת לשינוי גמיש בהתאם לרצוי.
ריהוט: "טולמנס" תאורה: "דוד קמחי"
הזיקה לסגנון המזרח ולעיצוב יפני בפרט, באה לידי ביטוי בחדר השינה, בו עוצב הארון עם חזיתות בהשראתו, כאשר מדבקות קיר בדיגומים המזכירים אמנות יפנית משלימות את המראה. "מדבקות קיר הן אחת הדרכים להעשיר חזות של חלל או להוסיף לו עניין נוסף, וכאן הן אף היו אמצעי מצוין להדגיש את רוח הסגנון המבוקש" אומרת ונגרובסקי, אשר שילבה אותן גם בחדר הרחצה ובחדרה של הבת כטאצ' חינני.
חדר השינה - אזכוריים יפניים בחזית הארון ובדיגומי הצומח של מדבקות הקיר.
ריצוף ואביזרים סניטאריים
גם בחדר הרחצה אזכוריים יפניים
כול החדשנות בתחום עיצוב ותכנון הבית
אהבה לספרים שהפכה לארכיטקטורה - תכנון: אדריכל ארז אליאסין
כאילו הים היה הלקוח שלי - תכנון: לימור שחורי, מעצבת פנים
כחול הוא הצבע שלי - תכנון ועיצוב: גלי ג'נאח, מעצב פנים

כתבות נוספות