להרגיש  את הגינה
אדריכלות

להרגיש את הגינה

  בעלי הבית ביקשו "להרגיש את הגינה" ומתכננו מושיק חדידה מילא את הבקשה: מערך ויטרינות שמייצר חזית שקופה בקומת הכניסה חושף אותה במלואה כהמשך ישיר של החלל ומבטיח נגישות מידית לשטחה 

הבית: חזית צנועה מחופה שליכט אפור ומשולבת בשכבת בריקים המעדנת את תחושת מסה. שערים: 'סנפיר'

למודי ניסיון מבית פרטי קודם ועם רצונות ברורים לגבי ביתם העתידי, הגיעו דיירי הבית השוכן במרכז הארץ אל מושיק חדידה, בעליו של סטודיו HM לעיצוב ואדריכלות. "בגדול, הפרוגראמה הייתה סטנדרטית למדי בכל הקשור לחלוקת החלל, לפרקטיות ולנוחות, אך הדגישה באופן מיוחד את רצונם של בעלי הבית 'להרגיש את הגינה'. לכך שהיא תהווה חלק בלתי נפרד מחיי הבית, תאפשר לארח בשטחה, ושהנגישות אליה תהיה מידית, ממד שחסר להם בביתם הקודם" מספר חדידה. 

מבואת הכניסה החיצונית מחופה אלומיניום, וכך גם דלת הכניסה. משמאל נראית ויטרינה המעניקה הצצה ראשונית פנימה, ודרך הדלת הפתוחה נחשפת הגינה. דלת כניסה:

מבואת הכניסה החיצונית מחופה אלומיניום, וכך גם דלת הכניסה. משמאל נראית ויטרינה המעניקה הצצה ראשונית פנימה, ודרך הדלת הפתוחה נחשפת הגינה. דלת כניסה: 'דקור', גופי תאורה: 'קמחי תאורה'.

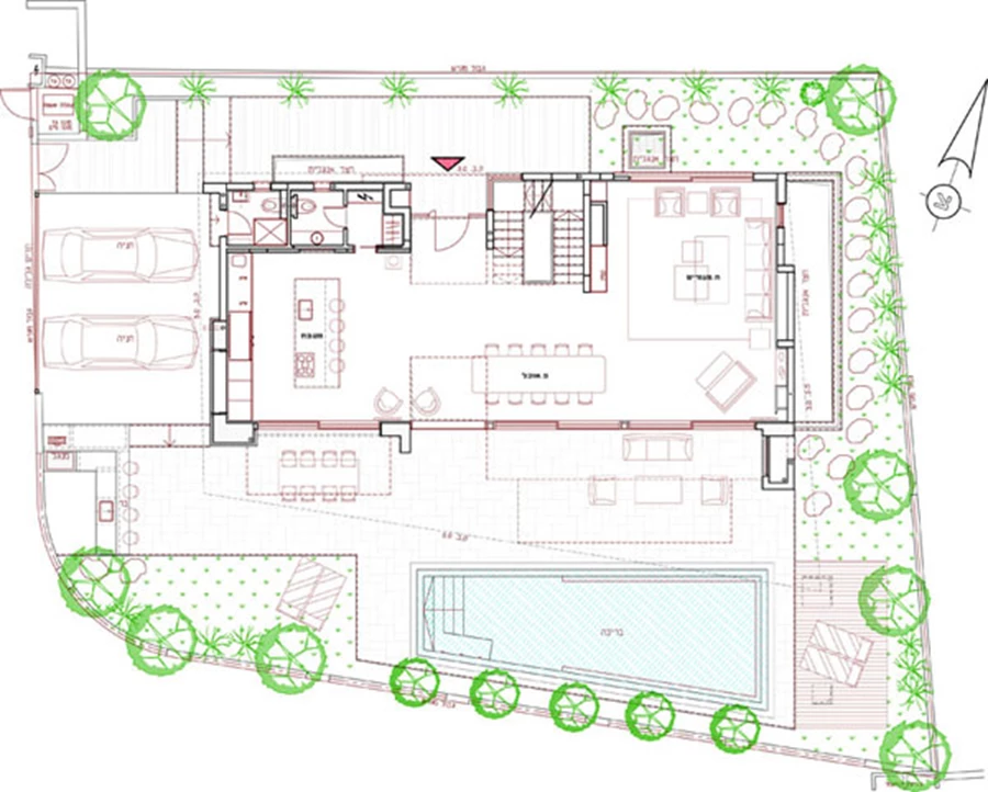
השטח עליו נבנה הבית הוא מגרש פינתי טרפזי משהו המשתרע על חצי דונם, והעמדת המבנה עליו נעשתה בצמוד לקו הבניין האחורי על מנת שייוותר די מקום לגינה בכיוון קו הבניין הקדמי. חזיתו הפונה לרחוב צנועה, מציגה מבנה דו קומתי מחופה שליכט אפור שבקדמתו משתלבת "שכבת" קיר מחופה בריקים המעדנת את המסה האפורה ומוסיפה לה חמימות. למרות שמדובר בגוש אחד, חלקו המרכזי שנסוג מעט פנימה מייצר מראית עין של שני גושים נפרדים, אותה מדגישה גם קורת ברזל הנמתחת מצד לצד תוך יצירת קירוי לאזור המבואה החיצונית. 

מבט מכיוון פינת האוכל אל עבר דלת הכניסה שמבחוץ מחופה באלומיניום ובחלל הפנים מופיעה בלבן. ריצוף באריחי אבן שייגריי בליטוש מט דמוי בטון, קירות לבנים ותאורה מבוססת על גופים שקועים. ריצוף:

מבט מכיוון פינת האוכל אל עבר דלת הכניסה שמבחוץ מחופה באלומיניום ובחלל הפנים מופיעה בלבן. ריצוף באריחי אבן שייגריי בליטוש מט דמוי בטון, קירות לבנים ותאורה מבוססת על גופים שקועים. ריצוף: 'אבני טל נוניס גלרי'.

קיר הכניסה מחופה אלומיניום, וכך גם דלת הכניסה הקבועה בתוכו כחלק בלתי נפרד, כאשר קיר מסך הממוקם לצדה מעניק הצצה ראשונית קטנה פנימה. וכך, עם הכניסה לחלל הפנים מקבלת בקשת הדיירים 'להרגיש את הגינה' את מלוא משמעותה: היישר מול הדלת מתגלה מערך ויטרינות התוחם את הקומה כחזית שקופה החושפת את נוף הגן והבריכה במלואם כעין המשך ישיר של המרחב. 

ציר האורך של חלל המגורים, מבט מכיוון המטבח: אזור הסלון הממוקם בסופו

ציר האורך של חלל המגורים, מבט מכיוון המטבח: אזור הסלון הממוקם בסופו "מסתעף" מעט הצידה תוך יצירת תצורת L, ורצף ויטרינות "מקצה לקצה" מייצר חזית שקופה לגינה. אלומיניום: 'אלום גב', תאורה כללית: 'גולדן לייט'.

קומה זו מרכזת בשטחה את הפונקציות המשותפות (מטבח, פינת אוכל וסלון), בקומה העליונה מממוקמים יחידת הורים+שלושה חדרים, ובקומת מרתף נמצא חדרה של הבת הבוגרת שנהנה מאזור חוץ נעים שמייצרת חצר אנגלית. את רצונו לייצר את מרחב המגורים בקומת הכניסה כחלל גבוה ועוצמתי למראה נאלץ חדידה לגנוז בשל חוקי הבנייה במקום המטילים מגבלת גובה, ובמקום זאת "הסתפק" בשני אזורים גבוהים: חלל המדרגות שבקדמת החלל אשר מחדיר לשטחו אור יום נעים ואוויר, ואזור נוסף בין המטבח ופינת האוכל, תוצר של מרווח בין קיר המעטפת וגשר שתוכנן בקומה העליונה. לריצוף נבחרו אריחי אבן שי גריי אפורים בליטוש מט ומופע דמוי בטון, הקירות נצבעו בלבן ופרטים דוגמת פנלים שנסוגים פנימה מקו הקירות, תקרות צפות-מרחפות וכמובן שקיפות הויטרינות, מייצרים חלל המאופיין באווריריות וניקיון. 

מבט חזיתי מדלת הכניסה: שקיפות מלאה לגינה ואזור של חלל כפול בין המטבח ופינת האוכל. גוף תאורה פ.אוכל:

מבט חזיתי מדלת הכניסה: שקיפות מלאה לגינה ואזור של חלל כפול בין המטבח ופינת האוכל. גוף תאורה פ.אוכל: 'אקסלוסיב'.

המטבח ופינת האוכל ממוקמים כרצף אורכי, ואזור הסלון שבסוף הציר ממוקם בסוג של זווית ניצבת אליו תוך יצירת תצורת L   כלשהי שמקורה בקיר המפריד בינו לבין חלל המדרגות. בתוך כך הוא מהווה חלק מציר הרצף ובה בעת נהנה מיתר אינטימיות במרחב הפתוח, כאשר קמין אינטגראלי ששולב בפינת הקיר משרת את שני הכיוונים. 

המטבח: תחום ביחידת אי ארוכה בה משתלבות כל פונקציות העבודה, ומקבל תוספת מגדירה מטור גופי תאורה מעוצבים כגלילים אורכיים שמלווים אותה ממעל. חזיתות ניו לק לבנות, יחידת קיר גדולה שמצניעה בתוכה משטח עבודה נוסף ואביזרים חשמליים קטנים, ובסמוך ליחידה חיפוי קיר בזכוכית שחורה שבתוכה משתלב מסך טלוויזיה. מטבח:

המטבח: תחום ביחידת אי ארוכה בה משתלבות כל פונקציות העבודה, ומקבל תוספת מגדירה מטור גופי תאורה מעוצבים כגלילים אורכיים שמלווים אותה ממעל. חזיתות ניו לק לבנות, יחידת קיר גדולה שמצניעה בתוכה משטח עבודה נוסף ואביזרים חשמליים קטנים, ובסמוך ליחידה חיפוי קיר בזכוכית שחורה שבתוכה משתלב מסך טלוויזיה. מטבח: 'דקור', כסאות בר: 'פיק-אפ', חיפוי זכוכית פלזמה: 'היי פריים'.

תאורת החלל מבוססת על גופים שקועים המשמרים את שפתו הנקייה, עם תוספת מדודה של גופים דקורטיביים באזורים ממוקדים. מרבית פריטי הריהוט עוצבו ע"י חדידה ובוצעו בעבודת נגרות כשילובים של ברזל ועץ, אשר ככלל שזור כנגיעות במארג המודרני- נקי ומעניק לו טאצ' חמים, כמו, למשל, גומחה שבחללה הפנימי מחופה העץ משתלב מערך מדפים א-סימטרי. פינת הישיבה מעוצבת בקווים נדיבים ומזמינים וריפוד עור, שולחן הקפה אינו אלא קומפוזיציה של שלושה שולחנות בגבהים שונים, ושולחן האוכל הגדול והנוח לאירוח משלב רגלי ברזל ומשטח עץ בגימור ייחודי מעוגל בקצוות. 

מבט מהסלון אל פינת האוכל והמטבח שבסוף ציר האורך, כמו גם אל מרחב החוץ.  העיצוב משלב פריטי ריהוט בקווים עכשוויים ונינוחים עם נגיעות עץ חמימות. ריהוט: HK חיים קרנדאג

מבט מהסלון אל פינת האוכל והמטבח שבסוף ציר האורך, כמו גם אל מרחב החוץ. העיצוב משלב פריטי ריהוט בקווים עכשוויים ונינוחים עם נגיעות עץ חמימות. ריהוט: HK חיים קרנדאג'י.

גומחה מחופה בעץ מכילה מדפים במערך א-סימטרי.

גומחה מחופה בעץ מכילה מדפים במערך א-סימטרי.

את אזור המטבח תוחמת יחידת אי ארוכה מלווה ממעל בשלושה גופי תאורה מעוצבים כגלילים אורכיים המחזקים- מדגישים את הגדרתו בחלל. היחידה המשמשת כדלפק אכילה נוח לשישה סועדים מכילה, למעשה, את מרבית הפונקציות הנדרשות, כשבמשטחה העליון משתלבים כיור, כיריים חשמליות וכמובן משטח עבודה. משטח עבודה נוסף כ"תגבור" לעת הצורך מוצנע בתוך יחידת קיר גדולה לצד אביזרים חשמליים קטנים, ואף המקרר והתנור הינם חלק ממערך הארונות. חזיתות המטבח עשויות ניולק, וחלק מהקיר הסמוך ליחידת האי חופה בזכוכית שחורה כשבתוכה משתלב מסך טלוויזיה. 

קמין שמשתלב בקיר המפריד בין אזור הסלון וגרם המדרגות נוכח ונחשף מכל פינה במרחב החלל. קמין:

קמין שמשתלב בקיר המפריד בין אזור הסלון וגרם המדרגות נוכח ונחשף מכל פינה במרחב החלל. קמין: 'חימום כרמל'.

"הסתעפות" קלה של הסלון מציר האורך מקנה לו יתר אינטימיות בחלל הפתוח.

גרם המדרגות המוליך לקומה העליונה עוצב כשילוב של מעקות נירוסטה בקווים נקיים ומדרגות עץ אלון המשמרות מרווח ניתוק עם הקיר. מרחב הקומה רוצף בפרקט ותוכנן כגשר שמשני עבריו מוקמו החללים: יחידת הורים מרווחת בעברו האחד וחדרי ילדים ורחצה בעברו השני. לתיחום הגשר משמשים מעקות זכוכית שקופים, כך שניתן לשמור על קשרי עין ישירים בין הקומות, כמו גם עם החוץ- להשקיף מטה אל הגינה מצד אחד, ואל אזור המבואה מצד שני.

גרם המדרגות: חלל גבוה מלווה בוויטרינה המחדירה אור ואוויר, מדרגות עשויות עץ אלון משמרות מרווח ניתוק בחיבור עם הקיר, ומעקה עשוי נירוסטה בעיצוב נקי קווים. מעקה נירוסטה:

גרם המדרגות: חלל גבוה מלווה בוויטרינה המחדירה אור ואוויר, מדרגות עשויות עץ אלון משמרות מרווח ניתוק בחיבור עם הקיר, ומעקה עשוי נירוסטה בעיצוב נקי קווים. מעקה נירוסטה: 'סטייל אוף סטייל בע"מ'.

פרט ניתוק במדרגות.

פרט ניתוק במדרגות.

 יחידת ההורים היא חלל מרווח ומפנק המתהדר במרפסת הצופה אל הגינה והבריכה. שטחו כולל אזור שינה ואזור רחצה המופרדים זה מזה באמצעות מחיצות זכוכית שקופות, כאשר על חדר ארונות  נפרד החליט חדידה לוותר על מנת  להרוויח  שטח. הארונות שעוצבו עם חזיתות זכוכית מוקמו במרחב החדר כשבאחת מהן נקבע מסך טלוויזיה לצפייה נוחה מול המיטה, ובדומה לחלל המגורים גם כאן משתלב בקיר קמין אינטגראלי תוך ניצול הארובה ה"מטפסת" מקומת הכניסה. 

הגשר שבקומה העליונה:  מרוצף פרקט, תחום במעקות שקופים המאפשרים יצירת קשרי עין ישירים בין הקומות ועם הגינה.

הגשר שבקומה העליונה: מרוצף פרקט, תחום במעקות שקופים המאפשרים יצירת קשרי עין ישירים בין הקומות ועם הגינה.

יחידת ההורים בקומה העליונה: חלל מרווח הנחלק לאזורי שינה ורחצה מופרדים זה מזה באמצעות מחיצות זכוכית שקופות. ריצוף פרקט, ארונות עם חזיתות זכוכית, וקמין אינטגראלי בקיר. ארונות ויחידת כיור:

יחידת ההורים בקומה העליונה: חלל מרווח הנחלק לאזורי שינה ורחצה מופרדים זה מזה באמצעות מחיצות זכוכית שקופות. ריצוף פרקט, ארונות עם חזיתות זכוכית, וקמין אינטגראלי בקיר. ארונות ויחידת כיור: 'דקור'.

חדר הרחצה רחב הידיים רוצף באריחי פסיפס דקורטיביים, האמבט תוכנן כאמבט שקוע, ויחידת הכיור המרחפת עוצבה כך שתשמש בנוחות את שני בני הזוג: עשויה עץ ומשטח קוריאן בו משתלב אינטגראלית כיור שוקת גדול, שני ברזים ושני ארונות מראה מעליה, כאשר את נגיעות העץ ששילב חדידה בעיצוב מגלמת גם יחידת מדפים פינתית לאחסון מוצרי טואלטיקה. עיצוב חדרי הילדים בוצע באותה קפידה על פרטים, וחיפויי פסיפס דקורטיביים משתלבים גם בחדרי הרחצה שלהם ובשירותי האורחים תוך הדגשתם באמצעות גימור המשווה לקירות האחרים חזות חלקה ונקייה למשעי שאינה מתחרה בחיפוי.

חדר הרחצה של יחידת ההורים: ריצוף פסיפס דקורטיבי, אמבט שקוע, אלמנט מדפים פינתי עשוי עץ, ויחידת כיור מותאמת לשני משתמשים. היחידה המרחפת עשויה עץ עם משטח קוריאן בו משתלב כיור שוקת אינטגראלי נוח לשימוש כפול, וכך גם שני ברזים ושני ארונות מראה.

חדר הרחצה של יחידת ההורים: ריצוף פסיפס דקורטיבי, אמבט שקוע, אלמנט מדפים פינתי עשוי עץ, ויחידת כיור מותאמת לשני משתמשים. היחידה המרחפת עשויה עץ עם משטח קוריאן בו משתלב כיור שוקת אינטגראלי נוח לשימוש כפול, וכך גם שני ברזים ושני ארונות מראה.

חלל שירותי אורחים: חיפוי פסיפס מודגש באמצעות גימור המקנה לקירות האחרים מופע חלק ונקי למשעי, יחידה מרחפת מעץ עם כיור בהנחה עליונה וגוף תאורה דקורטיבי המשלים את העיצוב. חיפוי וריצוף פסיפס:

חלל שירותי אורחים: חיפוי פסיפס מודגש באמצעות גימור המקנה לקירות האחרים מופע חלק ונקי למשעי, יחידה מרחפת מעץ עם כיור בהנחה עליונה וגוף תאורה דקורטיבי המשלים את העיצוב. חיפוי וריצוף פסיפס: 'אבני טל נוניס גלרי'.

חדרה של הבת בקומת המרתף נהנה מאזור חוץ פרטי שמייצרת חצר אנגלית.

חדרה של הבת בקומת המרתף נהנה מאזור חוץ פרטי שמייצרת חצר אנגלית.

החיבור עם החוץ והגינה שעמד ב"ראש" הפרוגראמה הכתיב את תכנון הרחבה החיצונית בגינה שרוצפה באריחי אבן קרמה מוס בעיבוד מוברש וסידור פטרן וקורתה בפרגולה המשלבת מסגרת אלומיניום ומילואת עץ. הצבת הריהוט בוצעה בחפיפה מלאה לאופן פרישת הפונקציות בחלל הפנים, וכך, למשל, שולחן האוכל החיצוני ניצב היישר מול היציאה מהמטבח בנגישות נוחה ומידית, ופינת הישיבה חוברת ברצף ישיר לאזור הסלון עם אפשרות לאחד בין שני האזורים. 

פרגולה המשלבת מסגרת אלומיניום ומילואת עץ, ופינות ישיבה ואוכל שהוצבו בחפיפה לפונקציות הפנים מייצרות נגישות נוחה ומידית בין שני המרחבים. בריכה:

פרגולה המשלבת מסגרת אלומיניום ומילואת עץ, ופינות ישיבה ואוכל שהוצבו בחפיפה לפונקציות הפנים מייצרות נגישות נוחה ומידית בין שני המרחבים. בריכה: 'אקוופולקו', ריהוט גן: 'גנים ושושנים'.

רחבת הישיבה "מסתיימת" בבריכה מפנקת שמלווה אותה, מחופה אריחי פסיפס תכולים ותחומה מצדה השני ברצועת גינון ירוקה, כשהיא משלימה את מרחב הגן המוקפד שניבט מכל פינה בחלל המגורים ואכן מורגש ונוכח בו.

מבט מעומק הגינה אל עבר הבית חושף את קומת הקרקע, את החלל הגבוה הסמוך לויטרינות ואת פינת הישיבה הקטנה בגשר הקומה העליונה. ריצוף הרחבה באריחי אבן קרמה מוס בעיבוד מוברש וסידור פטרן.

מבט מעומק הגינה אל עבר הבית חושף את קומת הקרקע, את החלל הגבוה הסמוך לויטרינות ואת פינת הישיבה הקטנה בגשר הקומה העליונה. ריצוף הרחבה באריחי אבן קרמה מוס בעיבוד מוברש וסידור פטרן.

כתבות נוספות

ה:Rabbit Brush Residence בג'קסון וויומינג
אדריכלות
ה:Rabbit Brush Residence בג'קסון וויומינג
כשהאורווה היא מקור ההשראה של הבית: התוצאה סוערת, מחוספסת, וייחודית
אדריכלות
כשהאורווה היא מקור ההשראה של הבית: התוצאה סוערת, מחוספסת, וייחודית
וילה כפרית - בבניין משותף
תכנון
וילה כפרית - בבניין משותף
מוצרי חשמל במטבח
תכנון
מוצרי חשמל במטבח
הקיר הכחול שנותן את הטון
תכנון
הקיר הכחול שנותן את הטון
עיצוב אמבטיות - הגיגית הגדולה
אדריכלות
עיצוב אמבטיות - הגיגית הגדולה
הכלי שחוסך ליזמי נדל"ן עשרות שעות בחודש
חומרים
הכלי שחוסך ליזמי נדל"ן עשרות שעות בחודש
משלבים בין חדשנות למסורת
אדריכלות
משלבים בין חדשנות למסורת
מעצבים מחדש את הסלון? כך תעשו זאת נכון
תכנון
מעצבים מחדש את הסלון? כך תעשו זאת נכון
TED JACOBS ,  ארה"ב
עיצוב
TED JACOBS , ארה"ב
פרס פסטיבל שיקגו ATHENAEM
חומרים
פרס פסטיבל שיקגו ATHENAEM
מכלומ - עיצוב חידשוני בר קיימא
תכנון
מכלומ - עיצוב חידשוני בר קיימא
עיצוב סקנדינבי - כוחה של מסורת
תכנון
עיצוב סקנדינבי - כוחה של מסורת
"בראייה שלנו צפיפות היא ערך שצריך לשאוף אליו - ולא האויב של העיר"
אדריכלות
"בראייה שלנו צפיפות היא ערך שצריך לשאוף אליו - ולא האויב של העיר"
קפל לי כבשה (או משהו אחר...)
אדריכלות
קפל לי כבשה (או משהו אחר...)
חללים אחרים
אדריכלות
חללים אחרים
תנו לשמש לחדור
אדריכלות
תנו לשמש לחדור
כמו בבתי מלון: מה תפקידו של מעצב פנים?
אדריכלות
כמו בבתי מלון: מה תפקידו של מעצב פנים?
שיק טבעי
תכנון
שיק טבעי
הכי רחוק מהסטנדרט
תכנון
הכי רחוק מהסטנדרט
לכאן תרצו להזמין את החברים: גינה עוטפת עם האט־טאב מדליק
אדריכלות
לכאן תרצו להזמין את החברים: גינה עוטפת עם האט־טאב מדליק
הקו האדום - שיפוץ דירה
תכנון
הקו האדום - שיפוץ דירה
עיצוב הבית עד אחרון הפרטים
אדריכלות
עיצוב הבית עד אחרון הפרטים
חלל תעשייתי בניחוח איטלקי
חומרים
חלל תעשייתי בניחוח איטלקי
הפרקט כאופציה בעיצוב פנים
חומרים
הפרקט כאופציה בעיצוב פנים
עיצוב גינות- עטיפה טבעית לבית
אדריכלות
עיצוב גינות- עטיפה טבעית לבית
עיצוב חכם מתחיל בחללי אחסון
תכנון
עיצוב חכם מתחיל בחללי אחסון
מגמות וחידושים בריצוף וחיפוי פנים הבית 2021-2022
חומרים
מגמות וחידושים בריצוף וחיפוי פנים הבית 2021-2022
אצלנו בסלון
אדריכלות
אצלנו בסלון
Natural Water as Cultural Water - הפרויקט שזה בתחרות ASLA 2013
תכנון
Natural Water as Cultural Water - הפרויקט שזה בתחרות ASLA 2013
אדר' ג'וליאנו פיירונה בעליו של סטודיו CP_A מרצה אורח בכנס בנייה ירוקה 3
חומרים
אדר' ג'וליאנו פיירונה בעליו של סטודיו CP_A מרצה אורח בכנס בנייה ירוקה 3
מפעל חיים
אדריכלות
מפעל חיים
אלמנטים חזקים יוצרים דירה שלא תוכלו לשכוח, ולא בטוח שבמובן החיובי של המילה
אדריכלות
אלמנטים חזקים יוצרים דירה שלא תוכלו לשכוח, ולא בטוח שבמובן החיובי של המילה
עיצוב הבית בתערוכת Maison & Objet
תכנון
עיצוב הבית בתערוכת Maison & Objet
הכירו את המלונאי צ'יפ קונלי
עיצוב
הכירו את המלונאי צ'יפ קונלי
יפה, ירוק, חכם ועובד
אדריכלות
יפה, ירוק, חכם ועובד
דירת גן בוטיק אמיצה בשלושה צבעים בלבד
אדריכלות
דירת גן בוטיק אמיצה בשלושה צבעים בלבד
הבית שנושם חופש
אדריכלות
הבית שנושם חופש
נס חנוכה - גרסת השיפוצים
אדריכלות
נס חנוכה - גרסת השיפוצים
לגור בעיר ולהרגיש בכפר
אדריכלות
לגור בעיר ולהרגיש בכפר
זה לא האיך, זה האיפה: כך תייצרו חלל עבודה יעיל במשרד
חומרים
זה לא האיך, זה האיפה: כך תייצרו חלל עבודה יעיל במשרד
דירה בפתח תקווה: ממקום - לבית
אדריכלות
דירה בפתח תקווה: ממקום - לבית
המעטפת שיודעת למצמץ מול השמש
עיצוב
המעטפת שיודעת למצמץ מול השמש
Hotel Design Blog - Mondrian Hotel  - הרומן האנגלי שלי חלק 3
עיצוב
Hotel Design Blog - Mondrian Hotel - הרומן האנגלי שלי חלק 3
קיר אמיר: חיפוי חזיתות באריחי פורצלן גדולים
חומרים
קיר אמיר: חיפוי חזיתות באריחי פורצלן גדולים
רשת רנואר - חנות הדגל
חומרים
רשת רנואר - חנות הדגל
כאן גרים בכיף
אדריכלות
כאן גרים בכיף
מפסקי חשמל - שלמות במסגרת
חומרים
מפסקי חשמל - שלמות במסגרת
מעטפת עירונית כשפה תרבותית
עיצוב
מעטפת עירונית כשפה תרבותית
שיפוץ דירה - אילוץ שהפך להזדמנות
תכנון
שיפוץ דירה - אילוץ שהפך להזדמנות
זמן להתרענן
תכנון
זמן להתרענן
ליהנות בבית, לבלות בגינה
אדריכלות
ליהנות בבית, לבלות בגינה
בסוף זה עולם של אדריכלות, עיצוב ושיווק, ונשים יודעות לעשות את זה נכון
אדריכלות
בסוף זה עולם של אדריכלות, עיצוב ושיווק, ונשים יודעות לעשות את זה נכון
חומרים חדשים - 117
תכנון
חומרים חדשים - 117
משרדי חברת הראל פיננסים
חומרים
משרדי חברת הראל פיננסים
כך תשרו לביתכם אווירה כפרית רגועה –  המדריך השלם לעיצוב פנים כפרי
אדריכלות
כך תשרו לביתכם אווירה כפרית רגועה – המדריך השלם לעיצוב פנים כפרי
מרחב במפלסים
אדריכלות
מרחב במפלסים
אין דבר כזה פונקציה באדריכלות
אדריכלות
אין דבר כזה פונקציה באדריכלות
לעבוד בסביבה מעוצבת
חומרים
לעבוד בסביבה מעוצבת
שישה טיפים לוהטים למטבח 2014, ברברה ברזין
אדריכלות
שישה טיפים לוהטים למטבח 2014, ברברה ברזין
המרכז הפוטו-וולטאי
אדריכלות
המרכז הפוטו-וולטאי
"נשים שמתנהגות יפה - לא עושות היסטוריה"
עיצוב
"נשים שמתנהגות יפה - לא עושות היסטוריה"
עיצוב הבית באמצעות טכנולוגיות מתקדמות
חומרים
עיצוב הבית באמצעות טכנולוגיות מתקדמות
לעצב במימד נוסף
חומרים
לעצב במימד נוסף
עיצוב מטבחים
חומרים
עיצוב מטבחים
עיצוב ממקום אחר - 107
חומרים
עיצוב ממקום אחר - 107
המרכז לאיגוד ערים לאיכות הסביבה אגן בית נטופה
תכנון
המרכז לאיגוד ערים לאיכות הסביבה אגן בית נטופה
Grand Palais ההיסטורי עתיד לזכות למגע עכשווי
אדריכלות
Grand Palais ההיסטורי עתיד לזכות למגע עכשווי
בחירת צבעים למעטפת הפנימית של הבית
טיפים לעיצוב
בחירת צבעים למעטפת הפנימית של הבית
עיצוב בית ביפן שחזותו מזכירה משחק
אדריכלות
עיצוב בית ביפן שחזותו מזכירה משחק
מקצב של שקט
אדריכלות
מקצב של שקט
טכנולוגיה חדשה תכפיל את גובה גורדי השחקים
אדריכלות
טכנולוגיה חדשה תכפיל את גובה גורדי השחקים
קניתם ספה? קחו טיפים שישמרו עליה נקייה כחדשה
תכנון
קניתם ספה? קחו טיפים שישמרו עליה נקייה כחדשה
אין סופי..., הצעה לעיצוב חדרים בבתי מלון: ציפי לוי - צליל
עיצוב
אין סופי..., הצעה לעיצוב חדרים בבתי מלון: ציפי לוי - צליל
כך נולד “הבית הלבן”: בית משפחתי אלגנטי ומדויק בלב השרון
עיצוב חללי הבית
כך נולד “הבית הלבן”: בית משפחתי אלגנטי ומדויק בלב השרון
חדשות צהובות
עיצוב
חדשות צהובות
בית הפלדה הצהוב
אדריכלות
בית הפלדה הצהוב
החזית של גנסלר
תכנון
החזית של גנסלר
השיטה של נקי כמו חדש לניקוי הדירה?
עיצוב חללי הבית
השיטה של נקי כמו חדש לניקוי הדירה?
דירה - מוסך
אדריכלות
דירה - מוסך
בית שהוא חופשה מתמשכת
אדריכלות
בית שהוא חופשה מתמשכת
"פריסקופטיבה" - תערוכת עיצוב מקומי
אדריכלות
"פריסקופטיבה" - תערוכת עיצוב מקומי
יורולוצ'ה 2009
תכנון
יורולוצ'ה 2009
ArtiShook - אמנות בלב השוק
אדריכלות
ArtiShook - אמנות בלב השוק
יחסי גומלין בין חוץ לפנים
אדריכלות
יחסי גומלין בין חוץ לפנים
איך עיצוב פנים משפיע על תדמית המותג במשרדי פרסום?
אדריכלות
איך עיצוב פנים משפיע על תדמית המותג במשרדי פרסום?
לגור בקובה - עיצוב בית פרטי
אדריכלות
לגור בקובה - עיצוב בית פרטי
במבט ראשון,חלק א' מתוך מגזין 128
עיצוב
במבט ראשון,חלק א' מתוך מגזין 128
קניית ריהוט משרדי משומש
חומרים
קניית ריהוט משרדי משומש
תכנון בית על מגרש מאתגר
אדריכלות
תכנון בית על מגרש מאתגר
צ'רצ'יל והפבורן התארחו בו במאה שעברה - עכשיו המלון בריביירה נפתח מחדש
תכנון
צ'רצ'יל והפבורן התארחו בו במאה שעברה - עכשיו המלון בריביירה נפתח מחדש
Coveri - חנות קונספט
חומרים
Coveri - חנות קונספט
להיות שם
חומרים
להיות שם
חזית מקומית
עיצוב
חזית מקומית
טוסקנה זה כאן
תכנון
טוסקנה זה כאן
עיצוב בתים פרטיים עם חדרי ארונות
עיצוב
עיצוב בתים פרטיים עם חדרי ארונות
להחיות את פנים הבית שלך: 6 סיבות מדוע שטיחים חיוניים בעיצוב
תכנון
להחיות את פנים הבית שלך: 6 סיבות מדוע שטיחים חיוניים בעיצוב
החיפויים האלה בונים חזית עיצובית
חומרים
החיפויים האלה בונים חזית עיצובית
הדרך הנכונה לבית מעוצב – תכנון העיצוב של חללי הבית השונים
תכנון
הדרך הנכונה לבית מעוצב – תכנון העיצוב של חללי הבית השונים
נוף כמרכיב אלמנטרי של עיצוב משרד
חומרים
נוף כמרכיב אלמנטרי של עיצוב משרד