תוכו כברו
אדריכלות

תוכו כברו

מעטפתו הנקייה של הבית שתכנן סטודיו לוי חמיצר כמענה לבקשת דיירים שוחרי מינימליזם, מגלמת גם את המתרחש בתוכו פנימה: צבעוניות מונוכרומאטית, צמצום חומרי, ואור יום המהווה חומר לכל דבר מייצרים חלל תמציתי ואפילו זני משהו

חזיתו הקדמית של הבית: קומפוזיציה של נפחים נקיי קווים, ותהליך כניסה מזמין הנובע ממיקומו שנקבע נמוך ממפלס הרחוב. פתח במבואת הכניסה החיצונית מאפשר להישיר מבט עד מרחב החוץ והבריכה.

חזיתו הקדמית של הבית: קומפוזיציה של נפחים נקיי קווים, ותהליך כניסה מזמין הנובע ממיקומו שנקבע נמוך ממפלס הרחוב. פתח במבואת הכניסה החיצונית מאפשר להישיר מבט עד מרחב החוץ והבריכה.

חזיתו הקדמית של הבית: קומפוזיציה של נפחים נקיי קווים, ותהליך כניסה מזמין הנובע ממיקומו שנקבע נמוך ממפלס הרחוב. פתח במבואת הכניסה החיצונית מאפשר להישיר מבט עד מרחב החוץ והבריכה.

את מופעו המינימליסטי של הבית שתכננו האדריכל דולפי לוי והמעצבת עדי חמיצר בעמק חפר, קשה להחמיץ- מבנה מדויק הנרקם משלושה גושים לבנים ונקיי קווים. למרות שהסגנון התקבע בשנים האחרונות כמגמה רווחת, במקרה דנן, אומרים לוי וחמיצר "המבניות המינימליסטית נטוותה כמענה לבקשת הדיירים ולא כנהייה אחר הטרנדי והעכשווי. ה'פשטות' והמינימליזם הולמים את אופיים, את תפיסת עולמם, ואת אורח החיים שהם מנהלים וניהלו מאז ומתמיד". בתוך כך, גם הפרוגראמה הייתה 'מינימליסטית' מבחינת דרישות. למעט הגדרה נחרצת לצבעוניות מונוכרומאטית של גוון לבן עם "תיבולים" של שחור ואפור, ובקשה לייצר חדרי ילדים קטנים יחסית עם מרחב משותף ש"ימשוך" אותם החוצה לבלות יחד, ניתנה ללוי וחמיצר יד חופשית ותהליך התכנון זרם כדיאלוג פורה ונעים.

מבואת הכניסה החיצונית, מבט מבחוץ.

מבואת הכניסה החיצונית, מבט מבחוץ.

מבואת הכניסה החיצונית, מבט מבחוץ.

מבואת הכניסה החיצונית, מבט מבחוץ.

המגרש הגדול (4 דונם, חלק מנחלה) עליו נבנה הבית ממוקם בין כביש ראשי לבין מרחב של טבע פתוח, ושטחו המלבני-מאורך הולך וזורם מטה מדרום לצפון בשיפוע הדרגתי קל. בהתייחס לנתונים אלה התגבש הרעיון האדריכלי שהפנה את המבנה אל המרחב הירוק הנפרש מולו, וקבע את העמדתו נמוך מעט ממפלס הרחוב תוך יצירת תהליך כניסה מזמין העובר דרך גינה קדמית מטופחת. כך, בעוד החזית הקדמית הפונה אל הרחוב סגורה יחסית ומיקומו הנמוך של הבית "ממתן" את נוכחות חזותו הלבנה בסביבה הכפרית הסובבת אותו, החזית האחורית מאופיינת בפתיחות רבה ומנצלת עד תום את מלוא מראות הגן, הבריכה והטבע המשתרעים נכחה.

גרם המדרגות והקיר הנמוך שתוחם את מהלכו התחתון כעין קונזולה המגדירה אזור מבואה.

גרם המדרגות והקיר הנמוך שתוחם את מהלכו התחתון כעין קונזולה המגדירה אזור מבואה.

3	מבט

3 מבט "הפוך" מתוך חלל הפנים אל עבר השביל המוליך אליו.

הקונספט הצורני הושתת על קומפוזיציה של נפחים המקושרים ביניהם באמצעות פטיו, כאשר כל נפח מכיל ומשרת פונקציה אחרת. לוי וחמיצר: "תפיסת העולם שלנו היא בתים 'שעובדים', שקל לחיות בהם. הנקודה הכי משמעותית מבחינתנו היא כשהפונקציונאליות מתמזגת עם הקומפוזיציה, וההתמזגות הזו היא, למעשה, הבית". 

חלל המדרגות: מדרגות ברזל שחורות, מעקה שקוף, וקרני שמש החודרות מבעד פתח בחלקו העליון משרטטות דיגומים גראפיים על הקירות והרצפה. ריצוף הקומה בוצע בבטון מוחלק וקירותיה לבנים.

חלל המדרגות: מדרגות ברזל שחורות, מעקה שקוף, וקרני שמש החודרות מבעד פתח בחלקו העליון משרטטות דיגומים גראפיים על הקירות והרצפה. ריצוף הקומה בוצע בבטון מוחלק וקירותיה לבנים.

גרם המדרגות והקיר הנמוך שתוחם את מהלכו התחתון כעין קונזולה המגדירה אזור מבואה.

גרם המדרגות והקיר הנמוך שתוחם את מהלכו התחתון כעין קונזולה המגדירה אזור מבואה.

את שביל המעבר היורד אל הבית חותמת מבואה חיצונית, ופתח שקוף הקבוע לצד הדלת ומאפשר להישיר מבט החוצה את חלל הפנים עד הבריכה והמרחב הירוק שמעבר לה, מהווה רמז לבאות. עם הכניסה פנימה מסתבר כי "תוכו כברו", כאשר ניקיון החוץ המעטפת אכן ממשיך כאן כמרחב הנקרא בבהירות ומייצר שקט בעיניים-  צבעוניות מונוכרומאטית, צמצום חומרי, ואור יום טבעי המגיע מפתחים גדולים ומשרטט דיגומים גיאומטריים על פני הקירות והרצפה, חוברים למארג תמציתי מהודק, חף מאלמנטים מיותרים ואפילו זני משהו. 

במעבר אל האזור הציבורי חולפים על פני פטיו המחבר בין שני הנפחים שאף

במעבר אל האזור הציבורי חולפים על פני פטיו המחבר בין שני הנפחים שאף "מרחיק" בכך את הבית הסמוך ובשטחו משתלבת במת דק עם ג׳קוזי.

חלל המדרגות: מדרגות ברזל שחורות, מעקה שקוף, וקרני שמש החודרות מבעד פתח בחלקו העליון משרטטות דיגומים גראפיים על הקירות והרצפה. ריצוף הקומה בוצע בבטון מוחלק וקירותיה לבנים.

חלל המדרגות: מדרגות ברזל שחורות, מעקה שקוף, וקרני שמש החודרות מבעד פתח בחלקו העליון משרטטות דיגומים גראפיים על הקירות והרצפה. ריצוף הקומה בוצע בבטון מוחלק וקירותיה לבנים.

חלוקת החלל נפרשת על שתי קומות+קומת מרתף (ראה תכניות), וגרם המדרגות המחבר ביניהן ממוקם כמו על קו התפר בין שני נפחי/ אזורי קומת הכניסה. בחלק העליון של חללו הגבוה משתלב פתח המחדיר פנימה אור יום טבעי, וקיר נמוך התוחם את מהלכו התחתון (המוביל לקומת המרתף) מהווה מעין "קונזולה" שמגדירה אזור מבואה. קומת הכניסה מכילה אזור ציבורי הממוקם בעומקה ונפתח במלואו אל החוץ, יחידת הורים וחדר עבודה הממוקמים בחלקה הקדמי משני עברי הכניסה, ופטיו המחבר בין שני הנפחים. במעבר לאזור הציבורי חולפים על פני הפטיו שקיומו כמו מרחיק את הבית הסמוך ומזכה את העוברים בתחושת חוץ מצד זה של הבית, ופטיו נוסף משתלב גם בצדו השני, ביציאה מפינת האוכל. 

איזור הסלון שבחלל המגורים: שקיפות, מינימליזם וקשר הדוק עם החוץ.  תאורה:

איזור הסלון שבחלל המגורים: שקיפות, מינימליזם וקשר הדוק עם החוץ. תאורה: "טריגון ים".

במעבר אל האזור הציבורי חולפים על פני פטיו המחבר בין שני הנפחים שאף

במעבר אל האזור הציבורי חולפים על פני פטיו המחבר בין שני הנפחים שאף "מרחיק" בכך את הבית הסמוך ובשטחו משתלבת במת דק עם ג׳קוזי.

הקומה העליונה מכילה את חדרי הילדים שתוכננו כסוויטות קטנות עם חדרי רחצה צמודים, כששניים מהם חולקים מרפסת משותפת הפונה לכיוון צפון ובחדר השלישי ישנה מרפסת הפונה לכיוון מערב. בתוך כך, כל חדרי הקומה נהנים מקשר אל החוץ, ובהתאם לבקשת הפרוגראמה הם חובקים חלל מרכזי המהווה פינת משפחה נעימה לפעילויותיהם המשותפות. קומת המרתף כוללת בשטחה חדר משחקים וקולנוע, מקלט, חדר רחצה נוסף, ויציאה אל חצר אנגלית המשמשת כפטיו נעים. 

המטבח שבחלל הציבורי: יחידת אי שחורה, יחידת קיר המכילה אחסון ומכשירי חשמל, ומעין

המטבח שבחלל הציבורי: יחידת אי שחורה, יחידת קיר המכילה אחסון ומכשירי חשמל, ומעין "גומחה" המכילה את משטח העבודה והכיור וארונות עליונים. המשטח הרחב במיוחד וחזיתות הארונות העליונים עשויים קוריאן לבן. מטבח: "סמל" .

איזור הסלון שבחלל המגורים: שקיפות, מינימליזם וקשר הדוק עם החוץ.  תאורה:

איזור הסלון שבחלל המגורים: שקיפות, מינימליזם וקשר הדוק עם החוץ. תאורה: "טריגון ים".

 פלטת הצבעים והחומרים נשענת על הגוונים שהוגדרו ומייצרת מסגרת חלל מובחנת מאד: ריצוף קומת הכניסה בוצע בבטון מוחלק, בחדרי השינה משמש פרקט לבן אטום, קירות הבית נצבעו בלבן, הפתחים הגדולים, שמרביתם ויטרינות, נתונים במסגרות אלומיניום שחורות, וגרם המדרגות המלווה במעקה שקוף בוצע מברזל שחור. התאורה בבית מתבססת על גופים שקועים וצמודי תקרה ללא כל שילובים דקורטיביים, ונקודות הצבע המועטות שמשתלבות בחלל מגיעות מפריטי הריהוט שאף הם שולבו "במשורה". 

3	מבט

3 מבט "הפוך" מתוך חלל הפנים אל עבר השביל המוליך אליו.

המטבח שבחלל הציבורי: יחידת אי שחורה, יחידת קיר המכילה אחסון ומכשירי חשמל, ומעין

המטבח שבחלל הציבורי: יחידת אי שחורה, יחידת קיר המכילה אחסון ומכשירי חשמל, ומעין "גומחה" המכילה את משטח העבודה והכיור וארונות עליונים. המשטח הרחב במיוחד וחזיתות הארונות העליונים עשויים קוריאן לבן. מטבח: "סמל" .

המטבח משלב קיר ארונות המכיל מכשירי חשמל אינטגראליים, יחידת אי שחורה,  ואזור כיור+ משטח עבודה. אזור זה נתון במעין "גומחה" שהתקבלה מקורת גבס עליונה הזורמת כרצף המשכי מקיר הארונות, כשהיא מעמיקה אותו ואגב כך מייצרת נפח מתאים למשטח עבודה נדיב ממדים בעומק 90 ס"מ. המשטח, כמו גם הכיור המוטמע בתוכו כחלק בלתי נפרד, חיפוי הקיר מעליו וחזיתות הארונות העליונים, עשויים קוריאן המקנה מופע מהוקצע למשעי, והחזיתות האחרות עשויות MDF בגימור צבע לבן אטום. 

רצף ויטרינות במסגרות אלומיניום שחורות מייצר בחלל הציבורי חזית שקופה הנמשכת מקצה לקצה וחושפת את מלוא מראות החוץ. פתחים:

רצף ויטרינות במסגרות אלומיניום שחורות מייצר בחלל הציבורי חזית שקופה הנמשכת מקצה לקצה וחושפת את מלוא מראות החוץ. פתחים: "אפקס".

יחידת ההורים נהנית מיציאה ישירה אל הפטיו שבשטחו משתלבת במת דק שבמרכזה ניצב ג'קוזי מפנק, והיא נחלקת לאזורי שינה וארונות. את ההפרדה ביניהם מייצרת יחידה בנויה שצדה האחד משמש כגב מיטה, צדה השני פונה לאזור הארונות, ומשני עבריה ישנם מעברים נוחים אליו. חללו תוכנן בהתאמה למעברים אלה כך שכל אחד מהם "פוגש" יחידת ארונות פינתית ובמרווח בין השתיים קבועה הכניסה לאזור הרחצה.   

12-13	יחידת ההורים שבקדמת קומת הקרקע: יחידה בנויה מפרידה בין אזורי השינה והארונות תוך יצירת מעברים נוחים אליו. כל אחד מעבריו כולל יחידות אחסון פינתיות שביניהן ממוקמת הכניסה לחדר הרחצה. נגרות:

12-13 יחידת ההורים שבקדמת קומת הקרקע: יחידה בנויה מפרידה בין אזורי השינה והארונות תוך יצירת מעברים נוחים אליו. כל אחד מעבריו כולל יחידות אחסון פינתיות שביניהן ממוקמת הכניסה לחדר הרחצה. נגרות: "באום נגרות בע"מ", ריצוף פרקט: "פרקטים".

רצף ויטרינות במסגרות אלומיניום שחורות מייצר בחלל הציבורי חזית שקופה הנמשכת מקצה לקצה וחושפת את מלוא מראות החוץ. פתחים:

רצף ויטרינות במסגרות אלומיניום שחורות מייצר בחלל הציבורי חזית שקופה הנמשכת מקצה לקצה וחושפת את מלוא מראות החוץ. פתחים: "אפקס".

מרחב החוץ הנפרש לעין מהאזור הציבורי משתפל קלות בקצב נעים ומעניק תחושת אינסוף כלשהי. ביציאה ממנו ישנו דק עץ המשמש כרחבת ישיבה, שממנה ממשיך השטח "לרדת" אל רחבה מרוצפת בקדמת בריכת שחייה שתכנונה כבריכת גלישה מייצר משטח כחול שלאחריו משתרע מרחב טבע ירוק. אלה, למעשה, הם כתמי הצבע העזים ביותר בסיפורו של הבית שגובש ונארג בהתאמה מדויקת לצרכי דייריו ולהעדפותיהם האסתטיות, ואכן מגלם מפגש של קומפוזיציה ופונקציונאליות- בית "של שקט", שאור טבעי מהווה בו חומר לכל דבר וגונו הלבן אך מעצים את איכויות חלליו ואת נוכחות הסביבה הכפרית. 

החלל המשותף שבקומה העליונה: כל חללי החדרים תוכננו כסוויטות קטנות וכולם פונים למרפסות המעניקות קשר עם החוץ גם בגובה.

החלל המשותף שבקומה העליונה: כל חללי החדרים תוכננו כסוויטות קטנות וכולם פונים למרפסות המעניקות קשר עם החוץ גם בגובה.

12-13	יחידת ההורים שבקדמת קומת הקרקע: יחידה בנויה מפרידה בין אזורי השינה והארונות תוך יצירת מעברים נוחים אליו. כל אחד מעבריו כולל יחידות אחסון פינתיות שביניהן ממוקמת הכניסה לחדר הרחצה. נגרות:

12-13 יחידת ההורים שבקדמת קומת הקרקע: יחידה בנויה מפרידה בין אזורי השינה והארונות תוך יצירת מעברים נוחים אליו. כל אחד מעבריו כולל יחידות אחסון פינתיות שביניהן ממוקמת הכניסה לחדר הרחצה. נגרות: "באום נגרות בע"מ", ריצוף פרקט: "פרקטים".

מרחב החוץ שקבע, למעשה, את העמדת הבית כך שייפתח אליו. רחבת דק ביציאה מהחלל הציבורי, ירידה קלה לרחבה מרוצפת התוחמת בריכת שחייה שתוכננה כבריכת גלישה, וירידה קלה נוספת לשטח ירוק המשתרע בהמשך.

מרחב החוץ שקבע, למעשה, את העמדת הבית כך שייפתח אליו. רחבת דק ביציאה מהחלל הציבורי, ירידה קלה לרחבה מרוצפת התוחמת בריכת שחייה שתוכננה כבריכת גלישה, וירידה קלה נוספת לשטח ירוק המשתרע בהמשך.

החלל המשותף שבקומה העליונה: כל חללי החדרים תוכננו כסוויטות קטנות וכולם פונים למרפסות המעניקות קשר עם החוץ גם בגובה.

החלל המשותף שבקומה העליונה: כל חללי החדרים תוכננו כסוויטות קטנות וכולם פונים למרפסות המעניקות קשר עם החוץ גם בגובה.

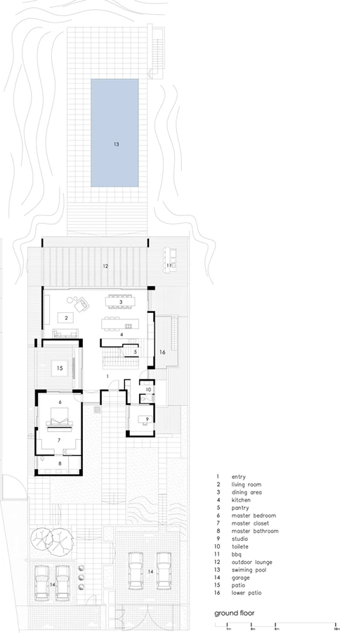
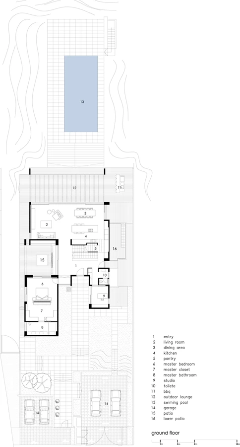
קומת קרקע.

קומת קרקע.

קומה א׳.

קומה א׳.

מרחב החוץ שקבע, למעשה, את העמדת הבית כך שייפתח אליו. רחבת דק ביציאה מהחלל הציבורי, ירידה קלה לרחבה מרוצפת התוחמת בריכת שחייה שתוכננה כבריכת גלישה, וירידה קלה נוספת לשטח ירוק המשתרע בהמשך.

מרחב החוץ שקבע, למעשה, את העמדת הבית כך שייפתח אליו. רחבת דק ביציאה מהחלל הציבורי, ירידה קלה לרחבה מרוצפת התוחמת בריכת שחייה שתוכננה כבריכת גלישה, וירידה קלה נוספת לשטח ירוק המשתרע בהמשך.

קומת קרקע.

קומת קרקע.

קומה א׳.

קומה א׳.

כתבות נוספות

הקפלה בוייטנאם של a21studio זוכה בתחרות WAF World Building לשנת 2014
אדריכלות
הקפלה בוייטנאם של a21studio זוכה בתחרות WAF World Building לשנת 2014
ליהנות מהסתיו באמצעות עיצוב גינה מושכל
אדריכלות
ליהנות מהסתיו באמצעות עיצוב גינה מושכל
מילאנו אהובתי
תכנון
מילאנו אהובתי
המהפך המנצנץ של פדני
חדשנות וטכנולוגיה
המהפך המנצנץ של פדני
אינובייט - Optimize Your Mind
חדשנות וטכנולוגיה
אינובייט - Optimize Your Mind
כך הפך גרם המדרגות הישן מחיסרון ליתרון והקיר בכניסה למטמון
אדריכלות
כך הפך גרם המדרגות הישן מחיסרון ליתרון והקיר בכניסה למטמון
בית ילדותי
תכנון
בית ילדותי
מיסטריאל - אמנות בנגרות
חדשנות וטכנולוגיה
מיסטריאל - אמנות בנגרות
כשלא הכל שחור או לבן
אדריכלות
כשלא הכל שחור או לבן
עיצוב חדרי ילדים ונוער
עיצוב
עיצוב חדרי ילדים ונוער
פתרונות חדשניים מובילים לדלתות במעטפת המבנה
עיצוב
פתרונות חדשניים מובילים לדלתות במעטפת המבנה
תערוכות בוגרים במחלקות לאדריכלות ועיצוב
תכנון
תערוכות בוגרים במחלקות לאדריכלות ועיצוב
סדנה למלונאים בנושא: הדרך ליצור חווית לקוח ייחודית, רווחית ובלתי נשכחת
תכנון
סדנה למלונאים בנושא: הדרך ליצור חווית לקוח ייחודית, רווחית ובלתי נשכחת
האדריכל והמעצב מיקלה דה לוקי - ראיון
תכנון
האדריכל והמעצב מיקלה דה לוקי - ראיון
שנה חדשה מתחילים עם ZAGA
תכנון
שנה חדשה מתחילים עם ZAGA
מקומפלקס קבלני לוילה משודרגת
אדריכלות
מקומפלקס קבלני לוילה משודרגת
עובדים על משטחים
תכנון
עובדים על משטחים
עיצוב חדרים עם מערכת סולרית פסיבית
תכנון
עיצוב חדרים עם מערכת סולרית פסיבית
חללים משותפים בהתאמה אישית
חדשנות וטכנולוגיה
חללים משותפים בהתאמה אישית
Grand Palais ההיסטורי עתיד לזכות למגע עכשווי
אדריכלות
Grand Palais ההיסטורי עתיד לזכות למגע עכשווי
בית ארבע הזרועות
אדריכלות
בית ארבע הזרועות
ה"טבע" מעצב לך משרד
חדשנות וטכנולוגיה
ה"טבע" מעצב לך משרד
בהשראת הים
אדריכלות
בהשראת הים
אקדמיה ותעשייה
חדשנות וטכנולוגיה
אקדמיה ותעשייה
ברוכים הבאים: איך מעצבים תחושת הזמנה במבואת כניסה
תכנון
ברוכים הבאים: איך מעצבים תחושת הזמנה במבואת כניסה
מים שקטים חודרים עמוק
אדריכלות
מים שקטים חודרים עמוק
ישן מפני חדש תשאירו
אדריכלות
ישן מפני חדש תשאירו
מרחב אחד, המון חיבורים
אדריכלות
מרחב אחד, המון חיבורים
חגיגה של צללים
חדשנות וטכנולוגיה
חגיגה של צללים
כשכל תהליך הבנייה מנוהל תחת קורת גג אחת
תכנון
כשכל תהליך הבנייה מנוהל תחת קורת גג אחת
הפתרון הישראלי שיישנה את פני בתי-המלון בארה"ב
חדשנות וטכנולוגיה
הפתרון הישראלי שיישנה את פני בתי-המלון בארה"ב
מוצרים מפנקים ומעוצבים לחורף
תכנון
מוצרים מפנקים ומעוצבים לחורף
על לוח לבנו: המדיניות האקולוגית של EGGER
עיצוב
על לוח לבנו: המדיניות האקולוגית של EGGER
כמו מבטן האונייה
אדריכלות
כמו מבטן האונייה
מדידה ארגונית בתהליך עיצוב סביבת העבודה
חדשנות וטכנולוגיה
מדידה ארגונית בתהליך עיצוב סביבת העבודה
ביתני תצוגה ישראליים במילאנו 2008
אדריכלות
ביתני תצוגה ישראליים במילאנו 2008
עיצוב "סנדוויץ בר"
תכנון
עיצוב "סנדוויץ בר"
הצורך הוא אבי ההמצאה
עיצוב
הצורך הוא אבי ההמצאה
בית לגדולים שילדים אוהבים
אדריכלות
בית לגדולים שילדים אוהבים
עיצוב בירוק
חדשנות וטכנולוגיה
עיצוב בירוק
מעבר משרד בצורה יעילה
חדשנות וטכנולוגיה
מעבר משרד בצורה יעילה
פרויקט לאונרדו
אדריכלות
פרויקט לאונרדו
עיצוב הבית באמצעות טכנולוגיות מתקדמות
חדשנות וטכנולוגיה
עיצוב הבית באמצעות טכנולוגיות מתקדמות
מה הקשר בין עיצוב בתי המלון בארץ למיתוג אמסטרדם?
עיצוב
מה הקשר בין עיצוב בתי המלון בארץ למיתוג אמסטרדם?
מסדרון שיתופי הפעולה
חדשנות וטכנולוגיה
מסדרון שיתופי הפעולה
תערוכת הרהיטים מילאנו 2010
אדריכלות
תערוכת הרהיטים מילאנו 2010
שם קוד: עיצוב ירוק
חדשנות וטכנולוגיה
שם קוד: עיצוב ירוק
הצצה לבתי האלפיון העליון
תכנון
הצצה לבתי האלפיון העליון
תערוכת הטקסטיל לבית HEIMTEXTIL חוזרת בגדול
אדריכלות
תערוכת הטקסטיל לבית HEIMTEXTIL חוזרת בגדול
הצבעוניות נמצאת בפרטים הקטנים
תכנון
הצבעוניות נמצאת בפרטים הקטנים
עיצוב ברזים
עיצוב
עיצוב ברזים
דיור בר קיימא - שכונת קיימא צומחת
תכנון
דיור בר קיימא - שכונת קיימא צומחת
פתרונות ישיבה מעוצבים לכל פינה בבית
חדשנות וטכנולוגיה
פתרונות ישיבה מעוצבים לכל פינה בבית
מספרת אבי מלכה במרכז ניצן בקריית-ים
חדשנות וטכנולוגיה
מספרת אבי מלכה במרכז ניצן בקריית-ים
AUPING Essential - תתכווננו לישון נפלא!
עיצוב
AUPING Essential - תתכווננו לישון נפלא!
טיפים על טפטים
תכנון
טיפים על טפטים
אחרי השיפוץ - פנים חדשות לבית קיים
אדריכלות
אחרי השיפוץ - פנים חדשות לבית קיים
"...שלוש ארבע ולעבודה..."
חדשנות וטכנולוגיה
"...שלוש ארבע ולעבודה..."
מדעי האור
אדריכלות
מדעי האור
שיתוף פעולה בין אומן העץ שרון סהר ומעצב הפנים ניר קיסר
עיצוב
שיתוף פעולה בין אומן העץ שרון סהר ומעצב הפנים ניר קיסר
'סנטר פיס'- על השולחן, בחול ובמועד
עיצוב
'סנטר פיס'- על השולחן, בחול ובמועד
מרגישים הכי בבית במשרד
חדשנות וטכנולוגיה
מרגישים הכי בבית במשרד
"אם זה החלום של הלקוח מחובתי להגשים אותו"
אדריכלות
"אם זה החלום של הלקוח מחובתי להגשים אותו"
מוטיב מרכזי זורם ואמורפי בעיצוב בנק בשוויץ
חדשנות וטכנולוגיה
מוטיב מרכזי זורם ואמורפי בעיצוב בנק בשוויץ
הרמוניה של פנים וחוץ
אדריכלות
הרמוניה של פנים וחוץ
מחדר משחקים במרפסת לחדר גיימינג חלומי: חלל הילדות הפך למרחב בוגר וחווייתי
עיצוב
מחדר משחקים במרפסת לחדר גיימינג חלומי: חלל הילדות הפך למרחב בוגר וחווייתי
שימור מבנה היסטורי לצד בית חדש
אדריכלות
שימור מבנה היסטורי לצד בית חדש
לא תכירו אותה
תכנון
לא תכירו אותה
המטבח – לב הבית – טיפים לתכנון פונקציונלי
תכנון
המטבח – לב הבית – טיפים לתכנון פונקציונלי
"דה ניידי" - תערוכת עיצוב
אדריכלות
"דה ניידי" - תערוכת עיצוב
מסורת ועכשוויות בקוריאה
אדריכלות
מסורת ועכשוויות בקוריאה
לגור בקובה - עיצוב בית פרטי
אדריכלות
לגור בקובה - עיצוב בית פרטי
הבית שמבקש שקט: למה כולנו נמשכים עכשיו לעיצוב יפני
עיצוב בתים פרטיים ודירות
הבית שמבקש שקט: למה כולנו נמשכים עכשיו לעיצוב יפני
תכנון גינה בגליל העליון
אדריכלות
תכנון גינה בגליל העליון
תכנון ועיצוב משרדי חברת NEXT INSURANCE  בפרויקט אושירה, כפר סבא
חדשנות וטכנולוגיה
תכנון ועיצוב משרדי חברת NEXT INSURANCE בפרויקט אושירה, כפר סבא
צבעים, אפקטים וטייחים בחיפוי הבית
חדשנות וטכנולוגיה
צבעים, אפקטים וטייחים בחיפוי הבית
תחת שמי ים התיכון
אדריכלות
תחת שמי ים התיכון
עיצוב מקלחת
אדריכלות
עיצוב מקלחת
עיצוב עתידני
חדשנות וטכנולוגיה
עיצוב עתידני
גיליון ינואר-פברואר
עיצוב
גיליון ינואר-פברואר
עיצוב מוצר - סיפריות
תכנון
עיצוב מוצר - סיפריות
עיצוב דירה בחיפה מול הים
אדריכלות
עיצוב דירה בחיפה מול הים
הצבע ירוק, העתיד ורוד
חדשנות וטכנולוגיה
הצבע ירוק, העתיד ורוד
המגמה שעושה פלאים בבית הישראלי
אדריכלות
המגמה שעושה פלאים בבית הישראלי
הבית שתפור למידותיהן המדוייקות של הילדים
אדריכלות
הבית שתפור למידותיהן המדוייקות של הילדים
קטנה בעיר הגדולה
תכנון
קטנה בעיר הגדולה
אוהבים לארח
אדריכלות
אוהבים לארח
חומרים חדשים - 110
תכנון
חומרים חדשים - 110
בית האופנה L'etranger
חדשנות וטכנולוגיה
בית האופנה L'etranger
מצעים מעוצבים
תכנון
מצעים מעוצבים
סיפור אהבה בין פנים וחוץ
אדריכלות
סיפור אהבה בין פנים וחוץ
איזה סיפור הבית שלך מספר?
תכנון
איזה סיפור הבית שלך מספר?
הבית הלבן
אדריכלות
הבית הלבן
עיצוב ל"סיעור מוחות"
חדשנות וטכנולוגיה
עיצוב ל"סיעור מוחות"
בין משרבייה לקרניזים: הבית החדש בהוד השרון
אדריכלות
בין משרבייה לקרניזים: הבית החדש בהוד השרון
להגשים חלום על שלד: וילה מעוצבת בלב השפלה
אדריכלות
להגשים חלום על שלד: וילה מעוצבת בלב השפלה
מענק בינלאומי לאדריכלים צעירים ומבטיחים
אדריכלות
מענק בינלאומי לאדריכלים צעירים ומבטיחים
אדריכלות בימי הביניים
אדריכלות
אדריכלות בימי הביניים
מדרום קוריאה - בית יוצא דופן בהשראת מלחמת הכוכבים
אדריכלות
מדרום קוריאה - בית יוצא דופן בהשראת מלחמת הכוכבים
מתחם סלקום ווליום בדרכים
חדשנות וטכנולוגיה
מתחם סלקום ווליום בדרכים