שיפוץ דירה - בין צירי הזמן
תכנון

שיפוץ דירה - בין צירי הזמן

בתכנונה המחודש של דירה השוכנת בבניין שעבר שימור בתל אביב, שיוותה לה האדריכלית תמי אורנשטיין ערכי נוחות ופונקציונאליות תוך התכתבות הדוקה עם ממד העבר השזור בה ומתאים להכלת התכנים האישיים של הדייריה

סיפורה של הדירה השוכנת בבניין מגורים ישן שעבר שימור, בתל אביב, הוא גם סיפור של שימור אווירה וארומת עבר השזורות בסוג זה של דירות, גם לאחר שיפוץ דירות המחדש את ימיהן "מעצם הווייתם, תהליכי שימור בניינים מתמקדים בחזותו החיצונית של הבית, כאשר בתוך הדירות עצמן ניתן לעתים למצוא עולם מודרני לחלוטין, שאינו "מדבר" עם החוץ בשום דרך" אומרת האדריכלית תמי אורנשטיין, שבידיה הופקד תכנונה המחודש של דירה כזו בלב תל אביב - דירה ששטחה משתרע על 110 מ"ר, אחרי שבמסגרת השימור היא זכתה לתוספת שטח של 30 מ"ר, כתוצר של הרחבה שבוצעה בעורף הבניין והפכה אותו, למעשה, לחזית נוספת.

  

"מטרת התכנון הייתה לייצר אמירה עיצובית שתשתלב באופיו ההיסטורי של השימור ואף תתמוך בו, ובמקביל לשוות לחלל ערכים פונקציונאליים ועכשוויים המתקשרים ומיישרים קו עם אורחות החיים של המאה העשרים ואחת"  מסבירה אורנשטיין את הרעיון שהנחה אותה. בשלב הראשון הוסרו כל קירות הפנים, בפתחים הקיימים הותקנו חלונות עץ לבנים "נאמנים למקור", וחלוקת החלל החדשה בוצעה בהתאם לדרישות הפרוגראמה של הדיירים שעיסוק באמנות הוא גורם מוביל בחייהם: יצירת חמישה חדרים - סלון, יחידת הורים, שני חדרי ילדים וחדר עבודה, וכן שילוב פתרונות אחסון לספרים הרבים המצויים ברשותם. חלוקת החלל החדשה מיקמה את אזורי המטבח והסלון במרחב אחד ואת אזור החדרים כאגף נפרד, (ראה תוכניות) ובחירת החומרים נועדה לייצר רקע שקט שיאפשר את השתלבותם של אלמנטים קיימים מעולם התוכן של הדיירים, דוגמת עבודות אמנות ופריטי ריהוט עתיקים שנאספו עם השנים. לריצוף חלל המטבח-סלון נבחרו אריחים במראה המדמה בטון, אגף החדרים רוצף ברצפת עץ אלון מובהר, והקירות נצבעו במערכת גוונים רגועה הנעה מאופ-וויט לגון זית.

חדרה של הבת, ספוג בממד העבר שמודגש באמצעות פריטים שנאספו עם השנים, דוגמת עגלת בובות מלבבת.

בנוסף, על שני קירות בחלל - בסלון ובמטבח, שולב חיפוי בלבני סיליקט כתוספת של עניין חומרי-צורני, כמו גם כאזכור לעברו ההיסטורי של הבית "הרבה אנשים נוהגים היום לייבא לבני פירוק ממקומות שונים בעולם, אך אלה המשמשות בדירה הן "יבוא מקומי" שמקורו בחלל עצמו. לבנים שיוצרו בתחילת המאה הקודמת ו"נשלפו" מהקירות החשופים" מסבירה אורנשטיין את התהליך, שבמסגרתו נחתכו הלבנים המקוריות בזהירות רבה והודבקו שנית על הקירות: על קיר המעטפת אליו צמודה פינת הישיבה ובה הוא משמש רקע למסך פלסמה שנתלה עליו, ועל חלקו העליון של קיר המטבח. לצד ארומת העבר שיוצקות הלבנים לחלל, שולבו בו בניות גבס המייצגות את ההווה ואת ה"כאן ועכשיו", כאשר בתוך כך "נתפרים" שני ממדי הזמן באורח הרמוני. כך, למשל, המשכו של קיר הלבנים בסלון היא גומחה בנויה שבתוכה שולבו מדפי ספרים עם תאורה שקועה בתחתיתם, וספסל/מדף נמוך שתוכנן בחלקה התחתון ממשיך וזורם גם למרגלות קיר הלבנים (עד החלון שבעומק החלל), כאלמנט רב תכליתי המשמש להצבת פריטי נוי, מכשור נדרש, ואף לישיבה. סופו של הספסל/מדף נתחם בעמוד בנוי החובר לקורה עליונה מקורית, אשר טרום ההרחבה והשיפוץ סימנה את "סוף" החלל, ובמסגרתו זכתה לקבל נוכחות בעלת משמעות: היא הודגשה באמצעות צביעה, ולצד והעמוד שנוסף לה נוצרה מעין "אוזן" המשמשת כאלמנט חוצץ בין פינת הישיבה והקריאה שבמבואה לאגף המגורים, כסוג של הגדרה ו"סיום פרק". אלמנט בנוי אחר, תוכנן בקצה המטבח שגובל בפינת הישיבה: צמד עמודים "המטפס" עד התקרה, כשביניהם משולבים מדפי עץ המאכלסים עבודות קרמיקה של  בעלת הבית שהינה אמנית בתחום. אלמנט זה משמש אף הוא להגדרת האזורים, ובה בעת, בהיותו פתוח, הוא מייצר קשר עם המשך החלל ומאפשר חדירת אור היישר אל משטחי העבודה במטבח.

המרחב הציבורי הכולל סלון ומטבח. גומחה בנויה עם מדפי ספרים שנוכחותם מעשירה את החלל בתוכן נוסף, ולמרגלותיה ספסל בנוי שרץ לכל אורכו של הקיר

תאורת החלל הציבורי מתקבלת בעיקר מגופי תלייה דקורטיביים שאופן תלייתם הלא שגרתי מעוגן בקונספט הרעיוני של התכנון: בארבע פינותיו נתלו ארבעה אהילים זהים שכמו מסמנים את המרחב ובעיצובם המסורתי מדגישים-מסמלים את ממד העבר, כאשר האור הצהוב שהם מפיצים מרכך את גונו האפור של הריצוף ואף תורם ל"יישון" האווירה. גופים תלויים נוספים שולבו בחלל  מעל מוקדים דוגמת שולחן האוכל, ובמדפים ו/או באלמנטים בנויים נקבעו גופים שקועים המאירים אותם נקודתית. ככלל, הרצון להשתלב באופיו ההיסטורי של השימור, בא לידי ביטוי במרקם הביתי חמים שמאפיין את החלל- מרחב שהאמירה האישית והזיקה לעבר מובילות את עיצובו החף מכל צווי אופנה כאלה או אחרים. שפתו האסתטית מתקבלת בעיקר מנוכחותם של תכנים אישיים והקשרים מעודנים שיצרה אורנשטיין באמצעות צבע וחומר. כך, לדוגמה, פריטי הריהוט מתכתבים בצבעם עם צבעי העץ של החלונות, כמו גם עם העץ הטבעי שממנו עשוי חלק נכבד של מדפי הספרים המשולבים בחללי הדירה השונים. ממדי העבר והעכשוויות משתלבים היטב גם במטבח, שעיצובו הפונקציונאלי כולל יחידות בנויות במראה מודרני, ובמרכזו ניצבים שולחן עץ מלא וכיסאות בהירים בעיצוב המגלם טעם של פעם.

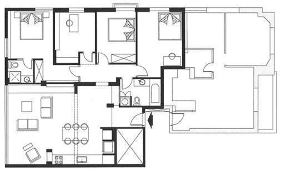
תוכנית הדירה לאחר השיפוץ

אגף החדרים מאופיין במראה בהיר שנועד לשוות לו תחושת מרחב, כמו גם שמירה של ממד הוותק של החלל. כך, למשל, הדלתות שנבחרו הן דלתות "סבתא" שגובהן (2.40 מ') נגזר מגובהה של התקרה (3.45 מ') האופייני לדירות ותיקות, ובחדרי הרחצה, שנותרו ללא פתחי חלונות בשל תוספת הבנייה ואילוצי החניה והשימור, הותקנו דלתות זכוכית המאפשרות מעבר אור אליהם ומייצרות מראה קליל. כך, בתכנון שנע בין שני צירי הזמן, הפכה הדירה הותיקה לחלל נעים המאחד נוחות פונקציונאלית, זיקה לעבר וערכים עכשוויים, ובעיקר כזה המדיף ניחוח אישי שדבר לא ישווה לו.


מתוך גיליון 105: "בין צירי הזמן"

כתבות נוספות

רעיונות טובים צריכים חומר שיהפוך אותם למציאות
תכנון
רעיונות טובים צריכים חומר שיהפוך אותם למציאות
עיצוב מקלחת
אדריכלות
עיצוב מקלחת
טיט, טיח וקש
תכנון
טיט, טיח וקש
ביום בהיר אפשר לראות לנצח
חומרים
ביום בהיר אפשר לראות לנצח
חדשות וחידושים - 120
עיצוב
חדשות וחידושים - 120
חיבור בין בית מסורתי ובנייה עכשווית
אדריכלות
חיבור בין בית מסורתי ובנייה עכשווית
יעקב קאופמן - בין עיצוב ואמנות
אדריכלות
יעקב קאופמן - בין עיצוב ואמנות
חיים בנתיב המהיר: הקשר בין מכוניות יוקרה ומגורי עילית
אדריכלות
חיים בנתיב המהיר: הקשר בין מכוניות יוקרה ומגורי עילית
חלום אורבני
אדריכלות
חלום אורבני
בית מגורים בשרון:  שופע אור, פתיחות ומינימליזם עיצובי
תכנון
בית מגורים בשרון: שופע אור, פתיחות ומינימליזם עיצובי
מהפכה מבפנים
עיצוב
מהפכה מבפנים
אין עתיד לאדריכלות הישראלית?
אדריכלות
אין עתיד לאדריכלות הישראלית?
גלגלי הצלחה
חומרים
גלגלי הצלחה
דווקא עכשיו – שיפוץ קל:
אדריכלות
דווקא עכשיו – שיפוץ קל:
סיקור כנס תכנון ועיצוב פתרונות דיור לגיל השלישי - מחקרים, מגמות, מסקנות...
תכנון
סיקור כנס תכנון ועיצוב פתרונות דיור לגיל השלישי - מחקרים, מגמות, מסקנות...
מה לעשות עם החפצים כשמעצבים את הבית?
עיצוב
מה לעשות עם החפצים כשמעצבים את הבית?
רוצים שינוי מרענן בבית? עצבו מחדש את פינת האוכל שלכם
תכנון
רוצים שינוי מרענן בבית? עצבו מחדש את פינת האוכל שלכם
עיצוב דלתות בתחום של שיפוץ דירות ובכלל
תכנון
עיצוב דלתות בתחום של שיפוץ דירות ובכלל
עיצוב ושיפוץ בית - בחוץ המאה ה-19, בפנים המאה ה-21
אדריכלות
עיצוב ושיפוץ בית - בחוץ המאה ה-19, בפנים המאה ה-21
בבית Sharifi-ha יש תיבות מהפכניות שמותאמות לשינויי האקלים בטהרן
אדריכלות
בבית Sharifi-ha יש תיבות מהפכניות שמותאמות לשינויי האקלים בטהרן
לתכנן ל"סבתא" את הדירה
אדריכלות
לתכנן ל"סבתא" את הדירה
כנס inno 2017 - עיצוב סביבת עבודה חדשנית
עיצוב
כנס inno 2017 - עיצוב סביבת עבודה חדשנית
שיפוץ קטן שינוי גדול
אדריכלות
שיפוץ קטן שינוי גדול
תמ"א 38 – הזדמנות להתחדש
תכנון
תמ"א 38 – הזדמנות להתחדש
תערוכת Ambiente– מטמון עיצובי לאדריכלים ולמעצבי פנים
תכנון
תערוכת Ambiente– מטמון עיצובי לאדריכלים ולמעצבי פנים
דירה קטנה - תכנון גדול: דירת 60 מ"ר בתל אביב
תכנון
דירה קטנה - תכנון גדול: דירת 60 מ"ר בתל אביב
"יצרנו מקום פיזי שמוקדש כולו לשיח אדריכלי, להצגת העשייה המקצועית ולמפגש"
אדריכלות
"יצרנו מקום פיזי שמוקדש כולו לשיח אדריכלי, להצגת העשייה המקצועית ולמפגש"
ספרים חדשים באדריכלות ועיצוב - 124
תכנון
ספרים חדשים באדריכלות ועיצוב - 124
שיפוץ כמסע ריפוי משותף
תכנון
שיפוץ כמסע ריפוי משותף
דור חדש של מעצבים - בוגרים 2010
אדריכלות
דור חדש של מעצבים - בוגרים 2010
MACEF - International Home Show 2010
אדריכלות
MACEF - International Home Show 2010
טפטים - עיצוב, צבע וחומר
תכנון
טפטים - עיצוב, צבע וחומר
החשיבות של ניקוי ספות וריפודים במעבר לדירה חדשה מעוצבת
תכנון
החשיבות של ניקוי ספות וריפודים במעבר לדירה חדשה מעוצבת
הגרלת כנס בתי מלון 2014
תכנון
הגרלת כנס בתי מלון 2014
בית כנסת קהילת ידידה ע"ש יונה מנחם רעננערט - ירושלים
חומרים
בית כנסת קהילת ידידה ע"ש יונה מנחם רעננערט - ירושלים
הרמוניה של פנים וחוץ
אדריכלות
הרמוניה של פנים וחוץ
עבודה במהירות האור
חומרים
עבודה במהירות האור
חדשות וחידושים - 125
עיצוב
חדשות וחידושים - 125
איך מעצבים אינסוף ?
חומרים
איך מעצבים אינסוף ?
Philip Fimmano , צרפת
עיצוב
Philip Fimmano , צרפת
הבית ששומר על עצמו: כך מערכות חכמות משנות את תחושת הביטחון האישי
טכנולוגיה
הבית ששומר על עצמו: כך מערכות חכמות משנות את תחושת הביטחון האישי
הבית הלבן
אדריכלות
הבית הלבן
מפגש "בוקר של עיצוב": ליעד יוסף חושף את הקשר בין עיצוב פנים להצלחה ברשת
עיצוב
מפגש "בוקר של עיצוב": ליעד יוסף חושף את הקשר בין עיצוב פנים להצלחה ברשת
5 טיפים לריהוט חכם של חדר השינה שלכם
עיצוב
5 טיפים לריהוט חכם של חדר השינה שלכם
בית הספר היסודי צין ע"ש אנדרה וקתרין מיראז' ◦ מדרשת בן גוריון בנגב
חומרים
בית הספר היסודי צין ע"ש אנדרה וקתרין מיראז' ◦ מדרשת בן גוריון בנגב
החצר הבולגרית
אדריכלות
החצר הבולגרית
עיצוב מערכות ריהוט גינה
תכנון
עיצוב מערכות ריהוט גינה
"גלריה פחות מאלף"
עיצוב
"גלריה פחות מאלף"
שיתוף פעולה בין אומן העץ שרון סהר ומעצב הפנים ניר קיסר
עיצוב
שיתוף פעולה בין אומן העץ שרון סהר ומעצב הפנים ניר קיסר
בחירת צבעים למעטפת הפנימית של הבית
חומרים
בחירת צבעים למעטפת הפנימית של הבית
כל המידע על שיפוץ בניין משותף
תכנון
כל המידע על שיפוץ בניין משותף
אדריכלית: ויקטוריה קרייס
אדריכלות
אדריכלית: ויקטוריה קרייס
הפסיכולוגיה של הצבעים
חומרים
הפסיכולוגיה של הצבעים
סיפור אהבה בין פנים וחוץ
אדריכלות
סיפור אהבה בין פנים וחוץ
הרמוניה של שילובים
תכנון
הרמוניה של שילובים
הדור הבא של עיצוב בתים פרטיים
תכנון
הדור הבא של עיצוב בתים פרטיים
עיצוב בבטון
תכנון
עיצוב בבטון
סקירה על חיפויים: פנים או חוץ קשים או רכים
חומרים
סקירה על חיפויים: פנים או חוץ קשים או רכים
החומר שמשגע את האדריכלים- קוריאן גרסת 2016
תכנון
החומר שמשגע את האדריכלים- קוריאן גרסת 2016
עיצוב ושיפוץ דירה בולנסיה
תכנון
עיצוב ושיפוץ דירה בולנסיה
לחיי המוזיקה!
תכנון
לחיי המוזיקה!
ילדים ואמבטיות
תכנון
ילדים ואמבטיות
קליל: למקסם את מלוא אורך רצפה-תקרה
תכנון
קליל: למקסם את מלוא אורך רצפה-תקרה
שיפוץ בית פרטי במושב
אדריכלות
שיפוץ בית פרטי במושב
נכנסים למטבח - 5 הדברים שיקפיצו את המטבח שלך לרמה אחרת
תכנון
נכנסים למטבח - 5 הדברים שיקפיצו את המטבח שלך לרמה אחרת
על קו התפר
אדריכלות
על קו התפר
דיור בר קיימא - גרינלוג
תכנון
דיור בר קיימא - גרינלוג
כי חצר זה לא רק דשא...
אדריכלות
כי חצר זה לא רק דשא...
חשמל זורם בכפות ידיה
אדריכלות
חשמל זורם בכפות ידיה
איך הופכים דירת קבלן חדשה לפנטהאוז מרהיב על הים?
אדריכלות
איך הופכים דירת קבלן חדשה לפנטהאוז מרהיב על הים?
מדריך מטבחים 2012
תכנון
מדריך מטבחים 2012
מאלגנטיות שקופה ועד לחיפוי עתידני
חומרים
מאלגנטיות שקופה ועד לחיפוי עתידני
בקו החזית
עיצוב
בקו החזית
פריז מדברת עיצוב
אדריכלות
פריז מדברת עיצוב
הבית שכולנו רוצים לגור בו: כפרי עם ניחוח תעשייתי
אדריכלות
הבית שכולנו רוצים לגור בו: כפרי עם ניחוח תעשייתי
איך הופכים את הגינה לחלק מהבית?
אדריכלות
איך הופכים את הגינה לחלק מהבית?
עיצוב תאורה בתערוכת יורולוצ'ה
חומרים
עיצוב תאורה בתערוכת יורולוצ'ה
לחזור אל הבית: משרד כרמי-מלמד שב לבנייה הפרטית – במקביל לבנייה הציבורית
תכנון
לחזור אל הבית: משרד כרמי-מלמד שב לבנייה הפרטית – במקביל לבנייה הציבורית
פריטי ריהוט בעיצוב חדרים קטנים
תכנון
פריטי ריהוט בעיצוב חדרים קטנים
אלוטון: מהר יותר, גבוה יותר, איכותי יותר
עיצוב
אלוטון: מהר יותר, גבוה יותר, איכותי יותר
עד אחרון הפרטים
תכנון
עד אחרון הפרטים
שיחה על עיצוב הבית עם לארה הדברג-דים מקימת מגזין דוול
אדריכלות
שיחה על עיצוב הבית עם לארה הדברג-דים מקימת מגזין דוול
עיצוב סביבת למידה חינוכית  "בגובה העיניים"
חומרים
עיצוב סביבת למידה חינוכית "בגובה העיניים"
אדריכל דן זוהר, מבעליו של משרד HAUGEN/ZOHAR ARKITEKTER מרצה אורח בכנס בנייה ירוקה 3
חומרים
אדריכל דן זוהר, מבעליו של משרד HAUGEN/ZOHAR ARKITEKTER מרצה אורח בכנס בנייה ירוקה 3
טשטוש גבולות
תכנון
טשטוש גבולות
חורף וקררררר..
תכנון
חורף וקררררר..
פרויקט לאונרדו
אדריכלות
פרויקט לאונרדו
חומרים חדשים - 102
תכנון
חומרים חדשים - 102
הקסם של עיצוב תאורת חוץ
חומרים
הקסם של עיצוב תאורת חוץ
גדר חיה בגן
אדריכלות
גדר חיה בגן
עיצוב פנים – שימור מבנה היסטורי
תכנון
עיצוב פנים – שימור מבנה היסטורי
מבית קטן בערבה לוילה ענקית מודרנית
תכנון
מבית קטן בערבה לוילה ענקית מודרנית
URBAN HOTEL, הצעה לעיצוב חדרים בבתי מלון: אדר' שרון גורן, אדר' חנן פרץ
עיצוב
URBAN HOTEL, הצעה לעיצוב חדרים בבתי מלון: אדר' שרון גורן, אדר' חנן פרץ
הלובי כעוגן נדל"ני: החלל שמשפיע על ערך הבניין יותר ממה שנדמה
תכנון
הלובי כעוגן נדל"ני: החלל שמשפיע על ערך הבניין יותר ממה שנדמה
צפו בתערוכות עיצוב המתקיימות בגרמניה, אנגליה, אוסטריה וארה"ב
אדריכלות
צפו בתערוכות עיצוב המתקיימות בגרמניה, אנגליה, אוסטריה וארה"ב
איך קשור האינסטגרם לפרוייקט המועדף על מעצב הפנים ליעד יוסף ?
אדריכלות
איך קשור האינסטגרם לפרוייקט המועדף על מעצב הפנים ליעד יוסף ?
שימור מבנה היסטורי לצד בית חדש
אדריכלות
שימור מבנה היסטורי לצד בית חדש
עיצוב גינות וניצול מושכל של שטחים
אדריכלות
עיצוב גינות וניצול מושכל של שטחים
נשב בחוץ
אדריכלות
נשב בחוץ
שיטוט פנימי לעבר הצוק המרחף
עיצוב
שיטוט פנימי לעבר הצוק המרחף