הרמוניה של שילובים
תכנון

הרמוניה של שילובים

שיפוץ מקיף שביצעה האדריכלית דושה לידז'י-דותן בדירה דו קומתית בכרמל, הפך את חללה החשוך למרחב מגורים נוח ואוורירי ששפת עיצובו העכשווית שזורה חמימות ביתית

מבט מעומק החלל הציבורי המרכז בשטחו את הסלון, פינת האוכל והמטבח. מארג עיצובי עכשווי ורך כאחד, נרקם מצבעוניות של גווני חום-בז' עם שילובי טורקיז, פריטי ריהוט בקווים קלאסיים-מודרניים, שילובי טקסטיל ופריטי נוי חינניים. ריהוט: "סימפלי ווד", "איי.די. דיזיין", "ביתילי".

מבט מעומק החלל הציבורי המרכז בשטחו את הסלון, פינת האוכל והמטבח. מארג עיצובי עכשווי ורך כאחד, נרקם מצבעוניות של גווני חום-בז

מבט מעומק החלל הציבורי המרכז בשטחו את הסלון, פינת האוכל והמטבח. מארג עיצובי עכשווי ורך כאחד, נרקם מצבעוניות של גווני חום-בז' עם שילובי טורקיז, פריטי ריהוט בקווים קלאסיים-מודרניים, שילובי טקסטיל ופריטי נוי חינניים. ריהוט: "סימפלי ווד", "איי.די. דיזיין", "ביתילי".

הדירה הדו קומתית שעיצובה הופקד בידי האדריכלית דושה דותן-לידז'י, הייתה דירה קיימת שעם רכישתה בוצע בה שיפוץ מקיף מ-א' עד ת'. "הדירה נועדה למגורי אב ושתי בנותיו המתבגרות, והבקשה הייתה להתאימה לצרכיהם ולשוות לה תחושת ביתיות נעימה. כדי לממש זאת ולהשיג את המבוקש נדרש לבצע שינויים מסיביים למדי, היות והחלל היה חשוך למדי ומתארו המלבני הקשה למקם את הפונקציות המבוקשות בצורה נוחה" מספרת דותן-לידז'י. במסגרת זו, המטרה, לדבריה, הייתה לבחון היטב את הפוטנציאל הקיים ולהוציא ממנו את המיטב, כאשר יציאה למרפסת מחלל קומת הכניסה היוותה עבורה מוטיב מרכזי בגיבוש הקונספט העיצובי "השאיפה שלי הייתה ליצור מצב שיאפשר 'להגיע אליה כמה שיותר מהר', הן מבחינת החדרת האור, והן מבחינת הקשר עם החוץ וממדי הפתיחות והאווריריות שקשר כזה מייצר ונוסך בחלל". בתוך כך, תהליך השיפוץ כלל הסרת קירות לצורך "פתיחת" המעבר למרפסת והדגשת נוכחותה; הרחבת פתחים והגבהתם להחדרת אור יום; הסרת קיר שתחם את חלל המדרגות כלפי הסלון, חסם ו"צמצם" את תחושת המרחב; והגדלת שטחו של המטבח הנכלל בחלל המשותף על ידי סיפוח מרפסת שירות שהייתה צמודה אליו. 

פינת הישיבה צמודה למרפסת שפתחה הורחב, כשהיא מאצילה תחושת פתיחות ואווריריות על החלל כולו. תאורה:

פינת הישיבה צמודה למרפסת שפתחה הורחב, כשהיא מאצילה תחושת פתיחות ואווריריות על החלל כולו. תאורה: "תאורה באופק", פריטים משלימים: גולף אנד קו, OKAY.

פינת הישיבה צמודה למרפסת שפתחה הורחב, כשהיא מאצילה תחושת פתיחות ואווריריות על החלל כולו. תאורה:

פינת הישיבה צמודה למרפסת שפתחה הורחב, כשהיא מאצילה תחושת פתיחות ואווריריות על החלל כולו. תאורה: "תאורה באופק", פריטים משלימים: גולף אנד קו, OKAY.

בחזותו החדשה, שאכן מייצרת תחושת מרחב גדולה מזה שקיים בפועל, כל אחד מאזורי הבית טופל באופן פרטני תוך שימת דגש על היבטים פונקציונאליים ותוך שימוש בחומרים, פריטים, אלמנטים ושפת צבע משלו, אשר ביחד מצטרפים לזרימה ביתית חמימה ומסבירת פנים.

המטבח שהורחב ע

המטבח שהורחב ע"י סיפוח מרפסת שירות צמודה לשטחו. עיצוב נקי-מינימליסטי משלב חזיתות שלייף לק לבנות, משטח אבן קיסר וחיפוי קיר מזכוכית. יחידת אי/דלפק עשויה עץ אלון מגדירה את שטחו במרחב הציבורי וחוברת לנוכחות העץ בסלון. מטבח: "סמגל".

מחיצת זכוכית במקום קיר שהוסר פותחת את המבט מחלל המדרגות כלפי הסלון ומשווה יתר קלילות. החלל מתחת גרם המדרגות מנוצל לצרכי אחסון.

מחיצת זכוכית במקום קיר שהוסר פותחת את המבט מחלל המדרגות כלפי הסלון ומשווה יתר קלילות. החלל מתחת גרם המדרגות מנוצל לצרכי אחסון.

מבואת הכניסה ממוקמת במפלס הציבורי, כשמשטחה מובילות שתי מדרגות מעלה לחדרי הבנות, וממנה נחשף המרחב הציבורי כחלל מודרני אך רך, הנהנה מתחושת פתיחות אוורירית שנעדרה ממנו בגלגולו הקודם. המטבח מוקם בקדמתו, פינת הישיבה בעומקו- סמוך למרפסת, ופינת האוכל כמו מאחורי גרם המדרגות המוביל מעלה. ריצוף האזור הציבורי בוצע באריחי גרניט פורצלן גדולים בגימור דמוי שיש מבריק, התאורה ששולבה בו היא בסיסית בעיקרה- גופים "ניטראליים" צמודי קיר ותקרה עם שילוב מדוד של גופים דקורטיביים במיקומים ייעודיים, וצבעוניותו נרקמת מגווני בז' וטורקיז כשילוב אנין ומעודן בו משתלבות גם נגיעות עניין מעט מעזות יותר, דוגמת הקיר בפינת האוכל שנצבע בגון חום כהה. 

פינת האוכל, הממוקמת כמו מאחוריו גרם המדרגות: שולחן עץ עגול

פינת האוכל, הממוקמת כמו מאחוריו גרם המדרגות: שולחן עץ עגול "הקל" על שילובה בחלל המלבני, וקיר חום שמגדיר-מדגיש את נוכחותה.

המטבח שהורחב ע

המטבח שהורחב ע"י סיפוח מרפסת שירות צמודה לשטחו. עיצוב נקי-מינימליסטי משלב חזיתות שלייף לק לבנות, משטח אבן קיסר וחיפוי קיר מזכוכית. יחידת אי/דלפק עשויה עץ אלון מגדירה את שטחו במרחב הציבורי וחוברת לנוכחות העץ בסלון. מטבח: "סמגל".

פריטי הריהוט שנבחרו עבורו מעוצבים בקווים קלאסיים- מודרניים המשלבים עץ בהיר ומעט מתכת, ופריטים ככריות, אביזרים משלימים וחפצי נוי חינניים מחומרים חמים משלימים חלל מזמין, מסוגנן ונינוח כאחד. בעוד אזורי האירוח משובצים פריטי נוי ונגיעות צבע, המטבח עוצב במראה נקי-מינימליסטי עם חזיתות שלייף לק לבנות המשתלבות עם משטח אבן קיסר וחיפוי קיר מזכוכית. את שטחו בחלל הפתוח מגדירה יחידת אי/דלפק מעץ אלון המהווה גם חציצה מסוימת בינו לבין האזורים האחרים ומתכתב עם העץ בסלון.  

חדר הרחצה של הבנות: משטח כיור עם כיורים אינטגראליים, חיפוי קיר תלת ממדי באריחי עץ, והילת אור הבוקעת סביב המראה המותקנת מעליו.

חדר הרחצה של הבנות: משטח כיור עם כיורים אינטגראליים, חיפוי קיר תלת ממדי באריחי עץ, והילת אור הבוקעת סביב המראה המותקנת מעליו.

פינת האוכל, הממוקמת כמו מאחוריו גרם המדרגות: שולחן עץ עגול

פינת האוכל, הממוקמת כמו מאחוריו גרם המדרגות: שולחן עץ עגול "הקל" על שילובה בחלל המלבני, וקיר חום שמגדיר-מדגיש את נוכחותה.


במקום הקיר שהוסר בגרם המדרגות הותקנה מחיצת זכוכית המשמשת גם כמעקה אוורירי ומאפשרת לקיים קשרי עין ישירים בין מהלכו הראשון לבין החלל הציבורי, ובמסגרת שדרוג חזותו הוחלפו מדרכיו במדרכי עץ מלא. כמו  טוויסט הקיר החום בפינת האוכל, כך גם  בחלל המדרגות מפתיע קיר צבוע בכחול עז עליו נתלו שלוש תמונות הומוריסטיות, כאשר אגב כך הוא מקנה למהותו הפונקציונאלית עניין שונה ומחויך והופך אותו לאזור בפני עצמו. 

חדרי הבנות: עיצוב שהותאם להעדפותיהן תוך שילוב טפטים וטקסטילים צבעוניים. טפטים ווילונות:

חדרי הבנות: עיצוב שהותאם להעדפותיהן תוך שילוב טפטים וטקסטילים צבעוניים. טפטים ווילונות: "טאפיס".

גרם המדרגות ששודרג תוך הפיכתו לאזור מעוצב בפני עצמו: שילוב מדרכי עץ מלא, וקיר צבוע כחול עם קריצה שמעניקות תמונות הומוריסטיות.

גרם המדרגות ששודרג תוך הפיכתו לאזור מעוצב בפני עצמו: שילוב מדרכי עץ מלא, וקיר צבוע כחול עם קריצה שמעניקות תמונות הומוריסטיות.

אחד הדברים הבולטים בתכנון-עיצוב הוא הדגש שהעניקה דותן-לידז'י ליצירת פתרונות אחסון רבים ככל האפשר- אם במטבח שהורחב ויחידותיו מספקות מענה נוח לצורך זה, אם  בחלל המבואה שנוצל לשילוב ארונות קיר, אם בחלל שנוצר מתחת לגרם המדרגות לו הותאמה עבודת נגרות ייעודית, ואם באזורים נוספים ברחבי הדירה.

מחיצת זכוכית במקום קיר שהוסר פותחת את המבט מחלל המדרגות כלפי הסלון ומשווה יתר קלילות. החלל מתחת גרם המדרגות מנוצל לצרכי אחסון.

מחיצת זכוכית במקום קיר שהוסר פותחת את המבט מחלל המדרגות כלפי הסלון ומשווה יתר קלילות. החלל מתחת גרם המדרגות מנוצל לצרכי אחסון.

חדר הרחצה של הבנות: משטח כיור עם כיורים אינטגראליים, חיפוי קיר תלת ממדי באריחי עץ, והילת אור הבוקעת סביב המראה המותקנת מעליו.

חדר הרחצה של הבנות: משטח כיור עם כיורים אינטגראליים, חיפוי קיר תלת ממדי באריחי עץ, והילת אור הבוקעת סביב המראה המותקנת מעליו.

בעיצוב בו כל אזור טופל לגופו, חדרי הבנות שבקומת הכניסה רוצפו בפרקט ועוצבו בהתאמה להעדפות טעמן האישי, וחדר הרחצה המשותף להן  הוא חלל נוח ומוקפד אסתטית: במשטח אבן קיסר משתלבים שני כיורים בהנחה שטוחה, חיפוי הקיר מעליו בוצע באריחי עץ עם אפקט תלת ממד עשיר למראה, ואת המראה המרחפת עוטפת הילת אור הבוקעת מגופים נסתרים שהותקנו מאחוריה. 

גרם המדרגות ששודרג תוך הפיכתו לאזור מעוצב בפני עצמו: שילוב מדרכי עץ מלא, וקיר צבוע כחול עם קריצה שמעניקות תמונות הומוריסטיות.

גרם המדרגות ששודרג תוך הפיכתו לאזור מעוצב בפני עצמו: שילוב מדרכי עץ מלא, וקיר צבוע כחול עם קריצה שמעניקות תמונות הומוריסטיות.

חדרי הבנות: עיצוב שהותאם להעדפותיהן תוך שילוב טפטים וטקסטילים צבעוניים. טפטים ווילונות:

חדרי הבנות: עיצוב שהותאם להעדפותיהן תוך שילוב טפטים וטקסטילים צבעוניים. טפטים ווילונות: "טאפיס".


חדר השינה משופע התקרה הוא חלל חמים ומרווח, מרוצף פרקט ומעוצב בגווני שחור ולבן. חדר הרחצה שבשטחו מוגבה מעט ממפלס הריצוף והדגש על אחסון נוח בא לידי ביטוי בניצול חללים נמוכים שנוצרו בגלל קוקיות הגג, או במיני פתרונות הכורכים אותו עם אסתטיקה, דוגמת מראה גדולה המושענת על הקיר ולכאורה משרתת את העיצוב, אך למעשה מסתירה מאחוריה חלל אחסון. זוהי, בעצם, תמצית השיפוץ שבוצע והמטרה אליה חתרה דותן-לידז'י שמסכמת את התהליך " ליצור בית עם אווירה שמפנק את דייריו בנוחות מחייה. מעוצב, אך "בגובה העיניים", ללא יומרות. פשוט בית שנעים לגור בו". 

סוויטת השינה בקומה העליונה משופעת התקרה:  חדר הרחצה הצמוד מוגבה מעט ממפלס החדר, והחללים שנוצרו בשל קוקיות הגג מנוצלים לצרכי אחסון. העיצוב המוקפד נשען על גווני שחור ולבן תוך שילוב פריטים תואמים וטקסטילים המעניקים רכות נעימה.

סוויטת השינה בקומה העליונה משופעת התקרה: חדר הרחצה הצמוד מוגבה מעט ממפלס החדר, והחללים שנוצרו בשל קוקיות הגג מנוצלים לצרכי אחסון. העיצוב המוקפד נשען על גווני שחור ולבן תוך שילוב פריטים תואמים וטקסטילים המעניקים רכות נעימה.

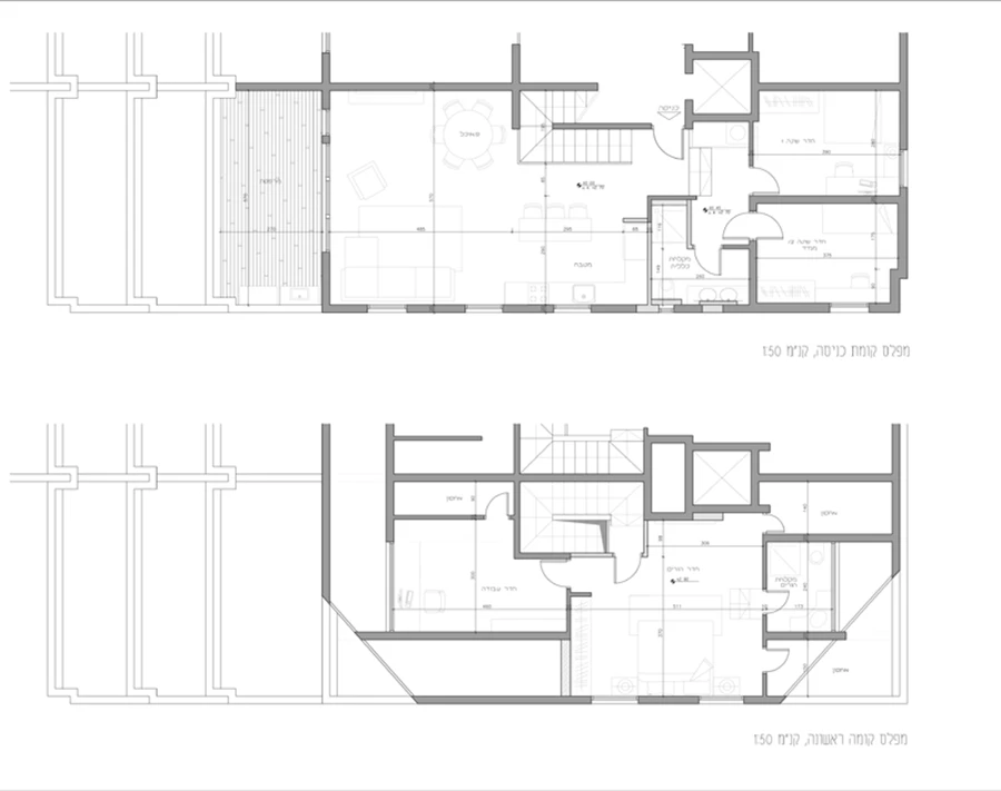
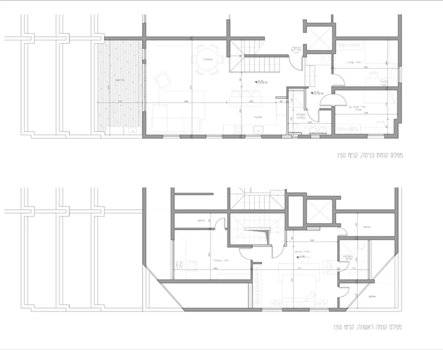
מפלס קומת כניסה | מפלס קומה ראשונה

מפלס קומת כניסה | מפלס קומה ראשונה

סוויטת השינה בקומה העליונה משופעת התקרה:  חדר הרחצה הצמוד מוגבה מעט ממפלס החדר, והחללים שנוצרו בשל קוקיות הגג מנוצלים לצרכי אחסון. העיצוב המוקפד נשען על גווני שחור ולבן תוך שילוב פריטים תואמים וטקסטילים המעניקים רכות נעימה.

סוויטת השינה בקומה העליונה משופעת התקרה: חדר הרחצה הצמוד מוגבה מעט ממפלס החדר, והחללים שנוצרו בשל קוקיות הגג מנוצלים לצרכי אחסון. העיצוב המוקפד נשען על גווני שחור ולבן תוך שילוב פריטים תואמים וטקסטילים המעניקים רכות נעימה.

מפלס קומת כניסה | מפלס קומה ראשונה

מפלס קומת כניסה | מפלס קומה ראשונה

כתבות נוספות

ניחוח יפני בטקסס ‏
אדריכלות
ניחוח יפני בטקסס ‏
הצעה לעיצוב אזור המתנה ברציף התת קרקעי - הרכבת הקלה של מטרופולין תל אביב. הדר דור
אדריכלות
הצעה לעיצוב אזור המתנה ברציף התת קרקעי - הרכבת הקלה של מטרופולין תל אביב. הדר דור
אוכל, קדימה אוכל
אדריכלות
אוכל, קדימה אוכל
שיפוץ בית פרטי בשכונה בצפון תל אביב
אדריכלות
שיפוץ בית פרטי בשכונה בצפון תל אביב
עיצוב דירה בנווה צדק
תכנון
עיצוב דירה בנווה צדק
שיפוץ דירה שהגדיל את שטחה
תכנון
שיפוץ דירה שהגדיל את שטחה
גינה נאה (גם בחורף)
אדריכלות
גינה נאה (גם בחורף)
מה לעשות עם החפצים כשמעצבים את הבית?
עיצוב
מה לעשות עם החפצים כשמעצבים את הבית?
קטנה גדולה
תכנון
קטנה גדולה
עיצוב ושיפוץ בית בטוסקנה
אדריכלות
עיצוב ושיפוץ בית בטוסקנה
עיצוב חדרי אמבטיה כמיני ספא
אדריכלות
עיצוב חדרי אמבטיה כמיני ספא
הרחבה ושימור בית בלונדון
אדריכלות
הרחבה ושימור בית בלונדון
Agro Housing תכנון בר קיימא
תכנון
Agro Housing תכנון בר קיימא
חברת PoloStone פורצת לשוק עם מהפכה בתחום משטחי הפורצלן למטבחים
תכנון
חברת PoloStone פורצת לשוק עם מהפכה בתחום משטחי הפורצלן למטבחים
התאורה שהופכת את החלל לפוטוגני
חדשנות וטכנולוגיה
התאורה שהופכת את החלל לפוטוגני
דירוג אנרגטי במעטפת המבנה
עיצוב
דירוג אנרגטי במעטפת המבנה
מעצבת אושרי גונן: כך עיצבתי את בית החלומות שלי
אדריכלות
מעצבת אושרי גונן: כך עיצבתי את בית החלומות שלי
אווירת פנטזיה בעיצוב חדרי ילדים
עיצוב
אווירת פנטזיה בעיצוב חדרי ילדים
תכנון בתים במגרשים צרים
אדריכלות
תכנון בתים במגרשים צרים
עיצוב דירה בנגיעות של סגול
תכנון
עיצוב דירה בנגיעות של סגול
מישהו הזיז את חדר השינה שלי – על מגמות משתנות בעיצוב חדרי שינה
עיצוב
מישהו הזיז את חדר השינה שלי – על מגמות משתנות בעיצוב חדרי שינה
חומרים חדשים - 114
תכנון
חומרים חדשים - 114
הוועידה הבינלאומית לחדשנות בעיצוב ואדריכלות  - כתבו עלינו, דיברו עלינו
תכנון
הוועידה הבינלאומית לחדשנות בעיצוב ואדריכלות - כתבו עלינו, דיברו עלינו
הדירה שמחכה לאחת שתגיע
תכנון
הדירה שמחכה לאחת שתגיע
ברצלונה: מעיר קיימת לעיר מקיימת
תכנון
ברצלונה: מעיר קיימת לעיר מקיימת
מוזיאון ה-1000 - פרדיגמה חדשה לגורדי שחקים- מעטפת עמודי בטון שמשמשים כהגנה מפני רוחות חזקות
עיצוב
מוזיאון ה-1000 - פרדיגמה חדשה לגורדי שחקים- מעטפת עמודי בטון שמשמשים כהגנה מפני רוחות חזקות
חדשות וחידושים - 116
תכנון
חדשות וחידושים - 116
פוליביד: רואים ירוק רואים רחוק
תכנון
פוליביד: רואים ירוק רואים רחוק
פנטהאוז לבן מול הים
תכנון
פנטהאוז לבן מול הים
מלון בוטיק בעיצובו של קארים רשיד
חדשנות וטכנולוגיה
מלון בוטיק בעיצובו של קארים רשיד
האדריכל ההולנדי האנס ורמולן ישתתף בכנס INNO
תכנון
האדריכל ההולנדי האנס ורמולן ישתתף בכנס INNO
קל וחומר - 124
תכנון
קל וחומר - 124
קניתם ספה? קחו טיפים שישמרו עליה נקייה כחדשה
תכנון
קניתם ספה? קחו טיפים שישמרו עליה נקייה כחדשה
יהודה גדליהו - פרוטרטים מחוטי ברזל
תכנון
יהודה גדליהו - פרוטרטים מחוטי ברזל
חומרים חדשים - 117
תכנון
חומרים חדשים - 117
רמז לבית
אדריכלות
רמז לבית
שיפוץ בית באי מיורקה והסבתו לבית קיץ
אדריכלות
שיפוץ בית באי מיורקה והסבתו לבית קיץ
עיצוב בתים פרטיים בסגנון אירופאי
אדריכלות
עיצוב בתים פרטיים בסגנון אירופאי
שיפוץ היקפי לבית דו קומתי בפרדסיה
אדריכלות
שיפוץ היקפי לבית דו קומתי בפרדסיה
עידן חדש בתחום חיפוי קירות באריחים
תכנון
עידן חדש בתחום חיפוי קירות באריחים
למידה היברידית
חדשנות וטכנולוגיה
למידה היברידית
שימוש באקווריומים בתחום של עיצוב פנים
תכנון
שימוש באקווריומים בתחום של עיצוב פנים
עיצוב עתידני
חדשנות וטכנולוגיה
עיצוב עתידני
עיצוב סביבתי מצמיגים ממוחזרים
תכנון
עיצוב סביבתי מצמיגים ממוחזרים
הבטון שמצמצם סכנות בריאותיות
תכנון
הבטון שמצמצם סכנות בריאותיות
מעצב העל אבישי מרציאנו
אדריכלות
מעצב העל אבישי מרציאנו
ליעד יוסף: המעצב שמכניס אהבה, הומור ולב גדול אל תוך כל בית
אדריכלות
ליעד יוסף: המעצב שמכניס אהבה, הומור ולב גדול אל תוך כל בית
חומרים חדשים - 110
תכנון
חומרים חדשים - 110
בגליל, מול הנוף
אדריכלות
בגליל, מול הנוף
עיצוב מחודש של מרפאה פסיכיאטרית לילד
חדשנות וטכנולוגיה
עיצוב מחודש של מרפאה פסיכיאטרית לילד
פרטים בונים שלם
תכנון
פרטים בונים שלם
הצבע חזר ללחיי מילאנו - חלק ראשון
אדריכלות
הצבע חזר ללחיי מילאנו - חלק ראשון
קבוצת אלומיניום קונסטרקשיין: העתיד כבר כאן
עיצוב
קבוצת אלומיניום קונסטרקשיין: העתיד כבר כאן
עיצוב דירת גג
תכנון
עיצוב דירת גג
חדשות וחידושים - 111
תכנון
חדשות וחידושים - 111
תמ"א 38 – הזדמנות להתחדש
תכנון
תמ"א 38 – הזדמנות להתחדש
עיצוב בית פרטי בפוקוקה, יפן
חדשנות וטכנולוגיה
עיצוב בית פרטי בפוקוקה, יפן
שילובים מעניינים של חומרים בעולם העיצוב
חדשנות וטכנולוגיה
שילובים מעניינים של חומרים בעולם העיצוב
ריקוד המכונה
אדריכלות
ריקוד המכונה
תקנון הגרלת כנס התאחדות קבלני השיפוצים – חופשה
אדריכלות
תקנון הגרלת כנס התאחדות קבלני השיפוצים – חופשה
תחרות לעיצוב בית מרחץ בלטבייה
אדריכלות
תחרות לעיצוב בית מרחץ בלטבייה
פרויקט שנתפר על פי מידות הלקוח
אדריכלות
פרויקט שנתפר על פי מידות הלקוח
מספרת אבי מלכה במרכז ניצן בקריית-ים
חדשנות וטכנולוגיה
מספרת אבי מלכה במרכז ניצן בקריית-ים
להרגיש הכי בבית, במשרד
חדשנות וטכנולוגיה
להרגיש הכי בבית, במשרד
שיפוץ מחסן ללופט מסוגנן
תכנון
שיפוץ מחסן ללופט מסוגנן
לגור בעיר ולהרגיש בכפר
אדריכלות
לגור בעיר ולהרגיש בכפר
הזרימה לעולם האישי
תכנון
הזרימה לעולם האישי
לחזור אל הבית: משרד כרמי-מלמד שב לבנייה הפרטית – במקביל לבנייה הציבורית
תכנון
לחזור אל הבית: משרד כרמי-מלמד שב לבנייה הפרטית – במקביל לבנייה הציבורית
בין הגלוי לחבוי: הצצה לבית שבו החללים נקראים לא באחת אלא בשלבים
אדריכלות
בין הגלוי לחבוי: הצצה לבית שבו החללים נקראים לא באחת אלא בשלבים
שתיים הן ולא יודעות: דירת משפחה המכילה שתי דירות נפרדות
תכנון
שתיים הן ולא יודעות: דירת משפחה המכילה שתי דירות נפרדות
בית נופש ירושלמי עם נשמה: שימור היסטורי פוגש עיצוב מודרני
עיצוב בתים פרטיים ודירות
בית נופש ירושלמי עם נשמה: שימור היסטורי פוגש עיצוב מודרני
קוראים לסדר..
תכנון
קוראים לסדר..
מלון בוטיק, וילה גליליי
עיצוב
מלון בוטיק, וילה גליליי
המעצבת מיכל שלו - ראיון
תכנון
המעצבת מיכל שלו - ראיון
מגמות בתחום עיצוב הבית
תכנון
מגמות בתחום עיצוב הבית
סדר יום כנס בנייה ירוקה 25.11.2013
תכנון
סדר יום כנס בנייה ירוקה 25.11.2013
הבית אל צמרות העצים
תכנון
הבית אל צמרות העצים
עיצוב בהשראת ה'פרובנס'
אדריכלות
עיצוב בהשראת ה'פרובנס'
מערכות ישיבה בהתאמה אישית
תכנון
מערכות ישיבה בהתאמה אישית
5 מקומות מסביב לעולם, שנחשבים לפורצי דרך בדיור מוגן
עיצוב
5 מקומות מסביב לעולם, שנחשבים לפורצי דרך בדיור מוגן
התחלה חדשה בתקציב קטן
אדריכלות
התחלה חדשה בתקציב קטן
חומרים מנוגדים
אדריכלות
חומרים מנוגדים
שילוב של מרתף יין תוך כדי שיפוץ דירות
תכנון
שילוב של מרתף יין תוך כדי שיפוץ דירות
ביתני תצוגה ישראליים במילאנו 2008
אדריכלות
ביתני תצוגה ישראליים במילאנו 2008
חושבים לצבוע את הבית לבד? קבלו 10 טיפים חשובים
חדשנות וטכנולוגיה
חושבים לצבוע את הבית לבד? קבלו 10 טיפים חשובים
דרושה: תעוזה בעיצוב דיגיטלי כגון עיצוב חדרי אמבטיה
תכנון
דרושה: תעוזה בעיצוב דיגיטלי כגון עיצוב חדרי אמבטיה
פרויקט וילת אירוח – חצור הגלילית | באדיבות חברת קמריקה
תכנון
פרויקט וילת אירוח – חצור הגלילית | באדיבות חברת קמריקה
מאחסנים בסטייל
עיצוב
מאחסנים בסטייל
טביעת רגל  ישראלית במילאנו
אדריכלות
טביעת רגל ישראלית במילאנו
המרכז לאיגוד ערים לאיכות הסביבה אגן בית נטופה
תכנון
המרכז לאיגוד ערים לאיכות הסביבה אגן בית נטופה
איך לארגן חדר כושר ביתי?
אדריכלות
איך לארגן חדר כושר ביתי?
עיצוב פינות אוכל, פינה לי חביבה
אדריכלות
עיצוב פינות אוכל, פינה לי חביבה
על תחרות תאי השירותים המעוצבים כבר שמעתם?
אדריכלות
על תחרות תאי השירותים המעוצבים כבר שמעתם?
שמחים עד הגג
תכנון
שמחים עד הגג
הטרנד הוא אני
חדשנות וטכנולוגיה
הטרנד הוא אני
Studio Beam: מאירים את הקיץ
חדשנות וטכנולוגיה
Studio Beam: מאירים את הקיץ
פריטי ריהוט בעיצוב חדרים קטנים
תכנון
פריטי ריהוט בעיצוב חדרים קטנים
דמיון ושכרו - שיפוץ ותכנון בית פרטי
אדריכלות
דמיון ושכרו - שיפוץ ותכנון בית פרטי
תכנון גינה של חופש
אדריכלות
תכנון גינה של חופש
בית מערבי בהשראה מזרחית
תכנון
בית מערבי בהשראה מזרחית