דברים טובים באים באריזות קטנות
אדריכלות

דברים טובים באים באריזות קטנות

יש לי מן תחושה כזאת שהטרנד המינימליסטי כאן כדי להישאר. למעשה אנחנו חווים כרגע רק קצה קצהו של הקרחון. אל תתבלבלו, לא נדבר כאן על המראה המרחף, על ריצפות מנותקות או על חגיגות צללים שיוצרים גופי תאורה נסתרים. המינימליזם אליו התכוון המשורר ובמקרה הזה, אנכי, הוא עמוק בהרבה ומדבר במונחים של מהפכה צרכנית. 

דירת 56 מ"ר תל אביב - דירה מתוך בניין לשימור, רחוב יהודה הלוי אדריכלות: ספארו אדריכלים צילום: עמרי אמסלם

הבית האירופאי כולל מקרר קטן מיימדים המכיל תצרוכת מזון לימים ספורים בלבד. המודעות שלנו לסביבה ירוקה מובילה אותנו לצרוך פחות ובאופן כללי לחיות לפי מידה. יש מי שיקשור את האג'נדות המינימליסטיות לחסכנות שלא לומר, קמצנות, אבל זה לגמרי לא הכיוון. בשמת צפדיה וולף בעלת משרד האדריכלים ספארו, היא ההוכחה המקומית שלנו, לכך שדברים טובים באים באריזות קטנות, וכשאני אומרת טובים, אני מתכוונת איכותיים, כאלו שעומדים בסטנדרטים הגבוהים ביותר. 

צפדיה היא אדריכלית שמתמחה בתכנון חללים קטנים. בשנה שעברה זכתה בפרס אות העיצוב על דירת 40 מ"ר שתכננה ברחוב עמנואל הרומי בתל-אביב ופרט לה, מחזיקה האדריכלית בשורה של פרויקטים צפופי מטראז' שעברו תחת ידה וזכו לטיפול שורש מתוחכם במיוחד. צפדיה מסבירה שהחשיבה התכנונית שמנחה התייחסות לפרויקט קטן היא אחרת בהרבה מובנים, בהשוואה לפרויקט רחב מיימדים. היא אחרת בעיקר בשל העובדה שאתה כאדריכל מעוניין להעניק חוויית מגורים, שלא טיפול באיכות התפקוד היומיומי שלה מדירה מאוד גדולה. זה אומר מרחב מגורים מרווח, עם מכשירי חשמל סטנדרטיים, מעברים הרמוניים בין חללים ומראה פתוח ורחב שמסיר כל חשש קלסטרופובי. 

צפדיה לא נכנעת לגודל אלא הופכת מאותגרת ממנו. נגרות היא אחד האלמנטים המרכזיים בו היא משקיעה, כדי ליצור המון פתרונות אחסון וחיפויים אסתטיים (כמו למשל, הסתרה של כבלי החשמל). התכנון שלה הוא תכנון חכם, כזה שלא מוותר על דבר ועם זאת נראה ומרגיש זורם ונינוח. כדי ליצור ארמון בתוך מטראז' כה מצומצם, כמו אלו שמתכננת צפדיה, נדרש כישרון רב אך באותה המידה, הבנה כי בעלי מקצוע מעולים הם חלק מהמפתח לתוצאה סופית מוצלחת. בשמת סיפרה על יועצת מיזוג אוויר שהיא עובדת איתה והיא העניקה לה תואר ד"ר. 

רמת הפירוט וההתייחסות לכל הפרמטרים, מאפשרת לה לישון בשקט ולדעת שבעיות אקלים כנראה לא יהיו בדירות שהיא מתכננת. אגב, אם כבר נגענו בסוגיית מיזוג האוויר, באחד הפרויקטים הראתה לי בשמת, גוף מיזוג דקיק, כמעט שאינו נראה, המותקן בין הסורגים של גרם מדרגות. מדובר במערכת מיזוג יקרה מאוד וחדשנית, אך מושלמת לחללים קטנים. כך גם לגבי הנגר ושאר בעלי המקצוע. לעבוד עם הטובים ביותר, עולה לפעמים יותר, אבל בטווח הארוך זה מאוד חכם ואפילו חסכוני. מערכות עמידות שפועלות ביעילות לאורך שנים רבות מתרגמות את כל הדבר הזה לחסכון בפועל.

דירת 56 מ

דירת 56 מ"ר תל אביב - דירה מתוך בניין לשימור, רחוב יהודה הלוי אדריכלות: ספארו אדריכלים צילום: עמרי אמסלם

את המשרד פתחה צפדיה עם עם האדריכל ניר רותם, וכיום הוא בבעלותה המלאה. בשמת היא בעלת תואר ראשון באדריכלות, מבצלאל ותואר שני ב- Housing and Urbanism של ה- AA Architectural Association) ) משם יצאו שמות גדולים כמו זהה חדיד ואושיות מוכרות נוספות. ההתמחות שלה בתכנון חללים קטנים היא התמחות שהולכת והופכת נדרשת ככל שהטרנד המינימליסטי מתפתח בעולם. תפיסות המגורים המתקדמות מכניסות חיים שלמים לתוך בנייני המגורים. זה נכון שבנייני המגרים המודרניים, יכולים להכיל דירה שלא היתה מביישת מבחינת המטראז' שלה, אחוזה בישובי היוקרה של השרון הדרומי אבל כשאנחנו מדברים על הטרנד אנחנו מדברים על דירות מסוג קצת שונה. אנחנו מדברים על כך שאנשים מבקשים לצרוך איכותי, אבל פחות. לקנות פחות אוכל, לצרוך פחות בגדים ולגור בדירות פונקציונאליות ומפנקות, שמתאימות למיימדים להם. 

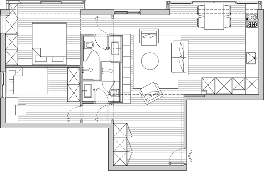
דירת 66 מ

דירת 66 מ"ר תל אביב - שלמה המלך אדריכלות: ספארו אדריכלים צילום: שי אפשטיין

הדירות שמתכננת צפדיה הן לא דירות במגדלי יוקרה, אלא בתוך המרחב העירוני הוותיק, המבוסס. יש לכך יתרונות רבים, בעיקר של הנאה מסביבה חיה ונושמת, כזאת שכבר יש בה בית קפה שכונתי, בית מרקחת, גני ילדים, פארקים ועצים ירוקים. הבהלה לבניה מוציאה אלפי דירות יוקרה בשנה אל השוק ובפועל יש המון הזדמנויות לקחת את הקיים ולחדש אותו, לבצע בו מתיחת פנים, לשנות אותו ללא היכר, אבל לשמור על המהות שלו ועל ההתאמה שלו לסיבה הקיימת. לפעמים אנשים רוצים עוד חדר ובמקום דירת 2 חדרים הם מחפשים לרכוש דירת 3 חדרים. הזינוק במחיר הוא כל כך גבוה, ששווה להם להרוס ולתכנן את הנכס מחדש, בחלוקה אחרת, כך שיתאים לצרכים המשתנים. זה כמעט קסם לראות מה ניתן לעשות בדיוק באותם מטרים נתונים.

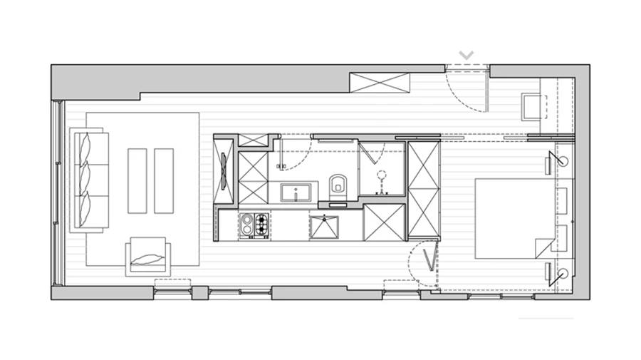
דירת 40 מ

דירת 40 מ"ר, צפון תל-אביב - עמנואל הרומי - זכתה באות העיצוב 2012 אדריכלות: ספארו אדריכלים צילום: בועז לביא ויונתן בלום

התכנון של צפדיה נע על הסקאלה שבין 40 ועד ל-80 מ"ר. שם היא מרגישה הכי נוח. האתגרים עמם מתמודדת האדריכלית מורכבים, אך בסופם תוצאה ששווה היה לעבור בשבילה את הדרך. בחרנו את הדירה, זוכת הפרס, בעמנואל הרומי ועוד שתיים אחרות בתל- אביב, כולן קטנות בשיטחן מ-70 מ"ר.

דירת 40 מ"ר, צפון תל-אביב - עמנואל הרומי  - זכתה באות העיצוב 2012

הדיירת המתגוררת בדירה נטשה את חלומה לעבור לדירה מרווחת יותר בעקבות מחירי הדירות המאמירים בתל-אביב ופנתה למשרד לבחון אפשרות תכנון מחדש של הדירה. היא בקשה ליצור בדירה תחושת מרחב מקסימאלית, תוך חלוקה ברורה ל-2 חדרים (מגורים ושינה), כמו גם מקומות אחסון רבים, מטבח בגודל מלא ופינת עבודה. 

צפדיה והלקוחה בחרו למקם במרכז הדירה 'קוביה' שאינה נושקת לקירות החיצוניים, המאפשרת דחיסה של הפרוגראמות השונות ליחידה אחת קומפקטית, תוך שחרור שטח רצפה יקר ערך. קובייה זו מכילה את כל המערכות הנדרשות כגון: מערכת מיזוג אוויר מיני מרכזית, ריכוז חשמל ותקשורת ונקודות מים. בנוסף מרוכזות בקובייה פונקציות שירותיות כגון: חדר רחצה מרווח עם מכונת כביסה, מייבש וארון שירות , מטבח מאובזר עם מקרר בגודל מלא, מזנון לטלוויזיה, ספרייה וארון קיר לחדר שינה.

הצבת ה'קובייה' במרכז החלל מחלקת את הדירה לארבעה איזורים: שני איזורי מחיה גדולים (חדר שינה וחדר מגורים) ושני חללי ביניים מקשרים: מטבח וחלל מעבר עם ספריה, ארון שירות וכניסה לחדר הרחצה. בנוסף, ההעמדה הזאת יוצרת אפשרות לאור לחלחל לכל פינות הדירה. החלל כולו בעל שני כיווני אוויר בלבד, ויוצר תחושה של מרחב עם סירקולציה אינסופית של אור ותנועה שרק מעצימים עוד יותר את תחושת הרב מימדיות של השימוש בחלל. 

בתוך הקוביה נחבאות דלתות הזזה ודלת גליוטינה מתקפלת, המאפשרות לסגור את החלל הגדול לפי הצורך ובהתאם לשעות היום והשימוש הנדרש, ליצירת מצבים פרטיים יותר או פתוחים יותר. את חדר הרחצה מאווררים בעזרת פתחי אוויר טבעי הנראים כמו פתחי מיזוג אוויר, ובנוסף מותקנת במקום וונטה חשמלית. אור טבעי נכנס לחדר הרחצה דרך הקיר המשותף בינו למטבח, שם הצבנו זכוכית חלבית חצי אטומה בניצב למשטח העבודה במטבח, במקום קיר אטום עם אריחי קרמיקה כמקובל. 

צילום: בועז לביא ויונתן בלום 


דירת 66 מ"ר תל אביב - שלמה המלך 

הדירה שוכנת בבניין שנבנה בשנות ה- 40. נתוני הפתיחה היו מתאגרים: דירה חשוכה, 2 כיווני אוויר וחדר שינה אחד. בעלת הדירה ביקשה להוסיף חדר שינה עבור ביתה החיילת ו-2 חדרי רחצה, וליצור למעשה מעין סוויטה אישית לכל אחת.

המשימה האדריכלית העיקרית היתה להציב "קובייה" במרכז הדירה ובה לרכז את 2 חדרי הרחצה שמפנים שטח רצפה יקר וכך נוסף לו חדר שינה. לבקשת בעלת הדירה, הכניסה לכל חדר התאפשרה משני צידי הקוביה, ואפשרה פרטיות ואינטימיות.

בחזית הקוביה שפונה לסלון ולמטבח בנויה ספריית עץ ליבנה בגמר טבעי. היא אינה מגיעה עד לתקרה כדי שאור טבעי ייכנס לחדרי הרחצה מתוך החלון העליון. בנוסף גם מערכת מיזוג האויר ממוקמת בתקרת הקוביה וחוסכת הנמכות תקרה מיותרות.

תחושת המרחב בדירה מתאפשרת בזכות כניסה של אור, אוויר טבעי ותנועה ואודות לשימוש הרצוף בחומרים ( כמו למשל הבחירה להמשיך את הפרקט במטבח). ארונות המטבח תוכננו בצבע לבן כהמשך טבעי לקירות, ללא ידיות חיצוניות, כשהריהוט של בעלת הדירה משתלב עם הקו הכללי. 

צלם: שי אפשטיין

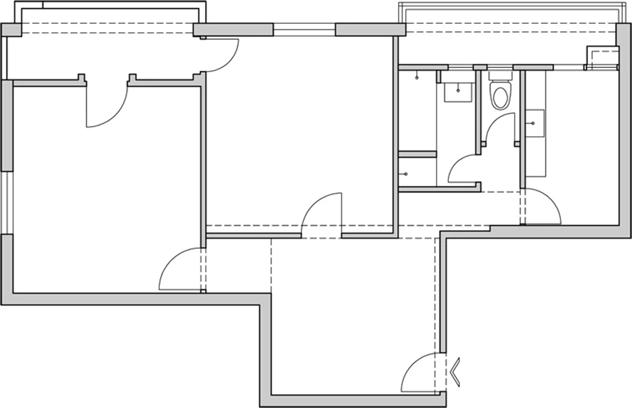
 דירת 56 מ"ר תל אביב - יהודה הלוי 

דירה השוכנת בבניין לשימור מתקופת "הבאוהאוס" שעבר גם הוא שיפוץ חיצוני תחת חוקי שימור מחמירים. בעלי הדירה ביקשו למקסם את הפוטנציאל של החלל כך שיהפוך את הדירה אטרקטיבית להשכרה עבור משפחה צעירה. הדרישה העיקרית היתה להגדיל את מספר החדרים בדירה מ-2 ל-3.

נתוני הפתיחה היו טובים באופן יחסי: תקרה גבוהה, רצף חלונות לאורך החזית שפונה ליהודה הלוי הכניסו אור ואוויר טבעי. לעומת זאת, המסדרון הרחב, חדר הרחצה ש"תפס" חלון והסלון הגדול היו שטחים שלא נוצלו היטב.

על- ידי העברת חדר הרחצה אל עומק הדירה (פתרון של ווטנה לאוורור, בדומה לאופן בו נוהגים בבתי מלון) השתחרר שטח רצפה לטובת המטבח, והסלון המוארך התקצר לטובת חדר שינה נוסף שמופרד על - ידי דלת הזזה גבוהה, המקשרת בין שני החללים בתנועה, מבט ושמירה על הרצף היזואלי של סדרת החלונות.

החומרים העיקריים שומרים על מראה נקי והמשכי. ריצוף חדר הרחצה ממשיך גם במסדרון עד לקו של תחילת החלל המרכזי. המשך הריצוף בפרקט בחדרי השינה ובמטבח מסייע אף הוא לחזק את הרצף החללי. הבחירה במטבח בצבע לבן שמטמיע בו את המקרר, מכונת הכביסה ושאר המערכות, מייצרת המשך לקיר הלבן  ומחזקת את תחושת המרחב.

צלם: עומרי אמסלם


ספארו אדריכלים לאתר

כתבות נוספות

עיצוב חדרים עם מערכת סולרית פסיבית
תכנון
עיצוב חדרים עם מערכת סולרית פסיבית
Hotel Design Blog - Mondrian Hotel  - הרומן האנגלי שלי חלק 3
עיצוב
Hotel Design Blog - Mondrian Hotel - הרומן האנגלי שלי חלק 3
עיצוב בהזזה
אדריכלות
עיצוב בהזזה
איך בוחרים נכון ספה לסלון?
תכנון
איך בוחרים נכון ספה לסלון?
האדריכל רון שפיגל משרטט מחדש את המושג "אדריכל שירות" - וחושף את הבית שהפך ליצירה ייחודית
אדריכלות
האדריכל רון שפיגל משרטט מחדש את המושג "אדריכל שירות" - וחושף את הבית שהפך ליצירה ייחודית
עיצוב פינת לימודים
חדשנות וטכנולוגיה
עיצוב פינת לימודים
מחסן בנייה קלה
תכנון
מחסן בנייה קלה
תכנון בית בקנדה
אדריכלות
תכנון בית בקנדה
6 פעולות שכדאי לשקול בכל שיפוץ
תכנון
6 פעולות שכדאי לשקול בכל שיפוץ
המפקדה שמגדירה את תרבות העבודה
חדשנות וטכנולוגיה
המפקדה שמגדירה את תרבות העבודה
U need - קונספט עיצוב יחידת נפש. מעצב פנים ניצן הורוביץ
עיצוב
U need - קונספט עיצוב יחידת נפש. מעצב פנים ניצן הורוביץ
בית בסימן אמנות
חדשנות וטכנולוגיה
בית בסימן אמנות
אדריכלות נוף, גינה בתנועה
אדריכלות
אדריכלות נוף, גינה בתנועה
בחירת צבעים למעטפת הפנימית של הבית
חדשנות וטכנולוגיה
בחירת צבעים למעטפת הפנימית של הבית
מהסלון ועד המטבח: הסודות לעיצוב חללים שאי אפשר להתעלם מהם
חדשנות וטכנולוגיה
מהסלון ועד המטבח: הסודות לעיצוב חללים שאי אפשר להתעלם מהם
עיצוב חללים של בית מלון על ידי הבינה המלאכותית בהשראת האדריכלית זהה חדיד
אדריכלות
עיצוב חללים של בית מלון על ידי הבינה המלאכותית בהשראת האדריכלית זהה חדיד
המעצב אריק לוי - ראיון
תכנון
המעצב אריק לוי - ראיון
כיצד הפכה פרביטל ליצרנית השיש והאבן המובילה בישראל?
חדשנות וטכנולוגיה
כיצד הפכה פרביטל ליצרנית השיש והאבן המובילה בישראל?
ArtiShook - אמנות בלב השוק
אדריכלות
ArtiShook - אמנות בלב השוק
תכנית החלוקה
תכנון
תכנית החלוקה
בית שמחבק חזק את המשפחה
אדריכלות
בית שמחבק חזק את המשפחה
עיצוב לכולם - ריאיון עם המעצב אוקי סאטו
אדריכלות
עיצוב לכולם - ריאיון עם המעצב אוקי סאטו
מפשיטים ומלבישים מחדש
אדריכלות
מפשיטים ומלבישים מחדש
כשירושלים פוגשת את תל-אביב
תכנון
כשירושלים פוגשת את תל-אביב
נגיעה של טבע ומזרח בקו הרקיע: מהפך לדירת קבלן בקומה ה-26
עיצוב
נגיעה של טבע ומזרח בקו הרקיע: מהפך לדירת קבלן בקומה ה-26
הקפלה בוייטנאם של a21studio זוכה בתחרות WAF World Building לשנת 2014
אדריכלות
הקפלה בוייטנאם של a21studio זוכה בתחרות WAF World Building לשנת 2014
מחסרון ליתרון
תכנון
מחסרון ליתרון
והרי התחזית: מה תהיינה ההשלכות של משבר הקורונה על תכנון מתחמי העבודה העתידיים
חדשנות וטכנולוגיה
והרי התחזית: מה תהיינה ההשלכות של משבר הקורונה על תכנון מתחמי העבודה העתידיים
פתרונות חדשניים מובילים לדלתות במעטפת המבנה
עיצוב
פתרונות חדשניים מובילים לדלתות במעטפת המבנה
בלורן - פתרונות פרזול ועיצוב לרהיטים
עיצוב
בלורן - פתרונות פרזול ועיצוב לרהיטים
נקודת אור
חדשנות וטכנולוגיה
נקודת אור
דירה חדשה – להשקיע בעיצוב פנים או לא?
תכנון
דירה חדשה – להשקיע בעיצוב פנים או לא?
אצלנו בחצר בצל עצי הזית...
אדריכלות
אצלנו בחצר בצל עצי הזית...
סגנון חופשי
חדשנות וטכנולוגיה
סגנון חופשי
ניצחון בכל החזיתות
עיצוב
ניצחון בכל החזיתות
ביה"ס לצילום מוסררה - שימור מבנה היסטורי
תכנון
ביה"ס לצילום מוסררה - שימור מבנה היסטורי
עד אחרון הפרטים
תכנון
עד אחרון הפרטים
כשפרובנס וטוסקנה נפגשות בעמק יזרעאל
אדריכלות
כשפרובנס וטוסקנה נפגשות בעמק יזרעאל
רדה אמלו REDA AMALOU - ועידת נצרת ה- 2  21.9.2016
עיצוב
רדה אמלו REDA AMALOU - ועידת נצרת ה- 2 21.9.2016
עיצוב גינה לקראת הקיץ
אדריכלות
עיצוב גינה לקראת הקיץ
"צעצוע" - תערוכה בנושא צעצועים
אדריכלות
"צעצוע" - תערוכה בנושא צעצועים
מנימליסטית ומוארת-כך עיצבה לעצמה המעצבת את דירתה
תכנון
מנימליסטית ומוארת-כך עיצבה לעצמה המעצבת את דירתה
המתנה לרכבת - הצעה לעיצוב תחנת רכבת הקלה של מטרפולין תל אביב: ניר קיסר
אדריכלות
המתנה לרכבת - הצעה לעיצוב תחנת רכבת הקלה של מטרפולין תל אביב: ניר קיסר
מתאבנים מתערוכת הריהוט במילאנו 2011
אדריכלות
מתאבנים מתערוכת הריהוט במילאנו 2011
הבית האקלקטי
אדריכלות
הבית האקלקטי
מדריך מטבחים 2012
תכנון
מדריך מטבחים 2012
ליצור מקור הצללה מעוצב בחצר הבית או המרפסת
אדריכלות
ליצור מקור הצללה מעוצב בחצר הבית או המרפסת
חדשות וחידושים - 120
עיצוב
חדשות וחידושים - 120
אולם תצוגה של חברת אינובייט
חדשנות וטכנולוגיה
אולם תצוגה של חברת אינובייט
הצצה למלון "קליק קלאק" בקולומביה
אדריכלות
הצצה למלון "קליק קלאק" בקולומביה
ווילרוי&בוך מותג בתחום עיצוב חדרי רחצה
אדריכלות
ווילרוי&בוך מותג בתחום עיצוב חדרי רחצה
דירה - מוסך
אדריכלות
דירה - מוסך
עיצוב הבית ושילוב נכון של פתרונות חימום
תכנון
עיצוב הבית ושילוב נכון של פתרונות חימום
שבץ נא - פסיפס
תכנון
שבץ נא - פסיפס
בית גמיש
אדריכלות
בית גמיש
טוסקנה זה כאן
תכנון
טוסקנה זה כאן
טאץ׳ אחרון לעיצוב: ארבעת כללי הזהב בבחירת וילונות לבית
עיצוב
טאץ׳ אחרון לעיצוב: ארבעת כללי הזהב בבחירת וילונות לבית
אורבונד: הדרך הבטוחה לבנייה ירוקה
חדשנות וטכנולוגיה
אורבונד: הדרך הבטוחה לבנייה ירוקה
הדירה שמחכה לאחת שתגיע
תכנון
הדירה שמחכה לאחת שתגיע
סיפור אהבה בין פנים וחוץ
אדריכלות
סיפור אהבה בין פנים וחוץ
הפרקט כאופציה בעיצוב פנים
חדשנות וטכנולוגיה
הפרקט כאופציה בעיצוב פנים
במהירות האור - חידושים בתחום התאורה
תכנון
במהירות האור - חידושים בתחום התאורה
שני בתים וסטודיו
אדריכלות
שני בתים וסטודיו
שילוב שולחנות קקל כחלק מעיצוב הבית והחצר
אדריכלות
שילוב שולחנות קקל כחלק מעיצוב הבית והחצר
והתחזית: חם ומעוצב
אדריכלות
והתחזית: חם ומעוצב
אלישבע –אירוח בכפר, מושק עמקה, הצעה לעיצוב חדרים בבתי מלון: Level
עיצוב
אלישבע –אירוח בכפר, מושק עמקה, הצעה לעיצוב חדרים בבתי מלון: Level
תמורות בחיפוי מבנים: זהות מקומית ועמידות לאורך שנים
חדשנות וטכנולוגיה
תמורות בחיפוי מבנים: זהות מקומית ועמידות לאורך שנים
טעויות נפוצות בשיפוצים: בחירה לא נכונה של פרופילי גמר והשלכותיה
תכנון
טעויות נפוצות בשיפוצים: בחירה לא נכונה של פרופילי גמר והשלכותיה
תכנון מרחבים בטוחים ומזמינים לבריאות הנפש
תכנון
תכנון מרחבים בטוחים ומזמינים לבריאות הנפש
הקופסא הפתוחה
אדריכלות
הקופסא הפתוחה
מאלגנטיות שקופה ועד לחיפוי עתידני
חדשנות וטכנולוגיה
מאלגנטיות שקופה ועד לחיפוי עתידני
הזוכים בתחרות כנס בנייה ירוקה 2013
תכנון
הזוכים בתחרות כנס בנייה ירוקה 2013
שימוש בפרזול בתחום עיצוב פנים
תכנון
שימוש בפרזול בתחום עיצוב פנים
משרדי חברת "ואוליה"
חדשנות וטכנולוגיה
משרדי חברת "ואוליה"
הבית בקיוטו שלקוח מציורי ילדים
אדריכלות
הבית בקיוטו שלקוח מציורי ילדים
כל הנוצץ- זהב אדום
אדריכלות
כל הנוצץ- זהב אדום
שטיח לא מעופף
תכנון
שטיח לא מעופף
נתיב האקספרס לתכנון משרד
חדשנות וטכנולוגיה
נתיב האקספרס לתכנון משרד
תכנון ועיצוב בית ברשפון
אדריכלות
תכנון ועיצוב בית ברשפון
חומרי המטבח העתידני
תכנון
חומרי המטבח העתידני
ושמחת בצבעיך
אדריכלות
ושמחת בצבעיך
על התפר בין חוץ לפנים
אדריכלות
על התפר בין חוץ לפנים
דירה ברמת אביב הירוקה
תכנון
דירה ברמת אביב הירוקה
מה הקשר בין עיצוב בתי המלון בארץ למיתוג אמסטרדם?
עיצוב
מה הקשר בין עיצוב בתי המלון בארץ למיתוג אמסטרדם?
עיצוב בתים בפרויקטים של בנייה ירוקה
תכנון
עיצוב בתים בפרויקטים של בנייה ירוקה
עשה לך דק
אדריכלות
עשה לך דק
עיצוב דירה ישנה ברוח עברה
תכנון
עיצוב דירה ישנה ברוח עברה
הצעה לעיצוב חדרים בבתי מלון: גורן אושרת
עיצוב
הצעה לעיצוב חדרים בבתי מלון: גורן אושרת
בית הפלדה הצהוב
אדריכלות
בית הפלדה הצהוב
"דלידה" היא חמארה אירופאית
אדריכלות
"דלידה" היא חמארה אירופאית
קרובים, קרובים - בית פרטי בהוד השרון
אדריכלות
קרובים, קרובים - בית פרטי בהוד השרון
אמנות הריפוד - סגנונות ומגמות עכשוויות
תכנון
אמנות הריפוד - סגנונות ומגמות עכשוויות
משלבים בין חדשנות למסורת
אדריכלות
משלבים בין חדשנות למסורת
תרמוקיר: תעשיית כחול לבן הכי ירוקה שיש
תכנון
תרמוקיר: תעשיית כחול לבן הכי ירוקה שיש
הפנים והחוץ: הרמוניה מושלמת
אדריכלות
הפנים והחוץ: הרמוניה מושלמת
משהו על נישות
תכנון
משהו על נישות
Blip, הצעה לעיצוב חדרים בבתי מלון: יצהר גלמידי
עיצוב
Blip, הצעה לעיצוב חדרים בבתי מלון: יצהר גלמידי
בית הספר רקפות פנינת לימוד ירוקה בצפון
תכנון
בית הספר רקפות פנינת לימוד ירוקה בצפון
שיפוץ דירה ישנה משנות ה-60
תכנון
שיפוץ דירה ישנה משנות ה-60
כך תארחו את משפחתכם
אדריכלות
כך תארחו את משפחתכם